Madlastokken 22
3 200 000 kr
65 m²
1 soverom
Solgt

Presenteres av
Marianne BryneMadla
Romslig leilighet i første etasje med stor vestvendt uteplass. Gjennomgående fin standard med nyoppusset bad.
Prisantydning
3 200 000 krAndel fellesgjeld
219 635 krOmkostninger
96 510 krTotalpris
3 516 145 kr
Pris
Bruksareal
70 m²BRA-I (internt bruksareal)
65 m²BRA-E (eksternt bruksareal)
5 m²TBA (terrasse-balkongareal)
25 m²
Areal
Etasje
1Byggeår
1983Soverom
1 soveromBad
1 badType
EierleilighetEierform
EierseksjonFellesutgifter
4 124 krEnergimerke
Rød F
Nøkkelinfo
Unngå doble boligrenter
Vi tilbyr gunstig forsikring.
Vurderer du utleie?
Få et tilbud fra Utleie KrogsveenHva koster lånet?
Sjekk estimert lånekostnadBeskrivelse
Kort om eiendommen
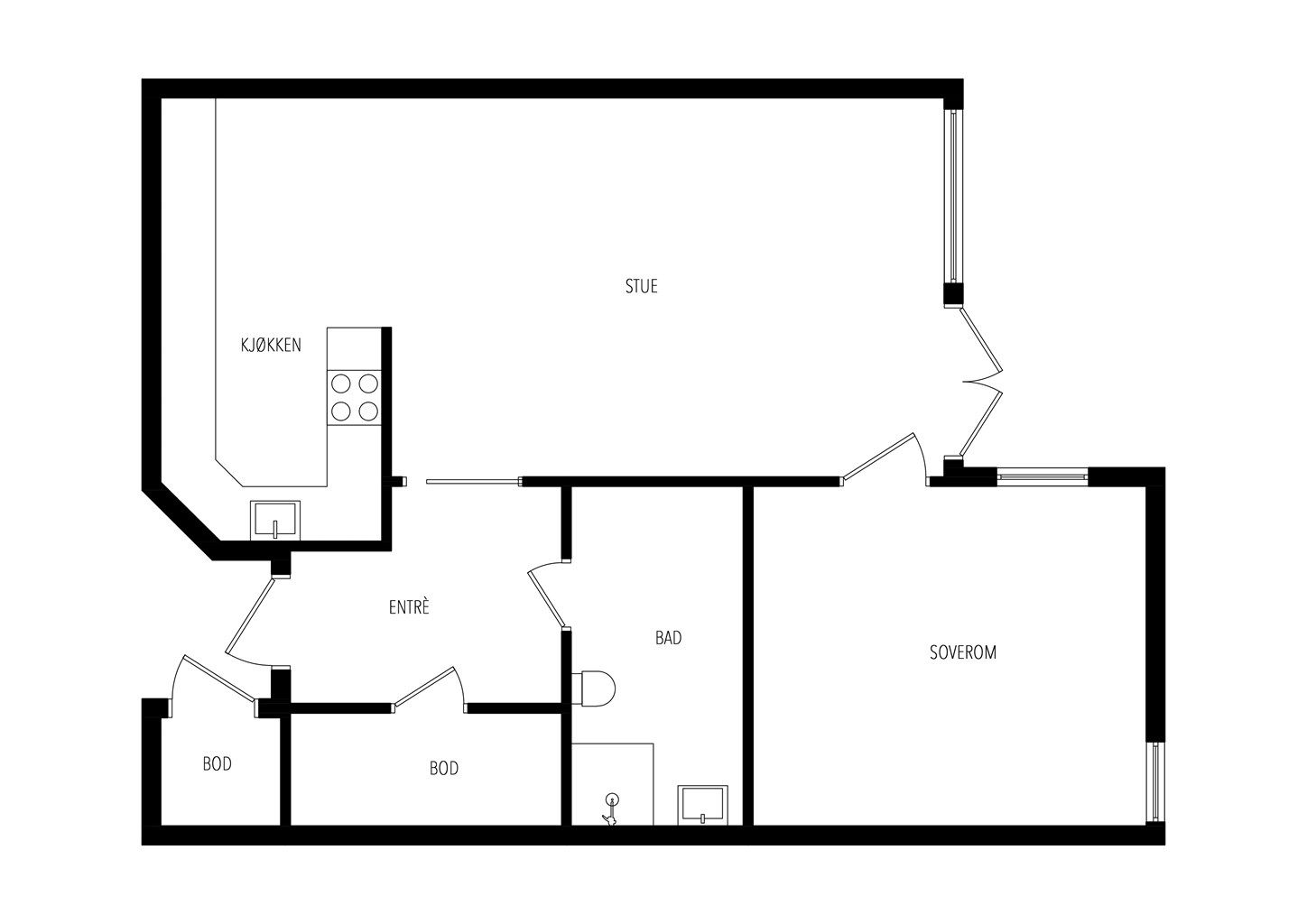
Pent oppusset leilighet i første etasje i populær boligblokk på Madla. Leiligheten har en gjennomgående fin standard med en-stavs gulv og malte overflater.
Praktisk planløsning med god lagringsplass i en innvendig bod, samt i to sportsboder i fellesgang (den ene rett utenfor leiligheten).
Fint påbygd kjøkken god skap- og benkeplass, samt nyere benkeplate og servant.
Nyoppusset bad kombinert vaskerom i delikat utførelse.
Mulig for beboerne å leie gjestehybler og festlokale.
Stor inngjerdet uteplass vendt mot vest med herlig ettermiddag- og kveldssol.
Rolig og avsides beliggenhet med fint utsyn mot felles grøntareal.
Perfekt beliggende med kort avstand til Madla Amfi, kollektiv transport og turområder.
Område
Legg til steder som er viktige for deg
På flyttefot? Tenk kjøp og salg samtidig.
Få din egen rådgiver gjennom hele kjøps- og salgsprosessen. Det starter med en verdivurdering.
Unngå doble boligrenter
Vi tilbyr gunstig forsikring.
Vurderer du utleie?
Få et tilbud fra Utleie KrogsveenHva koster lånet?
Sjekk estimert lånekostnadVil du varsles om lignende boliger?
Ved å lagre ditt boligsøk hos oss får du beskjed når vi har en bolig som ligner denne, før den legges ut på markedet!
På flyttefot? Slik gjør vi det enklere for deg
Skreddersydd flyttepakke
Vi fikser håndverkere, vask, pakking, lagring og transport, og legger ut for utgiftene underveis.
Hjelp med både kjøp og salg
Hos oss har du din egen rådgiver gjennom hele kjøps- og salgsprosessen.
Hjelp til finansiering
Vårt samarbeid med BN Bank sikrer deg rask og løsningsorientert hjelp, til konkurransedyktige betingelser.

