St. Hansveien 1
3 950 000 kr
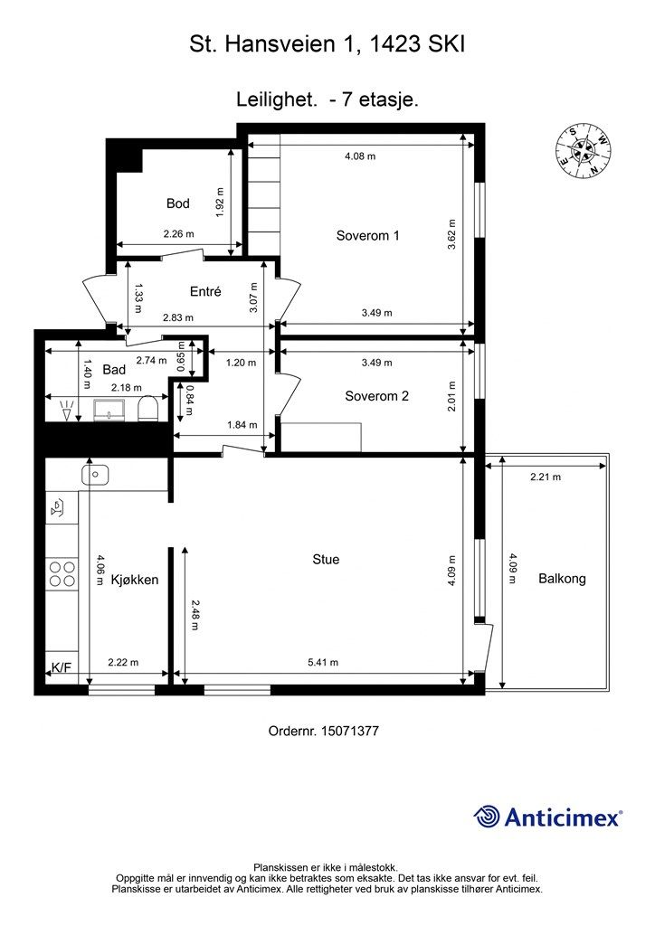
71 m²
2 soverom
Solgt

Ski/Nedre Hebekk
Attraktiv 3-roms i 7. etasje | Balkong på 9 kvm med kveldssol og flott utsyn | Garasjeplass | Heis | Oppussingsbehov
Prisantydning
3 950 000 krAndel fellesgjeld
167 685 krOmkostninger
113 960 krTotalpris
4 231 645 kr
Pris
Bruksareal
77 m²BRA-I (internt bruksareal)
71 m²BRA-E (eksternt bruksareal)
6 m²TBA (terrasse-balkongareal)
9 m²
Areal
Etasje
7Byggeår
1968Soverom
2 soveromBad
1 badType
EierleilighetEierform
EierseksjonFasiliteter
Garasje/P-plass, Heis og Balkong/TerrasseFellesutgifter
4 163 krEnergimerke
Rød F
Nøkkelinfo
Unngå doble boligrenter
Vi tilbyr gunstig forsikring.
Vurderer du utleie?
Få et tilbud fra Utleie KrogsveenHva koster lånet?
Sjekk estimert lånekostnadBeskrivelse
Kort om eiendommen
Velkommen til St. Hansveien 1!
Hjørneleilighet beliggende i 7. etasje med adkomst via heis eller felles trapperom. Leiligheten har overbygget balkong med fint utsyn. Vinduer ble byttet i regi av sameiet, i 2023. Her har man ingen gjenboere og leiligheten har en sentral beliggenhet. Parkering i garasjerekke mellom blokkene. Oppussing/oppgradering av leiligheten må påregnes.
Leiligheten har en meget attraktiv beliggenhet på Nedre Hebekk i Ski. Kort gangavstand til Ski sentrum med togstasjon, alt av forretninger og servicetilbud, Ski storsenter med over 145 butikker og spisesteder, restauranter, caféer, bibliotek, bowlinghall, kinosenter og offentlige kontorer. Coop Prix rett utenfor døren eller Kiwi Ski stasjon kun 6 minutter gange fra leiligheten. Follobanen tar deg til Oslo S på 12 min.
Område
Legg til steder som er viktige for deg
På flyttefot? Tenk kjøp og salg samtidig.
Få din egen rådgiver gjennom hele kjøps- og salgsprosessen. Det starter med en verdivurdering.
Unngå doble boligrenter
Vi tilbyr gunstig forsikring.
Vurderer du utleie?
Få et tilbud fra Utleie KrogsveenHva koster lånet?
Sjekk estimert lånekostnadVil du varsles om lignende boliger?
Ved å lagre ditt boligsøk hos oss får du beskjed når vi har en bolig som ligner denne, før den legges ut på markedet!

