Brattvollveien 30C
8 500 000 kr
127 m²
4 soverom
Komplett salgsoppgave
Nordstrand/Munkerud
Enderekkehus m/ 4 sov og 2 bad | Flere solrike og usjenerte uteplasser | Sokner til populære Munkerud skole
Prisantydning
8 500 000 krOmkostninger
233 490 krTotalpris
8 733 490 kr
Pris
Bruksareal
135 m²BRA-I (internt bruksareal)
127 m²BRA-E (eksternt bruksareal)
8 m²TBA (terrasse-balkongareal)
76 m²
Areal
Byggeår
1953Soverom
4 soveromBad
2 badTomteareal
376 m² (festet)Type
RekkehusEierform
EietFasiliteter
Balkong/Terrasse
Nøkkelinfo
Unngå doble boligrenter
Vi tilbyr gunstig forsikring.
Vurderer du utleie?
Få et tilbud fra Utleie KrogsveenHva koster lånet?
Sjekk estimert lånekostnadBeskrivelse
Kort om eiendommen
Innhold og byggemåte
Innhold og byggemåte
Eiendommen
Brattvollveien 30C, 1164 OSLO
Kommunenummer 301, gårdsnummer 181, bruksnummer 644, ideell andel 1/1
Innhold
Totalt bruksareal BRA: 135 kvm
BRA-i:
Rekkehus:
Kjeller 39 kvm: Trappegang, soverom/kjellerstue, bad og bod.
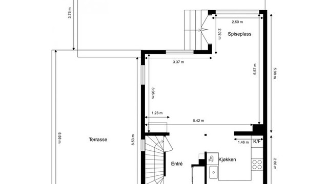
1. etasje 46 kvm: Entré, kjøkken, stue og spiseplass.
2. etasje 42 kvm: Gang, bad og 3 soverom.
BRA-e:
Utebod:
1. etasje 8 kvm: Utebod med tilbygg.
TBA (terrasse- og balkongareal):
1. etasje 76 kvm: Terrasse.
Vedlagte plantegninger er ikke målbare. De oppgitte arealer er hentet fra rapport med befaringsdato 09.04.2026 utført av Anticimex AS v/Jan Olav Morell-Nielsen. Arealene er beregnet og rom er definert etter dagens faktiske bruk, uavhengig av hva som er godkjent av bygningsmyndighetene.
Byggemåte
Selger har innhentet en tilstandsrapport av boligen. Dersom det er registrert avvik, er disse klassifisert med tilstandsgrader (TGIU, TG2 og/eller TG3). Kjøper overtar ansvaret for de opplysninger som fremkommer av salgsdokumentasjonen, og kan ikke gjøre gjeldende som mangel noe som burde vært kjent eller som ikke kan anses å ha betydning for avtalen.
Bygningen er iht. tilstandsrapport et rekkehus oppført i 1953. Grunnmuren er av betong med sparestein og bygget har en innredet kjeller. Yttervegger og etasjeskillere er av trekonstruksjoner, og utvendige fasader er kledd med liggende trekledning. Gulvet mot grunn er støpt. Boligen har saltak i trekonstruksjoner med et uinnredet kaldt loft. Yttertaket er belagt med takstein fra ukjent årstall, som er fornyet med overflatebehandling, og har et undertak av asfaltpapp. Renner og nedløp er i metall. Pipen er fra byggeår, er helkledd i metall og har fotbeslag i bly, men det er ingen ildsted tilkoblet. Vinduer har karmer og rammer av tre og er fra forskjellige årstall, hvor enkelte er skiftet i nyere tid. Boligen har en entrédør med brannklasse B30, samt en balkong-/terrassedør i tre. Innvendige dører er en blanding av profilerte og glatte dører. Det er en innvendig trapp i tre, en utvendig trapp i betong ved inngangspartiet og trapp i betong ut til terrassen. Fra stuen er det utgang til en 76 m² stor terrasse i trekonstruksjoner.
I tillegg er det en frittstående, uisolert utebod i trekonstruksjoner. Fasaden er kledd med liggende trekledning. Bygningen har et saltak i trekonstruksjoner, og yttertaket er tekket med takpapp og plasttak.
Sikringsskap med automatsikringer er plassert i trappegang i kjeller. El-anlegget er fra boligens byggeår, men det er gjort enkelte oppgraderinger i ettertid. Det mangler samsvarserklæring for deler av anlegget, og det er registrert forhold som tyder på behov for en utvidet kontroll av en kvalifisert elektrofaglig person.
Boligen har godkjent slukkeutstyr, tilstrekkelig røykvarsling og komfyrvakt.
Det gjøres spesielt oppmerksom på at følgende bygningsdeler er gitt Tilstandsgrad 3 (TG3) - Store eller alvorlige avvik:
Våtrom
- Bad 2 etasje - Helhetsvurdering: Våtrommet er vurdert samlet. Det er stedvise riss i vegg- og gulvfliser samt sprekker i fuger i dusjsonen. Årsak er ukjent, men kan indikere utettheter i tettesjiktet, som ikke kan fastslås uten åpning. Lokalfallet i sluksonen er lavere enn anbefalt, men vurderes å gi tilfredsstillende avrenning ved normal bruk (mindre avvik). Fall utenfor sluksonen er utilstrekkelig, og det er ikke påvist tilstrekkelig oppkant ved dørterskel. Vanntett sjikt er gammelt (før 2000) med svært usikker fremtidig funksjon, og tilstanden er ukjent. Overgangen sluk/tettesjikt er uoversiktlig. Kobberrør har høy alder og usikker funksjon, og er skjult. Sluk er isolert i dusj. Det er ikke etablert tilluftsspalte, og ventilasjonen er kun naturlig. Fuktmåling fra tilstøtende rom viser RF 30,4 % ved 22,9°C (duggpunkt 4,7°C), uten forhøyet fukt.
Bad kjeller - Fallforhold rundt sluk: Det er motfall mot sluk, som gir vannansamlinger. Utførelsen vurderes som faglig svak og kan indikere skjulte feil.
- Bad kjeller - Vanntett sjikt / membran: Det er målt høye fuktverdier bak dusj, som gir usikker membrantilstand.
- Bad kjeller - Kontroll i tilliggende konstruksjon: Fuktmåling viser 24,1 vekt% i treverk og RF 90,1 % ved 19,9°C (duggpunkt 18,3°C), som tilsier nivå mellom forhøyet og kritisk med risiko for fuktskade. Det er observert muggsopp. Årsak er ukjent og krever videre undersøkelser. Målingen er lokal, og skjulte skader kan ikke utelukkes.
Loft - uinnredet/kaldt loft
- Synlige overflater: Det er registrert fuktskader i taktro med målt fuktinnhold på 25 vekt% (kritisk). Årsak antas å være sammensatt, men undertakets alder vurderes som hovedårsak. Dette gir risiko for råte, sopp og materialnedbrytning.
Vinduer og ytterdører
- Vinduer og omramming: Enkelte vinduer har slitasje, elde og stedvise råteskader. De har nådd en alder hvor funksjon er usikker, med risiko for svikt og aldersrelaterte problemer. Noen vinduer er nyere og omfattes ikke.
Yttertak
- Undertak: Det er tegn til lekkasjer og funksjonssvikt, samt forhøyede fuktverdier. Dette gir høy risiko for følgeskader.
Utvendig trapp - Inngangsparti
- Utvendig trapp: Det er registrert bom, riss og løse fliser. Dette tyder på bakenforliggende feil som ikke kan avdekkes visuelt.
Drenering
- Helhetsvurdering: Det er tegn til fuktgjennomslag som indikerer svikt i dreneringen. Alder understøtter at funksjonstiden er passert. Terrengfall er delvis ukjent pga. terrasse. Det er ikke verifisert utvendig fuktsperre på grunnmur. Dette gir økt risiko for fuktvandring og skader.
Følgende bygningsdeler er gitt TG2 (kan kreve tiltak):
Våtrom
- Bad kjeller - Lekkasjesikkerhet: Utilstrekkelig fall utenfor sluk og manglende dokumentert oppkant gir risiko for vann til tilstøtende rom.
- Bad kjeller - Tettesjikt/sluk: Overgangen er skjult og ikke visuelt kontrollerbar. Det er ikke krav om synlige skruer/overganger.
Kjøkken
- Vannrør: Kobberrør har høy alder og usikker funksjon. Tilstanden er ukjent da anlegget er skjult.
Tekniske anlegg
- Avløpsrør: Støpejernsrør har høy alder og usikker funksjon. Uisolerte rør på kaldloft gir fryserisiko og avviker fra krav.
- Varmtvannsbereder: Mangler lekkasjesikring. Lekkasjer kan gi skader. Høy alder gir usikker funksjon.
Andre rom
- Himling: Aldersslitasje og mindre skader, hovedsakelig estetisk.
- 2 etasje gulv: Slitasje med riper/hakk. Hovedsakelig estetisk, men kan gi misfarging ved fukt.
Rom under terreng
- Vegg: Salt- og kalkutslag indikerer fuktvandring og mulig dreneringssvikt. Ellers noe slitasje.
- Innerdører: Skadet dør som ikke fungerer normalt.
Loft - uinnredet/kaldt loft
- Inspeksjon: Begrenset pga. lagring.
- Ventilasjon: Luftespalter delvis tettet, som kan gi redusert ventilasjon og kondensrisiko.
- Rør: Uisolerte ventilasjonsrør gir kondensrisiko.
Innvendige trapper
- Tilstand: Knirk, hovedsakelig lydmessig betydning. Eldre trapp.
Etasjeskiller og gulv på grunn
- 2 etasje: Skjevheter opptil 17 mm og 5 mm. Kan gi knirk og utfordringer ved møblering.
- 1 etasje: Skjevheter opptil 33 mm i stue. Kan gi knirk og praktiske utfordringer.
Yttervegger inkl. fasader
- Overflate: Slitasje, bobler og avflassing gir redusert fuktbeskyttelse.
- Kledning: Elde, begynnende råte og rust i festemidler.
- Lufting: Begrenset lufting bak kledning gir økt risiko for skjulte skader.
- Gnagersikring: Mangler, gir risiko for inntrengning.
Vinduer og ytterdører
- Ytterdører: Punktert glass i terrassedør gir redusert isolasjon og økt kondensfare.
Yttertak
- Tekking: Mose gir økt fuktbelastning.
- Detaljer: Slitasje på vindskier, renner, gjennomføringer og beslag gir lekkasjerisiko.
- Overganger: Usikker tetting mellom tak og vegg.
- Pipe: Slitt beslag gir økt lekkasjerisiko.
Terrasse / platting
- Konstruksjon: Fundament ikke kontrollert. Skjevheter (53 mm) kan påvirke funksjon og levetid.
Grunnmur og fundament
- Grunnmur: Avskalling kan gi økt fuktbelastning.
Forstøtningsmur
- Tilstand: Riss kan indikere setninger.
Stikkledninger og tanker
- Vann/avløp: Høy alder gir usikker funksjon. Skjult anlegg.
Andre byggverk - Utebod
- Vegger: Slitasje og begynnende nedbrytning, men ingen større skader.
- Tak: Elde og usikker fremtidig funksjon.
- Fundament: Skjevheter kan indikere underliggende feil.
- Innvendig: Slitasje, behov for vedlikehold over tid.
Følgende bygningsdeler er ikke undersøkt (TGIU):
Tekniske anlegg
- Innvendig stakeluke: Innvendig stakeluke er ikke påvist, og det er derfor ukjent om dette er etablert. Konsekvens er at det kan være vanskelig å utføre nødvendig vedlikehold eller rensing ved eventuell tilstopping. Stakeluke anses generelt sett som et forskriftskrav, med enkelte unntak. Tilstandsgrad settes i henhold til NS 3600.
Helse, miljø og sikkerhet
Innvendige trapper - Rekkverk og håndløper
Rekkverkshøyder, lysåpninger, håndløper og andre sikkerhetsmessige forhold er kontrollert opp mot dagens gjeldende byggtekniske forskrift, selv om denne ikke har tilbakevirkende kraft. Det registreres følgende: Trappen har ingen håndløpere. Basert på ovennevnte forhold oppfyller ikke trappen dagens krav til sikkerhet. Om trappen oppfylte kravene som var gjeldende på oppføringstidspunktet eller ikke, er ikke tatt stilling til.
Terrasse / platting - Rekkverkshøyde og lysåpninger
Det registreres følgende: Terrassen mangler fullverdig rekkverk, noe som medfører fare for liv og helse. Basert på ovennevnte forhold oppfyller ikke rekkverket dagens krav til sikkerhet. Om rekkverket oppfylte kravene som var gjeldende på oppføringstidspunktet eller ikke, er ikke tatt stilling til.
Utvendig trapp - Terrasse - Rekkverkshøyde og lysåpninger
Rekkverkshøyder, lysåpninger og andre sikkerhetsmessige forhold er kontrollert opp mot dagens gjeldende byggtekniske forskrift, selv om denne ikke har tilbakevirkende kraft. Det registreres følgende: Trappen mangler rekkverk, noe som medfører fare for liv og helse. Basert på ovennevnte forhold oppfyller ikke trappen dagens krav til sikkerhet. Om trappen oppfylte kravene som var gjeldende på oppføringstidspunktet eller ikke, er ikke tatt stilling til.
Utvendig trapp - Inngangsparti - Rekkverkshøyde og lysåpninger
Rekkverkshøyder, lysåpninger og andre sikkerhetsmessige forhold er kontrollert opp mot dagens gjeldende byggtekniske forskrift, selv om denne ikke har tilbakevirkende kraft. Det registreres følgende: Rekkverkshøyden er under 1,0 meter. Rekkverket har vertikale åpninger større enn 10 cm. Basert på ovennevnte forhold oppfyller ikke trappen dagens krav til sikkerhet. Om trappen oppfylte kravene som var gjeldende på oppføringstidspunktet eller ikke, er ikke tatt stilling til.
Tilstandsrapporten er inntatt i salgsoppgaven. Rapporten inneholder informasjon om eventuelle avvik og konsekvensen av disse. Dersom det er registrert avvik med TG3, har den bygningssakkyndige i tillegg gitt et anslag på hva det vil koste å utbedre disse. Ettersom kjøper regnes å være kjent med forhold som tydelig fremgår av tilstandsrapporten, oppfordres du til å sette deg grundig inn i rapporten i sin helhet.
Selger beskriver også i egenerklæringsskjema:
Det har vært vannlekkasje i dusjen på badet i kjelleren. Gammelt vaskerom, toalett og bod ble bygget om til nytt bad i 2018 av Baderomsentreprenøren. I 2021 ble det oppdaget feil og lekkasje i membran/sluk, som ble utbedret av DLC AS da det opprinnelige firmaet var konkurs. Det har også vært lekkasje fra tak, som ble reparert i to omganger ved at et hull i beslaget rundt pipen ble tettet. Hele taket ble i tillegg behandlet/glassert. Det har vært kollaps/skade på et utvendig, felles kloakkrør, som ble utbedret i 2016 av Svend Fjellstad AS. En gammel vedovn i kjelleren ble fjernet i 2008, og hullet etter røret ble murt igjen. Etter baderomsrenoveringen i 2018 ble luken for askefjerning i kjelleren utilgjengelig. Feier har i 2023 anbefalt tiltak for pipen dersom man ønsker å etablere vedovn i 1. etasje. Kjøkkenet ble delvis oppgradert i 2020, og det ble lagt nytt gulv med varmekabler i hele 1. etasje i 2021. Det er en sprekk i glasset i verandadøren som ikke er reparert, og varmtvannsberederen i 2. etasje er gammel og anbefales utskiftet. To mindre sprekker i støttemuren i hagen er tettet. Det er anlagt ny platting mot syd, og satt opp et tilbygg til boden.
Arbeid på tak, yttervegg og vinduer er utført. I 2009 ble et kjellervindu forstørret og nytt rømningsvei-vindu satt inn av et ukjent firma. I 2015 ble tre nye vinduer satt inn i stuen av Advik AS. Taklekkasje ble tettet og takstein impregnert i 2015/2017 av Express bygg- og takfornying. Ufaglært arbeid inkluderer innsetting av et vindu i trappegangen i 2008 og tre småvinduer i kjelleren i 2011.
Selger beskriver i tillegg følgende opplysninger:
Alle 3 vinduer i stua er byttet ut (Advik vinduer AS, dokumentert), og radonmåling ble utørt både i 2009 og 2012, begge langt under farenivå. Men ikke dokumentert.
Moderniseringer og påkostninger
Følgende moderniseringer er foretatt de senere år:
2026:
- Bruksendring i kjeller fra tilleggsdel til hoveddel med tilhørende fasadeendring.
2020:
- Utvidelse og vedlikehold av elektrisk anlegg (sikringsskap, kjøkken, inntaksskap). Samsvarserklæring foreligger.
- Vedlikehold av elektrisk anlegg (bad, uteområde, kjeller, sikringsskap). Samsvarserklæring foreligger.
- Kjøkken oppgradert med nye skapfronter, komfyr, platetopp og benkeplater.
2018:
- Baderom i kjeller bygget. Varmtvannsbereder installert.
1996:
- Baderom i 2. etasje bygget.
Ifølge selgers egenerklæring er følgende arbeid utført:
2021:
- Utbedring av feil/lekkasje i membran/sluk på bad i kjeller, utført av DLC AS.
- Nytt gulv med varmekabler lagt i hele 1. etasje.
- Nytt solskjermingssystem anlagt.
2017:
- Lekkasje på tak tettet og takstein impregnert.
Standard
Dette enderekkehuset strekker seg over tre plan og kombinerer en familievennlig planløsning med store, usjenerte uteplasser. Boligen har gjennomgått oppgraderinger de siste årene, inkludert et oppusset kjøkken, et moderne bad i kjelleren og nyere gulv med varme i hele første etasje. Med fire soverom og to bad er dette et praktisk hjem med en god fordeling mellom sosiale soner og private rom.
Entré:
Fra inngangspartiet kommer du inn i en lys entré. Herfra får du et direkte glimt inn mot stuen, og det gjennomgående laminatgulvet med gulvvarme binder førsteetasjen sammen. En trapp fører ned til kjelleren og opp til andre etasje.
Stue og spiseplass:
Stuen er et lyst og åpent rom med plass til både sofagruppe og spisebord. Store vindusflater gir godt med dagslys, og den delvis åpne løsningen mot kjøkkenet skaper en god flyt i etasjen. Hele gulvet har gulvvarme, som gir en jevn og behagelig temperatur. Fra stuen er det direkte utgang til en stor terrasse.
Terrasse:
Den vestvendte syd vestvendte terrassen på hele 76 m² blir en naturlig samlingsplass på varme dager. Her er det rikelig med plass til både en stor sittegruppe og en separat spiseplass. Uteplassen er usjenert og har gode solforhold.
Kjøkken:
Kjøkkenet ble oppgradert i 2020 med nye, glatte fronter, laminatbenkeplate og integrerte hvitevarer. Innredningen er plassert i en praktisk vinkel som gir gode arbeidsflater. Av utstyr finnes integrert stekeovn, platetopp, kjøleskap med fryser og en innfelt oppvaskmaskin. En komfyrvakt er installert for ekstra sikkerhet. Det er kun de integrerte hvitevarer som medfølger, med unntak av oppvaskmaskin.
Andre etasje:
En trapp leder opp til boligens andre etasje, som inneholder tre soverom og et bad, samlet rundt en gang med tregulv.
Tre soverom:
Etasjen har tre soverom av god størrelse. Alle rommene har tregulv og plass til seng og garderobeløsninger. Hovedsoverommet har en fondvegg med spilepanel bak sengen. Rommene er praktiske som barnerom, gjesterom eller kontor.
Bad i 2. etasje:
Badet i andre etasje er utstyrt med gulvstående toalett, servantinnredning med speilskap og et dusjhjørne med glassvegger. Rommet har gulvvarme. Badet er fra 1996 og har et oppgraderingsbehov.
Kjeller:
Kjelleretasjen er innredet med et soverom/kjellerstue, et bad og en bod, tilgjengelig fra en trappegang.
Soverom i kjeller:
Rommet i kjelleren er innredet som et soverom og har et nytt, større vindu som gir godt med lys.
Bad og vaskerom i kjeller:
Badet i kjelleren ble bygget i 2018 og er et kombinert bad og vaskerom. Rommet har store fliser på gulv og vegger, gulvvarme og downlights i taket. Innredningen inkluderer en vegghengt servant med speilskap, et vegghengt toalett og en dusjnisje. Det er også opplegg for vaskemaskin og tørketrommel.
Overflater:
Gulv: Laminat i 1. etasje. Tregulv i 2. etasje. Parkett og fliser i kjeller. Fliser på begge bad.
Vegger: Hovedsakelig malte flater. Fliser på bad. I kjelleren er det panel, plater og stedvis synlig, overflatebehandlet grunnmur.
Himling: Hovedsakelig malte flater. Downlights på bad i kjeller.
Lagring:
Boligen har en innvendig bod i kjelleren. I tillegg er det en frittstående, uisolert utebod på 8 m² på tomten. Det er diverse baderomsmøbler for oppbevaring på begge bad.
For fullstendig teknisk informasjon om boligen, se punktet Byggemåte i salgsoppgaven.
Løsøre og tilbehør
Vi viser til liste fra Norges Eiendomsmeglerforbund som gjelder fra 01.01.2020 angående løsøre og tilbehør.
Oppvarming
Elektrisk oppvarming med panelovner. Gulvvarme og varmekabler er installert i begge baderom og i 1. etasje. Det er en skorstein fra byggeår. Ingen ildsted er tilkoblet, og tiltak må utføres før pipen kan tas i bruk.
Dersom beboelsesrom ikke har vegg- eller fastmonterte varmekilder ved visning, følger dette heller ikke med.
Ferdigattest/brukstillatelse
Boligen er opprinnelig oppført i 1953.
Det foreligger en Ferdigattest (for mindre arbeider) datert 22.04.1968, som gjelder tilbygg til våningshus. Et arkivkort fra samme byggesak har en påtegning om at ferdigattest er gitt 24.04.1968. Attesten kan fås ved henvendelse til megler.
Boligen er oppført før bygningsloven trådte i kraft for hele landet i 1965. Det er ikke uvanlig at det i mange kommuner er mangelfulle arkiv for tiden før 1965.
Det foreligger i tillegg følgende dokumentasjon:
- Erklæring om deling av eiendom med 3-mannsbolig, datert 21.12.1964.
- Melding til GAB-registeret (Bygg godkjent) for tilbygg, datert 27.11.1995. Søknaden for tiltaket er fra 1994. Det er ikke utstedt ferdigattest for dette tilbygget. Det gjøres oppmerksom på at det ikke lenger utstedes ferdigattest på tiltak det er søkt om før 1998 jf. plan- og bygningsloven § 21-10.
- Ferdigattest for bruksendring i kjeller fra tilleggsdel til hoveddel, med tilhørende fasadeendring, datert 08.04.2026.
Det foreligger godkjente og byggemeldte tegninger fra byggeår og senere endringer. Tegningene kan fås ved henvendelse til megler.
Det er samsvar mellom dagens bruk av rommene og det som fremkommer på byggetillatelsen.
Det er registrert avvik og forhold som kan være søknadspliktige:
- Det er utført arbeid på bærende konstruksjoner. Det foreligger ikke dokumentasjon som viser hva som er gjort eller om arbeidet er omsøkt og godkjent. Endring av bærende konstruksjoner er normalt søknadspliktig.
- Det er oppført en frittstående utebod med tilbygg som ikke kan gjenfinnes i kommunens arkiver. Oppføring av slike bygg kan være søknadspliktig.
- Matrikkelen oppgir at bygget er en flermannsbolig med 12 boenheter, noe som ikke samsvarer med godkjente tegninger eller eiendommens faktiske forhold som et enderekkehus.
Kjøper overtar alt ansvar, kostnad og risiko for dette videre.
Tinglyste heftelser og rettigheter
Eiendommen overdras fri for pengeheftelser med unntak av:
1971/21788-5/105 13.12.1971 FESTEKONTRAKT - VILKÅR
Festetid: 99 ÅR
ÅRLIG AVGIFT NOK 91,-
PANT FOR FORFALT FESTEAVGIFT
BESTEMMELSE OM OVERDRAGELSE
BESTEMMELSE OM BEBYGGELSE
MED FLERE BESTEMMELSER
Kristian Gjølberg bortfester herved til Erling Jensen en parsell av Munkerud, gnr. 181, bnr. 644 (Brattvollveien 30 c), for et tidsrom av 99 år regnet fra 17/3-1953. Årlig leie er kr 90,30, og grunneieren har pant i festeretten samt all bebyggelse på tomten. Tomten skal bebygges villamessig med et beboelseshus ikke høyere enn 2 etasjer og med ikke mere enn 2 leiligheter i hver etasje, og beboelsesrom må ikke innredes i kjeller eller loft over 2. etasjer. Festeren er forpliktet til å tilslutte kommunens vann- og kloakkledning, og ved opparbeidelse av eller utvidelse av gate utenfor eiendommen er festeren forpliktet til å utrede fornøden grunn uten erstatning og å delta i opparbeidelsesomkostningene. Festeren har til enhver tid forkjøpsrett til grunnen.
Kommunen har legalpant i eiendommen for forfalte krav på eiendomsskatt og kommunale avgifter/gebyrer.
Heftelser på gnr. 181 bnr. 644:
1971/21635-4/105 10.12.1971 ERKLÆRING/AVTALE
BESTEMMELSER IFØLGE FESTEKONTRAKT
GJELDER DENNE REGISTERENHETEN MED FLERE
Kristian Gjølberg bortfester herved til Sverre Sonesen en parsell av Munkerud, gnr. 181, bnr. 350 (Brattvollveien 30), for et tidsrom av 99 år regnet fra 17/3-1953. Årlig leie er kr 90,30, og grunneieren har pant i festeretten samt all bebyggelse på tomten. Tomten skal bebygges villamessig med et beboelseshus ikke høyere enn 2 etasjer og med ikke mere enn 2 leiligheter i hver etasje, og beboelsesrom må ikke innredes i kjeller eller loft over 2. etasjer. Festeren er forpliktet til å tilslutte kommunens vann- og kloakkledning, og ved opparbeidelse av eller utvidelse av gate utenfor eiendommen er festeren forpliktet til å utrede fornøden grunn uten erstatning og å delta i opparbeidelsesomkostningene. Festeren har til enhver tid forkjøpsrett til grunnen.
1971/21788-3/105 13.12.1971 BESTEMMELSE OM BEBYGGELSE
Forbud mot generende bedrift
Bestemmelse om gjerde
Heftelser på gnr. 181 bnr. 350 (hovedbøl):
1952/6503-1/105 03.06.1952 BESTEMMELSE OM VEG
Regulering av areal i forbindelse med veggrunn/jernbanegrunn
Bestemmelse om gjerde
Eieren av tomta (gnr. 181, bnr. 350) forplikter seg til å opparbeide veiene med kloakk langs tomta i inntil 8 meters bredde, inkludert fortau og kloakk, når Oslo kommune måtte forlange det. Inntil dette er gjort, overtar grunneieren veienes vedlikehold. Eventuell grunnervervelse må skje uten utgift for kommunen.
1952/12329-1/105 14.10.1952 BESTEMMELSE OM VEG
Bestemmelse om kloakkledning
Regulering av areal i forbindelse med veggrunn/jernbanegrunn
Bestemmelse om gjerde
Eieren av tomta (gnr. 181, bnr. 350) forplikter seg til å opparbeide veiene med kloakk langs tomta i inntil 8 meters bredde, inkludert fortau og kloakk, når Oslo kommune måtte forlange det. Inntil dette er gjort, overtar grunneieren veienes vedlikehold. Eventuell grunnervervelse må skje uten utgift for kommunen.
1952/14472-1/105 27.11.1952 BEST. OM VANN/KLOAKKLEDN.
Med flere bestemmelser
GJELDER DENNE REGISTERENHETEN MED FLERE
Salg av deler av eiendommen Brattvoldveien 30-36 og 36b tillates ikke før det til Oslo vann- og kloakkvesen er sendt inn nødvendige tinglyste erklæringer vedrørende felles vann-, kloakk- og drensledninger, eller at nødvendige omlegginger er foretatt for å oppheve fellesskapet. Heftelsen kan ikke avlyses uten samtykke fra Oslo vann- og kloakkvesen.
1952/14473-1/105 27.11.1952 ERKLÆRING/AVTALE
Vedtak av Oslo kommunes vann- og kloakkreglement
GJELDER DENNE REGISTERENHETEN MED FLERE
Eier forplikter seg til å følge Oslo kommunes vann- og kloakkreglement. Dette innebærer blant annet meldeplikt før arbeid, at kommunen har rett til inspeksjon, og ansvar for skader ved ureglementert bruk. Heftelsen kan ikke avlyses uten samtykke fra vann- og kloakkvesenet.
1952/15231-1/105 11.12.1952 ERKLÆRING/AVTALE
Vedtak av Oslo kommunes vann- og kloakkreglement
Eier forplikter seg til å følge Oslo kommunes vann- og kloakkreglement. Dette innebærer blant annet meldeplikt før arbeid, at kommunen har rett til inspeksjon, og ansvar for skader ved ureglementert bruk. Heftelsen kan ikke avlyses uten samtykke fra vann- og kloakkvesenet.
1953/13822-1/105 19.10.1953 BEST. OM VANN/KLOAKKLEDN.
Med flere bestemmelser
GJELDER DENNE REGISTERENHETEN MED FLERE
Eieren av gnr. 181 bnr. 350 gir eieren av gnr. 181 bnr. 339 rett til å føre kloakk- og vannledning over sin eiendom, med adgang til nødvendig reparasjon og ettersyn. Eierne er solidarisk ansvarlige for vedlikehold av felles ledninger. Heftelsen kan ikke avlyses uten samtykke fra Oslo vann- og kloakkvesen.
1965/157-1/105 06.01.1965 BESTEMMELSE OM GJERDE
Bestemmelse om vann/kloakkledning
Kan ikke slettes uten samtykke fra bygningsrådet
Med flere bestemmelser
Ved deling av eiendommen (gnr. 181 bnr. 350) har eierne av de nye parsellene gjensidig rett til gesims, takfall og atkomst for vedlikehold. Det er rett til kjøreatkomst over foranliggende parseller. Eiendommen skal fremstå som en enhet uten gjerder mellom parsellene. Eierne har gjensidig rett til å føre vann- og kloakkledninger over de øvrige deler og er felles ansvarlige for vedlikehold av fellesanlegg. Erklæringen kan ikke avlyses uten bygningsrådets samtykke.
1965/12994-1/105 22.09.1965 BEST. OM VANN/KLOAKKLEDN.
RETTIGHETSHAVER: KNR: 0301 GNR: 181 BNR: 390
Med flere bestemmelser
Kan ikke slettes uten samtykke fra kommunen
GJELDER DENNE REGISTERENHETEN MED FLERE
Eiere av gnr. 181, bnr. 350 og 389 gir eieren av gnr. 181, bnr. 390 rett til å føre vann- og kloakkledning over gnr. 181 bnr. 350, med adgang til nødvendig reparasjon og ettersyn. Heftelsen kan ikke avlyses uten samtykke fra Oslo Vann- og Kloakkvesen.
1975/21635-1/105 10.12.1975 BESTEMMELSE OM BEBYGGELSE
Forbud mot generende bedrift
Bestemmelse om gjerde
Servituttene vil følge eiendommen. Kjøpers bank vil få prioritet etter ovennevnte heftelser og servitutter.
Eventuell adgang til utleie
Eiendommen har ikke separat utleieenhet. Det vil normalt være anledning til utleie av hele eiendommen eller enkeltrom, såfremt utleiearealet er bygningsmessig godkjent for varig opphold og har forsvarlige radonnivåer.
Beliggenhet og tomteforhold
Beliggenhet og tomteforhold
Beliggenhet
Brattvollveien 30C ligger tilbaketrukket og rolig til, med grøntområdet Leirskallbråten som nærmeste nabo. Herfra kan du følge turstier rett inn i skogen for en løpetur etter jobb eller en helgetur med familien. Dette er et etablert og rolig nabolag preget av rekkehus og eneboliger, som kombinerer kort vei til marka med nærhet til byens fasiliteter.
Hverdagslogistikken er enkel med flere barnehager og skoler i umiddelbar nærhet. Munkerud skole ligger kun en kort spasertur unna, og det er gangavstand til både Munkerud miljøbarnehage og Munkerudsletta barnehage. For dagligvarehandel finnes blant annet Kiwi Nordstrand innenfor en ti minutters gange, mens Lambertseter Senter og Sæter Torg er en kort kjøretur unna for et bredere utvalg av butikker og tjenester.
Området byr på et rikt utvalg av fritidsaktiviteter. I tillegg til marka utenfor døren, er det kort vei til Ekebergsletta med sine store friområder og Ekebergparken skulpturpark. Om sommeren er det en kort sykkeltur ned til Oslofjorden med badeplasser som Nordstrand Bad og Sydstranda. For den som pendler, er det cirka fem minutter med bil til Nordstrand stasjon, hvor toget tar deg til Oslo S på under ti minutter.
Beskrivelse av tomt
Festetomt på 376 kvm. Tomten er opparbeidet med steinheller, terrasse på terreng, diverse støttemurer, plenarealer og beplantninger. Festeavgiften er kr 91,- per år. Festetiden er 99 år fra 17.03.1953. Grunneier er Kristian Gjølberg. Oppgitt tomteareal er hentet fra eiendomsregisteret i Oslo kommune. Oppgitt/anslått areal kan derfor avvike fra nøyaktig areal.
Parkering
Gateparkering etter områdets bestemmelser. Det er mulighet for el-lading via stikkontakt (10amp., egen sikring) montert på gjerdet ut mot gata.
Vei, vann og avløp
Eiendommen har adkomst via privat vei med tinglyst veirett og felles vedlikeholdsansvar. Eiendommen er tilknyttet kommunal vannledning via private stikkledninger. Eier er selv ansvarlig for private stikkledninger til boligen. Eiendommen har privat septiktank. Kommunen har en generell hjemmel til å kreve at eiendommer med privat septiktank kobler seg til det offentlige avløpsnettet. Kontakt megler for ytterligere informasjon.
Regulerings-og arealplaner
Eiendommen er regulert til byggeområde for boliger i henhold til reguleringsplan S-4220, «Reguleringsplan for småhusområder i Oslos ytre by (Småhusplanen)», vedtatt 15.03.2006, med tilhørende reguleringsbestemmelser. Hele eiendommen på 376 m² er regulert til bolig (feltnavn: 110 - Bolig m.tilh. anlegg).
Eiendommen omfattes av Kommuneplan 2015-2030, vedtatt 23.09.2015. Arealbruken er i planen avsatt til bebyggelse og anlegg, eksisterende.
Eiendommen er regulert etter reguleringsplan S-4220 «Småhusplanen», vedtatt 15.03.2006. Kommunal- og distriktsdepartementet (KDD) har avgjort å ikke godkjenne revidert småhusplan for Oslo kommune. Begrunnelsen er at planen ikke oppfyller krav til vurdering av flom- og skredfare. Det er midlertidig forbud mot tiltak i de aktuelle områdene (saksnummer 202304720 hos PBE). Forbudet gjelder fram til ny plan er vedtatt. I områder omfattet av midlertidig forbud mot tiltak kan man ikke gjennomføre tiltak etter Plan- og bygningsloven uten at tiltakene eksplisitt er unntatt fra forbudet.
Det er per d.d. ingen kjente plan- eller byggesaker med direkte innvirkning på eiendommen. Opplistingen er ikke uttømmende og interessenter bes sette seg inn i planinnsyn på Oslo Kommune sine hjemmesider.
Utsnitt av plan med tilhørende bestemmelser kan fås ved henvendelse til megler.
Økonomi
Økonomi
Kommunale utgifter
Kommunale avgifter er kr 21 954,44 for 2026. I dette inngår gebyr for vann, avløp, renovasjon og feiing/tilsyn.
Eiendommen har privat avløpsløsning med felles septiktank, men er tilknyttet offentlig vannverk.
Nåværende eier har et strømforbruk som tilsvarer ca. 25 782 kWh pr. år. Totale strømkostnader for 2025, inkludert nettleie, var på ca. kr 23 566,-.
Selger har avtalt Norgespris på strøm på eiendommen fra og med januar 2026, og denne er pt på kr 50 øre inkl mva. Nettleie, avgifter og påslag fra kraftleverandøren kommer i tillegg.
Denne avtalen vil følge eiendommen i den avtalte perioden.
Les mer om Norgespris her: https://www.regjeringen.no/no/aktuelt/legg-fram-lov-om-norgespris-pa-straum-og-fjernvarme/id3102642/
Boligen er tilknyttet Telia (Bredbånd 500) som leverandør av kabel-tv og internett og koster kr 1 546,- pr. mnd. Tv-tuner/dekoder medfølger ikke.
Eiendomsskatt for 2026 utgjør kr 3 166,-.
Utgiftene er basert på nåværende eiers forbruk og avtaler.
Formuesverdi
Ved hjelp av skatteetatens boligkalkulator er boligens formuesverdi beregnet til kr. 2 740 882 for fjoråret når boligen benyttes som primærbolig.
Formuesverdien er en gitt prosent av den beregnede markedsverdien. Beregnet markedsverdi er basert på Statistisk sentralbyrå (SSB) sine opplysninger om omsatte boliger. I beregningen tas det hensyn til boligens beliggenhet, areal, byggeår og boligtype.
Det er eier av boligen som fastsetter formuesverdien, jf. skatteforvaltningsloven § 9-1 første ledd, men skattemyndighetene kan kontrollere at verdien er satt riktig.
Formuesverdi skal ikke overstige:
Primærbolig: 25 % av beregnet eller dokumentert markedsverdi opp til kr. 10 000 000, og deretter 70 % av den overskytende markedsverdi.
Sekundærbolig: 100 % av beregnet eller dokumentert markedsverdi.
Formuesverdier som overstiger disse grensene, kan kreves nedjustert av eier.
Fra 2026 har Stortinget vedtatt en oppdatert modell for beregning av formuesverdi for primærbolig, så avvik kan forekomme.
For mer informasjon se skatteetaten.no
Omkostninger
8 500 000,00 Prisantydning
Omkostninger
212 500,00 Dokumentavgift til staten (2,5% av kjøpesum)
19 900,00 Gjensidige Boligkjøperpakke* (valgfritt)
545,00 Tinglysing panterettsdokument
545,00 Tinglysing skjøte
--------------------------------------------------------
213 590,00 (Omkostninger totalt (uten Gjensidige Boligkjøperpakke))
233 490,00 Omkostninger totalt (med Gjensidige Boligkjøperpakke))
--------------------------------------------------------
8 713 590,00 Totalpris inkl. omkostninger
8 733 490,00 Totalpris inkl. omkostninger (med Gjensidige Boligkjøperpakke)
--------------------------------------------------------
Betalingsbetingelser
Kjøpesum inkludert omkostninger, samt pantedokument tilknyttet eventuelt lån, skal være disponibelt hos megler 2 virkedager før overtagelsen.
Annen viktig informasjon
Annen viktig informasjon
Eier
Camilla Birkevold og Olav Ramstad Birkevold Thelle
Overtakelse
Etter nærmere avtale.
Boligselgerforsikring
Selger har i forbindelse med salget tegnet boligselgerforsikring levert av Gjensidige.
Boligselgerforsikringen dekker selgers ansvar etter avhendingsloven begrenset oppad til kr 14 millioner. Dersom kjøper oppdager forhold ved eiendommen som hen mener utgjør en mangel ved eiendommen, vil Gjensidige behandle reklamasjonen på vegne av selger. Forsikringsvilkår kan fås ved henvendelse til megler.
Vedlagt salgsoppgaven følger selgers egenerklæringsskjema og tilstandsrapport. Interessenter må sette seg inn i dokumentene før bud inngis.
Boligkjøperforsikring
Innen kontraktsmøtet må kjøper ta stilling til om det ønskes å bestille Boligkjøperpakken gjennom Gjensidige. I denne gunstige pakken er boligen ferdig forsikret og inkluderer rettshjelpsforsikring, også kalt Boligkjøperforsikring. Rettshjelpsforsikring gir trygghet og tilgang på profesjonell juridisk hjelp dersom det oppdages uventede feil eller mangler det første året etter overtagelse. Forsikringsselskapet behandler i så fall ethvert mangelskrav kjøper måtte ha overfor selger.
Boligkjøperpakken inkluderer bygningsforsikring for hus og hytte, innboforsikring, flytteforsikring og dobbel rentedekning - i situasjoner hvor kjøper ikke får solgt nåværende primærbolig.
Kjøper mottar ingen særskilt faktura for Boligkjøperpakken da kostnaden det første året legges til kjøpesummen for boligen. Det gjøres oppmerksom på Krogsveen mottar et honorar for denne formidlingen.
Produktark for Boligkjøperpakken ligger vedlagt i salgsoppgaven.
Dersom ikke boligkjøperpakke ønskes kan kun rettshjelpsforsikring, også kalt boligkjøperforsikring, tegnes særskilt via megler. Rettshjelpsforsikringen varer i 5 år fra overtagelse og leveres gjennom Gjensidige. Ta kontakt med megler for ytterligere informasjon.
Selskap og privatpersoner som driver med kjøp/salg/utvikling som ledd i egen næringsvirksomhet kan ikke tegne boligkjøperpakke eller rettshjelpsforsikring.
Budgivning
Forbrukerinformasjon om budgivning er vedlagt denne salgsoppgaven og er også på vår hjemmeside Krogsveen.no. Alle bud og budforhøyelser må inngis skriftlig. I tillegg må legitimasjon være fremlagt sammen med signatur fra budgiver.
Vi oppfordrer til å gi bud elektronisk via GI BUD-knappen på eiendommens hjemmeside på Krogsveen.no. Da vil samtlige vilkår bli oppfylt.
Eventuelle forhøyelser eller endringer av budet kan bekreftes pr SMS eller på e-post. Vi oppfordrer alltid til å kontakte megler pr. telefon i tillegg da forsinkelser i SMS og e-post kan forekomme.
For at budene skal kunne bli behandlet og videreformidlet skriftlig til alle involverte parter, må alle bud ha en tilstrekkelig lang akseptfrist, jf. eiendomsmeglingsforskriften § 6-3.
Selger må også skriftlig akseptere budet før aksept kan formidles til budgiver. Akseptfrist bør derfor være på minimum 30 minutter, og budforhøyelser må derfor skje i god tid før fristens utløp.
Bud i forbrukerforhold kan uansett ikke settes med kortere frist enn kl. 12.00 første virkedag etter siste annonserte visning. I tillegg kan ikke budet ha forbehold om at det skal holdes hemmelig ovenfor øvrige interessenter. Megler har iht lov om eiendomsmegling ikke anledning til å videreformidle disse budene, og de vil dermed heller ikke bli journalført.
Etter at eiendommen er solgt vil kjøper og selger få tilsendt budjournal. Øvrige budgivere kan få utlevert kopi av budjournalen i anonymisert form.
Hvitvaskingsreglene
I henhold til lov om hvitvasking og terrorfinansiering har megler plikt til å gjennomføre kontrolltiltak overfor kunder, herunder fullmektiger. Dette innebærer bl.a. å bekrefte kunders og reelle rettighetshaveres identitet på bakgrunn av fremvist gyldig legitimasjon eller på annen godkjent måte, samt å innhente opplysninger om kundeforholdets formål og tilsiktede art.
Dersom slike kundetiltak ikke kan gjennomføres, kan megler ikke etablere kundeforholdet eller utføre transaksjonen.
Hvis kjøper ikke bidrar til gjennomføring av kundekontrollen og dette fører til at transaksjonen blir forsinket eller ikke kan gjennomføres, vil dette ansees som mislighold av avtalen og gi selger rettigheter etter avhendingslova kapittel 5. I tilfeller der selger ikke bidrar til gjennomføring av løpende kundekontroll underveis i oppdraget, er det selger som misligholder sine forpliktelser etter avtalen og gi kjøper rettigheter etter avhendingslovens kapittel 4. Partene er selv ansvarlige for eventuelle kostnader og ansvar dette kan medføre. Eiendomsmegleren eller eiendomsmeglingsforetaket kan ikke holdes ansvarlig for de konsekvenser dette vil kunne få for partene eller andre som har interesser i eiendomshandelen.
Kjøper oppfordres til å innbetale kjøpesummen som ikke kommer fra låneinstitusjon i én samlet innbetaling fra egen konto i norsk bank. Megler har plikt til å melde fra til Økokrim om eiendomshandler som fremstår som mistenkelige. Melding sendes Økokrim uten at partene varsles.
Personopplysningsloven
I henhold til personopplysningsloven gjør vi oppmerksom på at interessenter kan bli registrert for videre oppfølging.
Lovanvendelse
Generelle bestemmelser
Salgsoppgaven er basert på de opplysningene selger har gitt til megler, den bygningssakyndiges tilstandsrapport, samt opplysninger innhentet fra kommunen, Kartverket og andre tilgjengelige kilder. Det er viktig at kjøper setter seg grundig inn i alle salgsdokumentene, herunder salgsoppgave, tilstandsrapport og selgers egenerklæring. Kjøper anses kjent med forhold som er tydelig beskrevet i salgsdokumentene, og slike forhold kan ikke påberopes som mangler. Dette gjelder uavhengig av om kjøper har lest dokumentene. Alle interessenter oppfordres til å undersøke eiendommen nøye, gjerne sammen med fagkyndig før bud inngis. Kjøper som velger å kjøpe usett kan ikke gjøre gjeldende som mangel noe han burde blitt kjent med ved undersøkelsen.
Dersom det er behov for avklaringer, anbefaler vi at interessenter rådfører seg med eiendomsmegler eller egne rådgivere før det legges inn bud.
En bolig som har blitt brukt i en viss tid, har vanligvis blitt utsatt for slitasje og skader kan ha oppstått. Slik bruksslitasje må kjøper regne med, og det kan avdekkes enkelte forhold etter overtakelse som nødvendiggjør utbedringer. Normal slitasje og skader som nødvendiggjør utbedring, er innenfor hva kjøper må forvente og vil ikke utgjøre en mangel.
Kjøper og selgers rettigheter og plikter reguleres av avtalen mellom partene, samt informasjonen som har vært tilgjengelig for kjøperen i forbindelse med handelen. Avtalen utfylles av avhendingsloven, og det gjelder ulike avtalevilkår avhengig av om kjøper er forbrukerkjøper eller ikke. Dette er nærmere beskrevet nedenfor.
På grunn av ulike avtalevilkår kan selger vurdere bud fra en som ikke er forbruker, ulikt fra en forbrukers bud. Dersom kjøper ikke er forbruker, er selger sitt mulige mangelsansvar begrenset fordi eiendommen selges "som den er". Selger kan ikke ta «som den er»- forbehold overfor en forbrukerkjøper. Selv et lavere bud fra en som ikke er forbruker kan foretrekkes fordi begrensningen i mulig mangelsansvar kan ha egenverdi for selger. Selger står fritt til å forkaste eller akseptere ethvert bud, og er for eksempel ikke forpliktet til å akseptere høyeste bud.
Budgiver skal i budskjema avgi egenerklæring om budgiver er forbruker eller næringsdrivende/ person som hovedsakelig handler som ledd i næringsvirksomhet. Budgivere får informasjon dersom andre bud er inngitt av en som ikke er forbruker.
Forbrukerkjøp - definisjon
Med forbrukerkjøp menes kjøp av eiendom når kjøperen er en fysisk person som ikke hovedsakelig handler som ledd i næringsvirksomhet.
Forbruker – avtalevilkår
Eiendommen har en mangel dersom den ikke er i samsvar med kravene som følger av avtalen, eller det foreligger brudd på bestemmelsene i avhendingsloven §§ 3-2 til 3-8. Hvis eiendommen ikke er i samsvar med det kjøperen må kunne forvente ut ifra alder, type og synlig tilstand, kan det være grunnlag for mangelskrav. Det samme gjelder hvis det er holdt tilbake eller gitt uriktige opplysninger om eiendommen. Dette gjelder likevel bare dersom man kan gå ut ifra at det virket inn på avtalen at opplysningen ikke ble gitt eller at mangelskravet ikke blir rettet i tide på en tydelig måte.
Boligen kan ha en mangel etter avhendingsloven § 3-3 andre ledd, dersom det er avvik mellom opplyst og faktisk innvendig areal, forutsatt at avviket er på 2% eller mer og minimum 1 kvm.
Ved beregning av et eventuelt prisavslag eller erstatning må kjøper selv dekke tap/kostnader opptil et beløp på kr 10 000 (egenandel).
Ikke-forbruker (næringsdrivende) – definisjon
Hvis kjøper er en juridisk person, eller en fysisk person som hovedsakelig handler som ledd i næringsvirksomhet, vil kjøpet ikke anses som et forbrukerkjøp.
Ikke-forbruker – avtalevilkår
Eiendommen har en mangel dersom den ikke er i samsvar med kravene som følger av avtalen.
Eiendommen selges «som den er», og selgers ansvar utover det konkret avtalte er da begrenset etter avhendingsloven § 3-9, første ledd andre setning.
Avhendingsloven § 3-3 andre ledd fravikes, og hvorvidt boligens arealsvikt utgjør en mangel vurderes etter avhendingsloven § 3-8.
Informasjon om kjøpers undersøkelsesplikt, herunder oppfordringen om å undersøke eiendommen nøye, gjelder også for kjøpere som ikke anses som forbrukere.
Det forutsettes at hjemmel overføres til kjøper. Hvis kjøper ikke ønsker hjemmelsoverføring av eiendommen, må det tas forbehold om dette i budet.
Meglers vederlag
Vi er opptatt av verdiskapning, og har knyttet til oss samarbeidspartnere som skal sikre våre kunder de beste produkter og tjenester;
• I forbindelse med forberedelse av salget, innhenter vi informasjon om eiendommen hovedsakelig fra vår samarbeidspartner Ambita.
• Gjensidige leverer boligselgerforsikring og tilbyr bygningsforsikring
• Boligkjøperforsikring leveres av Hiscox og med Sedgwick som skadebehandler, og er formidlet gjennom Gjensidige.
• BN bank tilbyr finansieringsløsninger
• Vår avdeling Krogsveen Pluss tilbyr flyttetjenester som utvask, visningsvask, lager, tømming og transport av flyttelass, i tillegg til å formidle kontakt med Flip for overflateoppussing.
• I forbindelse med overtagelse av eiendommen tilbyr Overo avtale om strøm, alarm og bredbånd.
• Krogsveen er, sammen med øvrige bransjeaktører, medeier i den digitale annonseringsplattformen Hjem som eies av Bomega AS.
Meglers vederlag betales av selger og er avtalt til:
Vederlag: 0,80 % av salgssummen.
Vederlag:
Kontroll av hjemmel og heftelser kr 4 500,00
Markedsføringspakke kr 31 900,00
Oppgjør kr 8 900,00
Tilrettelegging - inkludert visninger kr 19 900,00
Utlegg:
Innhenting av offentlig opplysninger Oslo kommunale avgifter kr 265,00
Innhenting av offentlig opplysninger, reguleringsbestemmelser kr 1 150,00
Tinglysing sikring kr 545,00
Andre utgifter:
AX tilstandsrapport kr 17 500,00
Boligselgerforsikring Gjensidige Eiet - regnes av prisantydning kr 54 245,00
Foto - kveldsfoto kr 4 900,00
Foto kr 5 900,00
Opplysninger om oppdraget
Oppdragsnummer 44-0050/26
Eiendomsmegler Krogsveen AS, avd. Nordstrand
Ekebergveien 228 B, 1162, OSLO
950 007 613
Oppdragets KR-kode KR44.2650
Dato
Sist oppdatert: 24. april 2026 kl. 12:06
Dokumenter
Dokumenter
PDF – 975 KB
PDF – 166 KB
PDF – 6 MB
PDF – 6 MB
PDF – 312 KB
PDF – 29 KB
PDF – 127 KB
PDF – 392 KB
Område
Legg til steder som er viktige for deg
Visning
For å delta på visning, ber vi om at du melder deg på. Da sikrer vi at du får nødvendig informasjon og at det er satt av tilstrekkelig med tid. Kontakt megler dersom annet tidspunkt ønskes. Husk å lese salgsoppgaven før visningen, så du stiller forberedt.
Ønsker du kun å bli holdt orientert, kan du fra eiendommens hjemmeside få varsel om solgtpris, eller kontakte megler.
Lurer du på noe?
Unngå doble boligrenter
Vi tilbyr gunstig forsikring.
Vurderer du utleie?
Få et tilbud fra Utleie KrogsveenHva koster lånet?
Sjekk estimert lånekostnadVil du varsles om lignende boliger?
Ved å lagre ditt boligsøk hos oss får du beskjed når vi har en bolig som ligner denne, før den legges ut på markedet!




















































































