Plassen 16
6 490 000 kr
217 m²
3 soverom
Komplett salgsoppgave
Sætre
Flott enebolig i koselige omg. - Utsikt mot Øvredammen - Dbl. garasje - Hybel i u.etg
Prisantydning
6 490 000 krOmkostninger
183 240 krTotalpris
6 673 240 kr
Pris
Bruksareal
267 m²BRA-I (internt bruksareal)
217 m²BRA-E (eksternt bruksareal)
50 m²TBA (terrasse-balkongareal)
74 m²
Areal
Byggeår
1954Soverom
3 soveromBad
2 badTomteareal
1 235 m² (eiet)Type
Enebolig - FrittliggendeEierform
EietFasiliteter
Garasje/P-plass og Balkong/TerrasseEnergimerke
Gul G
Nøkkelinfo
Unngå doble boligrenter
Vi tilbyr gunstig forsikring.
Vurderer du utleie?
Få et tilbud fra Utleie KrogsveenHva koster lånet?
Sjekk estimert lånekostnadBeskrivelse
Kort om eiendommen
Velkommen til Plassen 16!
Pen og romslig enebolig med god planløsning og et flott uteareal. Flott overbygget terrasse med Jacuzzi. God beliggenhet i Sætre med gangavstand til det du skulle trenge til dagliglivet i Sætre sentrum. Integrert dobbelgarasje og gode oppbevaringsmuligheter. Flat og flott hage og utsikt mot Øvredammen.
- Bygget i 1954, huset ble renovert og påbygget i 99/2000 - 2.etg påbygget helt i 2000
- Utvendig kledning, tak, drenering og vinduer fra 99/2000
- Vannbåren varme i u.etg og 1.etg
- Hybel i u.etg - utleid for 8.000,- + strøm
- Dobbel garasje
- Lettstelt, praktisk og pent opparbeidet tomt på 1235 kvm
- Flotte terrasser
- Kort vei til Oslofjorden
Dør mellom hybel og hovedhuset kan etableres så hele u.etg kan lett inkluderes inn i hovedenheten
Innhold og byggemåte
Innhold og byggemåte
Eiendommen
Plassen 16, 3475 SÆTRE
Kommunenummer 3203, gårdsnummer 357, bruksnummer 171, ideell andel 1/1
Innhold
Totalt bruksareal BRA: 267 kvm
BRA-i:
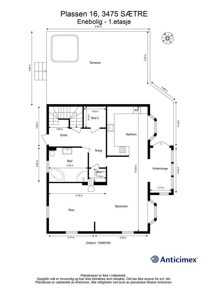
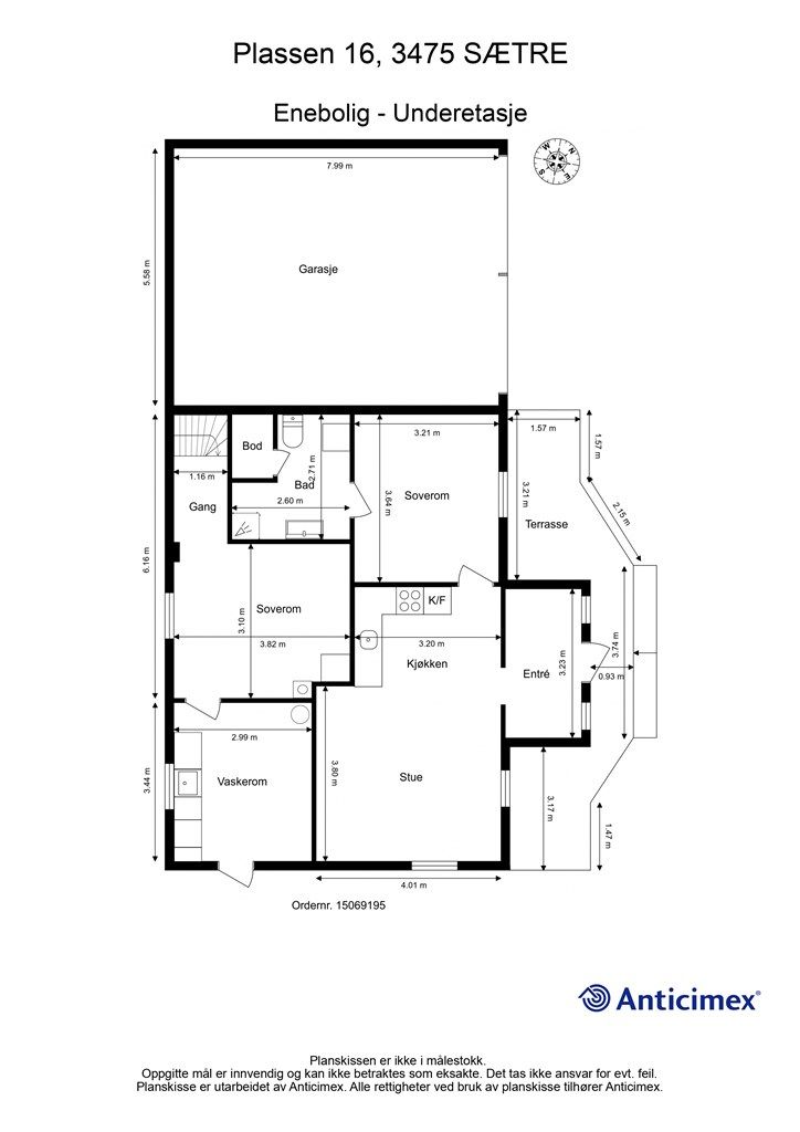
Underetasje: 79 kvm: Entre, stue med åpen kjøkkenløsning, bad, vaskerom, to soverom og gang.
1. etasje 95 kvm: Entre, gang, bad, spisestue med åpen kjøkkenløsning, stue, vinterhage og to boder.
2. etasje 43 kvm: Gang, bad og to soverom.
BRA-e:
Underetasje: 50 kvm: Tilstøtende dobbelgarasje.
Åpent areal:
Underetasje: 16 kvm: Platting
1. etasje 58 kvm: Terrasse
Arealer bak knevegger og lignende (som ikke er måleverdige) er ikke medtatt som areal med lav himlingshøyde (ALH). Se mer utfyllende informasjon i rapportens premisser om areal.
Vedlagte plantegninger er ikke målbare. De oppgitte arealer er hentet fra rapport med befaringsdato 29.04.2025 utført av Rune Nielsen. Arealene er beregnet og rom er definert etter dagens faktiske bruk, uavhengig av hva som er godkjent av bygningsmyndighetene. Se punkt ferdigattest angående rommene i underetasjen med tanke på hva de er godkjent til.
Bod i kjeller på bad ikke målbar grunnet lav takhøyde.
Byggemåte
Selger har fått utarbeidet en tilstandsrapport, dvs. en teknisk gjennomgang av boligen hvor eventuelle avvik, risiko for kjøper og prisoverslag for hva som bør gjøres av oppgradering, er skissert. Se særskilt TGIU (tilstandsgrad ikke undersøkt), samt TG2 og TG3 som viser hva som er boligens normale slitasje, alder og type, hva som er avvik fra dette og hva som bør/må utbedres. Rapporten og selgers egenerklæring er en del av salgsoppgaven og må leses nøye før bud inngis. Kjøper overtar ansvaret for de opplysninger som fremkommer av salgsdokumentasjonen, og kan ikke gjøre gjeldende som mangel noe som burde vært kjent eller som ikke kan anses å ha betydning for avtalen.
Bygningen er iht. tilstandsrapporten oppført med grunnmur og gulv mot grunn av betong/stein. Etasjeskillere av lettklinker og trekonstruksjoner. Yttervegger av trekonstruksjoner med liggende trekledning. Yttertak med saltakform av trekonstruksjon tekket med takstein. Ytterdør med glassfelt. Vinduer og terrassedører med to-lags glass og karmer/rammer av tre. Les forøvrig mer om byggemåte og den tekniske tilstanden i rapporten.
Det gjøres spesielt oppmerksom på punkter som har fått tilstandsgrad 2:
-På bad i 1.etg: Sluk, grunnet at den ligger under badekar og har vanskelig tilkomst. Innredning, grunnet drenering fra innebygget sisterne ikke er registrert. Overflater vegger, grunnet elastiske fuger har stedvis manglende vedheft. Overflater gulv, grunnet elastiske fuger har delvis manglende vedheft. Membran, grunnet uoversiktlig utførelse.
- På bad i underetasje: overflater vegger, grunnet svertesopp på elastiske fuger. Overflater gulv, grunnet elastiske fuger delvis har manglende vedheft. Membran, grunnet alder.
På vaskerom: Tilluftsspalte ikke er etablert. Vannrør, grunnet at det ikke er kursoversikt over rør-i-rør system. Overflater gulv, grunnet riss / sprekker i flisfuger, elastiske fuger har stedvis manglende vedheft, påvist aktivitet av maur og det registreres moderate tegn til bomlyd under enkelte fliser. Membran, grunnet alder. Det er ikke mulig å verifisere om slukmansjett og klemring er benyttet. Tettedetaljer tilknyttet strømkabel til bereder er usikker. Hultaking er ikke utført.
- På bad i 2.etg: Overflater vegger, grunnet sprekker i flisfuger i dusjsonen observert. overflater gulv, grunnet elastiske fuger har stedvis manglende vedheft. Membran, grunnet alder. Det er ikke mulig å verifisere om slukmansjett og klemring er benyttet. Tettedetaljer tilknyttet strømkabel til bereder er usikker. Tettedetaljer ved rørgjennomføring tilknyttet servant er usikker.
- På kjøkken 1.etg: Vannrør, grunnet de ikke er plugget mot varerør. Det er ikke automatisk lekkasjestopper. Overflater gulv, grunnet de bærer preg av slitasje.
- På kjøkken i underetasje: Ventilasjon, grunnet det kun er kullfilter. Vannrør, grunnet de ikke er plugget mot varerør. Overflater gulv, grunnet stedvis riper / hakk og store glipper i skjøter. Innredning, grunnet det er observert avflassing på flater og manglende håndtak på overskap. Stedvis riper i benkeplate.
- I øvrige rom i 1.etg: Overflater himling, grunnet det trenger overflatebehandling. Overflater vegger, grunnet vegg inn i bod er montert skjeft. Overflater gulv, grunnet stedvis skader i gulvoverflate. Innerdører, grunnet preg av slitasje. Dørblad til innerdør ved kjellertrapp og boder har kontakt med dørterskel.
- I øvrige rom 2.etg: Overflater vegger, grunnet sprekker ved vindu i trapp. Innfelte / gjennomgående installasjoner, grunnet det ikke inspisert av dowlights i himling. Innerdører, grunnet dørbladet til dør ved soverom 2 har kontakt med dørterskel.
- I rom under terreng: Spesielle observasjoner, da det er observert maur. Overflater vegger, grunnet misfarging/svertesopp påvist i entre til leilighet og det registreres moderate tegn til bomlyd under enkelte fliser. Innerdører, grunnet enkelte har skader/slitasje.
- Overflater gulv på loft, grunnet spor etter aktivitet av gnagere/mus.
- Innvendig trapper, grunnet trappen ned til underetasje har ingen håndløpere og knirker.
- Vannrør i tekniske anlegg, grunnet fordelerskap for rør-i-rør systemet plassert i bod har ikke etablert mulighet for avrenning til sluk. Det er observert rust i bunnen av skapet.
- Det er ikke foretatt radonmåling.
- Elektisk anlegg, grunnet det ikke er fremlagt samsvarserklæring.
- yttervegger, grunnet det ikke er luftspalte bak trekledning. Panel under karnapp er løs.
- På yttertak: Tekking, grunnet brekkasje på enkelte stein i gradrenner. Overgang mellom tak og vegg over inngangsparti leilighet er vurdert til å ha mangelfulle tettedetaljer og mangler kledningsbord over beslag. Beslag, renner, nedløp og snøfangere, grunnet registrert utett beslagsløsning på ende av gesimskasser i gavelvegg mot terrasse.
Terrasse over innvendige rom, grunner rekkverkshøyden er under 1meter. Det registreres moderate tegn til bomlyd under enkelte fliser i gang.
- Nord-østvendt platting, grunnet slitasje/sprekker.
- Utvendige trapper, grunnet skjevheter.
- Fundamenter / grunnmur, grunnet riss/sprekker på grunnmur ved enkelte vinduer og ved nedløp på baksiden av boligen. Det mangler skifer og er utett løsning på trapp mot kjellervindu.
- Drenering, grunnet vann fra yttertak ikke er ledet vekk fra grunnmuren.
Forstøtningsmur, grunnet skjevheter og sprekker som er påvist.
Se utfyllende tekst i rapporten.
Selger opplyserom i egenerklæringsskjema at:
- En flis på vegg i leilighet er fjernet (bad).
- Det er noe fukt i garasjen
- I tak overbygd terassetak er det utettheter.
- Gammelt singeltak ble fjernet , og nytt membrantak propan ble lagt og sveiset. - Utført av Asker håndverksservice , Karl Torheim.
- Det er ikke søkt bruksendring på leilighet.
Se utfyllende tekst i egenerklæringsskjema.
Standard
Kjøkken:
Pent kjøkken fra 2000 med profilerte fronter og mørk eikenøtt farge. God og åpen planløsning mot spisestue, med romslig plass til spisebord. Kjøkkenet er innredet med under- og overskap for god plass til oppbevaring og har integrert stekeovn, platetopp, dampkoker, oppvaskmaskin og kjøleskap med fryser. Gulvet er lagt med pen parkett, vegger med tapet og himling med malt panel. Det gjøres oppmerksom på at hvitevarene er kjøpt for noen år tilbake, og kjøper må forvente slitasje som følge alder og normal bruk.
Kjøkken i underetasje:
Kjøkken fra 2000 med glatte fronter. Kjøkkenet er i en åpen planløsning sammen med stue og er utstyrt med frittstående hvitevarer som komfyr, kjøleskap med fryser og oppvaskmaskin. Det er under- og overskap for praktisk oppbevaring er kjøkkenutstyr og ellers plass til spisebord.
Det er ingen hvitevarene som medfølger på dette kjøkkenet.
Stue:
Pen og luftig stue med plass til sofagruppe og tv-seksjon. Rommet har en åpen planløsning mot spisestue og kjøkken. Fin peisovn sentralt i stuen som varmer godt om vinteren. Downlights i himling som gir god belysning i hele rommet.
Soverom:
Boligen kommer med 3 soverom av god størrelse med plass til garderobeskapsløsning. Rommene er delvis fordelt med 2 soverom i 2.etg og 1 i underetasjen.
Bad i 2.etg:
Bad fra år 2000 lagt med fliser med gulvvarme og flislagte vegger. Det er vegghengt servantinnredning med skuffer og skap med god plass til oppbevaring. Over servanten er det speil med overlys. Ellers downlights i tak som sørger for god belysning av rommet og dusjhjørne med glassdør.
Bad i 1.etg:
Romslig bad fra år 2000 med flislagt gulv med gulvvarme og flislagte vegger. Rommet er innredet med vegghengt servantinnredning med skuffer og skap med god plass til oppbevaring. Det er badekar i hjørnet av badet og dusjhjørne med glassvegger.
Vaskerom i underetasje:
Smart løsning med vaskerom i underetasje med opplegg for vaskemaskin og innredet servant og oppbevarings muligheter. Rommet har ellers et inngangsparti som går ut til uteareal på tomten.
Bad i underetasje:
Flislagt bad med gulvvarme i underetasje. Badet er fra år 2000 og er innredet med veggehengt servantinnredning med skuffer og dører. Det er speil med overlys over servant. Rommet har ellers gulvstående toalett og dusjkabinett.
Uteområde:
Pent opparbeidet uteområde på tomten med store gressplen-arealer. Oppkjørsel som går fra vei og opp til inngangsparti belagt med stein. Tomten er ellers opparbeidet med pen hekk rundt deler av eiendommen og eller beplantning.
Løsøre og tilbehør
Vi viser til liste fra Norges Eiendomsmeglerforbund som gjelder fra 01.01.2020 angående løsøre og tilbehør.
Oppvarming
Boligen har oppvarming med elektrisitet, vedfyring og vannbåren varme. Det er peisovn og varmepumpe i stue 1.etg. Det er vannbåren varme i hele underetasjen og 1.etg. samt elektriske varmekabler på bad i 2.etg.
Dersom beboelsesrom ikke har vegg- eller fastmonterte varmekilder ved visning, følger dette heller ikke med.
Ferdigattest/brukstillatelse
Eiendommen er opprinnelig oppført i ca 1950. Det foreligger brukstillatelse på dette datert 29.16.1950.
Det foreligger ikke ferdigattest eller midlertidig brukstillatelse for påbygg og ombygging utført i 1999/2000. Det finnes av den grunn ikke dokumentasjon over eiendommens lovlighet.
Det foreligger dog godkjente byggetegninger for tiltaket datert 11.06.1999. Den gang var u.etg uinnredet. Selger søkte bruksendring til Asker kommune og fikk dette godkjent i august 2025 og rommene er nå godkjente til varig opphold. Det foreligger ferdigattest datert 03.09.2025 for bruksendringen.
Kjøkken er ikke byggemeldt men rommet er godkjent til varig opphold. Dør fra vaskerom og ut er ikke tegnet inn/byggemeldt. Arealet under vinterstue opp er også kledd inn som entre og dette er ikke byggemeldt eller godkjent. Overbygg på terrasse i 1.etg er ikke tegnet inn/byggemeldt kommune.
Kjøper overtar eiendommen slik den fremstår på visning med risiko og ansvaret for eventuelle pålegg fra kommunen og kostnader forbundet med dette.
Tinglyste heftelser og rettigheter
Eiendommen overdras fri for pengeheftelser. Det er tinglyst følgende servitutter på eiendommen.
Dagboknr 709928, tinglyst 28.08.2013, type heftelse: Bestemmelse om å ha offentlig vann- og avløps rør som går over eiendommen. Kommunen har også tillatelse til å gjøre nødvendige reparasjoner og ettersyn på ledninger, kummer og evt. stoppekraner eller andre tekniske installasjoner forbundet med VA-anlegget.
Servituttene vil følge eiendommen. Kjøpers bank vil få prioritet etter ovennevnte heftelser og servitutter.
Eventuell adgang til utleie
Den del av boligens underetasje som er innredet som en utleiedel er ikke godkjent til varig opphold eller som separat boenhet av kommunen. Konsekvensen ved søknad kan være at rommet ikke godkjennes som varig opphold og at rommet da må brukes som bod/midlertidig oppbevaring og dermed heller ikke kan leies ut. Kjøper overtar alt ansvar og risiko for dette videre.
Det gjøres oppmerksom på at det er krav til forsvarlige radonnivåer ved utleie. Det er ikke gjennomført radonmåling på denne boligen.
Beliggenhet og tomteforhold
Beliggenhet og tomteforhold
Beliggenhet
Eiendommen ligger i meget barnevennlige og rolige omgivelser med ca. 15min gange ned til fjorden, marka, forretninger og Sætre sentrum. Rett under eiendommen finner du Mellomdammen, som er et populært sted å is skøyte om vinteren. I Sætre sentrum finner du et hyggelig uteliv med blant annet serveringssteder, cafe, apotek, klesbutikker, skobutikk, matforretninger, bank med mer. Det er yrende liv i Sætre sommerstid med aktivt båt- og badeliv og sommerferge til Håøya, Oscarsborg og Drøbak. Det er også flotte turområder sommer som vinter med oppkjørte skiløyper vinterstid og kyststi på sommeren. Med gangavstand fra boligen finner du også idylliske Skogsborg, som er perfekt for soling og bading på varme sommerdager.
Ca.15 min gange til Sætre bussterminal med ekspressavganger med buss retning Oslo. Det er også bussforbindelser til Drammen, Lier, Verket og Slemmestad. Ca. 15 minutters kjøring til Røyken sentrum med togstasjon. Barneskole, ungdomsskole og barnehager i nærmiljøet, samt idrettshall og treningssenter.
Aktivt idrettsmiljø i Graabein IL. Sætre byr også på flere alternative aktivitetsmuligheter for ungdom, med blant annet speider, fotball, håndball og seilforening m.m. Helt nytt treningssenter med blant annet spinning og gruppetimer samt treningsapparater.
Adkomst
Veibeskrivelse Se Google maps - det er enkelt å finne frem i kartet - Det vil bli skiltet med Krogsveen visningsskilt ved fellesvisninger.
Barnehager, skoler og fritid
Sætre barne- og ungdomsskole. Røyken videregående skole. Flere private og offentlige barnehager i nærområdet.
Dersom skole- og barnehagetilbud er av betydning for kjøpet, må interessenter selv sjekke med kommunen/barnehager.
Beskrivelse av tomt
Eiertomt på 1 235 kvm, pent opparbeidet med plenarealer, steinlagt innkjørsel, hekk og diverse beplantning.
Parkering
Boligen har integrert garasje med plass til 2 biler. Ellers gode parkeringsmuligheter i innkjørsel.
Det er lagt opp for etablering av elbillader i garasje i følge selger.
Fastmonterte løsninger for oppheng og lagring i garasje følger med.
Vei, vann og avløp
Eiendommen har adkomst via kommunal vei.
Eiendommen er tilknyttet kommunalt ledningsnett via private stikkledninger. Eier er selv ansvarlig for private stikkledninger til boligen.
Regulerings-og arealplaner
Eiendommen er regulert til 1.235kvm til nåværende boligbebyggelse og 94kvm til bevaring naturmiljø i henhold til kommuneplan for Asker datert 13.06.2023.
Eiendommen er regulert til 20kvm til kjørevei, 155kvm til felles lekeareal og 1.060kvm til boliger i henhold til reguleringsplan "Del av Sætre nord/ plassområdet", datert 27.08.1991 med tilhørende reguleringsbestemmelser datert 17.02.1992.
Utsnitt av plan med tilhørende bestemmelser kan fås ved henvendelse til megler.
Økonomi
Økonomi
Kommunale utgifter
Kommunale avgifter er kr 28.809,- for 2024. I dette inngår gebyr for vann, avløp, renovasjon og feiing/tilsyn.
Nåværende eier har et strømforbruk som tilsvarer ca. kr 32.714,- pr. år. Selger har valgt Norgespris på strøm og kjøper er bundet av dette ut 2026.
Boligen har en årlig forsikringspremie på kr 10.296,-
Boligen er tilknyttet Altibox/Viken fiber som leverandør av tv og internett. Tv-tuner/dekoder medfølger. Kjøper må selv tegne abonnent til overtagelse.
Boligen er ikke tilknyttet alarmselskap
Utgiftene er basert på nåværende eiers forbruk og avtaler.
Formuesverdi
Formuesverdi for 2023 var kr 1 340 615,- ifølge selger/skatteetaten. Beløpet forutsetter at eier bor fast i boligen (primærbolig).
Ved eventuell øvrig bruk av eiendommen (f.eks. fritidsbolig, pendlerbolig, utleieobjekt) var formuesverdien for 2023 kr 5 362 459,-/5 362 460,-.
Formuesverdien justeres normalt årlig. Se skatteetaten.no for mer informasjon om fastsettelse av formuesverdien.
Eiendomsskatt
Det er p.t ikke vedtatt eiendomsskatt for eiendommer i kommunen.
Omkostninger
6 490 000,00 Prisantydning
Omkostninger
162 250,00 Dokumentavgift til staten (2,5% av kjøpesum)
19 900,00 Gjensidige Boligkjøperpakke (valgfri)
545,00 Tinglysing panterettsdokument
545,00 Tinglysing skjøte
--------------------------------------------------------
183 240,00 Omkostninger totalt
--------------------------------------------------------
6 673 240,00 Totalpris inkl. omkostninger
--------------------------------------------------------
Tilbud om lånefinansiering
Megler formidler gjerne kontakt med rådgiver hos vår samarbeidspartner BN Bank. De har konkurransedyktige betingelser samt rask og løsningsorientert behandling av din lånesøknad. Krogsveen mottar et honorar for denne formidlingen.
Betalingsbetingelser
Kjøpesum inkludert omkostninger, samt pantedokument tilknyttet eventuelt lån, skal være disponibelt hos megler 2 virkedager før overtagelsen.
Annen viktig informasjon
Annen viktig informasjon
Eier
Lasse Berggren
Overtakelse
Etter nærmere avtale.
Boligselgerforsikring
Selger har i forbindelse med salget tegnet boligselgerforsikring hos Anticimex. Vedlagt salgsoppgaven følger selgers egenerklæringsskjema og tilstandsrapport. Interessenter må sette seg inn i dokumentene før bud inngis.
Boligselgerforsikringen dekker selgers ansvar etter avhendingsloven. Dersom kjøper oppdager forhold ved eiendommen som man mener utgjør en mangel ved eiendommen, vil Claims Handling AS behandle reklamasjonen på vegne av selger. Forsikringsvilkår kan fås ved henvendelse til megler.
Boligkjøperforsikring
Innen kontraktsmøtet må kjøper ta stilling til om det ønskes å bestille Boligkjøperpakken gjennom Tryg. I denne gunstige pakken er boligen ferdig forsikret og inkluderer rettshjelpsforsikring, også kalt Boligkjøperforsikring. Rettshjelpsforsikring gir trygghet og tilgang på profesjonell juridisk hjelp dersom det oppdages uventede feil eller mangler det første året etter overtagelse. Forsikringsselskapet behandler i så fall ethvert mangelskrav kjøper måtte ha overfor selger.
For alle boligtyper, unntatt tomter, inneholder Boligkjøperpakken innboforsikring, renteforsikring (unntatt fritidsbolig) - i situasjoner hvor kjøper ikke får solgt nåværende primærbolig – og flytteforsikring. I tillegg inneholder den husforsikring for alle hus og hytter forutsatt at eiendommen ikke har seksjonsnummer/andel (tilhører et sameie/borettslag).
Kjøper mottar ingen særskilt faktura for Boligkjøperpakken da kostnaden det første året legges til kjøpesummen for boligen. Les mer om forsikringen i informasjonsarket fra Tryg. Krogsveen mottar et honorar for denne formidlingen.
Dersom ikke boligkjøperpakke ønskes kan kun rettshjelpsforsikring, også kalt boligkjøperforsikring, tegnes særskilt via megler. Rettshjelpsforsikringen varer i 5 år fra overtagelse og leveres av Tryg.
Selskap og privatpersoner som driver med kjøp/salg/utvikling som ledd i egen næringsvirksomhet kan ikke tegne boligkjøperforsikring.
Budgivning
Forbrukerinformasjon om budgivning er vedlagt denne salgsoppgaven og er også på vår hjemmeside www.krogsveen.no. Alle bud og budforhøyelser må inngis skriftlig. I tillegg må legitimasjon være fremlagt sammen med signatur fra budgiver.
Vi oppfordrer til å gi bud elektronisk via GI BUD-knappen på eiendommens hjemmeside på Krogsveen.no. Da vil samtlige vilkår bli oppfylt.
Eventuelle forhøyelser eller endringer av budet kan bekreftes pr SMS eller på e-post. Vi oppfordrer alltid til å kontakte megler pr. telefon i tillegg da forsinkelser i SMS og e-post kan forekomme.
For at budene skal kunne bli behandlet og videreformidlet skriftlig til alle involverte parter, må alle bud ha en tilstrekkelig lang akseptfrist, jf. eiendomsmeglingsforskriften § 6-3.
Selger må også skriftlig akseptere budet før aksept kan formidles til budgiver. Akseptfrist bør derfor være på minimum 30 minutter, og budforhøyelser må derfor skje i god tid før fristens utløp.
Bud i forbrukerforhold kan uansett ikke settes med kortere frist enn kl. 12.00 første virkedag etter siste annonserte visning.
Etter at eiendommen er solgt vil kjøper og selger få tilsendt budjournal. Øvrige budgivere kan få utlevert kopi av budjournalen i anonymisert form.
Hvitvaskingsreglene
I henhold til lov om hvitvasking og terrorfinansiering har megler plikt til å gjennomføre kontrolltiltak overfor kunder, herunder fullmektiger. Dette innebærer bl.a. å bekrefte kunders og reelle rettighetshaveres identitet på bakgrunn av fremvist gyldig legitimasjon eller på annen godkjent måte, samt å innhente opplysninger om kundeforholdets formål og tilsiktede art.
Dersom slike kundetiltak ikke kan gjennomføres, kan megler ikke etablere kundeforholdet eller utføre transaksjonen.
Hvis kjøper ikke bidrar til gjennomføring av kundekontrollen og dette fører til at transaksjonen blir forsinket eller ikke kan gjennomføres, vil dette ansees som mislighold av avtalen og gi selger rettigheter etter avhendingslova kapittel 5. I tilfeller der selger ikke bidrar til gjennomføring av løpende kundekontroll underveis i oppdraget, er det selger som misligholder sine forpliktelser etter avtalen og gi kjøper rettigheter etter avhendingslovens kapittel 4. Partene er selv ansvarlige for eventuelle kostnader og ansvar dette kan medføre. Eiendomsmegleren eller eiendomsmeglingsforetaket kan ikke holdes ansvarlig for de konsekvenser dette vil kunne få for partene eller andre som har interesser i eiendomshandelen.
Kjøper oppfordres til å innbetale kjøpesummen som ikke kommer fra låneinstitusjon i én samlet innbetaling fra egen konto i norsk bank. Megler har plikt til å melde fra til Økokrim om eiendomshandler som fremstår som mistenkelige. Melding sendes Økokrim uten at partene varsles.
Personopplysningsloven
I henhold til personopplysningsloven gjør vi oppmerksom på at interessenter kan bli registrert for videre oppfølging.
Lovanvendelse
Generelle bestemmelser
Salgsoppgaven er basert på de opplysningene selger har gitt til megler, den bygningssakyndiges tilstandsrapport, samt opplysninger innhentet fra kommunen, Kartverket og andre tilgjengelige kilder. Det er viktig at kjøper setter seg grundig inn i alle salgsdokumentene, herunder salgsoppgave, tilstandsrapport og selgers egenerklæring. Kjøper anses kjent med forhold som er tydelig beskrevet i salgsdokumentene, og slike forhold kan ikke påberopes som mangler. Dette gjelder uavhengig av om kjøper har lest dokumentene. Alle interessenter oppfordres til å undersøke eiendommen nøye, gjerne sammen med fagkyndig før bud inngis. Kjøper som velger å kjøpe usett kan ikke gjøre gjeldende som mangel noe han burde blitt kjent med ved undersøkelsen.
Dersom det er behov for avklaringer, anbefaler vi at interessenter rådfører seg med eiendomsmegler eller egne rådgivere før det legges inn bud.
En bolig som har blitt brukt i en viss tid, har vanligvis blitt utsatt for slitasje og skader kan ha oppstått. Slik bruksslitasje må kjøper regne med, og det kan avdekkes enkelte forhold etter overtakelse som nødvendiggjør utbedringer. Normal slitasje og skader som nødvendiggjør utbedring, er innenfor hva kjøper må forvente og vil ikke utgjøre en mangel.
Kjøper og selgers rettigheter og plikter reguleres av avtalen mellom partene, samt informasjonen som har vært tilgjengelig for kjøperen i forbindelse med handelen. Avtalen utfylles av avhendingsloven, og det gjelder ulike avtalevilkår avhengig av om kjøper er forbrukerkjøper eller ikke. Dette er nærmere beskrevet nedenfor.
På grunn av ulike avtalevilkår kan selger vurdere bud fra en som ikke er forbruker, ulikt fra en forbrukers bud. Dersom kjøper ikke er forbruker, er selger sitt mulige mangelsansvar begrenset fordi eiendommen selges "som den er". Selger kan ikke ta «som den er»- forbehold overfor en forbrukerkjøper. Selv et lavere bud fra en som ikke er forbruker kan foretrekkes fordi begrensningen i mulig mangelsansvar kan ha egenverdi for selger. Selger står fritt til å forkaste eller akseptere ethvert bud, og er for eksempel ikke forpliktet til å akseptere høyeste bud.
Budgiver skal i budskjema avgi egenerklæring om budgiver er forbruker eller næringsdrivende/ person som hovedsakelig handler som ledd i næringsvirksomhet. Budgivere får informasjon dersom andre bud er inngitt av en som ikke er forbruker.
Forbrukerkjøp - definisjon
Med forbrukerkjøp menes kjøp av eiendom når kjøperen er en fysisk person som ikke hovedsakelig handler som ledd i næringsvirksomhet.
Forbruker – avtalevilkår
Eiendommen har en mangel dersom den ikke er i samsvar med kravene som følger av avtalen, eller det foreligger brudd på bestemmelsene i avhendingsloven §§ 3-2 til 3-8. Hvis eiendommen ikke er i samsvar med det kjøperen må kunne forvente ut ifra alder, type og synlig tilstand, kan det være grunnlag for mangelskrav. Det samme gjelder hvis det er holdt tilbake eller gitt uriktige opplysninger om eiendommen. Dette gjelder likevel bare dersom man kan gå ut ifra at det virket inn på avtalen at opplysningen ikke ble gitt eller at mangelskravet ikke blir rettet i tide på en tydelig måte.
Boligen kan ha en mangel etter avhendingsloven § 3-3 andre ledd, dersom det er avvik mellom opplyst og faktisk innvendig areal, forutsatt at avviket er på 2% eller mer og minimum 1 kvm.
Ved beregning av et eventuelt prisavslag eller erstatning må kjøper selv dekke tap/kostnader opptil et beløp på kr 10 000 (egenandel).
Ikke-forbruker (næringsdrivende) – definisjon
Hvis kjøper er en juridisk person, eller en fysisk person som hovedsakelig handler som ledd i næringsvirksomhet, vil kjøpet ikke anses som et forbrukerkjøp.
Ikke-forbruker – avtalevilkår
Eiendommen har en mangel dersom den ikke er i samsvar med kravene som følger av avtalen.
Eiendommen selges «som den er», og selgers ansvar utover det konkret avtalte er da begrenset etter avhendingsloven § 3-9, første ledd andre setning.
Avhendingsloven § 3-3 andre ledd fravikes, og hvorvidt boligens arealsvikt utgjør en mangel vurderes etter avhendingsloven § 3-8.
Informasjon om kjøpers undersøkelsesplikt, herunder oppfordringen om å undersøke eiendommen nøye, gjelder også for kjøpere som ikke anses som forbrukere.
Det forutsettes at hjemmel overføres til kjøper. Hvis kjøper ikke ønsker hjemmelsoverføring av eiendommen, må det tas forbehold om dette i budet.
Meglers vederlag
Meglers vederlag betales av selger og er avtalt til:
Vederlag: kr. 67.500,-
Tilrettelegging fra kr 17.000,-
Oppgjør: kr 7.500,-
Markedspakke: kr 27.200,-
Visninger: kr 4.000,- pr. visning
Oppslag eiendomsregister: kr 2.900,-
Megler har i tillegg krav på dekning av utlegg.
Opplysninger om oppdraget
Oppdragsnummer 16-0131/24
Eiendomsmegler Krogsveen AS, avd. Røyken
Rortunet senter, Kirkealleen 1, 3470, SLEMMESTAD
950 007 613
Oppdragets KR-kode KR16.24131
Dato
Sist oppdatert: 13. mai 2026 kl. 09:58
Dokumenter
Dokumenter
PDF – 371 KB
PDF – 659 KB
PDF – 1022 KB
PDF – 1 MB
PDF – 344 KB
PDF – 5 MB
PDF – 1 MB
PDF – 312 KB
PDF – 29 KB
PDF – 127 KB
PDF – 392 KB
Område
Legg til steder som er viktige for deg
Visning
For å delta på visning, ber vi om at du melder deg på innen kl 12 samme dag som visningen er. Da sikrer vi at du får nødvendig informasjon og at det er satt av tilstrekkelig med tid. Kontakt megler dersom annet tidspunkt ønskes. Husk å lese salgsoppgaven før visningen, så du stiller forberedt. NB. Visning utgår dersom det ikke er noen påmeldte.
Ønsker du kun å bli holdt orientert, kan du fra eiendommens hjemmeside få varsel om solgtpris, eller kontakte megler.
Lurer du på noe?
Unngå doble boligrenter
Vi tilbyr gunstig forsikring.
Vurderer du utleie?
Få et tilbud fra Utleie KrogsveenHva koster lånet?
Sjekk estimert lånekostnadVil du varsles om lignende boliger?
Ved å lagre ditt boligsøk hos oss får du beskjed når vi har en bolig som ligner denne, før den legges ut på markedet!




