Mårstien 46
3 900 000 kr
112 m²
3 soverom
Solgt

Presenteres av
Simen Ruud Konnerud
Pen vertikaldelt bolig med meget barnevennlig & attraktiv beliggenhet. Solrik uteplass. Garasje. Nær bhg, marka & buss.
Prisantydning
3 900 000 krAndel fellesgjeld
329 619 krOmkostninger
19 250 krTotalpris
4 248 869 kr
Pris
Bruksareal
131 m²BRA-I (internt bruksareal)
112 m²BRA-E (eksternt bruksareal)
19 m²TBA (terrasse-balkongareal)
25 m²
Areal
Byggeår
1980Soverom
3 soveromBad
1 badType
AndelsleilighetEierform
AndelFasiliteter
Garasje/P-plass og Balkong/TerrasseFellesutgifter
6 892 krEnergimerke
Oransje G
Nøkkelinfo
Unngå doble boligrenter
Vi tilbyr gunstig forsikring.
Vurderer du utleie?
Få et tilbud fra Utleie KrogsveenHva koster lånet?
Sjekk estimert lånekostnadDette liker selger best ved boligen
Barnevennlig område. Mye sol og kveldssol. Kort vei til barnehager og barneskole. Kort vei til skog og mark. Mange lekeplasser. Nærbutikk og senter i umiddelbar nærhet. Romslig bolig med god planløsning.
Beskrivelse
Kort om eiendommen
Mårstien 46
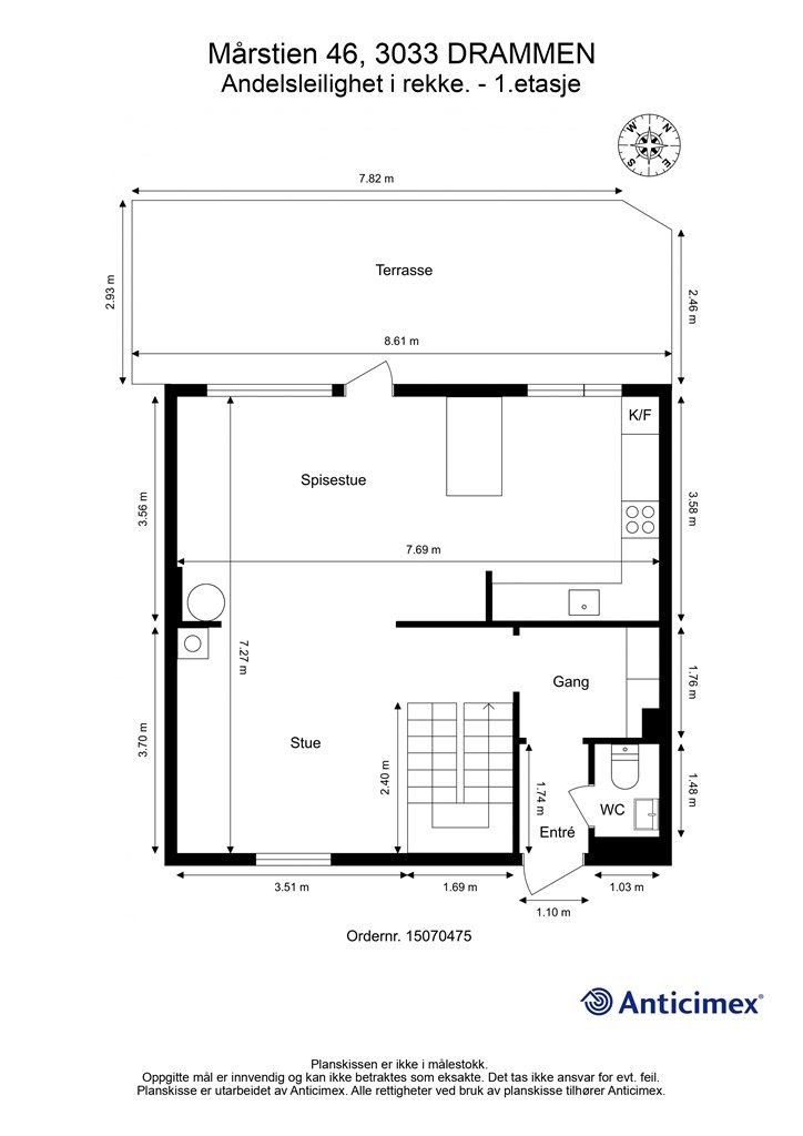
Velkommen til en pen halvpart av vertikaldelt tomannsbolig i Skjelsbekkskogen borettslag. Boligen har tre gode soverom, romslig bad, kjøkken fra 2018(iflg selger) og pene overflater. Garasje i felles rekke.
Innholdsrik bolig med en praktisk planløsning
3 romslige soverom
Kjøkken fra 2018 med praktisk kjøkkenøy
Stue med god plass til å møblere både spisestue og sofagruppe
Bad med dusjkabinett og romslig servantinnredning
Utgang til sør-vestvendt terrasse på ca 25 kvm med gode solforhold
Praktisk toalettrom i 1.etg
Svært kort gangavstand til garasjerekke med automatisk leddport
Kort gangavstand til bussholdeplass og barnehager
Gangavstand til Konnerud senter med flere butikker og fasiliteter.
Velkommen til visning!
Område
Legg til steder som er viktige for deg
På flyttefot? Tenk kjøp og salg samtidig.
Få din egen rådgiver gjennom hele kjøps- og salgsprosessen. Det starter med en verdivurdering.
Unngå doble boligrenter
Vi tilbyr gunstig forsikring.
Vurderer du utleie?
Få et tilbud fra Utleie KrogsveenHva koster lånet?
Sjekk estimert lånekostnadVil du varsles om lignende boliger?
Ved å lagre ditt boligsøk hos oss får du beskjed når vi har en bolig som ligner denne, før den legges ut på markedet!
På flyttefot? Slik gjør vi det enklere for deg
Skreddersydd flyttepakke
Vi fikser håndverkere, vask, pakking, lagring og transport, og legger ut for utgiftene underveis.
Hjelp med både kjøp og salg
Hos oss har du din egen rådgiver gjennom hele kjøps- og salgsprosessen.
Hjelp til finansiering
Vårt samarbeid med BN Bank sikrer deg rask og løsningsorientert hjelp, til konkurransedyktige betingelser.

