Andersbakkan 88
2 690 000 kr
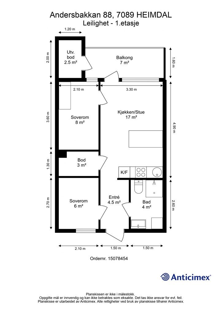
45 m²
2 soverom
Komplett salgsoppgave
Lund Østre/Heimdal
Moderne 3-roms fra 2020 i et attraktivt og veletablert område |Romslig balkong |To boder |Fjernvarme |Kort vei til marka
Prisantydning
2 690 000 krOmkostninger
78 290 krTotalpris
2 768 290 kr
Pris
Bruksareal
48 m²BRA-I (internt bruksareal)
45 m²BRA-E (eksternt bruksareal)
3 m²TBA (terrasse-balkongareal)
7 m²
Areal
Etasje
1Byggeår
2020Soverom
2 soveromBad
1 badType
EierleilighetEierform
EierseksjonFasiliteter
Heis og Balkong/TerrasseFellesutgifter
2 601 krEnergimerke
Grønn B
Nøkkelinfo
Unngå doble boligrenter
Vi tilbyr gunstig forsikring.
Vurderer du utleie?
Få et tilbud fra Utleie KrogsveenHva koster lånet?
Sjekk estimert lånekostnadBeskrivelse
Kort om eiendommen
Velkommen til Andersbakkan 88 - og denne tidsriktige 3-romsleiligheten beliggende i et ettertraktet område på Lund Østre! Her bor man med kort vei til en rekke servicetilbud, gode kollektivmuligheter og fantastiske turområder.
Verdt å nevne:
- Tilbaketrukket og moderne kjøkken med integrerte hvitevarer og kjøkkenøy.
- Lys og luftig stue med utstrakte vindusflater som siker rikelig med naturlig dagslys.
- Utgang til romslig balkong med gode møbleringsmuligheter.
- Pent flislagt bad på 4 kvm med gulvvarme, downlights og opplegg for vaskemaskin.
- To soverom med plass til garderobe.
- To romslige boder, en inne i leiligheten og en på balkongen.
- Lave bokostnader med fjernvarme og balansert ventilasjon.
- Stille og rolig område, med kort vei til Granåsen og Bymarka.
- Supert førstegangskjøp!
Innhold og byggemåte
Innhold og byggemåte
Eiendommen
Andersbakkan 88, 7089 HEIMDAL
Kommunenummer 5001, gårdsnummer 177, bruksnummer 816, seksjonsnummer 52, ideell andel 1/1
Innhold
Totalt bruksareal
BRA: 4 kvm
BRA-i: 45 kvm
BRA-e: 3 kvm
TBA: 7 kvm
1. etasje
BRA: 48 kvm
BRA-i: 45 kvm. Entré, bad, to soverom, bod og stue/kjøkken.
BRA-e: 3 kvm. Utvendig bod.
TBA: 7 kvm. Balkong.
Vedlagte plantegninger er ikke målbare. De oppgitte arealer er hentet fra rapport med befaringsdato 16.01.2026 utført av Anticimex AS avd. Trondheim. Arealene er beregnet og rom er definert etter dagens faktiske bruk, uavhengig av hva som er godkjent av bygningsmyndighetene.
Byggemåte
Selger har fått utarbeidet en tilstandsrapport, dvs. en teknisk gjennomgang av boligen hvor eventuelle avvik, risiko for kjøper og prisoverslag for hva som bør gjøres av oppgradering, er skissert. Se særskilt TGIU (tilstandsgrad ikke undersøkt), samt TG2. Rapporten og selgers egenerklæring er en del av salgsoppgaven og må leses nøye før bud inngis. Kjøper overtar ansvaret for de opplysninger som fremkommer av salgsdokumentasjonen, og kan ikke gjøre gjeldende som mangel noe som burde vært kjent eller som ikke kan anses å ha betydning for avtalen.
Bygningen er iht. tilstandsrapporten oppført i 2020. Grunnmur og bærende konstruksjoner i hovedsak av betong. Yttervegger av betong/trekonstruksjoner. Fasaden er kledd med fasadeplater og stående trekledning. Etasjeskillere av betong. Flatt tak (ikke besiktiget). Leiligheten har entrédør med brannklasse EI30 og lydklasse db40. Vinduer og balkongdør med karmer av tre, og tre-lags glass. Les for øvrig mer om byggemåte og den tekniske tilstanden i rapporten.
Standard
84% har fått TG 1: I orden
14% har fått TG 2: Alder, slitasje, skader mv.
0% har fått TG 3: Strakstiltak nødvendig
2% har fått TGIU: Ikke undersøkt
Rapporten fra takstmann er en teknisk gjennomgang av boligen og angir eventuelle byggetekniske avvik. Sammendraget under beskriver avvik ved boligen som har fått tilstandsgrad TG2 og TGIU.
Tilstandsgrad 2:
- Overflater vegger på bad pga. riss og sprekker i flisfuger i dusjsonen.
- Overflater gulv på bad pga. moderate tegn til bomlyd (tegn til hulrom) under enkelte gulvfliser.
- Vannrør på bad pga. at trykkstøt (rørslag) i vannrør registreres på bad.
- Sanitærutstyr/innredning på bad pga. at drenering fra innebygget toalettsisterne er ikke registrert.
- Vannrør pga. at trykkstøt (rørslag) i vannrør registreres på bad.
Tilstandsgrad IU:
- Fukt i tilliggende konstruksjoner på bad: Med bakgrunn i at våtrommet er bygget som en prefabrikkert baderomskabin er det ikke utført hulltaking/fuktmåling i lukkede konstruksjoner.
Tilstandsrapporten og selgers egenerklæring følger vedlagt i salgsoppgaven. Interessenter må sette seg inn i dokumentene før bud inngis.
Løsøre og tilbehør
Vi viser til liste fra Norges Eiendomsmeglerforbund som gjelder fra 01.01.2020 angående løsøre og tilbehør.
Dette medfølger boligen i følge selger:
- Oppvaskmaskin.
- Kjøleskap.
- Stekeovn.
Oppvarming
Oppvarming med vannbåren gulvvarme tilkoblet felles varmesentral.
Ferdigattest/brukstillatelse
Sameiet har kun midlertidig brukstillatelse på alle tre blokkene.
Det foreligger ikke ferdigattest på eiendommen, men midlertidig brukstillatelse ble gitt 26.10.2020. Tillatelsen ble gitt med vilkår om at innregulering av ventilasjon, noe listverk og ferdigplen skulle være oppfylt innen 14.05.2021. Kommunen opplyser at de ikke har mottatt søknad om ferdigattest. Det må søkes ferdigattest når resterende arbeider er gjennomført.
Kjøper overtar eiendommen slik den framstår på visning.
Tinglyste heftelser og rettigheter
Leiligheten overdras fri for pengeheftelser.
Sameiet har legalpant for krav mot sameieren som følger av sameieforholdet iht. eierseksjonsloven § 31. Pantet er begrenset oppad til 2G, (G = folketrygdens grunnbeløp).
I tillegg har sameiet tinglyst panterett som nevnt over.
Det er tinglyst følgende servitutter på sameiets eiendom.
- Dagboknr 879130, tinglyst 24.09.2015, type heftelse: Eiendommene gnr. 177 bnr. 811-832 gir hverandre gjensidige rettigheter til følgende mot pliktig deltakelse til vedlikehold. Bestemmelse om vann og kloakkledning, elektriske ledninger/kabler og anlegg og vedlikehold av ledninger m.m.
- Dagboknr 1041211, tinglyst 06.09.2019, type heftelse: Bestemmelse om rett til adkomst for vedlikehold av bygninger/anlegg/støttemur.
- Dagboknr 1041211, tinglyst 06.09.2019, type heftelse: Bestemmelse om plassering av bolig/søppelanlegg.
- Dagboknr 1998060, tinglyst 17.01.2020, type heftelse: Adkomstrett for drift og vedlikehold av anlegg/ledninger/kabler. Bestemmelse om bebyggelse i nærheten av anlegg/ledninger/kabler, endring i terrenget i nærheten av anlegg/ledninger/kabler og vedlikehold av anlegg/ledninger.
- Dagboknr 2310382, tinglyst 06.04.2020, type heftelse: Bestemmelse om parkering og vedlikehold.
Servituttene vil følge eiendommen. Kjøpers bank vil få prioritet etter ovennevnte heftelser og servitutter.
Eiendommen har tinglyst adkomstrett over gnr. 177, bnr. 826 for tilgang til egen eiendom og felles adkomst som ligger inne på eiendommen.
Eventuell adgang til utleie
Leiligheten kan leies ut såfremt leiligheten har forsvarlige radonverdier. Korttidsutleie av hele boligseksjonen i mer enn 90 døgn er ikke tillatt. Med korttidsutleie menes utleie i inntil 30 døgn sammenhengende. Grensen på 90 døgn kan fravikes i vedtektene og kan i så fall settes til mellom 60 og 120 døgn med to tredjedels flertallsvedtak på ett årsmøte. Leietaker må følge sameiets vedtekter og ordensregler på lik linje som eier.
Diverse
Selger opplyser om følgende i egenerklæringsskjema:
- Det har blitt oppdaget mugg, og utført tilsyn i fuktsikring i membranen og ytterveggene i parkeringskjelleren i oktober 2024. Dette er håndtert av sameiet, ved installasjon av rister i p-porten.
- Det har blitt oppdaget skjeggkre i alle tre blokkene, tidlig 2024. Dette ble håndtert av sameiet, ved at de fikk inn skadedyrkontrollen og satt inn giftig åte i alle leilighetene. Jeg har ikke sett skjeggkre i leiligheten.
- Platetoppen har et sprekk, nedre høyre hjørne - fra forrige eier. Det var beskrevet i salgsoppgaven da jeg kjøpte i 2022. Platetoppen funker like bra.
Beliggenhet og tomteforhold
Beliggenhet og tomteforhold
Beliggenhet
Leiligheten har en svært attraktiv og familievennlig beliggenhet på Lund Østre/Heimdal, like i nærheten av Heimdal sentrum. Boligene i området er samlet i grupper, adskilt av store grønne fellesområder. Disse grønne dragene leder til flere hyggelige møteplasser, kvartalslekeplasser, sandvolleyballbane, Lund Østre treningspark og 7-er kunstgressbane, for å nevne noe. Grøntområdene har også direkte forbindelse til markaløypene i området.
Nærmeste dagligvarebutikker er Coop Extra med post i butikk og Coop Prix Kattem, begge i gangavstand fra boligen. Ønsker du et bredere servicetilbud, byr Heimdal sentrum på et godt utvalg av butikker og tjenester, inkludert restauranter, klesbutikker, bank, frisører, solstudio, baker og vinmonopol. Det er ca. 3 km til City Syd, et av Midt-Norges største kjøpesentre, samt kort vei med bil, buss eller tog til Trondheim sentrum.
Fra eiendommen er det gangavstand til Kattem barneskole og Åsheim barne- og ungdomsskole, samt kort vei til Heimdal videregående skole. Det finnes også flere barnehager i nærområdet. Kollektivtilbudet er godt, med både buss og tog. Nærmeste bussholdeplass er Østre Lund, som også er endestasjon for Metrobussen, og ligger kun få minutters gange fra boligen. I området finnes det også lekeplass, fotballbane, skøytebane, idrettshall og treningssenter m.m.
Det er umiddelbar nærhet til Bymarka, samt kort avstand til fantastiske turområder rundt Skjetlein, hvor utsikten virkelig kan nytes. Videre er det kort vei til Saupstad skisenter med fine turmuligheter samt grill- og akeplasser for hele familien. Oppkjørte skiløyper som tar deg inn i Bymarka ligger kun noen hundre meter fra boligen. Her finner man også et omfattende lysløypenett som strekker seg helt til blant annet Granåsen skisenter. Marka er godt tilrettelagt for alle – enten du er mosjonist, syklist eller skigåer.
Hestsjøen ligger noen kilometer fra boligen og er et populært badested med badebrygge, stupetårn, grillplass samt bord og benker. Videre er det kort vei med bil til Øysand, hvor du finner badestrand, volleyballbane, campingplass og øvrige fasiliteter.
Adkomst
Google maps - det er enkelt å finne frem i kartet.
Link: https://maps.app.goo.gl/FAEGreXXQ1Mkmbkp8
Barnehager, skoler og fritid
Barnehager i nærheten:
- Lund barnehage (1-5 år) 0,4 km
- Skjetlein barnehage (1-5 år) 0,7 km
- Torvsletta barnehage (1-3 år) 0,8 km
Skoler i nærheten:
- Kattem skole (1-7 kl.) 0,8 km
- Åsheim barneskole (1-7 kl.) 1,2 km
- Stabbursmoen skole (1-7 kl.) 1,7 km
- Huseby barneskole (1-10 kl.) 2,4 km
- Åsheim ungdomsskole (8-10 kl.) 1,1 km
- Heimdal videregående skole (730 elever) 3,1 km
- Kristen videregående skole - Trøndelag (480 elever) 6,4 km
Dagligvare:
- Coop Prix Kattem 10 min gange
- Coop Extra Ringvålveien 12 min gange
Informasjon om tilhørende skolekretser er hentet fra Prognosesenteret som dataleverandør, og tilhørigheten kan årlig endres av kommunen. Dersom skole- og barnehagetilbud er av betydning for kjøpet, ber vi om at det rettes en særskilt henvendelse til kommunen/bydelsadministrasjonen for oppdatert informasjon.
Beskrivelse av tomt
Eiertomt på 4.953,6 kvm som tilhører sameiet pent opparbeidet med asfalt, grus, belegningsstein, diverse beplantninger, plenareal, diverse støttemurer og lekeplass. Tomten er fellesareal.
Parkering
Sameiet har totalt 41 parkeringsplasser i kjeller. Plassene følger ikke bolig ved eventuelt salg. TOBB tildeler disse på vegne av sameiet. Plassene tildeles etter søknadsdato. Søknad sendes TOBB. Det betales gebyr til TOBB ved tildeling.
Vei, vann og avløp
Eiendommen har adkomst via privat vei med felles vedlikeholdsansvar for sameiet.
Eiendommen er tilknyttet kommunalt ledningsnett via private stikkledninger. Sameiet er ansvarlig for private stikkledninger til bygningen.
Regulerings-og arealplaner
Eiendommen er regulert til boligformål i henhold til reguleringsplan r20130031 datert 18.06.2015 med tilhørende reguleringsbestemmelser. Eiendommen er også berørt av reguleringsplan r20250016 hvor det er igangsatt planleggingsarbeid.
Lund Østre er et nyere boligfelt som fortsatt er under utvikling. Det må påregnes mer byggeaktivitet i årene fremover.
Utsnitt av plan med tilhørende bestemmelser kan fås ved henvendelse til megler.
Økonomi
Økonomi
Boligens kostnader
Fellesutgiftene er kr 2.601,- per måned og inkluderer:
- Felleskostnader drift kr 2.016,-
- Velforeningskontingent kr 122,-
- Tillegg elektroniske fellesavtaler kr 463,-
Fellesutgiftene justeres normalt en til to ganger årlig i forhold til sameiets faktiske utgifter.
Utgiftene er basert på nåværende eiers forbruk. Kjøper må selv tegne innboforsikring.
Kommunale utgifter
Kommunale avgifter for innværende år er stipulert til kr 10.788,-. I dette inngår gebyr for vann, avløp, renovasjon og feiing/tilsyn.
Kommunale avgifter i Trondheim Kommune er fordelt på 12 terminer. For termin 12 av 12 i 2025 var avgiften på kr 899,-. Stipuleringen av årlige avgifter tar utgangspunkt i denne termin.
Kommunale avgifter og gebyrer kan avvike fra en termin til en annen.
Nåværende eier har et strømforbruk som tilsvarer ca. kr 1.500,- per år / 2.000 kwh. per år.
Boligen er tilknyttet Altibox som leverandør av kabel-tv. Tv-tuner/dekoder medfølger.
Utgiftene er basert på nåværende eiers forbruk og avtaler.
Formuesverdi
Formuesverdi for 2024 var kr 654.987,- ifølge skatteetaten. Beløpet forutsetter at eier bor fast i boligen (primærbolig).
Ved eventuell øvrig bruk av eiendommen (f.eks. fritidsbolig, pendlerbolig, utleieobjekt) var formuesverdien for 2024 kr 2.619.947,-.
Formuesverdien justeres normalt årlig. Se skatteetaten.no for mer informasjon om fastsettelse av formuesverdien.
Opplysninger om fellesgjeld
Andel formue er kr 13.633,- per 31.12.2024.
Andel fellesgjeld er kr 0,- per 31.12.2024.
Omkostninger
2 690 000,00 Prisantydning
Omkostninger
67 250,00 Dokumentavgift til staten (2,5% av kjøpesum)
9 950,00 Gjensidige Boligkjøperpakke (valgfri)
545,00 Tinglysing panterettsdokument
545,00 Tinglysing skjøte
--------------------------------------------------------
78 290,00 Omkostninger totalt
--------------------------------------------------------
2 768 290,00 Totalpris inkl. omkostninger
--------------------------------------------------------
Totalpris inkl. omkostninger forutsetter kjøp til prisantydning. Det tas forbehold om endringer i avgifter og gebyrer.
Betalingsbetingelser
Kjøpesum inkludert omkostninger, samt pantedokument tilknyttet eventuelt lån, skal være disponibelt hos megler 2 virkedager før overtagelsen.
Annen viktig informasjon
Annen viktig informasjon
Eier
Lisa Nguyen
Informasjon om sameiet
Eiendommen er seksjonert, og leiligheten er tilknyttet Sameiet Yippi Høiseth B6-B7, med sameiebrøk 45/6081.
Sameiet består av totalt 108 boligseksjoner og 6 næringsseksjoner. Både boligseksjon og næringsseksjon omtales som eierseksjoner.
Forretningsfører er TOBB.
Det er pliktig medlemskap i Lund Østre Velforening for samtlige seksjonseiere. Kontingent er inkludert i de faste månedlige felleskostnadene til sameiet.
Dugnad må påregnes. Det er ingen særskilte restriksjoner på dyrehold, men det forutsettes at dyrets eier har ansvar for at dyreholdet ikke er til unødig sjenanse eller bryderi for de øvrige sameierne eller andre som ferdes på sameiets område. Se husordensreglene for mer informasjon.
Foretatte påkostninger:
- Parkeringsoppfølgning via Trondheim Parkering og etablering av flere parkeringsplasser.
Planlagte påkostninger:
- Alle tre blokkene skal males opp i løpet av 2026. Foreløpig estimat er kr 1.200.000,-. Det planlegges ekstraordinær utfakturering til seksjonene i tre omganger, alle i perioden juni - september 2025. Totalen per faktura vil ikke overstige kr 2 500,-. I følge selger er store deler av summen er allerede betalt for per boenhet.
Vi gjør videre oppmerksom på at det iht. eierseksjonsloven ikke er anledning å erverve mer enn 2 seksjoner i sameiet, her teller også eierskap via. firma, nærstående og familie. Kjøper har risikoen for at overskjøting på denne bakgrunn kan nektes av Statens Kartverk. I så fall vil kjøper uansett være forpliktet til å gjennomføre handelen, og oppgjør til selger vil finne sted tross manglende overskjøting. Konferer med megler for mer informasjon.
Dokumenter for sameiet og kopi av seksjonsbegjæringen kan fås ved henvendelse til megler
Overtakelse
Etter nærmere avtale.
Boligselgerforsikring
Det gjøres oppmerksom på at selger ikke har tegnet boligselgerforsikring som dekker selgers ansvar etter avhendingsloven. Likevel foreligger selgers egenerklæring og godkjent tilstandsrapport som interessenter må sette seg inn i før bud inngis. Eventuelle reklamasjoner må rettes direkte til selger.
Boligkjøperforsikring
Innen kontraktsmøtet må kjøper ta stilling til om det ønskes å bestille Boligkjøperpakken gjennom Gjensidige. I denne gunstige pakken er boligen ferdig forsikret og inkluderer rettshjelpsforsikring, også kalt Boligkjøperforsikring. Rettshjelpsforsikring gir trygghet og tilgang på profesjonell juridisk hjelp dersom det oppdages uventede feil eller mangler det første året etter overtagelse. Forsikringsselskapet behandler i så fall ethvert mangelskrav kjøper måtte ha overfor selger.
Boligkjøperpakken inkluderer bygningsforsikring for hus og hytte, innboforsikring, flytteforsikring og dobbel rentedekning - i situasjoner hvor kjøper ikke får solgt nåværende primærbolig.
Kjøper mottar ingen særskilt faktura for Boligkjøperpakken da kostnaden det første året legges til kjøpesummen for boligen. Det gjøres oppmerksom på Krogsveen mottar et honorar for denne formidlingen.
Produktark for Boligkjøperpakken ligger vedlagt i salgsoppgaven.
Dersom ikke boligkjøperpakke ønskes kan kun rettshjelpsforsikring, også kalt boligkjøperforsikring, tegnes særskilt via megler. Rettshjelpsforsikringen varer i 5 år fra overtagelse og leveres gjennom Gjensidige. Ta kontakt med megler for ytterligere informasjon.
Selskap og privatpersoner som driver med kjøp/salg/utvikling som ledd i egen næringsvirksomhet kan ikke tegne boligkjøperpakke eller rettshjelpsforsikring.
Budgivning
Forbrukerinformasjon om budgivning er vedlagt denne salgsoppgaven og er også på vår hjemmeside Krogsveen.no. Alle bud og budforhøyelser må inngis skriftlig. I tillegg må legitimasjon være fremlagt sammen med signatur fra budgiver.
Vi oppfordrer til å gi bud elektronisk via GI BUD-knappen på eiendommens hjemmeside på Krogsveen.no. Da vil samtlige vilkår bli oppfylt. Eventuelle forhøyelser eller endringer av budet kan bekreftes pr SMS eller på e-post. Vi oppfordrer alltid til å kontakte megler pr. telefon i tillegg da forsinkelser i SMS og e-post kan forekomme.
For at budene skal kunne bli behandlet og videreformidlet skriftlig til alle involverte parter, må alle bud ha en tilstrekkelig lang akseptfrist, jf. eiendomsmeglingsforskriften § 6-3.
Selger må også skriftlig akseptere budet før aksept kan formidles til budgiver. Akseptfrist bør derfor være på minimum 30 minutter, og budforhøyelser må derfor skje i god tid før fristens utløp.
Bud i forbrukerforhold kan uansett ikke settes med kortere frist enn kl. 12.00 første virkedag etter siste annonserte visning. I tillegg kan ikke budet ha forbehold om at det skal holdes hemmelig ovenfor øvrige interessenter. Megler har iht lov om eiendomsmegling ikke anledning til å videreformidle disse budene, og de vil dermed heller ikke bli journalført.
Etter at eiendommen er solgt vil kjøper og selger få tilsendt budjournal. Øvrige budgivere kan få utlevert kopi av budjournalen i anonymisert form.
Hvitvaskingsreglene
I henhold til lov om hvitvasking og terrorfinansiering har megler plikt til å gjennomføre kontrolltiltak overfor kunder, herunder fullmektiger. Dette innebærer bl.a. å bekrefte kunders og reelle rettighetshaveres identitet på bakgrunn av fremvist gyldig legitimasjon eller på annen godkjent måte, samt å innhente opplysninger om kundeforholdets formål og tilsiktede art.
Dersom slike kundetiltak ikke kan gjennomføres, kan megler ikke etablere kundeforholdet eller utføre transaksjonen.
Hvis kjøper ikke bidrar til gjennomføring av kundekontrollen og dette fører til at transaksjonen blir forsinket eller ikke kan gjennomføres, vil dette ansees som mislighold av avtalen og gi selger rettigheter etter avhendingslova kapittel 5. I tilfeller der selger ikke bidrar til gjennomføring av løpende kundekontroll underveis i oppdraget, er det selger som misligholder sine forpliktelser etter avtalen og gi kjøper rettigheter etter avhendingslovens kapittel 4. Partene er selv ansvarlige for eventuelle kostnader og ansvar dette kan medføre. Eiendomsmegleren eller eiendomsmeglingsforetaket kan ikke holdes ansvarlig for de konsekvenser dette vil kunne få for partene eller andre som har interesser i eiendomshandelen.
Kjøper oppfordres til å innbetale kjøpesummen som ikke kommer fra låneinstitusjon i én samlet innbetaling fra egen konto i norsk bank. Megler har plikt til å melde fra til Økokrim om eiendomshandler som fremstår som mistenkelige. Melding sendes Økokrim uten at partene varsles.
Personopplysningsloven
I henhold til personopplysningsloven gjør vi oppmerksom på at interessenter kan bli registrert for videre oppfølging.
Lovanvendelse
Generelle bestemmelser
Salgsoppgaven er basert på de opplysningene selger har gitt til megler, den bygningssakyndiges tilstandsrapport, samt opplysninger innhentet fra kommunen, Kartverket og andre tilgjengelige kilder. Det er viktig at kjøper setter seg grundig inn i alle salgsdokumentene, herunder salgsoppgave, tilstandsrapport og selgers egenerklæring. Kjøper anses kjent med forhold som er tydelig beskrevet i salgsdokumentene, og slike forhold kan ikke påberopes som mangler. Dette gjelder uavhengig av om kjøper har lest dokumentene. Alle interessenter oppfordres til å undersøke eiendommen nøye, gjerne sammen med fagkyndig før bud inngis. Kjøper som velger å kjøpe usett kan ikke gjøre gjeldende som mangel noe han burde blitt kjent med ved undersøkelsen.
Dersom det er behov for avklaringer, anbefaler vi at interessenter rådfører seg med eiendomsmegler eller egne rådgivere før det legges inn bud.
En bolig som har blitt brukt i en viss tid, har vanligvis blitt utsatt for slitasje og skader kan ha oppstått. Slik bruksslitasje må kjøper regne med, og det kan avdekkes enkelte forhold etter overtakelse som nødvendiggjør utbedringer. Normal slitasje og skader som nødvendiggjør utbedring, er innenfor hva kjøper må forvente og vil ikke utgjøre en mangel.
Kjøper og selgers rettigheter og plikter reguleres av avtalen mellom partene, samt informasjonen som har vært tilgjengelig for kjøperen i forbindelse med handelen. Avtalen utfylles av avhendingsloven, og det gjelder ulike avtalevilkår avhengig av om kjøper er forbrukerkjøper eller ikke. Dette er nærmere beskrevet nedenfor.
På grunn av ulike avtalevilkår kan selger vurdere bud fra en som ikke er forbruker, ulikt fra en forbrukers bud. Dersom kjøper ikke er forbruker, er selger sitt mulige mangelsansvar begrenset fordi eiendommen selges "som den er". Selger kan ikke ta «som den er»- forbehold overfor en forbrukerkjøper. Selv et lavere bud fra en som ikke er forbruker kan foretrekkes fordi begrensningen i mulig mangelsansvar kan ha egenverdi for selger. Selger står fritt til å forkaste eller akseptere ethvert bud, og er for eksempel ikke forpliktet til å akseptere høyeste bud.
Budgiver skal i budskjema avgi egenerklæring om budgiver er forbruker eller næringsdrivende/ person som hovedsakelig handler som ledd i næringsvirksomhet. Budgivere får informasjon dersom andre bud er inngitt av en som ikke er forbruker.
Forbrukerkjøp - definisjon
Med forbrukerkjøp menes kjøp av eiendom når kjøperen er en fysisk person som ikke hovedsakelig handler som ledd i næringsvirksomhet.
Forbruker – avtalevilkår
Eiendommen har en mangel dersom den ikke er i samsvar med kravene som følger av avtalen, eller det foreligger brudd på bestemmelsene i avhendingsloven §§ 3-2 til 3-8. Hvis eiendommen ikke er i samsvar med det kjøperen må kunne forvente ut ifra alder, type og synlig tilstand, kan det være grunnlag for mangelskrav. Det samme gjelder hvis det er holdt tilbake eller gitt uriktige opplysninger om eiendommen. Dette gjelder likevel bare dersom man kan gå ut ifra at det virket inn på avtalen at opplysningen ikke ble gitt eller at mangelskravet ikke blir rettet i tide på en tydelig måte.
Boligen kan ha en mangel etter avhendingsloven § 3-3 andre ledd, dersom det er avvik mellom opplyst og faktisk innvendig areal, forutsatt at avviket er på 2% eller mer og minimum 1 kvm.
Ved beregning av et eventuelt prisavslag eller erstatning må kjøper selv dekke tap/kostnader opptil et beløp på kr 10 000 (egenandel).
Ikke-forbruker (næringsdrivende) – definisjon
Hvis kjøper er en juridisk person, eller en fysisk person som hovedsakelig handler som ledd i næringsvirksomhet, vil kjøpet ikke anses som et forbrukerkjøp.
Ikke-forbruker – avtalevilkår
Eiendommen har en mangel dersom den ikke er i samsvar med kravene som følger av avtalen.
Eiendommen selges «som den er», og selgers ansvar utover det konkret avtalte er da begrenset etter avhendingsloven § 3-9, første ledd andre setning.
Avhendingsloven § 3-3 andre ledd fravikes, og hvorvidt boligens arealsvikt utgjør en mangel vurderes etter avhendingsloven § 3-8.
Informasjon om kjøpers undersøkelsesplikt, herunder oppfordringen om å undersøke eiendommen nøye, gjelder også for kjøpere som ikke anses som forbrukere.
Det forutsettes at hjemmel overføres til kjøper. Hvis kjøper ikke ønsker hjemmelsoverføring av eiendommen, må det tas forbehold om dette i budet.
Meglers vederlag
Meglers vederlag betales av selger og er avtalt til:
- Vederlag: 1,25 % av salgssummen inkl. eventuell fellesgjeld.
Vederlag:
- Kontroll av hjemmel og heftelser: kr 3.900,-
- Markedsføringspakke: kr 29.900,-
- Oppgjør: kr 8.900,-
- Tilrettelegging: kr 19.900,-
- Visninger — selger skal maks betale for 1 visning: kr 2.900,-
Utlegg:
- Eierskiftegebyr forretningsfører (selger): kr 6.725,-
- Informasjon forretningsfører: kr 4.000,-
- Offentlige opplysninger Trondheim kommune: kr 2.486,20,-
- Tinglysing sikring: kr 545,-
Andre utgifter:
- Boligselgerforsikring Gjensidige: kr 12.137,-
- Foto: kr 4.125,-
- Tilstandsrapport leilighet: kr 10.750,-
Vi er opptatt av verdiskapning, og har knyttet til oss samarbeidspartnere som skal sikre våre kunder de beste produkter og tjenester:
- I forbindelse med forberedelse av salget, innhenter vi informasjon om eiendommen hovedsakelig fra vår samarbeidspartner Amibita.
- Gjensidige leverer boligselgerforsikring og tilbyr bygningsforsikring.
- Boligkjøperforsikring leveres av Hiscox og med Sedgwick som skadebehandler, og er formidlet gjennom Gjensidige.
- BN bank tilbyr finansieringsløsninger.
- Vår avdeling Krogsveen Pluss tilbyr flyttetjenester som utvask, visningsvask, lager, tømming og transport av flyttelass, i tillegg til å formidle kontakt med Flip for overflateoppussing.
- I forbindelse med overtagelse av eiendommen tilbyr Overo avtale om strøm, alarm og bredbånd.
- Krogsveen er, sammen med øvrige bransjeaktører, medeier i Bomega AS som tilbyr den digitale annonseringsplattformen Hjem.
Opplysninger om oppdraget
Oppdragsnummer 68-0008/26
Eiendomsmegler Krogsveen AS, avd. Trondheim
Fjordgata 82, 7010, TRONDHEIM
950 007 613
Oppdragets KR-kode KR68.268
Dato
Sist oppdatert: 02. februar 2026 kl. 21:04
Dokumenter
Dokumenter
PDF – 944 KB
PDF – 680 KB
PDF – 311 KB
PDF – 9 MB
PDF – 312 KB
PDF – 29 KB
PDF – 127 KB
PDF – 392 KB
Område
Legg til steder som er viktige for deg
Visning
For å delta på visning, ber vi om at du melder deg på. Kontakt megler dersom annet tidspunkt ønskes.
Lurer du på noe?
Unngå doble boligrenter
Vi tilbyr gunstig forsikring.
Vurderer du utleie?
Få et tilbud fra Utleie KrogsveenHva koster lånet?
Sjekk estimert lånekostnadVil du varsles om lignende boliger?
Ved å lagre ditt boligsøk hos oss får du beskjed når vi har en bolig som ligner denne, før den legges ut på markedet!




