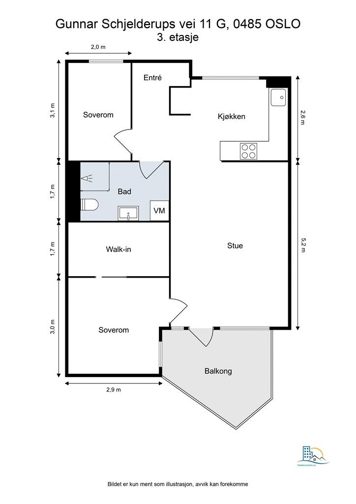
Gunnar Schjelderups vei 11G
6 350 000 kr
61 m²
2 soverom
Solgt
Nydalen
Lekker og innbydende 3-roms med fiskebensgulv og høy standard | Balkong på 8 m² | Garasjeopsjon og heis
Prisantydning
6 350 000 krOmkostninger
170 640 krTotalpris
6 520 640 kr
Pris
Bruksareal
66 m²BRA-I (internt bruksareal)
61 m²BRA-E (eksternt bruksareal)
5 m²TBA (terrasse-balkongareal)
8 m²
Areal
Etasje
3Byggeår
2007Soverom
2 soveromBad
1 badType
EierleilighetEierform
EierseksjonFasiliteter
Garasje/P-plass, Heis og Balkong/TerrasseFellesutgifter
3 769 krEnergimerke
Rød D
Nøkkelinfo
Unngå doble boligrenter
Vi tilbyr gunstig forsikring.
Vurderer du utleie?
Få et tilbud fra Utleie KrogsveenHva koster lånet?
Sjekk estimert lånekostnadBeskrivelse
Kort om eiendommen
Tom Martinsen v/ Krogsveen har gleden av å presentere til Gunnar Schjelderups vei 11G! En lekker og moderne 3-roms selveierleilighet i 3. etasje, sentralt i populære Nydalen. Leiligheten holder en høy standard og har en generøs takhøyde, vindusflater fra gulv til tak og flott uteplass. Her bor du med umiddelbar nærhet til «alt» du trenger, inkludert Storo Storsenter, dagligvare, treningssentre og god kollektivdekning.
Kvaliteter:
Kjøper gis opsjon til kjøp av garasjeplass med lader til elbil for kr. 400 000
Smart planløsning med god størrelse på alle rom
Store vindusflater fra gulv til tak
God lagringsplass i kjellerbod
Romslig og solrik svalgang
God takhøyde på 2,6 m.
Varmtvann og TV inkl.
Elegant fiskebensgulv
Balkong på 8 m²
Område
Legg til steder som er viktige for deg
På flyttefot? Tenk kjøp og salg samtidig.
Få din egen rådgiver gjennom hele kjøps- og salgsprosessen. Det starter med en verdivurdering.
Unngå doble boligrenter
Vi tilbyr gunstig forsikring.
Vurderer du utleie?
Få et tilbud fra Utleie KrogsveenHva koster lånet?
Sjekk estimert lånekostnadVil du varsles om lignende boliger?
Ved å lagre ditt boligsøk hos oss får du beskjed når vi har en bolig som ligner denne, før den legges ut på markedet!
På flyttefot? Slik gjør vi det enklere for deg
Skreddersydd flyttepakke
Vi fikser håndverkere, vask, pakking, lagring og transport, og legger ut for utgiftene underveis.
Hjelp med både kjøp og salg
Hos oss har du din egen rådgiver gjennom hele kjøps- og salgsprosessen.
Hjelp til finansiering
Vårt samarbeid med BN Bank sikrer deg rask og løsningsorientert hjelp, til konkurransedyktige betingelser.




