Losjeplassen 26
5 900 000 kr
112 m²
2 soverom
Solgt

Presenteres av
Arild KnudsenBragernes
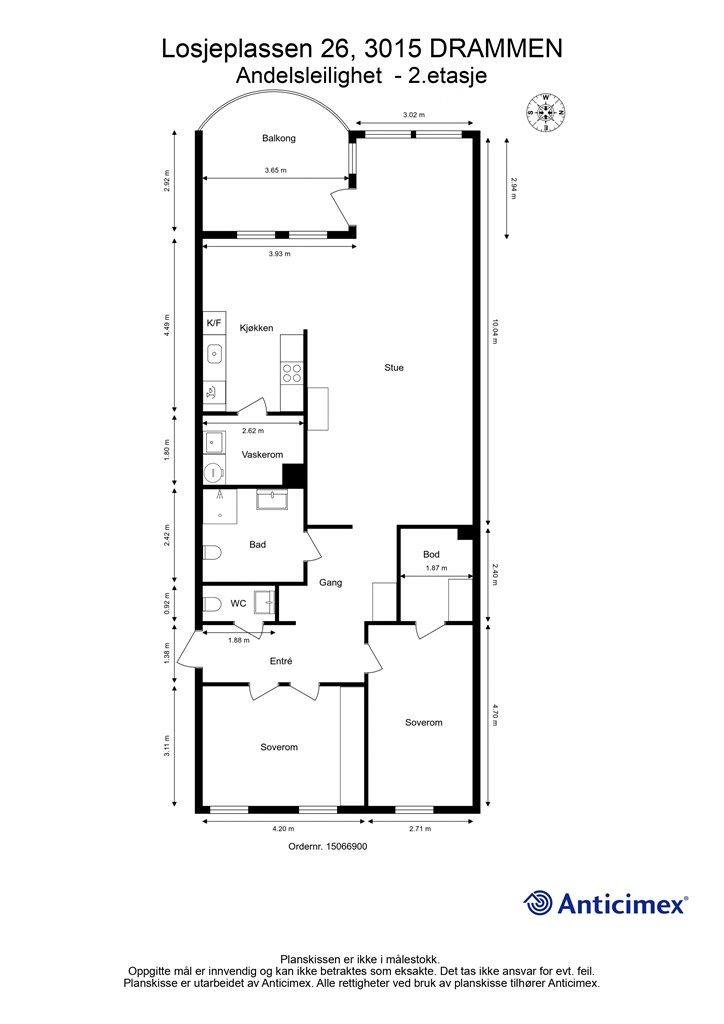
Pen og romslig 3(4)-roms leilighet i 2. etasje. Bad og wc-rom. Balkong. Heis. Garasjeplass. Sentrumsnær beliggenhet.
Prisantydning
5 900 000 krAndel fellesgjeld
207 331 krOmkostninger
19 250 krTotalpris
6 126 581 kr
Pris
Bruksareal
117 m²BRA-I (internt bruksareal)
112 m²BRA-E (eksternt bruksareal)
5 m²TBA (terrasse-balkongareal)
11 m²
Areal
Etasje
2Byggeår
1999Soverom
2 soveromBad
1 badType
AndelsleilighetEierform
AndelFasiliteter
Garasje/P-plass, Heis og Balkong/TerrasseFellesutgifter
7 931 krEnergimerke
Rød D
Nøkkelinfo
Unngå doble boligrenter
Vi tilbyr gunstig forsikring.
Vurderer du utleie?
Få et tilbud fra Utleie KrogsveenHva koster lånet?
Sjekk estimert lånekostnadBeskrivelse
Kort om eiendommen
Pen og romslig 3(4)-roms leilighet i 2. etasje.
Stor stue med god plass til flere sosiale soner og delvis åpent mot kjøkken
Bad med innredning samt dusjdører fra 2019
Praktisk vaskerom med utslagsvask og separat wc-rom
2 romslige soverom (1 rom er opprinnelig 2 soverom)
Balansert ventilasjon i leiligheten
Godt med lagringsplass i innebod, flere garderobeskap og kjellerbod
Enkelte rom og bygningsdeler har et tidsmessig oppgraderingsbehov
Overbygget sydvestvendt balkong på ca. 11 kvm
Eget utvendig inngangsparti og heisadkomst i bygningen
Disponibel parkeringsplass i felles garasjeanlegg
Sentral og pendlervennlig leilighet beliggende i et område som har mye å tilby
Kort gangavstand til kjøpesenter og strandpromenaden langs Drammenselva
Område
Legg til steder som er viktige for deg
På flyttefot? Tenk kjøp og salg samtidig.
Få din egen rådgiver gjennom hele kjøps- og salgsprosessen. Det starter med en verdivurdering.
Unngå doble boligrenter
Vi tilbyr gunstig forsikring.
Vurderer du utleie?
Få et tilbud fra Utleie KrogsveenHva koster lånet?
Sjekk estimert lånekostnadVil du varsles om lignende boliger?
Ved å lagre ditt boligsøk hos oss får du beskjed når vi har en bolig som ligner denne, før den legges ut på markedet!
På flyttefot? Slik gjør vi det enklere for deg
Skreddersydd flyttepakke
Vi fikser håndverkere, vask, pakking, lagring og transport, og legger ut for utgiftene underveis.
Hjelp med både kjøp og salg
Hos oss har du din egen rådgiver gjennom hele kjøps- og salgsprosessen.
Hjelp til finansiering
Vårt samarbeid med BN Bank sikrer deg rask og løsningsorientert hjelp, til konkurransedyktige betingelser.

