Drognestoppen 5
3 700 000 kr
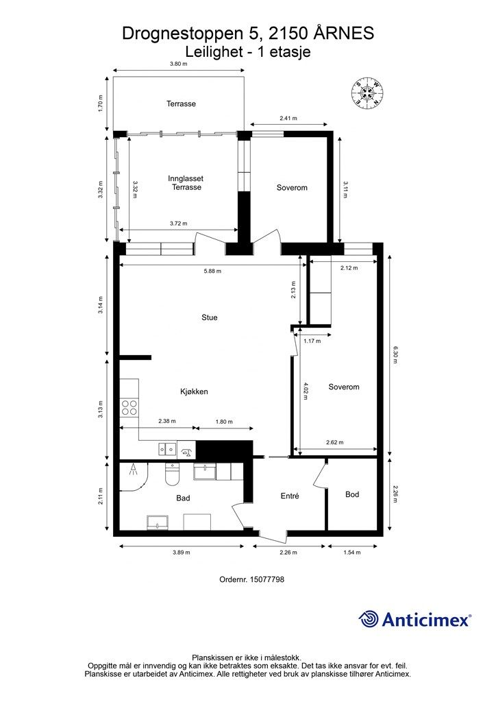
79 m²
2 soverom
Solgt

Flott, sentrumsnær 3-roms leilighet på bakkeplan med innglasset terrasse og garasje!
Prisantydning
3 700 000 krOmkostninger
103 540 krTotalpris
3 803 540 kr
Pris
Bruksareal
99 m²BRA-I (internt bruksareal)
79 m²BRA-E (eksternt bruksareal)
5 m²TBA (terrasse-balkongareal)
6 m²
Areal
Etasje
1Byggeår
2015Soverom
2 soveromBad
1 badType
EierleilighetEierform
EierseksjonFasiliteter
Garasje/P-plass, Heis og Balkong/TerrasseFellesutgifter
5 723 krEnergimerke
Rød C
Nøkkelinfo
Unngå doble boligrenter
Vi tilbyr gunstig forsikring.
Vurderer du utleie?
Få et tilbud fra Utleie KrogsveenHva koster lånet?
Sjekk estimert lånekostnadBeskrivelse
Kort om eiendommen
Velkommen til Drognestoppen 5! En innbydende og moderne 3-roms leilighet på bakkeplan, for deg som ønsker en enkel og komfortabel hverdag. Leiligheten har to gode soverom, romslig stue med åpen kjøkkenløsning og direkte utgang til en innglasset terrasse som forlenger stuen og gir en herlig uteplass store deler av året.
Boligen holder en gjennomgående moderne standard med fjernvarme og vannbåren gulvvarme på badet. Det medfølger egen parkeringsplass i oppvarmet garasjekjeller, og beboerne har tilgang til en flott felles takterrasse. Beliggenheten er svært sentral med kort vei til Årnes stasjon, sentrum, butikker, skole og barnehage. Dette er en lettstelt og attraktiv bolig som passer like godt for par, små familier som for godt voksne.
Område
Legg til steder som er viktige for deg
På flyttefot? Tenk kjøp og salg samtidig.
Få din egen rådgiver gjennom hele kjøps- og salgsprosessen. Det starter med en verdivurdering.
Unngå doble boligrenter
Vi tilbyr gunstig forsikring.
Vurderer du utleie?
Få et tilbud fra Utleie KrogsveenHva koster lånet?
Sjekk estimert lånekostnadVil du varsles om lignende boliger?
Ved å lagre ditt boligsøk hos oss får du beskjed når vi har en bolig som ligner denne, før den legges ut på markedet!

