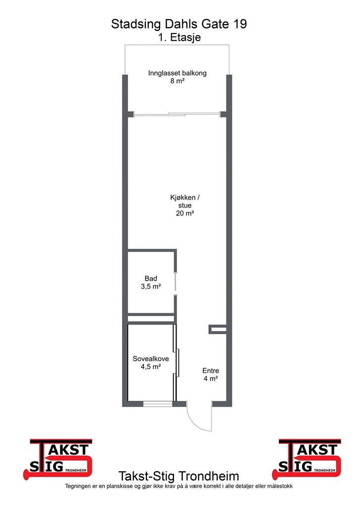
Stadsing Dahls gate 19
3 190 000 kr
33 m²
1 soverom
Solgt

Presenteres av
Jan Vidar LysbakkenRosenborg
Nyoppusset (2025) og meget lekker eierleilighet | Gangavstand til sentrum og Solsiden | Innglasset balkong | Fjernvarme
Prisantydning
3 190 000 krOmkostninger
90 790 krTotalpris
3 280 790 kr
Pris
Bruksareal
46 m²BRA-I (internt bruksareal)
33 m²BRA-E (eksternt bruksareal)
4 m²
Areal
Etasje
1Byggeår
2005Soverom
1 soveromBad
1 badType
EierleilighetEierform
EierseksjonFasiliteter
Heis og Balkong/TerrasseFellesutgifter
2 087 krEnergimerke
Grønn D
Nøkkelinfo
Unngå doble boligrenter
Vi tilbyr gunstig forsikring.
Vurderer du utleie?
Få et tilbud fra Utleie KrogsveenHva koster lånet?
Sjekk estimert lånekostnadBeskrivelse
Kort om eiendommen
Velkommen til Stadsing Dahls gate 19 - en delikat og meget tiltalende leilighet på Rosenborg Park. Her bor du sentrumsnært med gangavstand til det meste av Trondheims mest attraktive fasiliteter, samtidig som du også er tilbaketrukket i et rolig og skjermet område.
Verdt å nevne:
Nydelig oppusset leilighet (2025) med lekker standard og gjennomtenkte løsninger
Balansert ventilasjon og fjernvarme
Innglasset balkong
Generøs takhøyde og god boatmosfære
Bod i kjeller
Lave fellesutgifter som inkluderer bl.a. varmtvann, fjernvarme og internett
Nydelige parkmessige uteområder
Etterspurt område med nærhet til midtbyen, uteliv, studiesteder
Dagligvarebutikk (Rema 1000) i nabobygget
Gode bussforbindelser
Område
Legg til steder som er viktige for deg
På flyttefot? Tenk kjøp og salg samtidig.
Få din egen rådgiver gjennom hele kjøps- og salgsprosessen. Det starter med en verdivurdering.
Unngå doble boligrenter
Vi tilbyr gunstig forsikring.
Vurderer du utleie?
Få et tilbud fra Utleie KrogsveenHva koster lånet?
Sjekk estimert lånekostnadVil du varsles om lignende boliger?
Ved å lagre ditt boligsøk hos oss får du beskjed når vi har en bolig som ligner denne, før den legges ut på markedet!
På flyttefot? Slik gjør vi det enklere for deg
Skreddersydd flyttepakke
Vi fikser håndverkere, vask, pakking, lagring og transport, og legger ut for utgiftene underveis.
Hjelp med både kjøp og salg
Hos oss har du din egen rådgiver gjennom hele kjøps- og salgsprosessen.
Hjelp til finansiering
Vårt samarbeid med BN Bank sikrer deg rask og løsningsorientert hjelp, til konkurransedyktige betingelser.


























