Lillebergsvingen 2
4 300 000 kr
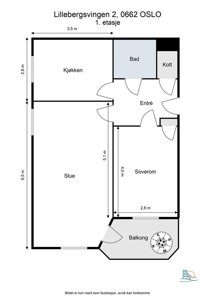
55 m²
1 soverom
Solgt

Presenteres av
Tom MartinsenLilleberg / Hovin
Lys 2-roms hjørneleilighet | Oppussingsobjekt | Vestvendt balkong | Varmtvann og internett inkl. | Attraktiv beliggenhet
Prisantydning
4 300 000 krAndel fellesgjeld
65 000 krOmkostninger
19 252 krTotalpris
4 384 252 kr
Pris
Bruksareal
66 m²BRA-I (internt bruksareal)
55 m²BRA-E (eksternt bruksareal)
11 m²TBA (terrasse-balkongareal)
8 m²
Areal
Etasje
1Byggeår
1951Soverom
1 soveromBad
1 badType
AndelsleilighetEierform
AndelFasiliteter
Balkong/TerrasseFellesutgifter
4 132 krEnergimerke
Rød G
Nøkkelinfo
Unngå doble boligrenter
Vi tilbyr gunstig forsikring.
Vurderer du utleie?
Få et tilbud fra Utleie KrogsveenHva koster lånet?
Sjekk estimert lånekostnadBeskrivelse
Kort om eiendommen
Tom Martinsen v/ Krogsveen har gleden av å presentere Lillebergsvingen 2!
En arealeffektiv 2-roms hjørneleilighet i populære Lilleberg borettslag. Boligen har en herlig solrik balkong på 7 kvm med fint utsyn over grønne omgivelser i nabolaget. Store vindusflater skaper en lys og luftig atmosfære. Boligen har moderniseringsbehov. Her bor du med en attraktiv beliggenhet med nærhet til det du måtte trenge i hverdagen.
Kvaliteter:
Godt tilbud av offentlig kommunikasjon, servicetilbud og andre fasiliteter
God oppbevaringsplass i 3 medfølgende boder
Nærhet til en rekke servicetilbud og fasiliteter
Vestvendt og solrik balkong på 7 kvm
Nærhet til idylliske parkområder
Varmtvann og internett inkl.
Arealeffektiv
Sentralt
Velkommen til visning!
Område
Legg til steder som er viktige for deg
På flyttefot? Tenk kjøp og salg samtidig.
Få din egen rådgiver gjennom hele kjøps- og salgsprosessen. Det starter med en verdivurdering.
Unngå doble boligrenter
Vi tilbyr gunstig forsikring.
Vurderer du utleie?
Få et tilbud fra Utleie KrogsveenHva koster lånet?
Sjekk estimert lånekostnadVil du varsles om lignende boliger?
Ved å lagre ditt boligsøk hos oss får du beskjed når vi har en bolig som ligner denne, før den legges ut på markedet!
På flyttefot? Slik gjør vi det enklere for deg
Skreddersydd flyttepakke
Vi fikser håndverkere, vask, pakking, lagring og transport, og legger ut for utgiftene underveis.
Hjelp med både kjøp og salg
Hos oss har du din egen rådgiver gjennom hele kjøps- og salgsprosessen.
Hjelp til finansiering
Vårt samarbeid med BN Bank sikrer deg rask og løsningsorientert hjelp, til konkurransedyktige betingelser.

