Knut Bjørhuus vei 42B
2 690 000 kr
70 m²
2 soverom
Komplett salgsoppgave

Drammen
Leilighet med to soverom. Fint utsikt. Høy 1. etasje. Innglasset balkong på 11 kvm. Kort vei til turområder.
Prisantydning
2 690 000 krAndel fellesgjeld
366 892 krOmkostninger
11 040 krTotalpris
3 067 932 kr
Pris
Bruksareal
95 m²BRA-I (internt bruksareal)
70 m²BRA-E (eksternt bruksareal)
14 m²
Areal
Etasje
1Byggeår
1961Soverom
2 soveromBad
1 badType
AndelsleilighetEierform
AndelFasiliteter
Balkong/TerrasseFellesutgifter
7 282 krEnergimerke
Nøkkelinfo
Unngå doble boligrenter
Vi tilbyr gunstig forsikring.
Vurderer du utleie?
Få et tilbud fra Utleie KrogsveenHva koster lånet?
Sjekk estimert lånekostnadBeskrivelse
Kort om eiendommen
- Innglasset balkong på 11 kvm med utsikt og plass til utemøbler
- Flislagt bad med gulvvarme og opplegg for vaskemaskin
- Kjøkken med integrerte hvitevarer som medfølger leiligheten
- To soverom med garderobeskap
- Leiligheten har god lagringsplass og disponerer to boder i kjeller og en på loftsbod
- Mulighet for leie av biloppstillingsplass
- Leiligheten er beliggende i en høy 1. etasje
- Dagligvarebutikker i nærområdet
- Kort vei til markaområder med lysløyper samt moderne skisenter
- Bussforbindelser med nærliggende holdeplass langs Steinbakken
Innhold og byggemåte
Innhold og byggemåte
Eiendommen
Knut Bjørhuus vei 42B, 3025 DRAMMEN
Kommunenummer 3301, gårdsnummer 116, bruksnummer 384, ideell andel 1/1
Andelsnummer 44, Åsen Borettslag, organisasjonsnummer 952585088
Innhold
Totalt bruksareal BRA: 95 kvm
BRA-i (Internt bruksareal):
Leilighet:
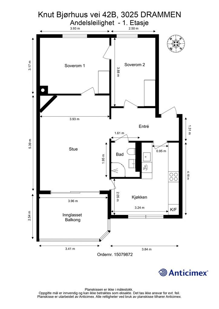
1. etasje 70 kvm: Entré, bad, kjøkken, stue og to soverom
BRA-e (Eksternt bruksareal):
Leilighet:
Kjeller: 9 kvm: To boder
Loftetasjen: 5 kvm: Bod
BRA-b (Innglasset balkong):
Leilighet:
1. etasje 11 kvm: Innglasset balkong
Loftsboden har et totalt gulvareal (GUA) på 9 kvm, men grunnet skråtak/lav takhøyde er kun 5 kvm av arealet måleverdig som bruksareal. De delene av arealene som har lav himlingshøyde (ALH) utgjør 4 kvm.
Boligen disponerer to boder i kjeller og en i loftetasjen. Det gjøres oppmerksom på at boligens eksterne boder tilhører borettslagets fellesareal, og at boden således ikke eies av den enkelte andelseier. Dette medfører at borettslaget i fellesskap beslutter bruken, og at man ikke selv har eierrett og rettsvern for boden. Borettslaget kan ved vedtak beslutte annet bruk av fellesarealet og disponering av bodarealet kan dermed opphøre.
Vedlagte plantegninger er ikke målbare. De oppgitte arealer er hentet fra rapport med befaringsdato 25.03.2026 utført av Anticimex Sandefjord AS. Arealene er beregnet og rom er definert etter dagens faktiske bruk, uavhengig av hva som er godkjent av bygningsmyndighetene.
Byggemåte
Bygningen er iht. tilstandsrapporten oppført med grunnmur av betong. Bygget er oppført med kjeller. Yttervegger i hovedsak av tegl-/murverk. Utvendige fasader av synlig
murverk. Etasjeskillere av betong/murkonstruksjoner. Saltak i trekonstruksjoner. Yttertak er belagt med takstein. Entrédør med sikkerhetslås. Vinduer med karmer av tre. Balkongskyvedør med karmer av tre.
Les for øvrig mer om byggemåte og den tekniske tilstanden i rapporten.
Selger har fått utarbeidet en tilstandsrapport, dvs. en teknisk gjennomgang av boligen hvor eventuelle avvik, risiko for kjøper og prisoverslag for hva som bør gjøres av oppgradering, er skissert. Se særskilt TGIU (tilstandsgrad ikke undersøkt), samt TG2 og TG3 som viser hva som er avvik fra boligens normale slitasje, alder og type, eller som bør/må utbedres. Rapporten og selgers egenerklæring er en del av salgsoppgaven og må leses nøye før bud inngis. Kjøper overtar ansvaret for de opplysninger som fremkommer av salgsdokumentasjonen, og kan ikke gjøre gjeldende som mangel noe som burde vært kjent eller som ikke kan anses å ha betydning for avtalen.
TG2 gir uttrykk for forhold som avviker fra dagens byggetekniske krav i vesentlig og mindre grad. Dette betyr at konstruksjonen enten har feil utførelse, en skade eller tegn på skade, sterk slitasje eller nedsatt funksjon. Vedlikehold eller tiltak må påregnes i nær fremtid. TG3 gir uttrykk for forhold som har store eller alvorlige avvik. Det må påregnes utbedring straks eller utbedring innen kort tid. Ingen kontrollpunkter/forhold har blitt tildelt TG3.
Følgende kontrollpunkter/forhold har blitt tildelt TG2:
-Vanntett sjikt på badet har en alder som tilsier at fremtidig funksjon er usikker. Bygningsdelen er skjult, så den faktiske tilstanden og dagens tettefunksjon er ukjent. Det foreligger lite informasjon om arbeidet som er gjort i våtrommet. Konsekvensen er at dette erfaringsmessig medfører risiko for andre skjulte feil og mangler, som ikke lar seg registrere ved visuell inspeksjon.
-Kjøkkengulvets overflatemateriale bærer stedvis preg av slitasje. Forholdet vurderes i hovedsak til å være av estetisk betydning, uten nevneverdige konsekvenser utover dette. Gulvets overflatemateriale har tegn til svelleskader ved oppvaskmaskin. Overflatesøk med fuktindikasjonsinstrument ble gjennomført, uten at det ble registrert forhøyede verdier. Vannrør er ikke plugget mot varerør. Konsekvens er at eventuelt lekkasjevann fra rør-i-rør kan forårsake følgeskader.
- Innvendig stakeluke er ikke påvist, og det er derfor ukjent om dette er etablert. Konsekvens er at det kan væ re vanskelig å utføre nødvendig vedlikehold eller rensing ved eventuell tilstopping.
-Ildsted: Det ble registrert riss/sprekker i fliser. Utskiftning/tiltak bør vurderes.
Øvrige TG2-punkter i rapporten har blitt tildelt tilstandsgraden ut i fra aldringsskader og slitasje.
Følgende kontrollpunkter/forhold har blitt tildelt TGIU:
-Våtrommets vegger er av mur/betong og det er ikke praktisk mulig å gjennomføre fuktmåling/hulltaking i et område der det erfaringsmessig forekommer skader.
Forhold som åpenbart kan medføre fare for helse, miljø og sikkerhet(HMS):
-Rekkverkshøyder, lysåpninger og andre sikkerhetsmessige forhold er kontrollert opp mot dagens gjeldende byggtekniske forskrift, selv om denne ikke har tilbakevirkende kraft. Det ble ikke funnet avvik i henhold til gjeldende forskrift (på befaringstidspunktet).
Se vedlagt tilstandsrapport for supplerende informasjon vedrørende boligens tilstand.
Tilstandsrapporten og selgers egenerklæring er vedlagt salgsoppgaven. Interessenter må sette seg inn i dokumentene før bud inngis.
Standard
Leilighet med beliggende i et veletablert boligområde med kort vei til turområder. Leiligheten ligger i en høy 1. etasje med trappeadkomst til leilighetens etasjeplan. Leiligheten disponerer to boder i kjeller og en i loftetasjen.
Overflater:
Gulv: Fliser og parkett
Vegger: Fliser og tapetserte flater
Himling: Malte flater
Innhold:
Entré med parkett på gulv.
Stue med plass til spisebord og sofa. Oppvarming via vedovn. Utgang til innglasset balkong.
Kjøkken med innredning med profilerte fronter. Benkeplater med laminert overflate og nedfelt kjøkkenvask. Integrert stekeovn, platetopp, oppvaskmaskin og kjøleskap med fryser. Ventilator i overskap. Integrerte hvitevarer medfølger leiligheten.
Flislagt bad med gulvvarme. Innredet med vegghengt servant. Speilskap med overlys over servant. Dusjhjørne med dører. Vegghengt toalett. Mekanisk avtrekk. Opplegg for vaskemaskin.
To soverom med garderobeskap.
Innglasset balkong på 11 kvm med utsikt og plass til utemøbler.
Det vises til liste fra Norges Eiendomsmeglerforbund angående løsøre og tilbehør. Produkter og installasjoner som medfølger overdras uten noen form for garantier, utover eventuell gjenværende leverandørgaranti.
Oppvarming
Oppvarming via gulvvarme på bad og vedovn i stuen. Dersom beboelsesrom ikke har vegg- eller fastmonterte varmekilder ved visning, følger dette heller ikke med.
Ferdigattest/brukstillatelse
Eiendommen har vært brukt til boligformål siden 1961. Kommunen opplyser at det ikke var krav til ferdigattest eller midlertidig brukstillatelse på den tiden eiendommen ble oppført. Det foreligger byggetegninger for oppføring av boligblokk datert 01.03.1960 og byggetillatelse ble gitt 04.03.1960.
Det gjøres oppmerksom på at det ikke lenger utstedes ferdigattest på tiltak det er søkt om før 1998 jf. plan- og bygningsloven § 21-10. Kommunen vil ikke kreve ferdigattest for disse tiltakene og vil avvise eventuelle søknader. Bestemmelsen innebærer ikke at tiltak med manglende søknad blir lovlige, men at man ikke trenger å avslutte gamle byggesaker. Normalt sett kreves ferdigattest for alle søknadspliktige tiltak som gjøres etter plan- og bygningsloven.
Det foreligger ferdigattest for oppgradering av baderom datert 02.02.2010 og for innglassing og utvidelse av eksisterende balkonger datert 17.04.2012. I tilegg er tilhørende godkjente byggetegninger for fasadeendring(innglassing av balkonger) datert 20.05.2011.
Kjøper overtar alt ansvar, kostnad og risiko for dette videre.
Tinglyste heftelser og rettigheter
Utover andel fellesgjeld overdras leiligheten fri for pengeheftelser, med unntak av borettslagets tinglyste panterett:
Borettslaget har legalpant for forfalte felleskostnader og andre krav som følger av borettslagsforholdet iht. burettslagsloven § 5-20. Pantet er begrenset oppad til 2G (G = folketrygdens grunnbeløp).
Det er tinglyst 1 servitutt på borettslagets eiendom. Denne omhandler blant annet bestemmelser om diverse ledninger, gjerde m.m. Denne er ikke av direkte betydning for bruken av denne boligen.
Eventuell adgang til utleie
Andelseier kan ikke uten samtykke fra styret i borettslaget overlate bruken av boligen til andre. Med samtykke kan andelseier overlate boligen til andre i inntil tre år hvis andelseier har bodd i boligen i minst ett av de to siste år. Utleie i andre tilfeller kan godtas ved særlige grunner, jf. burettslagslova § 5-6. Utleie forutsetter at leiligheten har forsvarlige radonverdier. Se også borettslagets vedtekter og konferer megler ved spørsmål.
Diverse
Eiendommen inngår i dødsbo under offentlig skifte hvor boet er selger. Selger har således ikke kunnskap om eiendommens tilstand. Kjøper må derfor kunne påregne at det kan være flere feil og mangler som normalt oppdages ved bruk av boligen, men som selger av dødsbo ikke har mulighet å vite.
Hjemmel vil stå på avdøde frem til overskjøting til ny kjøper. Det gjøres oppmerksom på at det ikke vil bli tinglyst pantedokument med sperre eller annen form for pantesikkerhet på eiendommen før overskjøting. Oppgjør vil skje mot tinglyst skjøte.
Leiligheten overtas slik som vist på visning uten ytterligere rengjøring, eller rydding. Stylisten vil selvfølgelig fjerne sine ting.
Beliggenhet og tomteforhold
Beliggenhet og tomteforhold
Beliggenhet
Eiendommen er beliggende i et attraktivt og veletablert boligområde. Kort vei til markaområder med lysløyper samt moderne skisenter. Dagligvarebutikker i nærområdet og helt ny dagligvarebutikk like ved eiendommen (Extra - Store Landfall Øvre 100). Nærhet til Drammen sentrum med et godt utvalg av sentrumsfasiliteter, servicetilbud og god offentlig kommunikasjon.
Åssiden har meget gode fritids- og sportstilbud, med blant annet Skimore Drammen som kan tilby alpinanlegg (vinterstid), terrengsykling, klatrepark og zipline på sommerstid. Nede ved Drammenselva ligger Berskaug hallen med mulighet for ballspill m.m. og Berskaug idrettsplass med fotballbaner, skøytebane og tennisanlegg. Åssiden IF er et aktivt idrettslag med mange aktiviteter, se foreningens hjemmeside på www.aif.no. Kort vei til flere treningssentre. Nært til attraktive markaområder med lysløyper og flott turterreng året rundt.
Bussforbindelser med nærliggende holdeplass langs Steinbakken, avganger til Drammen sentrum og Lierbyen, se www.brakar.no for rutetider. Kort kjørevei til Drammen togstasjon, hvor toget tar deg til Oslo på ca. 35 minutter, se www.vy.no for avganger. Generelt god offentlig kommunikasjon mot Kongsberg, Oslo og Tønsberg fra Drammen sentrum.
Adkomst
Det vil bli skiltet med Krogsveen visningsskilt ved fellesvisninger. Se kart i nettannonse eller Google Maps for nærmere veibeskrivelse. Velkommen til visning!
Barnehager, skoler og fritid
Godt sammensatt tilbud av private og offentlige barnehager.
Barnehager: Åssiden barnehage (0,8 km), Dalegårdsveien barnehage (0,8 km), Solhagen Rudolf Steiner barnehage (1 km).
Skoler: Aronsløkka barneskole (1,2 km) og Kjøsterud ungdomsskole (0,9 km).
Drammen kommune har tre private barne- og ungdomsskoler, Drammen Realfagsskole Heltberg, Norlights Montessoriskole Drammen og Rosendal skole (Mjøndalen).
Det ligger flere videregående skoler i Drammen og Lier, samt Universitetet i Sørøst-Norge som har campus på Papirbredden i Drammen, for mer informasjon se www.usn.no.
Dersom skole- og barnehagetilbud er av betydning for kjøpet, ber vi om at det rettes en særskilt henvendelse til kommunen for oppdatert informasjon.
Beskrivelse av tomt
Eiertomt på 14 875 kvm. Felles tomt opparbeidet med blant annet asfalterte veier, lekeplass, biloppstillingsplasser, plenarealer og andre forskjellige beplantninger.
Parkering
Borettslaget disponerer 46 garasjer (tildeles etter venteliste) og 54 biloppstillingsplasser, slik at en andelseier skal i utgangspunktet kunne disponere én parkeringsplass hver (p-plass tildeles av styret). Det er montert ladeboks for el-bil til felles bruk, på borettslagets parkeringsområdet.
Leiligheten disponerer ingen parkeringsplass pr. dd., men hver andelseier har krav på å få tildelt en biloppstillingsplass. Biloppstillingsplass koster kr 75,- pr mnd. Kostnaden vil tillegges felleskostnadene pr. mnd hvis ny eier ønsker å disponere en biloppstillingsplass.
Garasjeplass tildeles etter venteliste. Det koster kr 300,- pr. mnd. å leie en garasjeplass.
Øvrig er det gjesteparkering på borettslagets tomt.
Vei, vann og avløp
Eiendommen har adkomst via kommunal vei.
Eiendommen er tilknyttet kommunalt ledningsnett via private stikkledninger.
Borettslaget er ansvarlig for private stikkledninger til bygningen.
Regulerings-og arealplaner
Eiendommen er regulert til boliger og parkeringsplass i henhold til regulerings- og bebyggelsesplan for et areal ved forlengelsen av Henrik Ibsens gate datert 06.03.1959 med tilhørende reguleringsbestemmelser.
Videre er eiendommen avsatt til boligbebyggelse ved kommuneplanen datert 18.06.2025. Eiendommen ligger innenfor hensynssone ras- og skredfare.
Utsnitt av plan med tilhørende bestemmelser kan fås ved henvendelse til megler.
Økonomi
Økonomi
Boligens kostnader
Felleskostnadene er kr 7.282,- pr. mnd. og inkluderer bla. kommunale avgifter(vann og avløp), renovasjon, renter og avdrag på andel fellesgjeld, grunnpakke tv/internett,
felles vedlikehold, felles driftskostnader, snøbrøyting/plenklipping, strøm i fellesarealer, forretningsførsel, revisjon- og administrasjonskostnader, styrehonorar, felles bygningsforsikring m.m.. Felleskostnadene justeres normalt en til to ganger årlig i forhold til borettslagets faktiske utgifter. Det tas forbehold om at felleskostnadene kan justeres fortløpende pga. renteøkninger.
Felleskostnadene pr. mnd fordeles slik:
-Grunnleie kr 6.458,-
-Renter/avdrag av lån(balkonger) kr 824,-
Leiligheten disponerer ingen parkeringsplass pr. dd., men hver andelseier har krav på å få tildelt en biloppstillingsplass. Biloppstillingsplass koster kr 75,- pr mnd. Felleskostnaden vil øke til kr 7.357,- pr. mnd. hvis ny eier vil leie en biloppstillingsplass.
Boligens selges ved fullmektig. Fullmektigen har ikke selv bebodd eiendommen og har derfor ikke kunnskap om strømforbruket. Det må påregnes kostnader til strøm og nettleie, dette vil variere avhengig av strøm-/nettselskap.
Oppvarming av varmt tappevann faktureres direkte til andelseier fra ekstern leverandør på lik linje med strøm.
Det må påregnes kostnader til strøm og innboforsikring.
Ovenstående er basert på nåværende eier/husstands senere års forbruk/utgifter. Dette vil variere avhengig av antall familiemedlemmer i husstanden, ønsket innetemperatur, egne fordelsavtaler, kanalvalg, hastighet på bredbånd osv.
Formuesverdi
Formuesverdi for 2024 var kr 862 795,- ifølge Skatteetaten. Beløpet forutsetter at eier bor fast i boligen (primærbolig).
Ved eventuell øvrig bruk av eiendommen (f.eks. fritidsbolig, pendlerbolig, utleieobjekt) var formuesverdien for 2023 kr 3 451 179,-.
Fra 2026 har Stortinget vedtatt en oppdatert modell for beregning av formuesverdi for primærbolig, så avvik kan forekomme.
For mer informasjon se skatteetaten.no
Opplysninger om fellesgjeld
Andel formue er kr 56 089,- pr. 31.12.2025
Andel fellesgjeld er kr 366 892,- pr. 25.02.2026
Total fellesgjeld for boligselskapet er kr 33 103 790,- pr. 25.02.2026 og lånevilkårene er:
Lånenummer: 60308111760, Nordea Bank ASA
Annuitetslån, 2 terminer per år.
Rentesats per 25.02.2026: 5.5% pa.
Antall terminer til innfrielse: 31
Saldo per 25.02.2026: 9 051 961
Andel av saldo: 100 577
Første termin/første avdrag: 30.12.2021 ( siste termin 30.06.2041 )
Flytende renter
Lånenummer: 60308111779, Nordea Bank ASA
Annuitetslån, 2 terminer per år.
Rentesats per 25.02.2026: 5.6% pa.
Antall terminer til innfrielse: 41
Saldo per 25.02.2026: 24 051 829
Andel av saldo: 266 315
Første termin/første avdrag: 30.12.2021 ( siste termin 30.06.2046 )
Flytende rente
Borettslaget har ikke tilrettelagt for individuell nedbetaling av fellesgjeld.
Omkostninger
2 690 000,00 Prisantydning
366 892,00 Andel av fellesgjeld
--------------------------------------------------------
3 056 892,00 Pris inkl. fellesgjeld
Omkostninger
9 950,00 Gjensidige Boligkjøperpakke (valgfri)* (valgfritt)
545,00 Tinglysing hjemmel
545,00 Tinglysing panterettsdokument
--------------------------------------------------------
1 090,00 Omkostninger totalt (uten Gjensidige Boligkjøperpakke (valgfri))
11 040,00 Omkostninger totalt (med Gjensidige Boligkjøperpakke (valgfri))
--------------------------------------------------------
3 057 982,00 Totalpris inkl. omkostninger
3 067 932,00 Totalpris inkl. omkostninger (med Gjensidige Boligkjøperpakke (valgfri))
--------------------------------------------------------
Dersom kjøper ikke er medlem av boligbyggelaget (NBBO), må det påregnes en innmeldingsavgift og årlig medlemsgebyr pr. ny andelseier. Dette faktureres direkte fra boligbyggelaget.
Dersom forkjøpsrett benyttes skal ny kjøper i tillegg betale et gebyr til boligbyggelaget på kr 8.210,-.
Dersom borettslaget har fellesgjeld, vil leilighetens andel av fellesgjelden komme i tillegg til kjøpesummen. Denne gjelden skal ikke innbetales i oppgjøret, men følger leiligheten.
Det tas forbehold om endringer i avgifter og gebyrer.
Betalingsbetingelser
Kjøpesum inkludert omkostninger, samt pantedokument tilknyttet eventuelt lån, skal være disponibelt hos megler 2 virkedager før overtagelsen.
Annen viktig informasjon
Annen viktig informasjon
Eier
Dødsbo etter Daniel Amancio Correia
Informasjon om borettslaget
Leiligheten er tilknyttet Åsen Borettslag.
Borettslaget består av 90 andelsleiligheter.
Forretningsfører er Nedre Buskerud Boligbyggelag, tlf. 32 21 15 00.
Borettslagets årsregnskap for 2025 viser et overskudd på kr 1.778.384,-
Dugnader og evt. noe snømåking tilknyttet borettslaget må påregnes.
Dyrehold (som hund, katt m.v.) er i utgangspunktet ikke tillatt. Husdyrhold må aksepteres av borettslagets styre. For at søknaden skal vurderes må samtlige andelseiere i den aktuelle oppgangen skrive under på søknaden. Deretter skal søknaden oversendes styrets leder.
Ved renovering av bad er beboer pålagt å skifte sluk. Dette er et vedtak av styret i Åsen borettslag og er et ledd i å hindre vannlekkasje. Det vil bli refundert en sum på kr. 6.000,- ved et slikt skifte. jr. husordensreglene.
Borettslaget har felles strømavlesning. Hvis det blir skiftet strømmåler hos den enkelte beboer, må dette meldes til styret jf. husordensreglene.
Saker under arbeid:
-Borettslaget har i dag noen få ladebokser til el-biler, og eksisterende ladere er ofte ute av drift. Når flere biler lader samtidig, går sikringen, og laderne slutter å fungere. Kun styret har tilgang til sikringen, noe som gjør at laderne kan være utilgjengelige over lengre tid. Beboere/brukere betaler leie for ladeboks, men opplever at ladetilbudet ikke er driftssikkert eller tilstrekkelig. Dette skaper utfordringer for daglig bruk av el-bil. Styret informerte om at det har vært utfordringer med at noen av ladestasjonene ikke har virket. Det jobbes med å innhente anbud på ladeanlegg. Styret har avtalt befaringer med aktuelle leverandører og vil ha første befaring med aktuelle entreprenør i løpet av våren. Det er usikkerhet rundt hvilke utfordringen det er med tilgang til nok strøm der behovet er størst. Styret jobber videre med utbedring av problemene med laderne, og kontakter leverandøren av anlegget for å fikset de laderne som ikke virker. Styret vurderer om det bør byttes leverandør.
-Bygningsmassen har et stort vedlikeholdsbehov, styret skal planlegge tiltak for å opprettholde verdien. Etablering av parkeringsplasser ved Kristian Brenners vei 2 (prosjektet er foreløpig utsatt iht. ordinær generalforsamling avholdt 12.03.2024), prosjektet vil medføre en økning av andel fellesgjeld og felleskostnader.
- Rense avtrekk fra bad og kjøkken i samtlige blokker
-Utbedre dør pumper leilighets dører
-Kamera på søple rommene?
Styret er av den oppfatning at det utførte løpende og periodiske vedlikeholdet er tilstrekkelig for å opprettholde den bokførte verdien på bygningsmassen.
Vedlikehold som er gjennomført siste 5 årene:
1. Bytte leverandør vedlikehold sommer / vinter
2. Fire kjellerboder har fått reparert skader i taket knyttet til utforing av balkonger. Tre i Knut Bjørhuus vei 42 og én i Kristian Brenners vei.
3. Inngangsparti i kjeller i (KB)42 har fått reparert vegg etter salt utslag.
4. Byttet defekte ladere på øvre lade plasser foran Kristian Brenners vei 1.
5. Byttet defekte lampe armaturer.
6. Reparert glass skade i to balkonger.
7. Fornyet avtale med Norsk brannvern og gjennomført kontroll.
8. Byttet og fornyet alle brannslukkingsapparater.
9. Utbedret feil på badene etter El Tilsyn.
10. Reparert trappene som var ødelagt etter brøyting.
11. Satt inn ny søppel rom dør til søppel rom tilhørende Kristian Brenners vei 2 og Steinbakken 2.
12. Utbedret feil på el bil ladere etter El Tilsyn.
13. Byttet defekt motor for port åpner i enn garasje.
14. Ordnet bytte av sprekt glass i en skyvedør via forsikringssak.
I henhold til borettslagets vedtekter må kjøper godkjennes av styret som ny andelseier. Det er kjøpers ansvar at styregodkjenning blir gitt, men styret kan ikke nekte godkjenning uten saklig grunn. Iht. burettslagslova kan man bare eie en andel i borettslaget. Kun fysiske personer kan være andelseiere.
Borettslaget er tilknyttet Borettslagenes Sikringsordning AS som dekker manglende innbetaling av felleskostnader fra øvrige andelseiere. Avtalen om sikring er gyldig til avtalen sies opp av en av partene. Oppsigelsesfrist er 1 desember med gyldighet fra førstkommende årsskifte.
Borettslagets bygningsmasse er fullverdiforsikret i IF, polisenr.: SP1824700.
Dokumenter vedrørende borettslaget kan fås ved henvendelse til megler.
Informasjon om forkjøpsrett
Øvrige andelseiere i borettslaget og medlemmer av boligbyggelaget har forkjøpsrett. I henhold til burettslagslova tar dette 20 dager å avklare fra melding om salget er gitt borettslaget. Dersom boligen tas på forkjøpsrett løses kjøper fra avtalen.
Overtakelse
Etter nærmere avtale.
Boligselgerforsikring
Selger har i forbindelse med salget tegnet Boligselgerforsikring levert av Gjensidige. Boligselgerforsikring dekker selgers ansvar etter avhendingsloven begrenset oppad til kr 14 millioner. Dersom kjøper oppdager forhold ved eiendommen som hen mener utgjør en mangel ved eiendommen, vil Gjensidige behandle reklamasjonen på vegne av selger. Forsikringsvilkår kan fås ved henvendelse til megler.
Vedlagt salgsoppgaven følger selgers egenerklæringsskjema og tilstandsrapport. Interessenter må sette seg inn i dokumentene før bud inngis. Egenerklæringen er fylt ut av bobestyrer som ikke har kjennskap til eiendommen.
Boligkjøperforsikring
Innen kontraktsmøtet må kjøper ta stilling til om det ønskes å bestille Boligkjøperpakken gjennom Gjensidige. I denne gunstige pakken er boligen ferdig forsikret og inkluderer rettshjelpsforsikring, også kalt Boligkjøperforsikring. Rettshjelpsforsikring gir trygghet og tilgang på profesjonell juridisk hjelp dersom det oppdages uventede feil eller mangler det første året etter overtagelse. Forsikringsselskapet behandler i så fall ethvert mangelskrav kjøper måtte ha overfor selger.
Boligkjøperpakken inkluderer bygningsforsikring for hus og hytte, innboforsikring, flytteforsikring og dobbel rentedekning - i situasjoner hvor kjøper ikke får solgt nåværende primærbolig.
Kjøper mottar ingen særskilt faktura for Boligkjøperpakken da kostnaden det første året legges til kjøpesummen for boligen. Det gjøres oppmerksom på Krogsveen mottar et honorar for denne formidlingen.
Produktark for Boligkjøperpakken ligger vedlagt i salgsoppgaven.
Dersom ikke boligkjøperpakke ønskes kan kun rettshjelpsforsikring, også kalt boligkjøperforsikring, tegnes særskilt via megler. Rettshjelpsforsikringen varer i 5 år fra overtagelse og leveres gjennom Gjensidige. Ta kontakt med megler for ytterligere informasjon.
Selskap og privatpersoner som driver med kjøp/salg/utvikling som ledd i egen næringsvirksomhet kan ikke tegne boligkjøperpakke eller rettshjelpsforsikring.
Budgivning
Forbrukerinformasjon om budgivning er vedlagt denne salgsoppgaven og er også på vår hjemmeside Krogsveen.no. Alle bud og budforhøyelser må inngis skriftlig. I tillegg må legitimasjon være fremlagt sammen med signatur fra budgiver.
Vi oppfordrer til å gi bud elektronisk via GI BUD-knappen på eiendommens hjemmeside på Krogsveen.no. Da vil samtlige vilkår bli oppfylt.
Eventuelle forhøyelser eller endringer av budet kan bekreftes pr SMS eller på e-post. Vi oppfordrer alltid til å kontakte megler pr. telefon i tillegg da forsinkelser i SMS og e-post kan forekomme.
For at budene skal kunne bli behandlet og videreformidlet skriftlig til alle involverte parter, må alle bud ha en tilstrekkelig lang akseptfrist, jf. eiendomsmeglingsforskriften § 6-3.
Selger må også skriftlig akseptere budet før aksept kan formidles til budgiver. Akseptfrist bør derfor være på minimum 30 minutter, og budforhøyelser må derfor skje i god tid før fristens utløp.
Bud i forbrukerforhold kan uansett ikke settes med kortere frist enn kl. 12.00 første virkedag etter siste annonserte visning. I tillegg kan ikke budet ha forbehold om at det skal holdes hemmelig ovenfor øvrige interessenter. Megler har iht lov om eiendomsmegling ikke anledning til å videreformidle disse budene, og de vil dermed heller ikke bli journalført.
Etter at eiendommen er solgt vil kjøper og selger få tilsendt budjournal. Øvrige budgivere kan få utlevert kopi av budjournalen i anonymisert form.
Hvitvaskingsreglene
I henhold til lov om hvitvasking og terrorfinansiering har megler plikt til å gjennomføre kontrolltiltak overfor kunder, herunder fullmektiger. Dette innebærer bl.a. å bekrefte kunders og reelle rettighetshaveres identitet på bakgrunn av fremvist gyldig legitimasjon eller på annen godkjent måte, samt å innhente opplysninger om kundeforholdets formål og tilsiktede art.
Dersom slike kundetiltak ikke kan gjennomføres, kan megler ikke etablere kundeforholdet eller utføre transaksjonen.
Hvis kjøper ikke bidrar til gjennomføring av kundekontrollen og dette fører til at transaksjonen blir forsinket eller ikke kan gjennomføres, vil dette ansees som mislighold av avtalen og gi selger rettigheter etter avhendingslova kapittel 5. I tilfeller der selger ikke bidrar til gjennomføring av løpende kundekontroll underveis i oppdraget, er det selger som misligholder sine forpliktelser etter avtalen og gi kjøper rettigheter etter avhendingslovens kapittel 4. Partene er selv ansvarlige for eventuelle kostnader og ansvar dette kan medføre. Eiendomsmegleren eller eiendomsmeglingsforetaket kan ikke holdes ansvarlig for de konsekvenser dette vil kunne få for partene eller andre som har interesser i eiendomshandelen.
Kjøper oppfordres til å innbetale kjøpesummen som ikke kommer fra låneinstitusjon i én samlet innbetaling fra egen konto i norsk bank. Megler har plikt til å melde fra til Økokrim om eiendomshandler som fremstår som mistenkelige. Melding sendes Økokrim uten at partene varsles.
Personopplysningsloven
I henhold til personopplysningsloven gjør vi oppmerksom på at interessenter kan bli registrert for videre oppfølging.
Lovanvendelse
Generelle bestemmelser
Salgsoppgaven er basert på de opplysningene selger har gitt til megler, den bygningssakyndiges tilstandsrapport, samt opplysninger innhentet fra kommunen, Kartverket og andre tilgjengelige kilder. Det er viktig at kjøper setter seg grundig inn i alle salgsdokumentene, herunder salgsoppgave, tilstandsrapport og selgers egenerklæring. Kjøper anses kjent med forhold som er tydelig beskrevet i salgsdokumentene, og slike forhold kan ikke påberopes som mangler. Dette gjelder uavhengig av om kjøper har lest dokumentene. Alle interessenter oppfordres til å undersøke eiendommen nøye, gjerne sammen med fagkyndig før bud inngis. Kjøper som velger å kjøpe usett kan ikke gjøre gjeldende som mangel noe han burde blitt kjent med ved undersøkelsen.
Dersom det er behov for avklaringer, anbefaler vi at interessenter rådfører seg med eiendomsmegler eller egne rådgivere før det legges inn bud.
En bolig som har blitt brukt i en viss tid, har vanligvis blitt utsatt for slitasje og skader kan ha oppstått. Slik bruksslitasje må kjøper regne med, og det kan avdekkes enkelte forhold etter overtakelse som nødvendiggjør utbedringer. Normal slitasje og skader som nødvendiggjør utbedring, er innenfor hva kjøper må forvente og vil ikke utgjøre en mangel.
Kjøper og selgers rettigheter og plikter reguleres av avtalen mellom partene, samt informasjonen som har vært tilgjengelig for kjøperen i forbindelse med handelen. Avtalen utfylles av avhendingsloven, og det gjelder ulike avtalevilkår avhengig av om kjøper er forbrukerkjøper eller ikke. Dette er nærmere beskrevet nedenfor.
På grunn av ulike avtalevilkår kan selger vurdere bud fra en som ikke er forbruker, ulikt fra en forbrukers bud. Dersom kjøper ikke er forbruker, er selger sitt mulige mangelsansvar begrenset fordi eiendommen selges "som den er". Selger kan ikke ta «som den er»- forbehold overfor en forbrukerkjøper. Selv et lavere bud fra en som ikke er forbruker kan foretrekkes fordi begrensningen i mulig mangelsansvar kan ha egenverdi for selger. Selger står fritt til å forkaste eller akseptere ethvert bud, og er for eksempel ikke forpliktet til å akseptere høyeste bud.
Budgiver skal i budskjema avgi egenerklæring om budgiver er forbruker eller næringsdrivende/ person som hovedsakelig handler som ledd i næringsvirksomhet. Budgivere får informasjon dersom andre bud er inngitt av en som ikke er forbruker.
Forbrukerkjøp - definisjon
Med forbrukerkjøp menes kjøp av eiendom når kjøperen er en fysisk person som ikke hovedsakelig handler som ledd i næringsvirksomhet.
Forbruker – avtalevilkår
Eiendommen har en mangel dersom den ikke er i samsvar med kravene som følger av avtalen, eller det foreligger brudd på bestemmelsene i avhendingsloven §§ 3-2 til 3-8. Hvis eiendommen ikke er i samsvar med det kjøperen må kunne forvente ut ifra alder, type og synlig tilstand, kan det være grunnlag for mangelskrav. Det samme gjelder hvis det er holdt tilbake eller gitt uriktige opplysninger om eiendommen. Dette gjelder likevel bare dersom man kan gå ut ifra at det virket inn på avtalen at opplysningen ikke ble gitt eller at mangelskravet ikke blir rettet i tide på en tydelig måte.
Boligen kan ha en mangel etter avhendingsloven § 3-3 andre ledd, dersom det er avvik mellom opplyst og faktisk innvendig areal, forutsatt at avviket er på 2% eller mer og minimum 1 kvm.
Ved beregning av et eventuelt prisavslag eller erstatning må kjøper selv dekke tap/kostnader opptil et beløp på kr 10 000 (egenandel).
Ikke-forbruker (næringsdrivende) – definisjon
Hvis kjøper er en juridisk person, eller en fysisk person som hovedsakelig handler som ledd i næringsvirksomhet, vil kjøpet ikke anses som et forbrukerkjøp.
Ikke-forbruker – avtalevilkår
Eiendommen har en mangel dersom den ikke er i samsvar med kravene som følger av avtalen.
Eiendommen selges «som den er», og selgers ansvar utover det konkret avtalte er da begrenset etter avhendingsloven § 3-9, første ledd andre setning.
Avhendingsloven § 3-3 andre ledd fravikes, og hvorvidt boligens arealsvikt utgjør en mangel vurderes etter avhendingsloven § 3-8.
Informasjon om kjøpers undersøkelsesplikt, herunder oppfordringen om å undersøke eiendommen nøye, gjelder også for kjøpere som ikke anses som forbrukere.
Det forutsettes at hjemmel overføres til kjøper. Hvis kjøper ikke ønsker hjemmelsoverføring av eiendommen, må det tas forbehold om dette i budet.
Meglers vederlag
Meglers vederlag betales av selger og er avtalt til:
Fastpris: kr 50 000,00
Vederlag:
Kontroll av hjemmel og heftelser kr 3 900,00
Markedsføringspakke kr 29 900,00
Oppgjør kr 8 900,00
Tilrettelegging kr 19 900,00
Visninger pr stk kr 4 000,00
Overtagelse kr 4 000,00
Utlegg:
Eierskiftegebyr forretningsfører NBBO kr 6 725,00
Innhenting av informasjon forretningsfører NBBO kr 5 195,00
Innhenting av off. oppl. Drammen borettslagspakke m/ tegninger kr 1 577,00
Innhenting av off. oppl. feierseksjonen kr 506,00
Tinglysing sikring kr 545,00
Andre utgifter:
AX tilstandsrapport leilighet kr 10 750,00
Boligfotografering og dronebilder kr 5 150,00
Boligselgerforsikring Gjensidige Andel/Aksje regnes av prisant. kr 7 532,00
Vi er opptatt av verdiskapning, og har knyttet til oss samarbeidspartnere som skal sikre våre kunder de beste produkter og tjenester;
• I forbindelse med forberedelse av salget, innhenter vi informasjon om eiendommen hovedsakelig fra vår samarbeidspartner Amibita.
• Gjensidige leverer boligselgerforsikring og tilbyr bygningsforsikring
• Boligkjøperforsikring leveres av Hiscox og med Sedgwick som skadebehandler, og er formidlet gjennom Gjensidige.
• BN bank tilbyr finansieringsløsninger
• Vår avdeling Krogsveen Pluss tilbyr flyttetjenester som utvask, visningsvask, lager, tømming og transport av flyttelass, i tillegg til å formidle kontakt med Flip for overflateoppussing.
• I forbindelse med overtagelse av eiendommen tilbyr Overo avtale om strøm, alarm og bredbånd.
• Krogsveen er, sammen med øvrige bransjeaktører, medeier i Bomega AS som tilbyr den digitale annonseringsplattformen Hjem.
Opplysninger om oppdraget
Oppdragsnummer 20-0072/26
Eiendomsmegler Krogsveen AS, avd. Drammen
Nedre Storgate 16, 3015, DRAMMEN
950 007 613
Oppdragets KR-kode KR20.2672
Dato
Sist oppdatert: 29. mai 2026 kl. 17:57
Dokumenter
Dokumenter
PDF – 2 MB
PDF – 171 KB
PDF – 475 KB
PDF – 3 MB
PDF – 312 KB
PDF – 29 KB
PDF – 127 KB
PDF – 392 KB
Område
Legg til steder som er viktige for deg
Visning
For å delta på visning, ber vi om at du melder deg på. Da sikrer vi at du får nødvendig informasjon og at det er satt av tilstrekkelig med tid. Kontakt megler dersom annet tidspunkt ønskes. Husk å lese salgsoppgaven før visningen, så du stiller forberedt. NB. Visning utgår dersom det ikke er noen påmeldte. Ønsker du kun å bli holdt orientert, kan du fra eiendommens hjemmeside få varsel om solgtpris, eller kontakte megler.
Lurer du på noe?
Unngå doble boligrenter
Vi tilbyr gunstig forsikring.
Vurderer du utleie?
Få et tilbud fra Utleie KrogsveenHva koster lånet?
Sjekk estimert lånekostnadVil du varsles om lignende boliger?
Ved å lagre ditt boligsøk hos oss får du beskjed når vi har en bolig som ligner denne, før den legges ut på markedet!




























