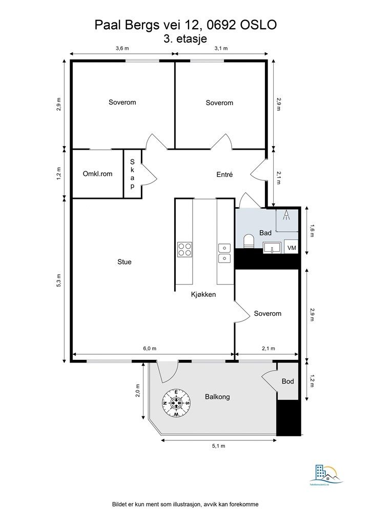
Paal Bergs vei 12
4 950 000 kr
72 m²
3 soverom
Solgt
Rustad/Bogerud
Pen 4-roms med stor, solrik balkong - Kjøkken og overflater fra 2021 - V.v/fyring inkl. - Nærhet til marka og off. transport
Prisantydning
4 950 000 krAndel fellesgjeld
204 749 krOmkostninger
18 978 krTotalpris
5 173 727 kr
Pris
Bruksareal
75 m²BRA-I (internt bruksareal)
72 m²BRA-E (eksternt bruksareal)
3 m²TBA (terrasse-balkongareal)
14 m²
Areal
Etasje
3Byggeår
1964Soverom
3 soveromBad
1 badType
AndelsleilighetEierform
AndelFasiliteter
Balkong/TerrasseFellesutgifter
5 803 krEnergimerke
Grønn F
Nøkkelinfo
Unngå doble boligrenter
Vi tilbyr gunstig forsikring.
Vurderer du utleie?
Få et tilbud fra Utleie KrogsveenHva koster lånet?
Sjekk estimert lånekostnadBeskrivelse
Kort om eiendommen
Pen og gjennomført 4-roms med god planløsning og solrik balkong. Attraktiv beliggenhet på populære Rustad/Bogerud. Nærhet til skoler, barnehager, offentlig transport, butikk og Østmarka.
Kort fortalt:
- God intern beliggenhet i borettslaget, samt god planløsning
- Overflater fornyet i 2021
- Oppgradert elektrisk anlegg 2021/22
- Romslig stue
- Delvis åpen stue/kjøkkenløsning
- Pent Ikea-kjøkken fra 2021/22
- Store vindusflater
- Vestvendt balkong på ca. 14 kvm med bod
- Flott utsikt
- Ingen gjenboere
- Fyring, varmtvann og TV/internett inkl.
- Kort vei til offentlig kommunikasjon
- Nærhet til Østmarka med badevann og turstier
Velkommen til visning!
Område
Legg til steder som er viktige for deg
På flyttefot? Tenk kjøp og salg samtidig.
Få din egen rådgiver gjennom hele kjøps- og salgsprosessen. Det starter med en verdivurdering.
Unngå doble boligrenter
Vi tilbyr gunstig forsikring.
Vurderer du utleie?
Få et tilbud fra Utleie KrogsveenHva koster lånet?
Sjekk estimert lånekostnadVil du varsles om lignende boliger?
Ved å lagre ditt boligsøk hos oss får du beskjed når vi har en bolig som ligner denne, før den legges ut på markedet!




