Christen Smiths gate 12B
3 190 000 kr
33 m²
1 soverom
Solgt

Presenteres av
Morten Solberg HelgerudNybyen/Marienlyst Park
Lys 2-roms eierleilighet med garasjeplass, pendlervennlig nær togstasjon, fjernvarme, balkong, sentrumsnært.
Prisantydning
3 190 000 krOmkostninger
90 790 krTotalpris
3 280 790 kr
Pris
Bruksareal
38 m²BRA-I (internt bruksareal)
33 m²BRA-E (eksternt bruksareal)
5 m²TBA (terrasse-balkongareal)
6 m²
Areal
Etasje
1Byggeår
2007Soverom
1 soveromBad
1 badType
EierleilighetEierform
EierseksjonFasiliteter
Garasje/P-plass, Heis og Balkong/TerrasseFellesutgifter
2 656 krEnergimerke
Grønn B
Nøkkelinfo
Unngå doble boligrenter
Vi tilbyr gunstig forsikring.
Vurderer du utleie?
Få et tilbud fra Utleie KrogsveenHva koster lånet?
Sjekk estimert lånekostnadBeskrivelse
Kort om eiendommen
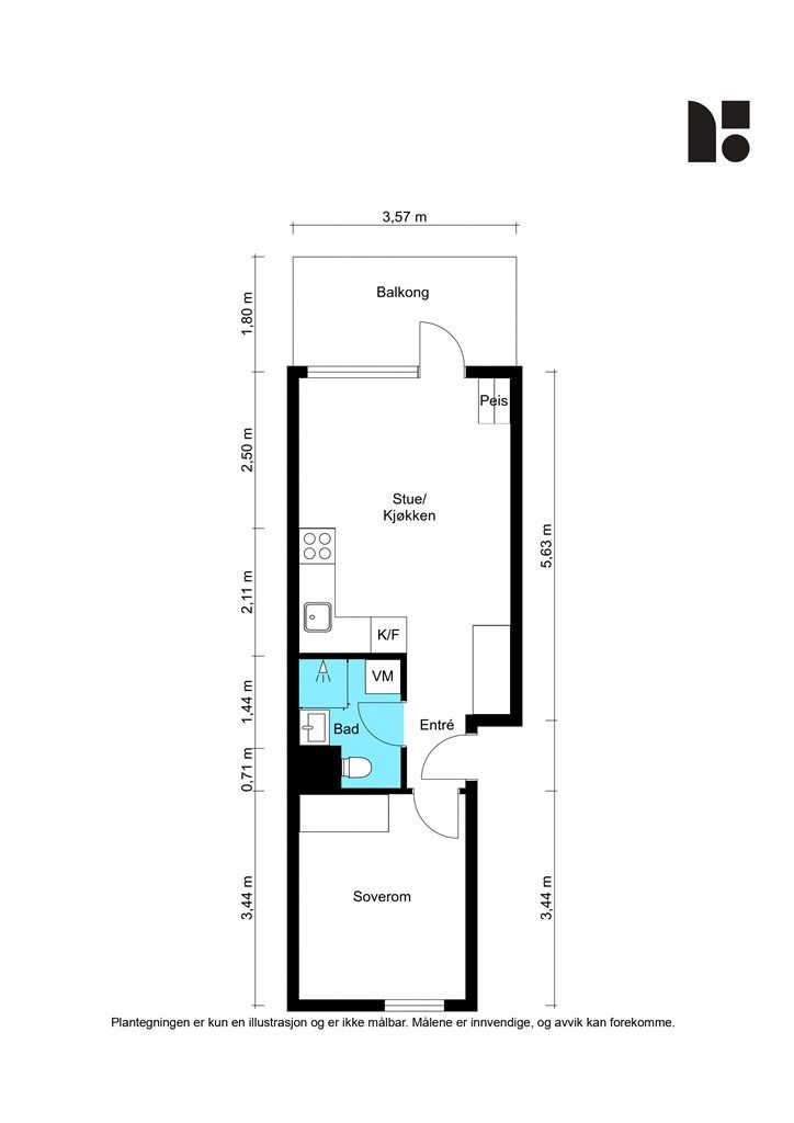
Lys 2-roms eierleilighet beliggende i 1. etasje
- Leiligheten er gjennomgående og har en praktisk planløsning
- Åpen kjøkken- og stueløsning med pen gasspeisinnsats på vegg
- Sigdal-kjøkken med frittstående hvitevarer (kan medfølge om ønskelig)
- Flislagt bad med dusjhjørne, varmekabler og opplegg for vaskemaskin
- Balansert ventilasjon og radiatorer i leiligheten
- Oppvarming og varmtvann fra felles fjernvarmeanlegg (inkl. i felleskostnadene)
- Overbygget nordvestvendt balkong på 6 kvm
- Medfølgende bruksrett på en parkeringsplass i felles oppvarmet garasjeanlegg
- Tilrettelagt for etablering av ladeboks til el-bil
- Attraktiv og sentral beliggenhet i rolig sidegate
- Gangavstand til Strømsø torg og Bragernes Torg
- Kort gangavstand til togstasjon, bussknutepunkt og taxiholdeplass
Område
Legg til steder som er viktige for deg
På flyttefot? Tenk kjøp og salg samtidig.
Få din egen rådgiver gjennom hele kjøps- og salgsprosessen. Det starter med en verdivurdering.
Unngå doble boligrenter
Vi tilbyr gunstig forsikring.
Vurderer du utleie?
Få et tilbud fra Utleie KrogsveenHva koster lånet?
Sjekk estimert lånekostnadVil du varsles om lignende boliger?
Ved å lagre ditt boligsøk hos oss får du beskjed når vi har en bolig som ligner denne, før den legges ut på markedet!
På flyttefot? Slik gjør vi det enklere for deg
Skreddersydd flyttepakke
Vi fikser håndverkere, vask, pakking, lagring og transport, og legger ut for utgiftene underveis.
Hjelp med både kjøp og salg
Hos oss har du din egen rådgiver gjennom hele kjøps- og salgsprosessen.
Hjelp til finansiering
Vårt samarbeid med BN Bank sikrer deg rask og løsningsorientert hjelp, til konkurransedyktige betingelser.

