Olaf Schous vei 11
4 650 000 kr
46 m²
1 soverom
Solgt

Presenteres av
Blenor HadergjonajSinsenbyen
Lekker, gjennomgående topp-/hjørneleilighet med attraktiv beliggenhet. Fyring, VV og internett inkl. Koselig balkong.
Prisantydning
4 650 000 krOmkostninger
127 290 krTotalpris
4 777 290 kr
Pris
Bruksareal
48 m²BRA-I (internt bruksareal)
46 m²BRA-E (eksternt bruksareal)
2 m²TBA (terrasse-balkongareal)
5 m²
Areal
Etasje
5Byggeår
1938Soverom
1 soveromBad
1 badType
EierleilighetEierform
EierseksjonFasiliteter
Balkong/TerrasseFellesutgifter
3 852 krEnergimerke
Grønn G
Nøkkelinfo
Unngå doble boligrenter
Vi tilbyr gunstig forsikring.
Vurderer du utleie?
Få et tilbud fra Utleie KrogsveenHva koster lånet?
Sjekk estimert lånekostnadDette liker selger best ved boligen
Dette er en lys topp- og hjørneleilighet med mange vinduer og en takhøyde på 2,7 meter. Planløsningen er delvis åpen mellom stue og kjøkken, der kjøkkenet har godt med benke- og skapplass. Badet ble pusset opp i 2021, og soverommet har god plass til både dobbeltseng, pult og garderobeskap. Boligen har gode lagringsmuligheter med to innvendige boder, i tillegg til en kjellerbod og felles sykkelbod. Fra balkongen har man morgensol, og leiligheten ligger i et rolig nabolag med grøntarealer og gode parkeringsmuligheter i nærområdet.
Beskrivelse
Kort om eiendommen
Velkommen til Olaf Schous vei 11!
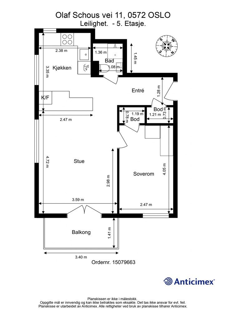
Dette er en lys og gjennomgående 2-roms topp-/hjørneleilighet med sentral og attraktiv beliggenhet i Sinsenbyen v/Rosenhoff. Leiligheten har en god planløsning og består av entré, ett soverom, bad, samt kjøkken og stue i delvis åpen løsning. Leiligheten har i tillegg en nordøstvendt balkong med utgang fra stuen, to innvendige boder, samt en kjellerbod.
Fra leiligheten har du kort vei til butikker, kafeer, restauranter, kollektiv og hyggelige turområder.
Noen høydepunkter:
Pent kjøkken fra 2019
Balkong på 5 kvm
Bad rehabilitert i 2021
Fyring, varmtvann og internett inkl.
God takhøyde
To innvendige boder
Nærhet til kollektiv transport
Felles sykkelbod
Rolig nabolag
Område
Legg til steder som er viktige for deg
På flyttefot? Tenk kjøp og salg samtidig.
Få din egen rådgiver gjennom hele kjøps- og salgsprosessen. Det starter med en verdivurdering.
Unngå doble boligrenter
Vi tilbyr gunstig forsikring.
Vurderer du utleie?
Få et tilbud fra Utleie KrogsveenHva koster lånet?
Sjekk estimert lånekostnadVil du varsles om lignende boliger?
Ved å lagre ditt boligsøk hos oss får du beskjed når vi har en bolig som ligner denne, før den legges ut på markedet!
På flyttefot? Slik gjør vi det enklere for deg
Skreddersydd flyttepakke
Vi fikser håndverkere, vask, pakking, lagring og transport, og legger ut for utgiftene underveis.
Hjelp med både kjøp og salg
Hos oss har du din egen rådgiver gjennom hele kjøps- og salgsprosessen.
Hjelp til finansiering
Vårt samarbeid med BN Bank sikrer deg rask og løsningsorientert hjelp, til konkurransedyktige betingelser.



























