Nordstrand terrasse 47
8 900 000 kr
109 m²
3 soverom
Solgt
Nordstrand
Lys og romslig toppleilighet i Villa Sofiero. Elegant og innbydende med spektakulær fjordutsikt og egen parkeringsplass.
Prisantydning
8 900 000 krOmkostninger
233 540 krTotalpris
9 133 540 kr
Pris
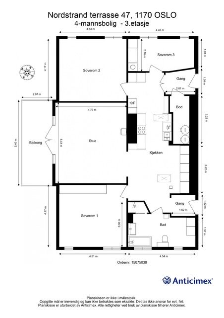
Bruksareal
109 m²BRA-I (internt bruksareal)
109 m²TBA (terrasse-balkongareal)
11 m²
Areal
Etasje
3Byggeår
1895Soverom
3 soveromBad
1 badType
EierleilighetEierform
EierseksjonFasiliteter
Balkong/TerrasseFellesutgifter
4 479 krEnergimerke
Rød G
Nøkkelinfo
Unngå doble boligrenter
Vi tilbyr gunstig forsikring.
Vurderer du utleie?
Få et tilbud fra Utleie KrogsveenHva koster lånet?
Sjekk estimert lånekostnadBeskrivelse
Kort om eiendommen
I Villa Sofiero venter en romslig og stilfull toppleilighet med fjordutsikt fra alle rom. Den klassiske sveitservillaen fra 1895 gir en unik atmosfære, og verandaen mot vest gir deg sol og utsyn over fjorden. Leiligheten har stue med peisovn, spisestue, kjøkken, tre soverom, bad og to entréer, samt god lagringsplass i kjellerbod. Parkering med elbillader er inkludert. Gulvarealet på ca. 130 kvm gir en luftig og generøs romfølelse.
Område
Legg til steder som er viktige for deg
På flyttefot? Tenk kjøp og salg samtidig.
Få din egen rådgiver gjennom hele kjøps- og salgsprosessen. Det starter med en verdivurdering.
Unngå doble boligrenter
Vi tilbyr gunstig forsikring.
Vurderer du utleie?
Få et tilbud fra Utleie KrogsveenHva koster lånet?
Sjekk estimert lånekostnadVil du varsles om lignende boliger?
Ved å lagre ditt boligsøk hos oss får du beskjed når vi har en bolig som ligner denne, før den legges ut på markedet!




