Krapfossveien 13
4 800 000 kr
160 m²
2 soverom
Komplett salgsoppgave

Krapfoss
Vestvendt, usjenert enebolig med utsikt til Vansjø og omfangsrike utearealer. Over 1,5 mål tomt. Stor carport med lader.
Prisantydning
4 800 000 krOmkostninger
140 990 krTotalpris
4 940 990 kr
Pris
Bruksareal
181 m²BRA-I (internt bruksareal)
160 m²BRA-E (eksternt bruksareal)
21 m²TBA (terrasse-balkongareal)
80 m²
Areal
Etasje
2Byggeår
1969Soverom
2 soveromBad
2 badTomteareal
1 533 m² (eiet)Type
Enebolig - FrittliggendeEierform
EietFasiliteter
Garasje/P-plass og Balkong/Terrasse
Nøkkelinfo
Unngå doble boligrenter
Vi tilbyr gunstig forsikring.
Vurderer du utleie?
Få et tilbud fra Utleie KrogsveenHva koster lånet?
Sjekk estimert lånekostnadBeskrivelse
Kort om eiendommen
- Elevert og usjenert på en over 1,5 mål stor eiet tomt
- Altan og terrasse på til sammen 80 kvm., med gode solforhold sommerstid
- Stort kjøkken med spiseplass og påkostet Epoq-innredning fra 2015
- Bad fra 2002 i første etasje, bad/vaskerom fra 2015 i underetasje
- Nytt sikringsskap i 2015 + nytt el-anlegg til kjøkken og bad/vaskerom
- To rom i underetasjen tatt i bruk som hhv. soverom og toalettrom uten godkjenning
- Yttertak lagt om i 2015 og nye skyve-/hevedører montert i begge gavlvegger
- Stor carport oppført i 2011
- Kort gangavstand til barnehage, skole og dagligvare
- Nærhet til idylliske Vansjø og Vepsen badeplass
Innhold og byggemåte
Innhold og byggemåte
Eiendommen
Krapfossveien 13, 1597 MOSS
Kommunenummer 3103, gårdsnummer 3, bruksnummer 1135, ideell andel 1/1
Innhold
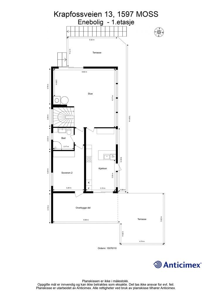
BRA (totalt bruksareal): 181 kvm.
BRA-i (internt bruksareal)
Underetasje:
75 kvm: Entré, hall, bad/vaskerom, stue/soverom, soverom og bod.
1. etasje:
85 kvm: Gang, bad, stue, kjøkken og soverom.
BRA-e (eksternt bruksareal)
Underetasje:
21 kvm: Garasje.
TBA (terrasse- og balkongareal)
1. etasje:
80 kvm: Terrasse.
Uisolert utebod (ikke byggemeldt) er oppmålt til 5 kvm (ALH). Grunnet lav takhøyde er ingen deler av arealet måleverdig som bruksareal.
Rom som avviker fra godkjente byggetegninger ifbm. rom for varig opphold: Soverom og toalettrom i underetasjen. Se mer informasjon under punktet ferdigattest.
De oppgitte arealer er hentet fra rapport med befaringsdato 29.09.2025 utført av Christian Ulrich Johansen. Arealene er beregnet og rom er definert etter dagens faktiske bruk, uavhengig av hva som er godkjent av bygningsmyndighetene.
Byggemåte
Selger har innhentet en tilstandsrapport av boligen/eiendommen. Av rapporten fremgår det at flere bygningsdeler har fått tilstandsgrad ikke undersøkt/ikke tilgjengelig for undersøkelse (TGIU), 2 (TG2) og/eller 3 (TG3). Rapporten beskriver også avvik på undersøkte bygningsdeler uten tilstandsgrad. Kjøper overtar ansvaret for de opplysninger som fremkommer av salgsdokumentasjonen, og kan ikke gjøre gjeldende som mangel noe som burde vært kjent eller som ikke kan anses å ha betydning for avtalen.
Bygningen er iht. tilstandsrapport, oppført på støpt såle mot grunn. Grunnmur av betong og murkonstruksjoner. Bærende vegger samt skillende dekke vurdert til å være av trekonstruksjoner. Utvendige fasader forblendet med fasadestein og kledd med liggende kledning. Takkonstruksjon av trekonstruksjoner med saltaksform utvendig tekket med takstein (yttertaktekke fra 2015). Boligen har entré-dobbeldør med vindusfelter. Balkongskyvedører med karmer/rammer av pvc og to-lags glass fra 2015. Balkongdører og vinduer
med karmer/rammer av tre og to-lags glass fra byggeår. Les forøvrig mer om byggemåte og den tekniske tilstanden i rapporten.
I rapporten fremkommer det som takstmannen mener kjøper må være særskilt oppmerksom på, dette gjelder blant annet (se utfyllende tekst i rapporten):
Følgende kontrollpunkter/forhold har blitt tildelt TG3:
Rom under terreng (kjeller, underetasje, sokkeletasje) - Underetasje
- Overflater vegger: Henviser til pkt konstruksjoner og avsnitt om drenering. Det er registrert muggsoppdannelse i nedre del av vegger mot terreng på soverom 1 vurdert til å kunne skyldes fuktpåvirkning fra grunn.
- Konstruksjoner (tilfarergulv, himling og vegger): Henviser til avsnitt om drenering. Det ble registrert forhøyede fuktverdier. Målingene viser vektprosent over 20. Dette indikerer utettheter/funksjonssvikt.
Drenering
- Helhetsvurdering: Det er valgt å vurdere dreneringen med en samlet helhetsvurdering. Følgende momenter er lagt til grunn for vurderingen: Det kan ikke verifiseres at grunnmuren har utvendig fuktsperre. Stedvis lite terrengfall vekk fra grunnmuren. Dreneringen er nedgravd og skjult. Det ble observert symptomer på fuktinnsig i underetasjen som tilsier funskjsonssvikt. Se punkt "Konstruksjoner" under avsnitt om "Rom under terreng", og punkt "Grunnmur" under avsnitt om "Grunnmur". Dreneringens alder og observert tilstand tilsier at utbedringer/utskiftninger bør påregnes.
Følgende kontrollpunkter/forhold har blitt tildelt TG2:
Våtrom - Baderom
- Overflater vegger: Det er registrert krakelering i enkelte fliser i dusjsone bak dusjkabinett. Det er registrert utette huller etter tidligere innfestninger i og utenfor dusjsone.
- Overflater gulv: Det er registrert bomlyd i en flis ved sluk i dusjsone.
- Fallforhold (gulv): Nivåforskjell fra døråpning på topp overflate gulv og til sluk er på tilfeldig sted målt til ca. 12 mm. Dette er vurdert til å ikke være tilfredsstillende mht lekkasjesikkerhet. Det er ikke mulig å måle fallet i sluksonen grunnet plassering av dusjkabinett/badekar. Det er ikke kjent om fallforholdet fører til tilfredsstillende avrenning av bruksvannet hvis kabinettet fjernes.
- Membran, tettesjikt og overgang til sluk: Tettesjiktet har en alder som tilsier at restlevetiden er usikker. Rommets lekkasjesikkerhet kan derfor ikke verifiseres, eventuelt bør nytt tettesjikt etableres. Det er hull etter tidligere innfestinger i dusjsonen.
- Slukets tilkomstmulighet for rengjøring: Tilkomst til sluket under dusjkabinett er utilfredsstillende.
- Ventilasjon: Våtrommet har kun naturlig ventilasjon. Tilluftsspalte er ikke etablert.
Våtrom - Bad/vaskerom
- Avløpsrør (inkl. sluk): Skjulte avløpsrør er av ukjent type, alder og tilstand. Bygningsdelen er ikke tilgjengelig for undersøkelser. Restlevetiden er ukjent.
- Ventilasjon: Tilluftsspalte er ikke etablert.
- Vannrør: Vannrør av kobber og eldre stoppekran er vurdert til å ha en alder som tilsier usikker tilstand og restlevetid.
Kjøkken
- Overflater gulv: Det er registrert mellomrom/sprekker i enkelte kortskjøter i laminatgulv.
- Vannrør: Det er ikke montert automatisk lekkasjestopper for å begrense eventuelle lekkasjer fra vanninstallasjoner.
- Innredning: Det er registrert slitasje på benkeplater.
- Annet: Det er ikke etablert komfyrvakt på kjøkkenet.
Toalettrom
- Ventilasjon: Tilluftsspalte er ikke etablert.
- Vannrør: Vannrør av kobber fra byggeår er vurdert til å ha en alder som tilsier usikker tilstand og restlevetid.
- Avløpsrør: Skjulte avløpsrør er av ukjent type, alder og tilstand. Bygningsdelen er ikke tilgjengelig for undersøkelser. Restlevetiden er ukjent.
Øvrige rom - 1. etasje
- Overflater gulv: Det er registrert slitasje på laminatgulv i stue.
Rom under terreng (kjeller, underetasje, sokkeletasje) - Underetasje
- Overflater gulv: Laminatgulv i stue bæ rer preg av alder/slitasje.
- Innerdører: Innerdør til soverom 1 bærer preg av slitasje samt har kontakt med dørterskel/dørkarm og gulv.
Loft (uinnredet/råloft) - Kaldtloft
- Helhetsvurdering: Det er redusert tilkomst for inspeksjon av uinnredet loft.
Innvendige trapper:
- Innvendige trapper: Trappen bæ rer preg av alder/slitasje. Det er registrert betydelig knirk samt at trappen har ikke håndløper på begge sider.
Etasjeskiller - Underetasje
- Skjevhetsmåling: Det er noe merkbare skjevheter på soverom 1. Forskjellen mellom høyeste og laveste punkt er målt til ca. 20 mm.
Tekniske anlegg, VVS anlegg (sjekkpunkter utover det som er inkludert i andre rom)
- Vannrør (sjekkpunkter utover det som er inkludert i andre rom): Vannrør av kobber i boligen til er vurdert til å ha en alder som tilsier usikker tilstand og restlevetid.
- Stakeluke: Stakeluke er ikke lokalisert.
- Avløpsrør (sjekkpunkter utover det som er inkludert i andre rom): Skjulte avløpsrør er av ukjent type, alder og tilstand. Bygningsdelen er ikke tilgjengelig for undersøkelser. Restlevetiden er ukjent.
- Andre VVS-tekniske anlegg (eks. luft/luft varmepumpe): TG2 er satt grunnet at pumpen lager noe ulyd og restlevetiden er vurdert til å være begrenset.
Yttervegger inkl. fasader og konstruksjon
- Fasader inkl. kledning: Det er registrert noe ufagmessig utførelse av hjørner forblendet med fasadestein utenfor garasje i carport. Det er registrert noe begrenset lufting bak trekledning. Det er ukjent om det er musesperre bak trekledning.
Elektrisk anlegg
- Forenklet vurdering av det elektriske anlegget: TG2 er satt grunnet manglende samsvarserklæring på det elektriske anlegget installert etter 1999 samt manglende dokumentasjon/ukjent oppgraderingshistorikk på eldre deler av anlegget iht NS3600.
Dører og vinduer
- Vinduer: Vinduer er av eldre dato og har behov for oppgraderinger/ overflatebehandling.
- Dører: Balkongdører er av eldre dato og har behov for oppgraderinger/ overflatebehandling.
Yttertak
- Inspeksjonsmulighet: Vurderingene av yttertaket er gjort fra bakkeplan med den begrensning dette innebærer.
- Tekking (undtertak, lekter og yttertekking): Undertak av sutak fra byggeår er vurdert til å ha en alder som tilsier usikker tilstand og restlevetid. Det er registrert mosedannelse/grønske på østvendt side av taket.
- Takgjennomføringer: Beslag rundt skorsteinen og takgjennomføringer bæ rer preg av alder/slitasje.
Balkonger, terrasser, veranda etc.
- Utkragede eller understøttede konstruksjoner (balkonger, verandaer): Rekkverkshøyden er under 1,0 meter. Det er registrert stedvis sprekker i terrassebord samt dannelse av grønske under terrassebord og bjelkelag. Det er registrert noe skjevheter i rekkverket.
- Terrasser/inntrukket balkong over innvendige rom: Tettesjiktet er ikke tilgjengelig for inspeksjon, og vurdert til å ha en alder som tilsier usikker tilstand/restlevetid.
Utvendige trapper
- Helhetsvurdering: Det er registrert bomlyd i enkelte steiner, en delvis løs stein samt sprekker og enkelte fuger i trapp av betong/murkonstruksjoner.
Grunnmur, fundamenter
- Grunnmur: Henviser til avsnitt om drenering og andre forhold utvendig. Det er registrert fuktmerker og salt/kalkutslag på grunnmur mot terreng i garasje. Det er i tillegg registrert enkelte områder med malingsavskalling på utvendig side. Det gjøres oppmerksom på at kun deler av grunnmuren er tilgjengelig for inspeksjon grunnet terreng og utlektede vegger i underetasjen.
Forstøtningsmurer
- Forstøtningsmurer: Det er registrert salt/kalkutslag og sprekker i fuger i utvendig bod.
Stikkledninger og tanker
- Vann- og avløpsledninger (inkl. stikkledninger): Alder og materialvalg tilsier at anbefalt brukstid og restlevetid på vann- og avløpsrør med tilliggende utstyr bør vies spesiell oppmerksomhet. Materialene er skjulte i grunnen og dermed er det kun alder som kan gi indikasjon på tilstand.
Frittstående byggverk - Utebod
- Helhetsvurdering: Det er foretatt en forenklet overordnet vurdering av tilstanden og det er relativt høy slitasjegrad som gjør at det anbefales utbedrende tiltak.
Andre forhold (som ikke inngår i det foran):
- Annet: Det er registrert ventilasjonskanal i garasje som kan inneholde asbest.
Følgende kontrollpunkter/forhold har blitt tildelt TGIU (tilstandsgrad ikke undersøkt):
Våtrom - Bad/vaskerom
- Fukt i tilliggende konstruksjoner: Våtrommet har delvis vegger av mur/betong og det er derfor ikke utført hulltaking/fuktmåling. Det er foretatt fuktmåling med pigg i treverk med egnet instrument (Protimeter MMS), i tilstøtende rom til våtsone i åpen bindingsverksvegg. Det ble ikke registrert forhøyede verdier eller andre avvik. Målingene viser vektprosent under 16. Målingen gir kun et øyeblikksbilde av forholdene og kan endre seg med årstider, fukt- og temperaturforhold.
Radon
- Radon: Det er ukjent om radonmåling er gjennomført i boligen.
Yttervegger inkl. fasader og konstruksjon
- Konstruksjon: Konstruksjon av trekonstruksjoner er lukket og ikke tilgjengelig for inspeksjon.
Yttertak
- Konstruksjon: Konstruksjonen er delvis utilgjengelig for inspeksjon fra kaldtloft. Ytterligere undersøkelser anbefales.
Grunnmur, fundamenter
- Byggegrunn: Byggegrunnens beskaffenhet er ukjent.
- Fundamenter: Fundamenter er naturgitt skjult, og det er for øvrig ingen sikre og dokumenterte opplysninger om type fundamenter som huset har.
Det anbefales ytterligere undersøkelser av disse punktene.
Se vedlagt tilstandsrapport for supplerende informasjon vedrørende boligens tilstand.
Tilstandsrapporten er inntatt i salgsoppgaven. Rapporten inneholder informasjon om avvikene og konsekvensen av disse. For avvik som er gitt TG3 har den bygningssakkyndige i tillegg gitt et anslag på hva det vil koste å utbedre disse avvikene. Ettersom kjøper regnes å være kjent med forhold som tydelig fremgår av tilstandsrapporten, oppfordres du til å sette deg grundig inn i rapporten i sin helhet.
Standard
Siden byggeåret er boligen oppgradert i flere omganger, frem til helt nylig i løpet de seneste årene. Innvendige overflater, installasjoner og faste innredninger har av den grunn varierende alder og tilstand.
I tillegg til oppgraderinger er det utført vesentlig ombygging av første etasje, til fordel for generøse rom av stort areal. Denne etasjen domineres i dag av de sosiale rommene stuen og kjøkkenet som til sammen byr på mye plass til felles opphold. Nye skyve-/hevedører ble i 2015 installert i både stuen og kjøkkenet. Stuen inneholder for øvrig også vedovn av nyere dato, samt luft-luft varmepumpe på ca. 10 år.
I hverdagen er kjøkkenet med spiseplass boligens kanskje mest naturlige samlingsrom for familien. Kjøkkenet ble i 2015 oppgradert med en omfangsrik innredning fra Epoq som i dag har begrenset brukspreg. Innredningen er bruksvennlig utformet med hendige arbeidsflater, underlimt vask i kompositt og mange oppbevaringsmuligheter. Alle hvitevarer medfølger, frittstående kjøle- og fryseskap inkludert.
Første etasje inneholder også et over 14 kvm. stort soverom som er hensiktsmessig plassert i etasjens nordøstre hjørne. Dette soverommet er et produkt av en sammenslåing av etasjens to opprinnelige barnerom. Arealet i det opprinnelige hovedsoverommet er benyttet til utvidelse av kjøkkenet.
Badet i første etasje ble pusset opp i 2002 og utstyrt med nytt dusjkabinett rundt 2010. Badet er funksjonelt, men naturlig gjenstand for oppgradering/fornying på bakgrunn av blant annet alder. Gulv og vegger er utført med fliser.
Et nyere bad inngår i underetasjen, nærmere bestemt i det opprinnelige vaskerommet som i 2015 ble renovert og ombygget til kombinert bruk som bad. Både fliser på gulv og vegger, innredninger og sanitærutstyr i rommet er fra dette året. Vaskemaskin har dedikert plass i en stedsbygget nisje, skjult bak skyvedører og samtidig lett tilgjengelig.
Samme år som underetasjens bad ble renovert ble oppussing også utført i rom benyttet som toalettrom, vegg i vegg. Rommet ble oppgradert med nye fliser på gulv og vegger samt nye innredninger.
I underetasjen inngår for øvrig både en stor kjellerstue med gruepeis og et innredet rom benyttet som soverom. Stuen passer utmerket som TV-stue, men kan også fungere som soverom - alternativt en kombinasjon for familiens tenåring.
Overflater og innredninger:
Gulv: Laminat og fliser.
Innervegger: Tapet, panel, fliser, teglstein og mur.
Himlinger: Plater og glatte flater.
Kjøkken: Skapinnredning med glatte hvite fronter. Heltre benkeplater. Underlimt dobbel vask i sort kompositt med avrenningsbrett og sort ett-greps blandebatteri. Integrert platetopp, stekeovn, mikrobølgeovn og oppvaskmaskin. Ventilator.
Bad 1. etasje: Servantskap i heltre med heldekkende keramisk servant og to-greps blandebatteri. Veggspeil. Høyskap i heltre. Dusjkabinett. Gulvmontert klosett.
Bad 2. etasje: Servantskap med glatte hvite fronter og heldekkende keramisk servant med ett-greps blandebatteri. Veggspeil med integrert belysning. Dusjhjørne med glassdører og to-greps blandebatteri med hånd- og regndusj. Innbygget varmtvannsbereder. Nisje med skyvedører og rør-opplegg til vaskemaskin.
Rom benyttet som toalettrom: Servantskap med glatt brun front og heldekkende keramisk servant med ett-greps blandebatteri. Overskap med speilfront. Gulvmontert klosett.
Løsøre og tilbehør
Hvitevarer på kjøkkenet medfølger i handelen, dette gjelder oppvaskmaskin, frittstående kjøleskap, frittstående fryseskap, integrert mikrobølgeovn, integrert stekeovn og integrert platetopp.
Videre vises det til liste fra Norges Eiendomsmeglerforbund angående løsøre og tilbehør. Produkter og installasjoner som medfølger overdras uten noen form for garantier, utover eventuell gjenværende leverandørgaranti.
Oppvarming
Frittstående peisovn og luft-til-luft varmepumpe i stue (1. etasje). Åpen innmurt peis i stue/soverom (underetasje). Gulvvarme i entré, hall, bad, bad/vaskerom og toalettrom. Videre er boligen basert på elektrisk oppvarming ved evt. panelovner.
Mosseregionen interkommunale brann og redning har registrert følgende:
- Siste feiing ble utført: 13.07.2023.
- Siste tilsyn ble utført: 26.09.2024.
Det ble ikke registrert avvik på fyringsanlegget ved siste tilsyn.
Opplysningene er mottatt den 26.09.2025.
Eiendommen har en nedgravd oljetank, denne har blitt sanert iflg. selger. Det er innført forbud mot oppvarming av boliger med fossil olje eller parafin fra 2020. For utfyllende informasjon, se www.oljefri.no.
Dersom det ikke er vegg- eller fastmonterte varmekilder i rom ved visning, følger dette heller ikke med.
Ferdigattest/brukstillatelse
Det foreligger ferdigattest for oppføring av boligen datert 27.11.1970. I tillegg er det tilhørende godkjente byggetegninger datert 24.11.1969.
Det er søkt om og godkjent garasjetilbygg med godkjente byggetegninger datert 21.08.1972. Tiltaket ble ikke ferdigstilt med ferdigattest.
Det gjøres oppmerksom at det ikke lenger utstedes ferdigattest på tiltak det er søkt om før 1998 jf. plan- og bygningsloven §21-10. Kommunen vil ikke kreve ferdigattest for disse tiltakene og vil avvise eventuelle søknader. Bestemmelsen innebærer ikke at tiltak med manglende søknad blir lovlige, men at man ikke trenger å avslutte gamle byggesaker. Normalt sett kreves ferdigattest for alle søknadspliktige tiltak som gjøres etter plan - og bygningsloven.
Det foreligger godkjent melding om mindre byggearbeid på boligeiendom, herunder utvidelse av veranda, vedtatt 10.11.1999. Det er ikke krav om ferdigattest ved melding.
Det er gitt tillatelse til riving av vedbod og oppføring av carport med bod samt takterrasse datert 17.06.2011. Tillatelsen ble gitt på visse forutsetninger og det spesifiseres at det ikke er gitt tillatelse til å utvide gårdsplass og manøvringsareal foran huset. Det vites ikke om forutsetningene er oppfylt. Det er krav om midlertidig brukstillatelse/ferdigattest ved utført tiltak, dette foreligger ikke pt. derfor har tillatelsen falt bort (3 år fra gitt tillatelse). Kjøper har ansvar for å søke om midlertidig brukstillatelse/ferdigattest på tiltaket (evt. søke på nytt hvis dette kreves), det må påregnes kostnader i tilknytning til dette.
Stue i underetasjen er opprinnelig byggemeldt som hobbyrom iht. godkjente byggetegninger datert 24.11.1969. Det legges til grunn at dette rommet var tiltenkt brukt som et rom for varig opphold/hoveddel, ut i fra en vurdering av rommets kvaliteter på tegninger - herunder inntegnet rømningsvinduer, pipe og tilstrekkelig takhøyde (2,25 m på tegninger).
Soverom i underetasjen er opprinnelig byggemeldt som redskap og toalettrom er opprinnelig byggemeldt som kott jf. Godkjente byggetegninger datert 24.11.1969. Innredning av rommene til bruk for varig opphold/hoveddel er ikke bruksendret/omsøkt og er heller ikke godkjent av kommunen. Konsekvensen ved søknad kan være at rommene ikke godkjennes som varig opphold/hoveddel og at rommene da må brukes/tilbakeføres til opprinnelig godkjent formål. Kjøper overtar alt ansvar og risiko for dette videre.
Det er etablert en tilliggende bod, bak carporten. Det er også etablert et takoverbygg over deler av terrassen i 1. etasje. Megler anfører at det ikke foreligger dokumentasjon på søknad til kommunen vedrørende de utførte tiltakene. Kjøper overtar risiko og ansvaret for eventuelle pålegg fra kommunen samt kostnader forbundet med dette.
Kjøper overtar eiendommen slik den framstår på visning.
Tinglyste heftelser og rettigheter
Eiendommen overdras fri for pengeheftelser.
Dagboknummer: 7686
Tinglysningsdato: 09.09.1957
Servitutten er av eldre dato og dokumentet er ikke å finne i det digitale arkivverket. Servitutten hefter likevel i eiendommen og kjøper overtar ansvaret for servitutten. Iht. grunnboksutskriften omhandler servitutten bestemmelser om anlegg og vedlikehold av ledninger m.m.
Dagboknummer: 7025
Tinglysningsdato: 14.06.1958
Servitutten er av eldre dato og dokumentet er ikke å finne i det digitale arkivverket. Servitutten hefter likevel i eiendommen og kjøper overtar ansvaret for servitutten. Iht. grunnboksutskriften omhandler servitutten bestemmelser om gjerde.
Servituttene vil følge eiendommen. Kjøpers bank vil få pant etter ovennevnte heftelser og servitutter som ikke skal slettes ved overdragelse.
Eventuell adgang til utleie
Eiendommen har ikke separat utleieenhet. Det vil normalt være anledning til utleie av hele eiendommen eller enkeltrom, såfremt utleiearealet er bygningsmessig godkjent for varig opphold og har forsvarlige radonnivåer.
Energimerking
Selger er ansvarlig for at boligen har energiattest. Det foreligger imidlertid ikke energiattest for denne boligen, men hvis kjøper krever det kan energiattest innhentes for selgers regning.
Beliggenhet og tomteforhold
Beliggenhet og tomteforhold
Beliggenhet
I Krapfossveien 13 bor du tilbaketrukket, men likevel sentralt i forhold til sentrumsområdet. Tar du sykkelen fatt, er du på få minutter fremme i sentrum. I omgivelsene er det imidlertid lite som minner om nærheten til byen. For en småbarnsfamilie vil det også være et stort pluss at Krapfoss barneskole og SFO er lett tilgjengelig i nærmiljøet.
Hverdagslige innkjøp er enkle å gjennomføre ved de mange dagligvareforretningene i området, den nærmeste finner du allerede få hundre meter unna. Et større tilbud av forretninger er lett tilgjengelig på kjøpesenteret Mosseporten, i handelsområdet rundt Høyda og naturligvis i byen.
Med utgangspunkt i Krapfoss får du også enkel vei til Mossemarka, blant annet på turløype som går direkte fra nabolaget. Marka med sine mange løyper og stier er ypperlig for trening, utflukter og ikke minst lek for familiens yngste. Når forholdene tillater prepareres skispor både i lysløypen og i skianlegget bak Mosseporten. En større lekeplass for barna med både ballbinge og grusbane, samt badestedet Vepsen med badestrand og yrende liv sommerstid, er innenfor gangavstand.
Adkomst
Det vil bli skiltet med Krogsveen visningsskilt ved fellesvisninger. Se kart i nettannonse eller Google Maps for nærmere veibeskrivelse. Velkommen til visning!
Barnehager, skoler og fritid
Barnehager: Sydskogen barnehage (0,8 km), Verket barnehage (1,6 km), Grindvold barnehage (1,7 km).
Skoler: Verket barne- og ungdomsskole (1,6 km).
Videre er det Malakoff videregående skole (2,5 km) og Kirkeparken videregående skole (2,8 km) i Moss kommune.
Dersom skole- og barnehagetilbud er av betydning for kjøpet, ber vi om at det rettes en særskilt henvendelse til kommunen for oppdatert informasjon.
Beskrivelse av tomt
Eiertomt på ca. 1 533 kvm. Skrånende tomt som er opparbeidet med blant annet innkjørsel belagt med belegningsstein, gressplen, trær, prydbusker og diverse beplantninger. Forstøtningsmurer av lettkninkerblokker.
Tomten er ikke oppmålt i nyere tid og har usikre grenser. Kommunens grunnkart viser eiendommens grenser med et beregnet normalavvik på 30-200 cm, se kartutsnitt for tomtegrenser. Ved nøyaktig oppmåling kan avvik forekomme, og kjøper aksepterer dette.
Parkering
Parkering i carport (mangler ferdigattest, tillatelsen har falt bort) og i integrert garasje på 21 kvm.
Det er montert lader for el-bil.
Forøvrig er det parkering i egen innkjørsel, belagt med belegningsstein.
Vei, vann og avløp
Eiendommen har adkomst via kommunal vei.
Eiendommen er tilknyttet kommunalt ledningsnett via private stikkledninger. Eier er selv ansvarlig for private stikkledninger til boligen.
Regulerings-og arealplaner
Eiendommen er hovedsakelig i et uregulert område men delarealer er regulert til blokkbebyggelse (59 kvm) og kjørevei (25 kvm), i henhold til reguleringsplan for "Gjerrebogen del av Gjerrebogen" vedtatt 05.11.1968 og "Krapfossvegen (gang og sykkelveg)" vedtatt 16.09.1986. Videre er eiendommen avsatt til boligbebyggelse ved kommuneplanens arealdel 2021-2032 vedtatt 24.03.2021. Utsnitt av planer med tilhørende bestemmelser kan fås ved henvendelse til megler.
Økonomi
Økonomi
Kommunale utgifter
Kommunale avgifter faktureres over 12 terminer og er på kr 13.011,- iht. kommunens årsprognose på eiendommen for 2025. I dette inngår gebyr for vann, avløp, renovasjon og feiing/tilsyn. Avgiftene for vann og avløp vil variere etter forbruket i boligen, gebyr for vann/avløp inkluderer årsgebyr og stipulert á-konto beløp/mengde (71 kubikk).
Det må påregnes kostnader til strøm og nettleie, dette vil variere avhengig av strøm-/nettselskap. Selger har ikke opplyst om forbruk av strøm.
For denne boligen er det inngått avtale om Norgespris i stedet for strømstøtte, avtalen på kr 50 øre inkl. mva følger eiendommen og har en bindingstid frem til 31.12.2026. Nettleie, avgifter og påslag fra kraftleverandøren kommer i tillegg. Les mer om Norgespris her: https://www.regjeringen.no/no/aktuelt/legg-fram-lov-om-norgespris-pa-straum-og-fjernvarme/id3102642/
Boligen har en årlig forsikringspremie via Gjensidige på ca. kr 30.000,- pr. år.
Boligen er tilknyttet Telia som leverandør av fiber, kostnaden er avhengig av hastighet på nettet.
Det må påregnes kostnader til fiber og innboforsikring.
Ovenstående er basert på nåværende eier/husstands senere års forbruk/utgifter. Dette vil variere avhengig av antall beboere, ønsket innetemperatur, egne fordelsavtaler, kanalvalg, hastighet på bredbånd m.m.
Formuesverdi
Formuesverdi for 2023 var kr 1 339 462,- ifølge Skatteetaten. Beløpet forutsetter at eier bor fast i boligen (primærbolig).
Ved eventuell øvrig bruk av eiendommen (f.eks. fritidsbolig, pendlerbolig, utleieobjekt) var formuesverdien for 2023 kr 5 357 846,-.
Fra 2026 har Stortinget vedtatt en oppdatert modell for beregning av formuesverdi for primærbolig, så avvik kan forekomme.
For mer informasjon se skatteetaten.no.
Eiendomsskatt
Eiendomsskatten utgjør kr 5.838,- pr. år, iht. kommunens årsprognose på eiendommen for 2025.
Omkostninger
4 800 000,00 Prisantydning
Omkostninger
120 000,00 Dokumentavgift til staten (2,5% av kjøpesum)
19 900,00 Gjensidige Boligkjøperpakke* (valgfritt)
545,00 Tinglysing panterettsdokument
545,00 Tinglysing skjøte
--------------------------------------------------------
121 090,00 (Omkostninger totalt (uten Gjensidige Boligkjøperpakke))
140 990,00 Omkostninger totalt (med Gjensidige Boligkjøperpakke))
--------------------------------------------------------
4 921 090,00 Totalpris inkl. omkostninger
4 940 990,00 Totalpris inkl. omkostninger (med Gjensidige Boligkjøperpakke)
--------------------------------------------------------
Totalpris inkl. omkostninger forutsetter kjøp til prisantydning.
Det tas forbehold om endringer i avgifter og gebyrer.
Tilbud om lånefinansiering
Megler formidler gjerne kontakt med rådgiver hos vår samarbeidspartner BN Bank. De har konkurransedyktige betingelser samt rask og løsningsorientert behandling av din lånesøknad. Krogsveen mottar et honorar dersom lån opprettes.
Betalingsbetingelser
Kjøpesum inkludert omkostninger, samt pantedokument tilknyttet eventuelt lån, skal være disponibelt hos megler 2 virkedager før overtagelsen.
Annen viktig informasjon
Annen viktig informasjon
Eier
Edmund Bednarczyk og Maj Kristin Bednarczyk
Overtakelse
Etter nærmere avtale.
Boligselgerforsikring
Selger har i forbindelse med salget tegnet boligselgerforsikring levert av Gjensidige.
Boligselgerforsikringen dekker selgers ansvar etter avhendingsloven begrenset oppad til kr 14 millioner. Dersom kjøper oppdager forhold ved eiendommen som hen mener utgjør en mangel ved eiendommen, vil Gjensidige behandle reklamasjonen på vegne av selger. Forsikringsvilkår kan fås ved henvendelse til megler.
Vedlagt salgsoppgaven følger selgers egenerklæringsskjema og tilstandsrapport. Interessenter må sette seg inn i dokumentene før bud inngis.
Boligkjøperforsikring
Innen kontraktsmøtet må kjøper ta stilling til om det ønskes å bestille Boligkjøperpakken gjennom Gjensidige. I denne gunstige pakken er boligen ferdig forsikret og inkluderer rettshjelpsforsikring, også kalt Boligkjøperforsikring. Rettshjelpsforsikring gir trygghet og tilgang på profesjonell juridisk hjelp dersom det oppdages uventede feil eller mangler det første året etter overtagelse. Forsikringsselskapet behandler i så fall ethvert mangelskrav kjøper måtte ha overfor selger.
Boligkjøperpakken inkluderer bygningsforsikring for hus og hytte, innboforsikring, flytteforsikring og dobbel rentedekning - i situasjoner hvor kjøper ikke får solgt nåværende primærbolig.
Kjøper mottar ingen særskilt faktura for Boligkjøperpakken da kostnaden det første året legges til kjøpesummen for boligen. Det gjøres oppmerksom på Krogsveen mottar et honorar for denne formidlingen.
Produktark for Boligkjøperpakken ligger vedlagt i salgsoppgaven.
Dersom ikke boligkjøperpakke ønskes kan kun rettshjelpsforsikring, også kalt boligkjøperforsikring, tegnes særskilt via megler. Rettshjelpsforsikringen varer i 5 år fra overtagelse og leveres gjennom Gjensidige. Ta kontakt med megler for ytterligere informasjon.
Selskap og privatpersoner som driver med kjøp/salg/utvikling som ledd i egen næringsvirksomhet kan ikke tegne boligkjøperpakke eller rettshjelpsforsikring.
Budgivning
Forbrukerinformasjon om budgivning er vedlagt denne salgsoppgaven og er også på vår hjemmeside Krogsveen.no. Alle bud og budforhøyelser må inngis skriftlig. I tillegg må legitimasjon være fremlagt sammen med signatur fra budgiver.
Vi oppfordrer til å gi bud elektronisk via GI BUD-knappen på eiendommens hjemmeside på Krogsveen.no. Da vil samtlige vilkår bli oppfylt.
Eventuelle forhøyelser eller endringer av budet kan bekreftes pr SMS eller på e-post. Vi oppfordrer alltid til å kontakte megler pr. telefon i tillegg da forsinkelser i SMS og e-post kan forekomme.
For at budene skal kunne bli behandlet og videreformidlet skriftlig til alle involverte parter, må alle bud ha en tilstrekkelig lang akseptfrist, jf. eiendomsmeglingsforskriften § 6-3.
Selger må også skriftlig akseptere budet før aksept kan formidles til budgiver. Akseptfrist bør derfor være på minimum 30 minutter, og budforhøyelser må derfor skje i god tid før fristens utløp.
Bud i forbrukerforhold kan uansett ikke settes med kortere frist enn kl. 12.00 første virkedag etter siste annonserte visning. I tillegg kan ikke budet ha forbehold om at det skal holdes hemmelig ovenfor øvrige interessenter. Megler har iht lov om eiendomsmegling ikke anledning til å videreformidle disse budene, og de vil dermed heller ikke bli journalført.
Etter at eiendommen er solgt vil kjøper og selger få tilsendt budjournal. Øvrige budgivere kan få utlevert kopi av budjournalen i anonymisert form.
Hvitvaskingsreglene
I henhold til lov om hvitvasking og terrorfinansiering har megler plikt til å gjennomføre kontrolltiltak overfor kunder, herunder fullmektiger. Dette innebærer bl.a. å bekrefte kunders og reelle rettighetshaveres identitet på bakgrunn av fremvist gyldig legitimasjon eller på annen godkjent måte, samt å innhente opplysninger om kundeforholdets formål og tilsiktede art.
Dersom slike kundetiltak ikke kan gjennomføres, kan megler ikke etablere kundeforholdet eller utføre transaksjonen.
Hvis kjøper ikke bidrar til gjennomføring av kundekontrollen og dette fører til at transaksjonen blir forsinket eller ikke kan gjennomføres, vil dette ansees som mislighold av avtalen og gi selger rettigheter etter avhendingslova kapittel 5. I tilfeller der selger ikke bidrar til gjennomføring av løpende kundekontroll underveis i oppdraget, er det selger som misligholder sine forpliktelser etter avtalen og gi kjøper rettigheter etter avhendingslovens kapittel 4. Partene er selv ansvarlige for eventuelle kostnader og ansvar dette kan medføre. Eiendomsmegleren eller eiendomsmeglingsforetaket kan ikke holdes ansvarlig for de konsekvenser dette vil kunne få for partene eller andre som har interesser i eiendomshandelen.
Kjøper oppfordres til å innbetale kjøpesummen som ikke kommer fra låneinstitusjon i én samlet innbetaling fra egen konto i norsk bank. Megler har plikt til å melde fra til Økokrim om eiendomshandler som fremstår som mistenkelige. Melding sendes Økokrim uten at partene varsles.
Personopplysningsloven
I henhold til personopplysningsloven gjør vi oppmerksom på at interessenter kan bli registrert for videre oppfølging.
Lovanvendelse
Generelle bestemmelser
Salgsoppgaven er basert på de opplysningene selger har gitt til megler, den bygningssakyndiges tilstandsrapport, samt opplysninger innhentet fra kommunen, Kartverket og andre tilgjengelige kilder. Det er viktig at kjøper setter seg grundig inn i alle salgsdokumentene, herunder salgsoppgave, tilstandsrapport og selgers egenerklæring. Kjøper anses kjent med forhold som er tydelig beskrevet i salgsdokumentene, og slike forhold kan ikke påberopes som mangler. Dette gjelder uavhengig av om kjøper har lest dokumentene. Alle interessenter oppfordres til å undersøke eiendommen nøye, gjerne sammen med fagkyndig før bud inngis. Kjøper som velger å kjøpe usett kan ikke gjøre gjeldende som mangel noe han burde blitt kjent med ved undersøkelsen.
Dersom det er behov for avklaringer, anbefaler vi at interessenter rådfører seg med eiendomsmegler eller egne rådgivere før det legges inn bud.
En bolig som har blitt brukt i en viss tid, har vanligvis blitt utsatt for slitasje og skader kan ha oppstått. Slik bruksslitasje må kjøper regne med, og det kan avdekkes enkelte forhold etter overtakelse som nødvendiggjør utbedringer. Normal slitasje og skader som nødvendiggjør utbedring, er innenfor hva kjøper må forvente og vil ikke utgjøre en mangel.
Kjøper og selgers rettigheter og plikter reguleres av avtalen mellom partene, samt informasjonen som har vært tilgjengelig for kjøperen i forbindelse med handelen. Avtalen utfylles av avhendingsloven, og det gjelder ulike avtalevilkår avhengig av om kjøper er forbrukerkjøper eller ikke. Dette er nærmere beskrevet nedenfor.
På grunn av ulike avtalevilkår kan selger vurdere bud fra en som ikke er forbruker, ulikt fra en forbrukers bud. Dersom kjøper ikke er forbruker, er selger sitt mulige mangelsansvar begrenset fordi eiendommen selges "som den er". Selger kan ikke ta «som den er»- forbehold overfor en forbrukerkjøper. Selv et lavere bud fra en som ikke er forbruker kan foretrekkes fordi begrensningen i mulig mangelsansvar kan ha egenverdi for selger. Selger står fritt til å forkaste eller akseptere ethvert bud, og er for eksempel ikke forpliktet til å akseptere høyeste bud.
Budgiver skal i budskjema avgi egenerklæring om budgiver er forbruker eller næringsdrivende/ person som hovedsakelig handler som ledd i næringsvirksomhet. Budgivere får informasjon dersom andre bud er inngitt av en som ikke er forbruker.
Forbrukerkjøp - definisjon
Med forbrukerkjøp menes kjøp av eiendom når kjøperen er en fysisk person som ikke hovedsakelig handler som ledd i næringsvirksomhet.
Forbruker – avtalevilkår
Eiendommen har en mangel dersom den ikke er i samsvar med kravene som følger av avtalen, eller det foreligger brudd på bestemmelsene i avhendingsloven §§ 3-2 til 3-8. Hvis eiendommen ikke er i samsvar med det kjøperen må kunne forvente ut ifra alder, type og synlig tilstand, kan det være grunnlag for mangelskrav. Det samme gjelder hvis det er holdt tilbake eller gitt uriktige opplysninger om eiendommen. Dette gjelder likevel bare dersom man kan gå ut ifra at det virket inn på avtalen at opplysningen ikke ble gitt eller at mangelskravet ikke blir rettet i tide på en tydelig måte.
Boligen kan ha en mangel etter avhendingsloven § 3-3 andre ledd, dersom det er avvik mellom opplyst og faktisk innvendig areal, forutsatt at avviket er på 2% eller mer og minimum 1 kvm.
Ved beregning av et eventuelt prisavslag eller erstatning må kjøper selv dekke tap/kostnader opptil et beløp på kr 10 000 (egenandel).
Ikke-forbruker (næringsdrivende) – definisjon
Hvis kjøper er en juridisk person, eller en fysisk person som hovedsakelig handler som ledd i næringsvirksomhet, vil kjøpet ikke anses som et forbrukerkjøp.
Ikke-forbruker – avtalevilkår
Eiendommen har en mangel dersom den ikke er i samsvar med kravene som følger av avtalen.
Eiendommen selges «som den er», og selgers ansvar utover det konkret avtalte er da begrenset etter avhendingsloven § 3-9, første ledd andre setning.
Avhendingsloven § 3-3 andre ledd fravikes, og hvorvidt boligens arealsvikt utgjør en mangel vurderes etter avhendingsloven § 3-8.
Informasjon om kjøpers undersøkelsesplikt, herunder oppfordringen om å undersøke eiendommen nøye, gjelder også for kjøpere som ikke anses som forbrukere.
Det forutsettes at hjemmel overføres til kjøper. Hvis kjøper ikke ønsker hjemmelsoverføring av eiendommen, må det tas forbehold om dette i budet.
Meglers vederlag
Meglers vederlag betales av selger og er avtalt til:
Vederlag: 1,60 % av salgssummen
Minimumsprovisjon er kr 60 000,00
Vederlag:
Foto kr 5 100,00
Kunderabatt SELGER; gjelder for avtalt: markedspakke kr -7 000,00
Markedsføringspakke inkl. Smartannonsering, hjem.no & finn.no kr 27 400,00
Oppgjør kr 7 500,00
Tilrettelegging Inkl. alle visninger m/påmeldte kr 17 000,00
Utlegg:
Innhenting av offentlige opplysninger kr 3 500,00
Tinglysing sikring kr 545,00
Andre utgifter:
AX tilstandsrapport enebolig kr 20 625,00
Boligselgerforsikring Gjensidige Eiet kr 27 408,00
Vi er opptatt av verdiskapning, og har knyttet til oss samarbeidspartnere som skal sikre våre kunder de beste produkter og tjenester;
• I forbindelse med forberedelse av salget, innhenter vi informasjon om eiendommen hovedsakelig fra vår samarbeidspartner Ambita.
• Gjensidige leverer boligselgerforsikring og tilbyr bygningsforsikring
• Boligkjøperforsikring leveres av Hiscox og med Sedgwick som skadebehandler, og er formidlet gjennom Gjensidige.
• BN bank tilbyr finansieringsløsninger
• Vår avdeling Krogsveen Pluss tilbyr flyttetjenester som utvask, visningsvask, lager, tømming og transport av flyttelass, i tillegg til å formidle kontakt med Flip for overflateoppussing.
• I forbindelse med overtagelse av eiendommen tilbyr Overo avtale om strøm, alarm og bredbånd.
• Krogsveen er, sammen med øvrige bransjeaktører, medeier i den digitale annonseringsplattformen Hjem som eies av Bomega AS.
Opplysninger om oppdraget
Oppdragsnummer 30-0166/25
Eiendomsmegler Krogsveen AS, avd. Moss
Kongens gate 23, 1530, MOSS
950 007 613
Oppdragets KR-kode KR30.25166
Dato
Sist oppdatert: 26. april 2026 kl. 19:46
Dokumenter
Dokumenter
PDF – 1008 KB
PDF – 722 KB
PDF – 592 KB
PDF – 11 MB
PDF – 312 KB
PDF – 29 KB
PDF – 127 KB
PDF – 392 KB
Område
Legg til steder som er viktige for deg
Visning
For å delta på visning, ber vi om at du melder deg på. Da sikrer vi at du får nødvendig informasjon og at det er satt av tilstrekkelig med tid. Kontakt megler dersom annet tidspunkt ønskes. Husk å lese salgsoppgaven før visningen, så du stiller forberedt. NB. Visning utgår dersom det ikke er noen påmeldte.
Ønsker du kun å bli holdt orientert, kan du fra eiendommens hjemmeside få varsel om solgtpris, eller kontakte megler.
Lurer du på noe?
Unngå doble boligrenter
Vi tilbyr gunstig forsikring.
Vurderer du utleie?
Få et tilbud fra Utleie KrogsveenHva koster lånet?
Sjekk estimert lånekostnadVil du varsles om lignende boliger?
Ved å lagre ditt boligsøk hos oss får du beskjed når vi har en bolig som ligner denne, før den legges ut på markedet!







































