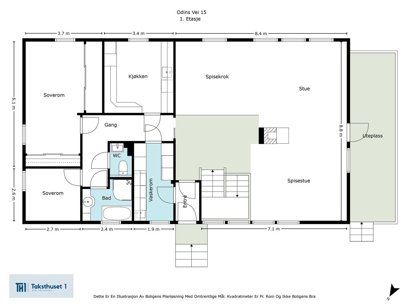
Odins vei 15
10 500 000 kr
259 m²
5 soverom
Solgt

Fjellhamar
Innholdsrik og familievennlig enebolig over 2 plan | Bergvarme | Godt vedlikeholdt | Attraktiv beliggenhet
Prisantydning
10 500 000 krOmkostninger
283 490 krTotalpris
10 783 490 kr
Pris
Bruksareal
286 m²BRA-I (internt bruksareal)
259 m²BRA-E (eksternt bruksareal)
27 m²TBA (terrasse-balkongareal)
40 m²
Areal
Byggeår
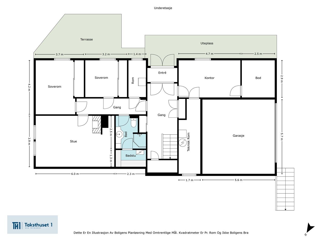
1969Soverom
5 soveromBad
2 badTomteareal
1 000 m² (eiet)Type
Enebolig - FrittliggendeEierform
EietFasiliteter
Garasje/P-plass og Balkong/TerrasseEnergimerke
Gul D
Nøkkelinfo
Unngå doble boligrenter
Vi tilbyr gunstig forsikring.
Vurderer du utleie?
Få et tilbud fra Utleie KrogsveenHva koster lånet?
Sjekk estimert lånekostnadBeskrivelse
Kort om eiendommen
Velkommen til Odins vei 15! - En frittliggende enebolig med god beliggenhet og fin utsikt. Stille og rolig område med kort avstand til tog og buss.
Boligen har en familievennlig planløsning med smarte løsninger. Tilhørende boligen er en integrert dobbelgarasje.
- 5 soverom
- 2 stuer
- Oppgradert uteområde, drenert og asfaltert gårdsplass
- Betydelig vedlikeholdt fra 2006 - dd.
- Etablert bergvarme i 2010
- Solrik tomt m/ flere flotte uteområder
- Barnevennlig og attraktiv villavei, med lite gjennomgangstrafikk
- Kort avstand til skoler og barnehager
- 4 min. til buss og tog
Område
Legg til steder som er viktige for deg
På flyttefot? Tenk kjøp og salg samtidig.
Få din egen rådgiver gjennom hele kjøps- og salgsprosessen. Det starter med en verdivurdering.
Unngå doble boligrenter
Vi tilbyr gunstig forsikring.
Vurderer du utleie?
Få et tilbud fra Utleie KrogsveenHva koster lånet?
Sjekk estimert lånekostnadVil du varsles om lignende boliger?
Ved å lagre ditt boligsøk hos oss får du beskjed når vi har en bolig som ligner denne, før den legges ut på markedet!

