Camilla Colletts veg 5
3 780 000 kr
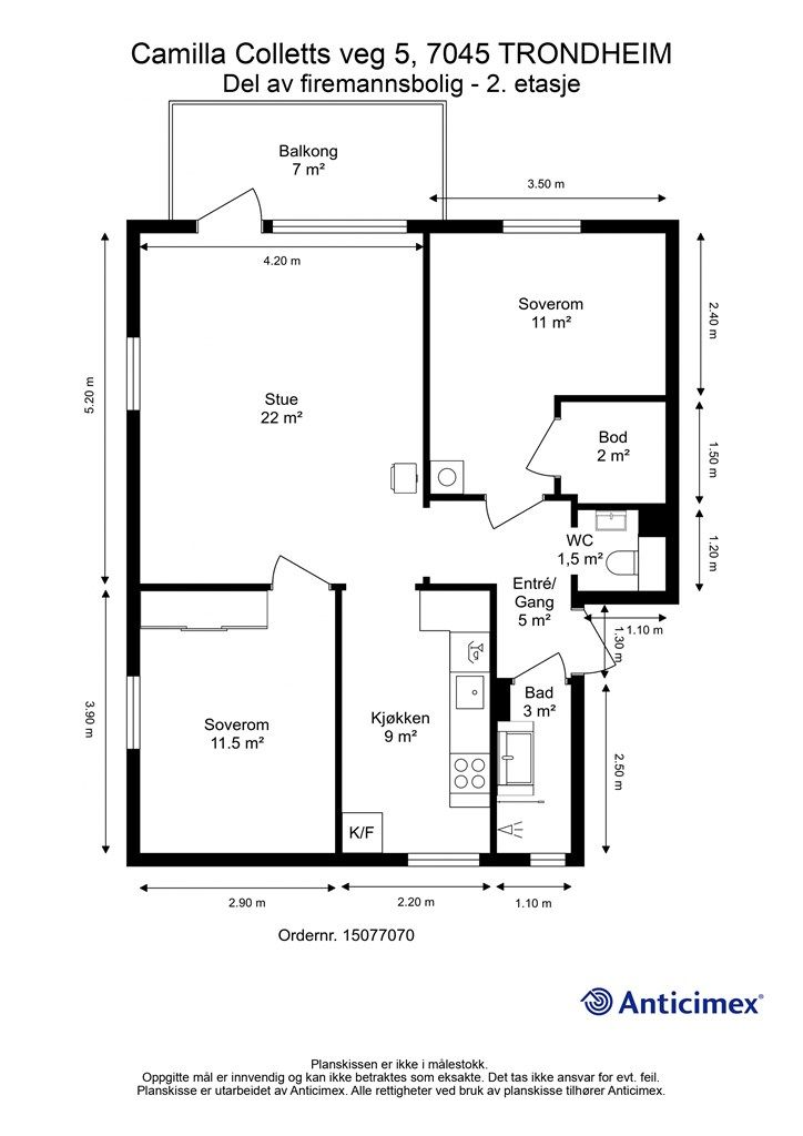
69 m²
2 soverom
Solgt

Presenteres av
Jan Vidar LysbakkenStrindheim
Moderne og tidsriktig 3-roms i ettertraktet og sentralt område | Betydelig oppusset i 2024 | Parkering | Solrik balkong
Prisantydning
3 780 000 krAndel fellesgjeld
195 008 krOmkostninger
19 021 krTotalpris
3 994 029 kr
Pris
Bruksareal
94 m²BRA-I (internt bruksareal)
69 m²BRA-E (eksternt bruksareal)
25 m²TBA (terrasse-balkongareal)
7 m²
Areal
Etasje
2Byggeår
1949Soverom
2 soveromBad
1 badType
AndelsleilighetEierform
AndelFasiliteter
Balkong/TerrasseFellesutgifter
5 652 krEnergimerke
Oransje G
Nøkkelinfo
Unngå doble boligrenter
Vi tilbyr gunstig forsikring.
Vurderer du utleie?
Få et tilbud fra Utleie KrogsveenHva koster lånet?
Sjekk estimert lånekostnadBeskrivelse
Kort om eiendommen
Velkommen til Camilla Colletts veg 5! Lys og moderne 3-romsleilighet med attraktiv beliggenhet på Strindheim. Her bor du i et populært og rolig område med kort vei til både sentrum, turmuligheter og servicetilbud.
Verdt å nevne:
Tidsriktig og moderne leilighet, betydelig oppusset i 2024
Gjennomtenkte materialvalg og helhetlig fargevalg
Romslig stue med store vindusflater og mye naturlig lys
Lyst og stilrent IKEA-kjøkken med rikelig skap- og benkeplass
To store soverom med flere møbleringsmuligheter
Flislagt bad med gulvvarme og regndusj
Solrik og sørvendt balkong
Gode parkeringsalternativer og mulighet for garasje
Fire store boder, hvorav den i leiligheten har opplegg for vaskemaskin
Gangavstand til gode kollektivmuligheter og Leangen Idrettsanlegg
Område
Legg til steder som er viktige for deg
På flyttefot? Tenk kjøp og salg samtidig.
Få din egen rådgiver gjennom hele kjøps- og salgsprosessen. Det starter med en verdivurdering.
Unngå doble boligrenter
Vi tilbyr gunstig forsikring.
Vurderer du utleie?
Få et tilbud fra Utleie KrogsveenHva koster lånet?
Sjekk estimert lånekostnadVil du varsles om lignende boliger?
Ved å lagre ditt boligsøk hos oss får du beskjed når vi har en bolig som ligner denne, før den legges ut på markedet!
På flyttefot? Slik gjør vi det enklere for deg
Skreddersydd flyttepakke
Vi fikser håndverkere, vask, pakking, lagring og transport, og legger ut for utgiftene underveis.
Hjelp med både kjøp og salg
Hos oss har du din egen rådgiver gjennom hele kjøps- og salgsprosessen.
Hjelp til finansiering
Vårt samarbeid med BN Bank sikrer deg rask og løsningsorientert hjelp, til konkurransedyktige betingelser.


























