Krabberødstrand terrasse 2
3 975 000 kr
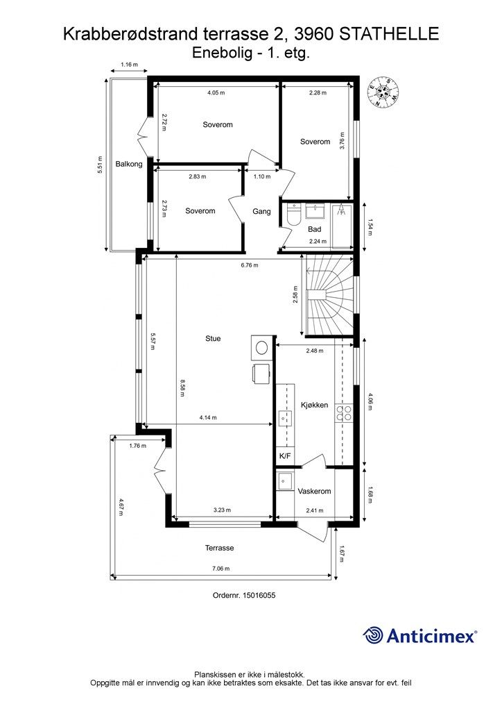
176 m²
4 soverom
Solgt

Stathelle - Krabberødstrand
Enebolig med utleiedel, usjenert beliggenhet og fin utsikt mot sjøen.
Prisantydning
3 975 000 krOmkostninger
120 360 krTotalpris
4 095 360 kr
Pris
Bruksareal
176 m²BRA-I (internt bruksareal)
176 m²TBA (terrasse-balkongareal)
223 m²
Areal
Byggeår
1977Soverom
4 soveromBad
3 badTomteareal
618 m² (eiet)Type
Enebolig med utleiedelEierform
EietFasiliteter
Balkong/TerrasseEnergimerke
Gul F
Nøkkelinfo
Unngå doble boligrenter
Vi tilbyr gunstig forsikring.
Vurderer du utleie?
Få et tilbud fra Utleie KrogsveenHva koster lånet?
Sjekk estimert lånekostnadBeskrivelse
Kort om eiendommen
Huset ligger litt for seg selv i Krabberødstrand. Det ble bygget over to plan med hybel i sokkeletasjen i 1977. Fra eiendommen er det fin utsikt utover sjøen og over mot Brevik. Bak huset inntil fjellet er det anlagt en stor terrasse med levegg mot gårdsplassen. Terrassen har flere nivåer, integrert sandkasse og er innrammet med hekk som skjermer for innsyn ovenfra. Innvendig fremstår boligen som lys og luftig med god planløsning. Leiligheten har egen inngang.
Område
Legg til steder som er viktige for deg
På flyttefot? Tenk kjøp og salg samtidig.
Få din egen rådgiver gjennom hele kjøps- og salgsprosessen. Det starter med en verdivurdering.
Unngå doble boligrenter
Vi tilbyr gunstig forsikring.
Vurderer du utleie?
Få et tilbud fra Utleie KrogsveenHva koster lånet?
Sjekk estimert lånekostnadVil du varsles om lignende boliger?
Ved å lagre ditt boligsøk hos oss får du beskjed når vi har en bolig som ligner denne, før den legges ut på markedet!



























































