Øygardveien 113L
6 900 000 kr
137 m²
3 soverom
Komplett salgsoppgave

HOSLE / BEKKESTUA
Familievennlig rekkehus over 3 plan på Nadderud | Gangavstand til skoler, butikk og Bekkestua | Moderniseringsbehov
Prisantydning
6 900 000 krOmkostninger
193 490 krTotalpris
7 093 490 kr
Pris
Bruksareal
137 m²BRA-I (internt bruksareal)
137 m²TBA (terrasse-balkongareal)
16 m²
Areal
Etasje
3Byggeår
1962Soverom
3 soveromBad
2 badTomteareal
37 298 m² (festet)Type
RekkehusEierform
EietFasiliteter
Balkong/TerrasseÅrlig velavgift
4 039 kr
Nøkkelinfo
Unngå doble boligrenter
Vi tilbyr gunstig forsikring.
Vurderer du utleie?
Få et tilbud fra Utleie KrogsveenHva koster lånet?
Sjekk estimert lånekostnadBeskrivelse
Kort om eiendommen
Innhold og byggemåte
Innhold og byggemåte
Eiendommen
Øygardveien 113L, 1357 BEKKESTUA
Kommunenummer 3201, gårdsnummer 19, bruksnummer 572, festenummer 11, ideell andel 1/1
Innhold
Totalt bruksareal (BRA): 137 kvm.
BRA-i:
Rekkehus:
Underetasje 45 kvm: Stue, teknisk rom, entré, bod, kjøkken og bad.
1. etasje 46 kvm: Stue og kjøkken.
2. etasje 46 kvm: 3 soverom, omkledningsrom, gang og bad.
Åpent areal:
1. etasje 16 kvm: Terrasse.
Underetasjen har et totalt gulvareal (GUA) på ca. 46 kvm, men som følge av lav takhøyde under trappen er deler av arealet ikke måleverdig. Målbart areal (BRA) utgjør derfor ca. 45 kvm.
De byggemeldte tegningene stemmer ikke med dagens bruk. Se pkt. ferdigattest for nærmere informasjon.
Vedlagte plantegninger er ikke målbare. De oppgitte arealer er hentet fra rapport med befaringsdato 03.03.2026 utført av We Consult AS v/Simen Thorp. Arealene er beregnet og rom er definert etter dagens faktiske bruk, uavhengig av hva som er godkjent av bygningsmyndighetene.
Byggemåte
Selger har innhentet en tilstandsrapport av boligen. Dersom det er registrert avvik, er disse klassifisert med tilstandsgrader (TGIU, TG2 og/eller TG3). Kjøper overtar ansvaret for de opplysninger som fremkommer av salgsdokumentasjonen, og kan ikke gjøre gjeldende som mangel noe som burde vært kjent eller som ikke kan anses å ha betydning for avtalen.
Bygningen er iht. tilstandsrapport oppført i 1960. Rekkehuset har grunnmur i betong, etasjeskiller i trekonstruksjon og yttervegger i bindingsverkkonstruksjon kledd med malt liggende panel. Yttertaket er en lukket trekonstruksjon (saltak) tekket med shingel. Boligen har vinduer med 2- og 3-lags isolerglass, produsert i 1978, 2002 og 2009. Inngangsdøren er i treverk med glassfelt, og det er en terrassedør med 2-lags glass fra 2009. Det er en østvendt terrasse i trekonstruksjon på ca. 16 m². Boligen har en pipe uten tilknyttet ildsted.
Det elektriske anlegget har sikringer av jordfeilautomater. På bakgrunn av manglende samsvarserklæring og anleggets alder, anbefales det en utvidet el-kontroll.
Det gjøres spesielt oppmerksom på at følgende bygningsdeler er gitt Tilstandsgrad 3 (TG3) — Store eller alvorlige avvik:
Utvendig
- Dører: Inngangsdøren fungerer ikke som forutsatt. Den kan kun holdes lukket ved låsing. Lukkemekanismen ved bruk av dørhåndtak må byttes.
- Vinduer: Det er registrert slitasje og avflassing i malingen på vinduskarmene. Når overflatebehandlingen brytes ned, blir treverket dårligere beskyttet mot vær og fukt. Over tid kan dette føre til fuktinntrenging, noe som øker risikoen for råte og skader i treverket. Forholdet tilsier behov for vedlikehold, som skraping og ny overflatebehandling. Det er registrert vinduer som tar i karmen ved åpning og lukking. Årsaken er ofte bevegelser i konstruksjoner/bygningen og/eller skjevheter i vinduer som kan oppstå over tid som følge av normal bruk og slitasje. Forholdet kan gi økt slitasje og tyngre betjening. Justering av vinduer anbefales. Det er registrert detaljløsninger på vinduer i stuen i 1. etasje, spesielt ved beslag, som medfører at vann ledes inn i konstruksjonen fremfor bort fra fasaden. Slike utettheter gir en direkte risiko for fuktinnsig og skjulte skader i bakenforliggende bygningsdeler. Forholdet bør utbedres for å sikre en fagmessig og vannavvisende avslutning. Det er registrert råteskader i treverket ved vinduer i stuen og kjøkkenet. Skaden oppstår når tre over tid utsettes for fukt. Råte innebærer at materialet brytes ned, blir mykt og mister styrke. Dette svekker bygningsdelens funksjon og kan føre til videre skader dersom forholdet ikke utbedres. Skadet treverk må skiftes ut, og fuktårsaken bør avklares. Se bilde med forhøyde fuktverdier. Utvendig listverk er montert nærmere enn 50 mm fra underliggende flate, som er et avvik fra normal praksis for detaljer og utførelse. Dette gjør at treverket enklere kan suge opp fuktighet fra regnvann eller snø som blir liggende på underlaget, noe som øker risikoen for råteskader og kan forkorte kledningens levetid.
Bad - Underetasje
- Kontroll i tilliggende konstruksjoner: Det er målt fuktverdier til 17 vektprosent i treverk ved hulltaking mot badet (måling i boring nær våtsone). Verdiene tyder på fukttilskudd utover normalen, som kan indikere en utetthet (lekkasje eller manglende tetting). Hvis verdiene stiger nær eller over 16 vektprosent økes muligheten for fuktskade. Grundigere undersøkelser anbefales for å finne årsaken og vurdere tiltak. Det er registrert fuktskade i konstruksjonen. Dette innebærer at bygningsmaterialer har vært utsatt for fukt, noe som over tid kan redusere styrke og holdbarhet. Fuktskader kan også gi risiko for sopp- og mugdannelse dersom årsaken ikke utbedres. Forholdet bør undersøkes nærmere for å avklare omfang, årsak og nødvendige tiltak.
- Sluk og tettesjikt/membran: Tilstandsgrad 3 er satt fordi våtrommet fremstår med eldre løsninger fra før år 2000. Slike konstruksjoner tilfredsstiller normalt ikke dagens krav til fuktsikring, materialvalg og detaljutforming. Risikoen for skjulte feil, svekket tettesjikt og fuktskader vurderes som høy, selv om konkrete skader ikke nødvendigvis er synlige ved befaring. Full rehabilitering bør påregnes. Det foreligger ingen dokumentasjon på utført vanntetting, og det ble heller ikke observert synlige tegn til membran. Når vanntett sjikt ikke kan bekreftes, oppstår det usikkerhet om hvordan konstruksjonen er beskyttet mot fukt. At membran ikke er synlig er vanlig i enkelte typer løsninger, men forholdet ligger likevel under kriteriene for tilstandsgrad 2.
- Overflater: Det er registrert omfattende skader og slitasje på overflatene i våtrommet. Skader eller svekkelser i overflatene kan er en indikasjon på slitasje, bevegelser eller fuktpåvirkning, og kan over tid bidra til økt belastning på konstruksjonen. Forholdet vurderes som alvorlig, og utbedring bør påregnes. Det er registrert omfattende tegn til sopp- og muggvekst. Dette er vanligvis et resultat av fukt over tid. Slike skader kan svekke materialer og kan påvirke inneklimaet. Funnene kan også tyde på underliggende fuktproblemer. Forholdet vurderes som alvorlig, og nærmere undersøkelser samt utbedring må påregnes. Riss er observert i flisefuger. Dette kan skyldes flere årsaker, for eksempel bevegelser i underlaget, dårlig håndverk, normal slitasje, temperaturendringer eller fuktskader. Årsaken er ikke fastslått, og regelmessig oppfølging anbefales for å overvåke utviklingen.
Kjøkken
- Gulv, avløp og vannrør i kjøkken: Vannrørene har passert halvparten av sin forventede levetid. Etter hvert som rør blir eldre, øker risikoen for lekkasjer og følgeskader. Hvor lenge de vil fungere videre, avhenger av blant annet materialkvalitet, vanntrykk og belastning over tid. Det må derfor påregnes at rørene må skiftes i løpet av de kommende årene, men det er ikke mulig å angi et konkret tidspunkt for dette. Tilluftsventilene lar seg ikke åpne eller justere. Dette begrenser tilførselen av frisk luft til rommet og kan redusere den samlede ventilasjonen i boligen. Når tilførselen av ny luft blir for liten, kan luftutskiftingen bli dårligere, noe som kan gi redusert inneklima og økt opphopning av fukt over tid. Det er ikke montert kullfilterventilator over komfyr. For å sikre tilfredsstillende ventilasjon bør ventilene repareres eller skiftes slik at de fungerer som forutsatt, samt montere kullfilterventilator. Kjøkkenbunn under servant har fuktskader. Dette tyder på at det har vært utsatt for vann som har ført til skade. Konsekvensen er at bunnplaten bør skiftes ut.
Bad - 2. etasje
- Sanitærutstyr: Det er registrert lekkasje fra sanitærutstyr. Selv mindre lekkasjer kan over tid føre til fuktskader i innredning, gulv eller vegger dersom forholdet ikke utbedres. Fuktskader kan igjen medføre behov for reparasjoner og økte kostnader. Årsaken til lekkasjen bør undersøkes, og utbedring må påregnes. Avviket bør håndteres innen kort tid. Det er registrert svelling i baderomsinnredningen. Slike svellinger oppstår vanligvis når materialer har vært utsatt for fukt over tid. Forholdet kan skyldes vannsøl, høy luftfuktighet. For å utbedre slike skader, må man normalt bytte ut den delen som er skadet.
- Sluk og tettesjikt/membran: Membranen har oppnådd en alder hvor den har usikker fremtidig funksjon. Når membranen blir eldre, svekkes tettheten gradvis. Dette øker risikoen for små utettheter som kan slippe fukt ned i konstruksjonen. Levetiden påvirkes av kvalitet, utførelse og belastning. Jevnlig tilsyn anbefales. Oppgradering av tettesjiktet må påregnes på sikt. Sluket har nådd en alder hvor det er usikker fremtidig funksjon. Materialer svekkes over tid på grunn av fukt, temperaturendringer og påvirkning fra avløpsvann. Pakninger kan tørke ut og miste tetthet, og metall kan korrodere. Dette øker risikoen for lekkasjer, som kan føre til fukt- og vannskader i konstruksjonen. Badet er fra en periode før det ble stilt krav om vanntett sjikt (membran) i alle utsatte områder. Slike løsninger har generelt større risiko for fuktskader enn nyere bad. Fuktsikringen kan derfor ikke vurderes som sikker etter dagens standard, og konstruksjonen har nådd en alder der slitasje og svekkelser kan forekomme. For å redusere risiko for fremtidige fuktproblemer bør forholdet følges opp jevnlig, og det må påregnes behov for oppgradering eller fornyelse av tettesjiktet innen overskuelig tid. Rør som går gjennom gulvet er ikke ført i beskyttende hylse. Hylsen skal bidra til å hindre at vann og fukt trenger ned rundt røret. Når denne mangler, øker risikoen for at fukt over tid kan trekke ned i gulvkonstruksjonen, noe som kan føre til skjulte fuktskader.
- Generell vurdering: Det ble foretatt hulltaking i veggkonstruksjon i forbindelse med fuktundersøkelse. Ved inspeksjon ble det observert spindelvev i konstruksjonen, noe som kan indikere at hulrommet har vært utsatt for et fuktig miljø over tid. Badet er også av eldre dato og har nådd en alder hvor risikoen for svikt i membran og skjulte konstruksjoner er økt. På bakgrunn av alder og observasjoner i konstruksjonen vurderes forholdet til tilstandsgrad TG3. Oppgradering av våtrommet må forventes.
Følgende bygningsdeler er gitt Tilstandsgrad 2 (TG2) — Avvik som kan kreve tiltak:
Utvendig
- Balkonger/terrasser og lignende: Det er registrert slitasje på konstruksjonen med grønske og sprekker i terrassebordene. Slitasjen tilsier at det må påregnes vedlikehold innen rimelig tid.
- Takkonstruksjon/Loft: Det er usikkert om luftingen mellom isolasjon og yttertak er tilfredsstillende. Mangelfull lufting kan føre til at varm, fuktig luft kondenserer mot kalde takflater. Dette kan over tid gi økt risiko for fukt- og råteskader i taktro og sperrer, samt isdannelse på taket vinterstid. Luftingen bør derfor undersøkes nærmere. Loftet har ikke adkomst, og det finnes ikke dokumentasjon på hvordan konstruksjonen er bygget opp. Viktige forhold som ventilasjon, dampsperre og tilstand på treverk kunne derfor ikke kontrolleres. Når slike områder ikke kan inspiseres, knytter det seg usikkerhet til om det kan forekomme skjulte fukt- eller kondensskader. Det anbefales å etablere inspeksjonsluke for å muliggjøre vurdering av loftets tilstand. Det er observert fuktmerker enkelte steder på panelet i undertaket, særlig rundt spikerføringer og skjøter. Det tyder på at det tidligere har vært fuktpåvirkning. Årsaken kan være tidligere lekkasjer eller kondens. Målinger med fuktmåler viste normale verdier på befaringstidspunktet, noe som indikerer at forholdet ikke var aktivt da. Det knytter seg likevel usikkerhet til tettheten over tid. Områdene bør følges opp, spesielt ved lengre perioder med nedbør eller snøsmelting. Ved tegn til ny fukt bør tettinger rundt gjennomføringer kontrolleres og utbedres.
- Veggkonstruksjon: Det er ikke registrert synlig luftespalte i kledningens nedkant. Boliger fra denne perioden ble ofte bygget uten lufting fordi uisolerte vegger hadde stor varmegjennomgang som hjalp til med uttørking, men dersom veggene er etterisolert, endres denne balansen. Uten luftsirkulasjon bak panelene vil fukt fra kondens eller slagregn bli værende i konstruksjonen, noe som øker risikoen for skjulte råteskader i både kledning, isolasjon og stendere. Da det er usikkerhet knyttet til veggens faktiske oppbygning og isolasjonsgrad, anbefales det nærmere undersøkelser for å avklare tilstanden og vurdere behovet for tiltak. Det er observert tørkesprekker i panel. Slike sprekker oppstår når treverket tørker og beveger seg over tid. Dersom sprekkene øker i størrelse eller ikke vedlikeholdes, kan de gi økt risiko for fuktinntrenging og påfølgende skader i treverket. Forholdet bør følges opp gjennom normalt vedlikehold.
- Taktekking: Det er registrert mose og begroing på overbygget over inngangsdør. Mose holder på fuktighet, noe som over tid kan skade tekkingen og øke risikoen for skader som kan føre til lekkasjer. Det anbefales å fjerne begroingen som en del av normalt vedlikehold.
Tekniske installasjoner
- Varmtvannstank: Sikkerhetsventilen på varmtvannsberederen mangler avløp til sluk eller annet sikkert avløp. Når berederen varmes opp, skal sikkerhetsventilen slippe ut overtrykk og mindre mengder vann. Uten avløp kan dette vannet renne fritt ut på gulvet og medføre fuktskader på gulv og tilstøtende konstruksjoner over tid. Forholdet bør utbedres ved å føre sikkerhetsventilen til sluk eller etablere annen godkjent løsning for bortledning av vann. Varmtvannsberederen har passert normal forventet levetid (over ca. 20 år). Eldre beredere har økt risiko for lekkasje som følge av slitasje og korrosjon i tank og komponenter. Eldre beredere har også ofte noe lavere energieffektivitet og kapasitet enn nyere modeller. Utskiftning bør påregnes innen overskuelig tid for å redusere risiko for skade og driftsstans.
- Avløpsrør: Avløpsrørene er av eldre dato og har nådd en alder hvor det er erfaringsmessig usikker fremtidig funksjon. Eldre rør har økt risiko for slitasje, som sprekker, utette skjøter eller innvendig svekkelse. Dette kan over tid føre til lekkasjer og fuktskader på omkringliggende konstruksjoner. Det er ikke registrert akutt svikt, men alderen tilsier at vedlikehold eller utskifting må påregnes på sikt. Risikoen for feil og skader øker med videre bruk og belastning.
- Vannledninger: Vannrør er eldre. Eldre vannrør kan med tiden utvikle sprekker, korrosjon eller problemer i skjøter, noe som kan gi lekkasjer og vannskader. Dette kan skje som en naturlig del av aldringsprosessen, og det bør påregnes behov for utbedring eller utskifting over tid.
Innvendig
- Etasjeskiller: Totalt avvik ble målt til ca. 20 cm. Lokalt avvik ble målt til ca. 15 cm i soverom i 2. etasje.
Underetasje
- Rom under terreng: Det er riss/sprekker og skjevheter som kan tyde på bevegelser/setninger i konstruksjonen. Årsaken er ikke nærmere avklart. Slike bevegelser kan være stabile, men dersom de pågår kan skader utvikle seg over tid. Forholdet bør derfor holdes under oppsikt, og videre vurdering anbefales ved endringer eller ved behov for nærmere avklaring.
Bad - Underetasje
- Avtrekk: Avtrekket skjer ved naturlig oppdrift, altså uten mekanisk vifte. Denne typen ventilasjon påvirkes av vær og temperatur, og luftutskiftingen kan derfor variere. I perioder kan avtrekket bli svakt, noe som kan føre til at fuktig luft blir stående lenger i rommet. Over tid kan dette øke belastningen på overflater og konstruksjoner dersom rommet brukes mye og ventilasjonen ikke er tilstrekkelig. Løsningen er vanlig i eldre boliger, men vurderes som tilstandsgrad 2 (TG 2) i henhold til NS 3600.
- Sanitærutstyr: Røranlegget har nådd en alder der slitasje og materialtretthet normalt begynner å øke. Selv om det ikke er registrert konkrete feil ved befaringen, innebærer alderen en forhøyet sannsynlighet for lekkasjer eller funksjonssvikt over tid. Eventuelle skader kan oppstå gradvis og i noen tilfeller uten tydelige forvarsler. Det anbefales å være oppmerksom på anleggets tilstand og påregne behov for vedlikehold eller utskifting på sikt.
Tomteforhold
- Terrengforhold: Terrenget heller delvis bort fra grunnmuren, men fallet er begrenset. Når bakken ikke heller tydelig bort fra huset, kan regn- og smeltevann bli liggende nær muren eller ledes saktere bort. Over tid kan dette føre til økt fuktbelastning på grunnmur og drenering, noe som kan øke risikoen for fuktproblemer. Det anbefales å forbedre fallforholdene slik at vann ledes mer effektivt bort fra bygningen.
- Grunnmur og fundamenter: Det er registrert vertikale riss i grunnmuren. Slike riss oppstår ofte ved mindre bevegelser i konstruksjonen eller når muren utsettes for belastninger. Dersom utviklingen fortsetter, kan rissene øke i størrelse og på sikt bidra til svekkelse eller fuktinntrenging. Det anbefales å følge med på om rissene endrer seg og vurdere nærmere undersøkelse ved tegn til utvikling.
- Fuktsikring og drenering: Dreneringen er i en alder der man må regne med at funksjonen kan være redusert. Eldre dreneringssystemer vil over tid kunne tettes, bli slitt og miste effekt. Dette kan føre til økt risiko for at fukt trenger inn i grunnmuren. Konsekvenser kan blant annet være fukt i rom under terreng, lukt eller skader på overflater og materialer. Det anbefales å følge med på utviklingen og påregne behov for fornyelse av drenering og utvendig fuktsikring på sikt. Målinger med overflateindikator viser forhøyet fukt i grunnmuren. Dette kan skyldes redusert effekt av drenering og/eller at fukt trekkes opp fra grunnen. Forhøyet fukt kan føre til et fuktigere inneklima i rom under terreng og over tid bidra til slitasje på overflater som puss og maling. Risikoen for lukt, misfarging og avskalling øker dersom forholdet vedvarer. Videre vurdering og eventuelle tiltak kan være aktuelt.
Bad - 2. etasje
- Kontroll i tilliggende konstruksjoner: Hulltaking er utført. Det ble ikke registrert forhøyede fuktverdier. Spindelvev ble observert i hulrommet, hvilket kan indikere et noe fuktpåvirket miljø til tider, uten at det ble påvist unormale måleverdier.
- Avtrekk: Avtrekket skjer ved naturlig oppdrift, altså uten mekanisk vifte. Denne typen ventilasjon påvirkes av vær og temperatur, og luftutskiftingen kan derfor variere. I perioder kan avtrekket bli svakt, noe som kan føre til at fuktig luft blir stående lenger i rommet. Over tid kan dette øke belastningen på overflater og konstruksjoner dersom rommet brukes mye og ventilasjonen ikke er tilstrekkelig. Løsningen er vanlig i eldre boliger, men vurderes som tilstandsgrad 2 (TG 2) i henhold til NS 3600.
- Overflater: Høydeforskjellen mellom topp slukrist og ferdig gulv ved dørterskelen er under 25 mm. Det er terskel i døren, men det foreligger ikke dokumentasjon på at membranen er ført tilstrekkelig opp i eller bak terskelen. Dette medfører usikkerhet knyttet til fuktsikkerheten ved døråpningen. Dersom høydeforskjellen er utilstrekkelig, kan vann renne ut av rommet eller trenge inn i konstruksjonen ved lekkasjer eller større vannpåvirkning. Gulvet har ikke tilstrekkelig fall mot sluk. Ved normal bruk av dusj eller badekar kan vann derfor renne utover gulvet og bli liggende. Dette gir økt fuktbelastning, som over tid kan føre til slitasje fra fuktpåvirkninger og redusere sklisikkerheten. Vinduet er plassert i våtsone, og materialene/løsningen er ikke tilpasset jevn fuktbelastning. I dette området kan det forekomme vannsøl og høy luftfuktighet, noe som over tid øker risikoen for fuktproblematikk. Forholdet innebærer ikke nødvendigvis skade i dag, men gir en forhøyet risiko sammenlignet med en mer fuktbestandig utførelse. Det er observert sprekker i enkelte fliser. Slike sprekker er ofte av kosmetisk betydning, men kan også være et tegn på bevegelser i underlaget. Årsaken er ikke nærmere avklart. Dersom sprekkene utvikler seg, kan det tyde på underliggende fuktpåvirkning som krever tiltak. Det anbefales å følge med på området og vurdere utbedring ved endringer.
Følgende bygningsdeler er ikke undersøkt (TGIU):
Tomteforhold
- Byggegrunn: Byggegrunn er ukjent. Her opplyses det kun om byggegrunn er kjent, men det gjøres ikke undersøkelser utover dette.
Helse, miljø og sikkerhet
Rekkverk og håndløper: Det mangler håndløper på begge sider av trappen (kun på en side). Manglende håndløper gir lavere personsikkerhet.
Branntekniske forhold: Boligen er oppført før 1985 hvor krav til brannceller generelt ikke tilfredsstiller dagens krav. Det må derfor forventes avvik til dagens krav. Dette kan bety at boligen har lavere brannsikring mot andre seksjoner, sammenlignet med dagens krav.
Elektrisk anlegg: Det bør gjennomføres en utvidet el-kontroll av en kvalifisert elektrofaglig personell etter NEK 405-2-3 eller tilsvarende, for å kartlegge anleggets faktiske tilstand og avklare eventuelt behov for tiltak. Eventuelle feil eller mangler på det elektriske anlegget kan medføre økt mulighet for brann- og støtfare.
Radon: Det mangler dokumentasjon av radontiltak i form av ferdigattest. Dette gir usikkerhet om krav til radontiltak er ivaretatt. Radon er en usynlig, luktfri og radioaktiv gass som dannes naturlig når radium i jorden brytes ned og som kan utgjøre helsefare. For mer om radon, se: https://dsa.no/radon/helserisiko
Skred- eller flomfare: Boligen ligger innenfor aktsomhetsområde for kvikkleireskred i henhold til NVE sitt aktsomhetskart for kvikkleireskred. Kvikkleire er en type leire som i sjeldne tilfeller kan bli ustabil hvis grunnen belastes eller graves i. At boligen ligger i et slikt område betyr at man bør være ekstra oppmerksom ved bygge- eller gravearbeider, og at slike tiltak ofte må vurderes nærmere. Les mer om dette på: https://www.nve.no/ Kart: https://temakart.nve.no/tema/kvikkleire
Tilstandsrapporten er inntatt i salgsoppgaven. Rapporten inneholder informasjon om eventuelle avvik og konsekvensen av disse. Dersom det er registrert avvik med TG3, har den bygningssakkyndige i tillegg gitt et anslag på hva det vil koste å utbedre disse. Ettersom kjøper regnes å være kjent med forhold som tydelig fremgår av tilstandsrapporten, oppfordres du til å sette deg grundig inn i rapporten i sin helhet.
Moderniseringer og påkostninger
Følgende moderniseringer er foretatt de senere år:
2009:
- Utskifting av vinduer
- Utskifting av terrassedør
Ukjent årstall:
- Oppgradert sikringsskap med jordfeilautomater
Standard
Dette er et rekkehus med en familievennlig planløsning og en sentral beliggenhet i barnevennlige omgivelser. Boligen strekker seg over tre plan og gir en unik mulighet til å skape et hjem tilpasset egne ønsker og behov. Eiendommen selges som et dødsbo og har et generelt behov for modernisering og oppgradering, noe som gir et godt utgangspunkt for den som vil sette sitt eget preg på alt fra overflater til tekniske installasjoner.
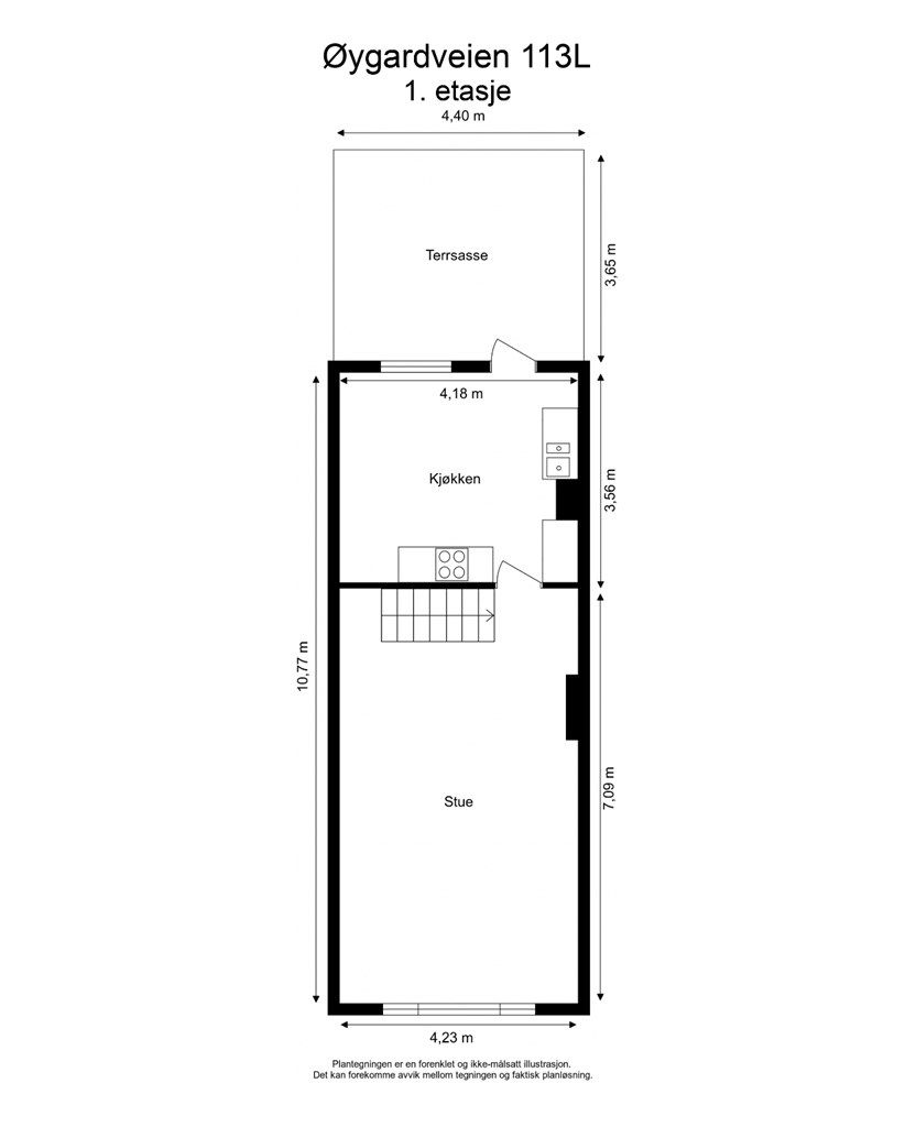
1. etasje
Stue:
Hovedetasjen har en stue med heltre gulv og plass til en romslig sofagruppe. Rommet har en åpen forbindelse mot kjøkkenet, og en trapp leder opp til andre etasje.
Kjøkken:
Kjøkkenet er et eget rom med plass til spisebord. Innredningen er av eldre dato og har et oppgraderingsbehov. Fra kjøkkenet er det direkte utgang til en østvendt terrasse.
Terrasse:
Terrassen på ca. 16 m² vender mot øst. Uteplassen har vedlikeholdsbehov.
2. etasje
Gang:
En gang forbinder rommene i andre etasje. Herfra er det tilgang til tre soverom og et bad. Takhøyden strekker seg opp til mønet og gir en luftig overgang mellom rommene.
Soverom:
Boligen har tre soverom i denne etasjen, alle med heltre gulv. Rommene varierer i størrelse og har skråtak som gir karakter. To av rommene ligger ved siden av hverandre, mens det tredje ligger for seg selv.
Omkledningsrom:
I tilknytning til to av soverommene er det et praktisk omkledningsrom som gir ekstra lagringsplass.
Bad:
Badet i andre etasje er utstyrt med badekar, servant i innredning og toalett. Rommet er av eldre dato og har et oppgraderingsbehov.
Underetasje
Innredet enhet:
Underetasjen er innredet med egen entré, stue, kjøkken og bad. Etasjen gir fleksible bruksmuligheter, men har et gjennomgående moderniseringsbehov. Det er viktig å merke seg at romhøyden i hele etasjen er lavere enn dagens forskriftskrav for varig opphold.
Bad (underetasje):
Badet i underetasjen har dusj på gulv, toalett, og servant. Rommet er av eldre dato og har et betydelig oppgraderingsbehov.
Overflater:
Gulv: Heltre i stue, ganger, soverom og omkledningsrom. Laminat i kjøkken i 1. etasje og stue i underetasje. Fliser på begge bad.
Vegger: Hovedsakelig panel, brystningspanel, malte overflater, glassfiberstrie og tapet. Fliser på bad i underetasje, og en kombinasjon av fliser og tapet på bad i 2. etasje.
Himling: Sparklede og malte overflater, himlingsplater og panel. Glassfiberstrie på bad i 2. etasje.
Lagring:
Bod i underetasje, samt hems ved gangen og over omkledningsrom i 2. etasje.
For fullstendig teknisk informasjon om boligen, se punktet Byggemåte i salgsoppgaven.
Løsøre og tilbehør
Kjøleskap, oppvaskmaskin og stekeovn medfølger salget.
Vi viser til liste fra Norges Eiendomsmeglerforbund som gjelder fra 01.01.2020 angående løsøre og tilbehør.
Oppvarming
Boligen har elektrisk oppvarming.
Dersom beboelsesrom ikke har vegg- eller fastmonterte varmekilder ved visning, følger dette heller ikke med.
Selger har avtalt Norgespris på strøm på eiendommen ut 2026, og denne er pt på 50 øre inkl mva. Nettleie, avgifter og påslag fra kraftleverandøren kommer i tillegg.
Denne avtalen vil følge eiendommen i den avtalte perioden.
Les mer om Norgespris her: https://www.regjeringen.no/no/aktuelt/legg-fram-lov-om-norgespris-pa-straum-og-fjernvarme/id3102642/
Ferdigattest/brukstillatelse
Boligen er oppført i 1962. Det foreligger ferdigattest på eiendommen datert 02.02.1962, som gjelder våningshus (12-mannsbolig). Denne kan fås ved henvendelse til megler.
Det foreligger godkjente og byggemeldte tegninger datert 26.08.1959. Det er avvik mellom godkjente byggetegninger og dagens planløsning.
Underetasjen er i dag innredet med stue, gang, trappegang og kjøkken i rom som opprinnelig er byggemeldt som hobbyrom. I tillegg er det teknisk-rom og deler av bad beliggende i rom opprinnelig byggemeldt som tilfluktsrom. Dette er ikke godkjent til varig opphold. Innredning av rommene til bruk for varig opphold er ikke bruksendret/omsøkt og er heller ikke godkjent for denne bruk av kommunen. Konsekvensen ved søknad kan være at rommet ikke godkjennes som varig opphold og at rommet da må brukes som bod/midlertidig oppbevaring. Kjøper overtar alt ansvar, kostnad og risiko for dette videre.
Tinglyste heftelser og rettigheter
Eiendommen overdras fri for pengeheftelser med unntak av:
1960/300523-2/100 04.02.1960 FESTEKONTRAKT - VILKÅR
Dette er hovedfestekontrakten mellom Firma Selvaaghus A/S (fremfester) og Nadderudskogen Boliglag (fester) for gnr. 19, bnr. 572. Festetiden er 50 år. Festeavgiften er kr. 1.250,- pr. mål pr. år, med regulering hvert 5. år basert på engrosprisindeksen. Arealet kan kun benyttes til boligbebyggelse. Tidligere eiere har rett til å benytte veianlegg, vann- og kloakkledninger på eiendommen for utnyttelse av sin gjenværende eiendom.
1969/309442-2/100 23.12.1969 FESTEKONTRAKT - VILKÅR
Dette er en fremfestekontrakt mellom A/L Nadderudskogen Huseierlag (fremfester) og den enkelte fester for tomt nr. 11 (Øygardveien 113 L). Den årlige festeavgiften er kr. 420,-. Betingelsene fra hovedfestekontrakten av 2. juli 1958 gjelder, inkludert 50 års festetid og regulering av avgiften. Festeren plikter å være medlem av A/L Nadderudskogen Huseierlag og er bundet av lagets vedtekter. Overdragelse av festeretten krever godkjenning fra huseierlagets styre.
Kommunen har legalpant i eiendommen for forfalte krav på eiendomsskatt og kommunale avgifter/gebyrer.
Servituttene vil følge eiendommen. Kjøpers bank vil få prioritet etter ovennevnte heftelser og servitutter.
Eventuell adgang til utleie
Eiendommen har ikke separat utleieenhet. Det vil normalt være anledning til utleie av hele eiendommen eller enkeltrom, såfremt utleiearealet er bygningsmessig godkjent for varig opphold og har forsvarlige radonnivåer.
Den del av boligen som er innredet som utleiedel er ikke godkjent til varig opphold eller som separat boenhet av kommunen. Konsekvensen ved søknad kan være at rommet ikke godkjennes for varig opphold. Kjøper overtar alt ansvar og risiko for dette. Det gjøres oppmerksom på at det er krav til forsvarlige radonnivåer ved utleie.
Diverse
Eiendommen inngår i et dødsbo hvor arvingene er selgere. Arvingene har ikke bebodd eiendommen og kjennskapen til eiendommens tilstand kan være mangelfull. Kjøper må derfor kunne påregne at det kan være flere feil og mangler som normalt oppdages ved bruk av boligen, men som selger av dødsbo ikke har mulighet å vite.
Beliggenhet og tomteforhold
Beliggenhet og tomteforhold
Beliggenhet
Rekkehuset har en sentral og attraktiv beliggenhet på Nadderudjordet. Her bor du i et rolig og veletablert boligområde, samtidig som du har umiddelbar nærhet til alt du trenger i hverdagen. De daglige innkjøpene gjør du enkelt på Rema 1000, som ligger kun et par minutters gange unna. For et bredere utvalg av butikker og tjenester er det en kort kjøretur til både Østerås Senter og Bekkestua Senter.
Området er svært familievennlig med et solid tilbud av barnehager og skoler i gangavstand. Blant annet ligger Nadderudskogen barnehage, Bekkestua barneskole og Bekkestua ungdomsskole alle innenfor en kort spasertur. For de sportsinteresserte er det også kort vei til Bekkestua idrettsanlegg og Rytterfaret balløkke, noe som gir gode muligheter for fritidsaktiviteter for både store og små. Nabolaget er trygt og preget av et godt naboskap.
Kollektivtilbudet er utmerket, med busstoppet Nadderudjordet kun et par minutter fra døren. Herfra går det hyppige avganger som enkelt tar deg videre i Bærum eller inn mot Oslo. For T-bane er Bekkestua stasjon nærmeste knutepunkt. Beliggenheten kombinerer en tilbaketrukket og fredelig atmosfære med enkel tilgang til byens fasiliteter, noe som skaper en svært praktisk og behagelig ramme for hverdagen.
Adkomst
Det vil bli skiltet med Krogsveen visningsskilt ved fellesvisninger.
Barnehager, skoler og fritid
Barnehager:
- Nadderudskogen barnehage.
- Bekkestua barnehage Kanvas
- Huskestua barnehage.
- Balder barnehage.
Barneskoler:
- Bekkestua barneskole.
- Hosle skole.
- Haslum skole.
Ungdomsskoler:
- Norges Toppidrettsgymnas Ungdomsskole
- Bekkestua skole.
Dersom skole- og barnehagetilbud er av betydning for kjøpet, ber vi om at det rettes en særskilt henvendelse til kommunen/bydelsadministrasjonen for oppdatert informasjon.
Beskrivelse av tomt
Festetomt på 37 298 kvm.
Tomten er opparbeidet med steinlagt dekke ved inngangspartiet.
Eiendommen er en framfestet tomt hvor A/L Nadderudskogen Huseierlag er fester av hovedkontrakten, og Stiftelsen Karibu er grunneier.
Den årlige festeavgiften for denne tomten er kr 420,-.
Festeavgiften kan reguleres hvert 5. år.
Festetiden er 50 år fra desember 1969.
Kjøper plikter å være medlem av A/L Nadderudskogen Huseierlag, og overdragelse krever godkjenning fra huseierlagets styre.
Oppgitt tomteareal er hentet fra digitalt eiendomskart fra Bærum kommune. Oppgitt/anslått areal kan derfor avvike fra nøyaktig areal.
Parkering
Huseierlaget har nylig bygget parkeringshus der det også er anledning til å sette opp ladeboks. Det medfølger ikke garasjeplass, men styret opplyser om at det er 2 garasjeplasser til salgs per nå. Kontakt styret ved interesse.
Vei, vann og avløp
Eiendommen er tilknyttet kommunalt ledningsnett via private stikkledninger. Aksjelaget er ansvarlig for private stikkledninger til bygningen.
Regulerings-og arealplaner
Eiendommen er regulert til blokkbebyggelse i henhold til reguleringsplan NADDERUD, nordre del (ID: 1953003), datert 03.01.1959, med tilhørende reguleringsbestemmelser.
Eiendommen omfattes av KOMMUNEPLANENS AREALDEL 2022-2042 (ID: 202101), vedtatt 21.06.2023. Arealbruken er i planen avsatt til boligbebyggelse. Kommuneplanen presiserer at eldre reguleringsplaner, som planen for denne eiendommen, fortsatt er gjeldende så lenge de ikke er i strid med kommuneplanen.
Det er per d.d. ingen kjente plan- eller byggesaker med direkte innvirkning på eiendommen.
Utsnitt av plan med tilhørende bestemmelser kan fås ved henvendelse til megler.
Økonomi
Økonomi
Kommunale utgifter
Fellesutgiftene er kr 4039,- pr. mnd. og inkluderer: kommunale avgifter, forsikring, forretningsførsel, drift- og vedlikehold, festeavgift og kabel-tv/bredbånd. Felleskostnadene skal økes med 5% fra 01.07.2026.
Selger har ikke bebodd eiendommen og har således ikke kjennskap til øvrige løpende utgifter for eiendommen.
Formuesverdi
Formuesverdi for 2024 var kr 2 149 912,- ifølge selgers skattemelding. Beløpet forutsetter at eier bor fast i boligen (primærbolig).
Ved eventuell øvrig bruk av eiendommen (f.eks. fritidsbolig, pendlerbolig, utleieobjekt) var formuesverdien for 2024 kr 8 599 649,-.
Fra 2026 har Stortinget vedtatt en oppdatert modell for beregning av formuesverdi for primærbolig, så avvik kan forekomme.
For mer informasjon se skatteetaten.no
Eiendomsskatt
Det er p.t ikke vedtatt eiendomsskatt for eiendommer i kommunen.
Omkostninger
6 900 000,00 Prisantydning
Omkostninger
172 500,00 Dokumentavgift til staten (2,5% av kjøpesum)
19 900,00 Gjensidige Boligkjøperpakke* (valgfritt)
545,00 Tinglysing panterettsdokument
545,00 Tinglysing skjøte
--------------------------------------------------------
173 590,00 (Omkostninger totalt (uten Gjensidige Boligkjøperpakke))
193 490,00 Omkostninger totalt (med Gjensidige Boligkjøperpakke))
--------------------------------------------------------
7 073 590,00 Totalpris inkl. omkostninger
7 093 490,00 Totalpris inkl. omkostninger (med Gjensidige Boligkjøperpakke)
--------------------------------------------------------
Tilbud om lånefinansiering
Megler formidler gjerne kontakt med rådgiver hos vår samarbeidspartner BN Bank. De har konkurransedyktige betingelser samt rask og løsningsorientert behandling av din lånesøknad. Krogsveen mottar et honorar dersom lån opprettes.
Betalingsbetingelser
Kjøpesum inkludert omkostninger, samt pantedokument tilknyttet eventuelt lån, skal være disponibelt hos megler 2 virkedager før overtagelsen.
Annen viktig informasjon
Annen viktig informasjon
Eier
Martin Gudem Ringdalen og Hilde Gudem
Overtakelse
Etter nærmere avtale. Boligen er rengjort før visning og vil ikke bli ytterligere vasket før overtakelse.
Velforening
Rekkehuset er tilknyttet A/L Nadderudskogen Huseierlag som består av 114 boliger. Hver eier fester en parsell av huseierlaget og eier en bolig på denne parsellen. Hver fester er i henhold til festekontrakten pliktig til å være medlem av huseierlaget og er bundet av lagets vedtekter.
Fremleie skal meddeles styret. Huseier står fortsatt ansvarlig for de økonomiske forpliktelser og for at vedtekter følges for huset.
Fellesarealet kan ikke reserveres for noen enkelt huseier, eller deles opp med gjerder og lignende. Det skal være fri adkomst rundt hele husrekken.
Alle bygningsmessige arbeider som krever tillatelse etter plan- og bygningsloven, skal godkjennes av styret. Det samme gjelder arbeider som ikke krever tillatelse, men som kan berøre øvrige beboere.
Huseierlaget har egen hjemmeside:
http://nadderudskogen.no/
Dugnad må påberegnes.
Huseierforeningen har egne vedtekter og husordensregler som ny kjøper må sette seg inn i.
Den enkelte huseier er ansvarlig for alt vedlikehold av sin enhet, både utvendig og innvendig. Huseierlaget er ansvarlig for reparasjon og utskiftning av felles bygningsdeler og infrastruktur som tak, takrenner, nedløp, grunnmur (ikke puss og maling), drenering, hovedledninger for vann og avløp, felles stoppekraner, piper, felles elektriske anlegg, gjerder og gangveier.
I henhold til andelslagets vedtekter må kjøper godkjennes av styret som ny andelseier. Det er kjøpers ansvar at styregodkjenning blir gitt, men styret kan ikke nekte godkjenning uten saklig grunn. Overdragelse er betinget av at utestående plikter til laget er betalt. Iht. burettslagslova kan man bare eie en andel i borettslaget. Kun fysiske personer kan være andelseiere.
For å dekke eventuell manglende innbetaling av felleskostnader har laget panterett i hus og festerett.
Boligselgerforsikring
Det gjøres oppmerksom på at selger ikke har tegnet boligselgerforsikring som dekker selgers ansvar etter avhendingsloven. Likevel foreligger selgers egenerklæring og godkjent tilstandsrapport som interessenter må sette seg inn i før bud inngis. Eventuelle reklamasjoner må rettes direkte til selger.
Boligkjøperforsikring
Innen kontraktsmøtet må kjøper ta stilling til om det ønskes å bestille Boligkjøperpakken gjennom Gjensidige. I denne gunstige pakken er boligen ferdig forsikret og inkluderer rettshjelpsforsikring, også kalt Boligkjøperforsikring. Rettshjelpsforsikring gir trygghet og tilgang på profesjonell juridisk hjelp dersom det oppdages uventede feil eller mangler det første året etter overtagelse. Forsikringsselskapet behandler i så fall ethvert mangelskrav kjøper måtte ha overfor selger.
Boligkjøperpakken inkluderer bygningsforsikring for hus og hytte, innboforsikring, flytteforsikring og dobbel rentedekning - i situasjoner hvor kjøper ikke får solgt nåværende primærbolig.
Kjøper mottar ingen særskilt faktura for Boligkjøperpakken da kostnaden det første året legges til kjøpesummen for boligen. Det gjøres oppmerksom på Krogsveen mottar et honorar for denne formidlingen.
Produktark for Boligkjøperpakken ligger vedlagt i salgsoppgaven.
Dersom ikke boligkjøperpakke ønskes kan kun rettshjelpsforsikring, også kalt boligkjøperforsikring, tegnes særskilt via megler. Rettshjelpsforsikringen varer i 5 år fra overtagelse og leveres gjennom Gjensidige. Ta kontakt med megler for ytterligere informasjon.
Selskap og privatpersoner som driver med kjøp/salg/utvikling som ledd i egen næringsvirksomhet kan ikke tegne boligkjøperpakke eller rettshjelpsforsikring.
Budgivning
Forbrukerinformasjon om budgivning er vedlagt denne salgsoppgaven og er også på vår hjemmeside Krogsveen.no. Alle bud og budforhøyelser må inngis skriftlig. I tillegg må legitimasjon være fremlagt sammen med signatur fra budgiver.
Vi oppfordrer til å gi bud elektronisk via GI BUD-knappen på eiendommens hjemmeside på Krogsveen.no. Da vil samtlige vilkår bli oppfylt.
Eventuelle forhøyelser eller endringer av budet kan bekreftes pr SMS eller på e-post. Vi oppfordrer alltid til å kontakte megler pr. telefon i tillegg da forsinkelser i SMS og e-post kan forekomme.
For at budene skal kunne bli behandlet og videreformidlet skriftlig til alle involverte parter, må alle bud ha en tilstrekkelig lang akseptfrist, jf. eiendomsmeglingsforskriften § 6-3.
Selger må også skriftlig akseptere budet før aksept kan formidles til budgiver. Akseptfrist bør derfor være på minimum 30 minutter, og budforhøyelser må derfor skje i god tid før fristens utløp.
Bud i forbrukerforhold kan uansett ikke settes med kortere frist enn kl. 12.00 første virkedag etter siste annonserte visning. I tillegg kan ikke budet ha forbehold om at det skal holdes hemmelig ovenfor øvrige interessenter. Megler har iht lov om eiendomsmegling ikke anledning til å videreformidle disse budene, og de vil dermed heller ikke bli journalført.
Etter at eiendommen er solgt vil kjøper og selger få tilsendt budjournal. Øvrige budgivere kan få utlevert kopi av budjournalen i anonymisert form.
Hvitvaskingsreglene
I henhold til lov om hvitvasking og terrorfinansiering har megler plikt til å gjennomføre kontrolltiltak overfor kunder, herunder fullmektiger. Dette innebærer bl.a. å bekrefte kunders og reelle rettighetshaveres identitet på bakgrunn av fremvist gyldig legitimasjon eller på annen godkjent måte, samt å innhente opplysninger om kundeforholdets formål og tilsiktede art.
Dersom slike kundetiltak ikke kan gjennomføres, kan megler ikke etablere kundeforholdet eller utføre transaksjonen.
Hvis kjøper ikke bidrar til gjennomføring av kundekontrollen og dette fører til at transaksjonen blir forsinket eller ikke kan gjennomføres, vil dette ansees som mislighold av avtalen og gi selger rettigheter etter avhendingslova kapittel 5. I tilfeller der selger ikke bidrar til gjennomføring av løpende kundekontroll underveis i oppdraget, er det selger som misligholder sine forpliktelser etter avtalen og gi kjøper rettigheter etter avhendingslovens kapittel 4. Partene er selv ansvarlige for eventuelle kostnader og ansvar dette kan medføre. Eiendomsmegleren eller eiendomsmeglingsforetaket kan ikke holdes ansvarlig for de konsekvenser dette vil kunne få for partene eller andre som har interesser i eiendomshandelen.
Kjøper oppfordres til å innbetale kjøpesummen som ikke kommer fra låneinstitusjon i én samlet innbetaling fra egen konto i norsk bank. Megler har plikt til å melde fra til Økokrim om eiendomshandler som fremstår som mistenkelige. Melding sendes Økokrim uten at partene varsles.
Personopplysningsloven
I henhold til personopplysningsloven gjør vi oppmerksom på at interessenter kan bli registrert for videre oppfølging.
Lovanvendelse
Generelle bestemmelser
Salgsoppgaven er basert på de opplysningene selger har gitt til megler, den bygningssakyndiges tilstandsrapport, samt opplysninger innhentet fra kommunen, Kartverket og andre tilgjengelige kilder. Det er viktig at kjøper setter seg grundig inn i alle salgsdokumentene, herunder salgsoppgave, tilstandsrapport og selgers egenerklæring. Kjøper anses kjent med forhold som er tydelig beskrevet i salgsdokumentene, og slike forhold kan ikke påberopes som mangler. Dette gjelder uavhengig av om kjøper har lest dokumentene. Alle interessenter oppfordres til å undersøke eiendommen nøye, gjerne sammen med fagkyndig før bud inngis. Kjøper som velger å kjøpe usett kan ikke gjøre gjeldende som mangel noe han burde blitt kjent med ved undersøkelsen.
Dersom det er behov for avklaringer, anbefaler vi at interessenter rådfører seg med eiendomsmegler eller egne rådgivere før det legges inn bud.
En bolig som har blitt brukt i en viss tid, har vanligvis blitt utsatt for slitasje og skader kan ha oppstått. Slik bruksslitasje må kjøper regne med, og det kan avdekkes enkelte forhold etter overtakelse som nødvendiggjør utbedringer. Normal slitasje og skader som nødvendiggjør utbedring, er innenfor hva kjøper må forvente og vil ikke utgjøre en mangel.
Kjøper og selgers rettigheter og plikter reguleres av avtalen mellom partene, samt informasjonen som har vært tilgjengelig for kjøperen i forbindelse med handelen. Avtalen utfylles av avhendingsloven, og det gjelder ulike avtalevilkår avhengig av om kjøper er forbrukerkjøper eller ikke. Dette er nærmere beskrevet nedenfor.
På grunn av ulike avtalevilkår kan selger vurdere bud fra en som ikke er forbruker, ulikt fra en forbrukers bud. Dersom kjøper ikke er forbruker, er selger sitt mulige mangelsansvar begrenset fordi eiendommen selges "som den er". Selger kan ikke ta «som den er»- forbehold overfor en forbrukerkjøper. Selv et lavere bud fra en som ikke er forbruker kan foretrekkes fordi begrensningen i mulig mangelsansvar kan ha egenverdi for selger. Selger står fritt til å forkaste eller akseptere ethvert bud, og er for eksempel ikke forpliktet til å akseptere høyeste bud.
Budgiver skal i budskjema avgi egenerklæring om budgiver er forbruker eller næringsdrivende/ person som hovedsakelig handler som ledd i næringsvirksomhet. Budgivere får informasjon dersom andre bud er inngitt av en som ikke er forbruker.
Forbrukerkjøp - definisjon
Med forbrukerkjøp menes kjøp av eiendom når kjøperen er en fysisk person som ikke hovedsakelig handler som ledd i næringsvirksomhet.
Forbruker – avtalevilkår
Eiendommen har en mangel dersom den ikke er i samsvar med kravene som følger av avtalen, eller det foreligger brudd på bestemmelsene i avhendingsloven §§ 3-2 til 3-8. Hvis eiendommen ikke er i samsvar med det kjøperen må kunne forvente ut ifra alder, type og synlig tilstand, kan det være grunnlag for mangelskrav. Det samme gjelder hvis det er holdt tilbake eller gitt uriktige opplysninger om eiendommen. Dette gjelder likevel bare dersom man kan gå ut ifra at det virket inn på avtalen at opplysningen ikke ble gitt eller at mangelskravet ikke blir rettet i tide på en tydelig måte.
Boligen kan ha en mangel etter avhendingsloven § 3-3 andre ledd, dersom det er avvik mellom opplyst og faktisk innvendig areal, forutsatt at avviket er på 2% eller mer og minimum 1 kvm.
Ved beregning av et eventuelt prisavslag eller erstatning må kjøper selv dekke tap/kostnader opptil et beløp på kr 10 000 (egenandel).
Ikke-forbruker (næringsdrivende) – definisjon
Hvis kjøper er en juridisk person, eller en fysisk person som hovedsakelig handler som ledd i næringsvirksomhet, vil kjøpet ikke anses som et forbrukerkjøp.
Ikke-forbruker – avtalevilkår
Eiendommen har en mangel dersom den ikke er i samsvar med kravene som følger av avtalen.
Eiendommen selges «som den er», og selgers ansvar utover det konkret avtalte er da begrenset etter avhendingsloven § 3-9, første ledd andre setning.
Avhendingsloven § 3-3 andre ledd fravikes, og hvorvidt boligens arealsvikt utgjør en mangel vurderes etter avhendingsloven § 3-8.
Informasjon om kjøpers undersøkelsesplikt, herunder oppfordringen om å undersøke eiendommen nøye, gjelder også for kjøpere som ikke anses som forbrukere.
Det forutsettes at hjemmel overføres til kjøper. Hvis kjøper ikke ønsker hjemmelsoverføring av eiendommen, må det tas forbehold om dette i budet.
Meglers vederlag
Meglers vederlag betales av selger og er avtalt til:
Provisjon: 50 000,-
Vederlag:
Foto Rekkehus kr 6 500,00
Kontroll av hjemmel og heftelser kr 3 900,00
Markedsføringspakke kr 25 000,00
Oppgjør kr 8 900,00
Tilrettelegging kr 15 000,00
Visninger kr 2 900,- pr stk. utover 2 inkluderte visninger.
Utlegg:
Innhenting av informasjon forretningsfører Akerhus Økonomi AS inkl. eierskiftegebyr kr 2 500,00
Innhenting av offentlig opplysninger Bærum kommune kr 4 426,00
Tinglysing sikring kr 545,00
Andre utgifter:
Boligselgerforsikring Gjensidige Eiet - regnes av prisantydning kr 39 970,00
Tilstandsrapport Rekkehus u/150 kvm inkl. plantegninger kr 14 000,00
Opplysninger om oppdraget
Oppdragsnummer 10-0040/26
Eiendomsmegler Krogsveen AS, avd. Bærum
Gml. Ringeriksvei 40, 1357, BEKKESTUA
950 007 613
Oppdragets KR-kode KR10.2640
Dato
Sist oppdatert: 19. april 2026 kl. 20:21
Dokumenter
Dokumenter
PDF – 949 KB
PDF – 11 MB
PDF – 167 KB
PDF – 312 KB
PDF – 29 KB
PDF – 127 KB
PDF – 392 KB
Område
Legg til steder som er viktige for deg
Visning
Unngå doble boligrenter
Vi tilbyr gunstig forsikring.
Vurderer du utleie?
Få et tilbud fra Utleie KrogsveenHva koster lånet?
Sjekk estimert lånekostnadVil du varsles om lignende boliger?
Ved å lagre ditt boligsøk hos oss får du beskjed når vi har en bolig som ligner denne, før den legges ut på markedet!

