Kolsåsstien 6
5 750 000 kr
104 m²
3 soverom
Solgt
Kolsås
Romslig 4-roms toppleilighet over 2 plan med rekkehusfølelse| Meget sentralt| Garasje m/lader| Kort avstand til t-bane!
Prisantydning
5 750 000 krAndel fellesgjeld
406 669 krOmkostninger
11 040 krTotalpris
6 167 709 kr
Pris
Bruksareal
108 m²BRA-I (internt bruksareal)
104 m²BRA-E (eksternt bruksareal)
4 m²TBA (terrasse-balkongareal)
13 m²
Areal
Etasje
2Byggeår
1978Soverom
3 soveromBad
1 badType
AndelsleilighetEierform
AndelFasiliteter
Garasje/P-plass og Balkong/TerrasseFellesutgifter
7 980 kr
Nøkkelinfo
Unngå doble boligrenter
Vi tilbyr gunstig forsikring.
Vurderer du utleie?
Få et tilbud fra Utleie KrogsveenHva koster lånet?
Sjekk estimert lånekostnadBeskrivelse
Kort om eiendommen
Velkommen til Kolsåsstien 6, en spennende duplex toppleilighet med rekkehusfølelse. Leiligheten ligger i et rolig og barnevennlig område med umiddelbar nærhet til Kolsås T-bane, bussforbindelse, butikker og turområder. Her bor dere med alt dere trenger rett utenfor døren, perfekt for en enklere hverdag.
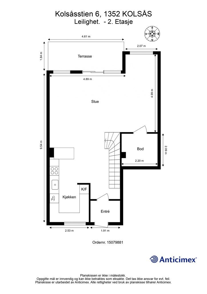
Leiligheten går over 2 plan og har en flott planløsning bestående av entré, stue med åpent kjøkken, spisestue og bod i hovedetasjen, og soveromsavdeling med tre soverom og bad i øverste etasje. Leiligheten har flotte uteplasser med både terrasse og balkong - begge sydvendte med gode solforhold og utsikt. Leiligheten har også en praktisk bod i kjelleretasjen, samt garasjeplass med elbil-lader. Dette er en sjelden mulighet til å skaffe seg en av de største leilighetene i borettslaget
Område
Legg til steder som er viktige for deg
På flyttefot? Tenk kjøp og salg samtidig.
Få din egen rådgiver gjennom hele kjøps- og salgsprosessen. Det starter med en verdivurdering.
Unngå doble boligrenter
Vi tilbyr gunstig forsikring.
Vurderer du utleie?
Få et tilbud fra Utleie KrogsveenHva koster lånet?
Sjekk estimert lånekostnadVil du varsles om lignende boliger?
Ved å lagre ditt boligsøk hos oss får du beskjed når vi har en bolig som ligner denne, før den legges ut på markedet!









































