Åkerveien 27A
4 690 000 kr
159 m²
3 soverom
Komplett salgsoppgave

Åssiden
Pent og utvidet enderekkehus med 3 etasjer. 2 bad og wc. Solrike vestvendte uteplasser. Garasje i rekke.
Prisantydning
4 690 000 krOmkostninger
138 240 krTotalpris
4 828 240 kr
Pris
Bruksareal
194 m²BRA-I (internt bruksareal)
159 m²BRA-E (eksternt bruksareal)
14 m²TBA (terrasse-balkongareal)
40 m²
Areal
Etasje
3Byggeår
1958Soverom
3 soveromBad
2 badTomteareal
265 m² (eiet)Type
RekkehusEierform
EietFasiliteter
Garasje/P-plass og Balkong/TerrasseEnergimerke
Oransje F
Nøkkelinfo
Unngå doble boligrenter
Vi tilbyr gunstig forsikring.
Vurderer du utleie?
Få et tilbud fra Utleie KrogsveenHva koster lånet?
Sjekk estimert lånekostnadBeskrivelse
Kort om eiendommen
Innhold og byggemåte
Innhold og byggemåte
Eiendommen
Åkerveien 27A, 3024 DRAMMEN
Kommunenummer 3301, gårdsnummer 116, bruksnummer 1829
Kommunenummer 3301, gårdsnummer 116, bruksnummer 699, ideell andel 1/4
Innhold
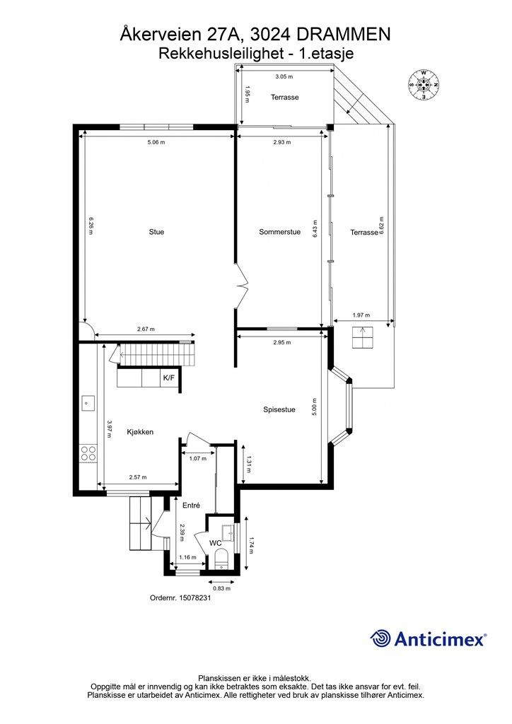
Totalt bruksareal BRA: 194 kvm
BRA-i:
Kjeller 37 kvm: To boder, kjellerstue, vaskerom og bad.
1. etasje 80 kvm: Entré, toalettrom, spisestue, kjøkken og stue.
2. etasje 42 kvm: Gang, bad og tre soverom.
BRA-e:
Garasje 14 kvm: Garasje.
BRA-b:
1. etasje 21 kvm: Innglasset sommerstue/vinterhage.
Terrasse- og balkongareal (TBA):
1. etasje 23 kvm: Terrasse.
2. etasje 17 kvm: Takterrasse.
Loftetasje er ikke arealberegnet da det ikke er fysisk skille mot naboleilighet.
Rom som avviker fra godkjente byggetegninger ifbm. rom for varig opphold: Kjellerstue i kjeller. Se mer informasjon under punktet ferdigattest.
De oppgitte arealer er hentet fra rapport med befaringsdato 13.01.2026 utført av Anticimex AS v/Bent Gunnerud. Arealene er beregnet og rom er definert etter dagens faktiske bruk, uavhengig av hva som er godkjent av bygningsmyndighetene.
Byggemåte
Selger har fått utarbeidet en tilstandsrapport, dvs. en teknisk gjennomgang av boligen hvor eventuelle avvik, risiko for kjøper og prisoverslag for hva som bør gjøres av oppgradering, er skissert. Se særskilt TGIU (tilstandsgrad ikke undersøkt), samt TG2 og TG3 som viser hva som er boligens normale slitasje, alder og type, eller som bør/må utbedres. Rapporten og selgers egenerklæring er en del av salgsoppgaven og må leses nøye før bud inngis. Kjøper overtar ansvaret for de opplysninger som fremkommer av salgsdokumentasjonen, og kan ikke gjøre gjeldende som mangel noe som burde vært kjent eller som ikke kan anses å ha betydning for avtalen.
Bygningen er iht. tilstandsrapport en rekkehusleilighet over tre etasjer, oppført i 1958 med tilbygg fra 1972, 1987 og 2015. Boligen er oppført med grunnmur av lettklinkerblokker og mur-/betongkonstruksjon, etasjeskillere av trekonstruksjoner og yttervegger i trekonstruksjon med utvendig stående trekledning. Hovedtaket har saltaksform, er en trekonstruksjon tekket med takstein, mens tak over inngangspartiet er tekket med shingel og tilbygg med takpapp. Vinduene har karmer og rammer av tre med to- og tre-lags glass fra ulike årstall, hvor karnappvinduet i 1. etasje ble byttet i 2023/24. Ytterdøren er fra ukjent årstall, og terrasse-/balkongdører er i tre med to- og tre-lags glass, hvorav døren i 2. etasje er fra 2015.
Det gjøres spesielt oppmerksom på at følgende bygningsdeler er gitt Tilstandsgrad 3 (TG3) — Store eller alvorlige avvik:
- Bad i kjeller: Hele våtrommet er gitt TG3 på grunn av generell tilstand. Det er registrert avvik som ufagmessig utførelse på gulvbelegg og våtromsplater, hull i belegg og plater, manglende ventilasjon og utilstrekkelig fall mot sluk. I tillegg er det misfarging i fuger, og sluket er ikke tilgjengelig. Rommet tilfredsstiller ikke kravene til våtrom og lekkasjesikkerhet, og tiltak må påregnes.
I tillegg er 27 bygningsdeler gitt TG2.
Følgende er nevnt vedr. brannskillende konstruksjoner i tilstandsrapporten: Det er avdekket forhold som tyder på at deler av boligen ikke ser ut til å være delt opp med brannskillende konstruksjoner etter kravene i dagens byggtekniske forskrift. Det er registrert brannskille på loft mot naboleilighet. Det anbefales derfor å gjennomføre en utvidet brannteknisk kontroll av en kvalifisert fagkyndig person.
Ovennevnte er kun et utdrag fra rapporten. Se supplerende tekst i tilstandsrapporten for mer informasjon. For øvrige tilstandsgrader og tilstandsgrader grunnet høy alder og evt. slitasje, så henvises det til rapporten. Kjøper overtar ansvar og risiko for dette.
Standard
Løsøre og tilbehør
Integrerte hvitevarer på kjøkkenet medfølger i handelen, dette gjelder kjøle-/fryseskap, mikrobølgeovn, stekeovn, oppvaskmaskin og platetopp.
Videre vises det til liste fra Norges Eiendomsmeglerforbund angående løsøre og tilbehør. Produkter og installasjoner som medfølger overdras uten noen form for garantier, utover eventuell gjenværende leverandørgaranti.
Oppvarming
Boligen har elektrisk oppvarming og vedfyring. Det er gulvvarme på bad (2. etasje), wc-rom, entré samt kjøkken og et ildsted i stuen.
Det har blitt foretatt en kontroll av pipe og ildsted i 2025, utført av Drammensregionens brannvesen IKS og alt er funnet i orden.
Siste feiing ble utført den 25.11.2024, feieren hadde følgende merknader: Deler røyk løp. Middels med sot.
Dersom beboelsesrom ikke har vegg- eller fastmonterte varmekilder ved visning følger dette heller ikke med.
Ferdigattest/brukstillatelse
Det foreligger ikke midlertidig brukstillatelse eller ferdigattest for oppføring av boligen i kommunens arkiver. Det ble gitt byggetillatelse for oppføring av boligen datert 03.01.1957 med godkjente byggetegninger datert 29.01.1957. Eiendommen ble ifølge kommunen først registrert tatt i bruk 01.01.1958.
Det er søkt om og godkjent påbygging av bygningene i 1971/1972 med godkjente byggetegninger datert 19.04.1972. Tiltaket omfattet utvidelse av stue i 1. etasje og etablering av balkong i 2. etasje over ovennevnte tilbygg (takterrasse på plantegning). Tiltaket ble ikke ferdigstilt med ferdigattest.
Det er søkt om og godkjent fasadeendring av bygningene i 1982 med godkjente byggetegninger datert 01.04.1982. Tiltaket omfattet endring/tilbygg av inngangsparti i 1. etasje. Tiltaket ble ikke ferdigstilt med ferdigattest.
Det er søkt om og godkjent utskifting/utvidelse av veranda samt tilbygg med byggetillatelse fra 1986 samt godkjente byggetegninger datert 05.06.1986 og 08.09.1986. Tiltaket omfattet tilbygg med spisestue i 1. etasje og oppføring av veranda i 1. etasje. Tiltaket ble ikke ferdigstilt med ferdigattest.
Det gjøres oppmerksom på at det ikke lenger utstedes ferdigattest på tiltak det er søkt om før 1998 jf. plan- og bygningsloven § 21-10. Kommunen vil ikke kreve ferdigattest for disse tiltakene og vil avvise eventuelle søknader. Bestemmelsen innebærer ikke at tiltak med manglende søknad blir lovlige, men at man ikke trenger å avslutte gamle byggesaker. Normalt sett kreves ferdigattest for alle søknadspliktige tiltak som gjøres etter plan- og bygningsloven.
Det er utstedt ferdigattest for rehabilitering av røykkanal/pipe datert 07.02.2006.
Kjellerstue er opprinnelig byggemeldt som hobbyrom/lager jf. Godkjente byggetegninger datert 29.01.1957. Innredning av rommet til bruk for varig opphold er ikke bruksendret/omsøkt og er heller ikke godkjent av kommunen. Takstmann anfører at rommet ikke har vindu mot det fri (oppfyller ikke krav til dagslys) og kjelleren har for lav takhøyde. Konsekvensen ved søknad kan være at rommet ikke godkjennes som varig opphold og at rommet da må brukes/tilbakeføres til opprinnelig godkjent formål. Kjøper overtar alt ansvar og risiko for dette videre.
Opprinnelig godkjent veranda har blitt takoverbygget og innglasset i 2016. Megler anfører at det ikke foreligger dokumentasjon på søknad til kommunen vedrørende det utførte tiltaket. Kjøper overtar risiko og ansvaret for eventuelle pålegg fra kommunen samt kostnader forbundet med dette.
Kjøper overtar alt ansvar, kostnad og risiko for dette videre.
Tinglyste heftelser og rettigheter
Eiendommen overdras fri for pengeheftelser.
Eiendommen har en ideell andel på 1/4 av gnr. 116/bnr. 699 i realsameie med gnr. 116/bnr. 1829, 1830, 1831 og 1832. Dette innebærer felles eierskap og forvaltning av disse eiendommene. Det er tinglyst to servitutter på realsameiets eiendom, disse medfølger.
Det er tinglyst følgende servitutt på eiendommen:
Dagboknr. 4890, tinglyst 21.06.1984, Bestemmelse om ledninger og veirett:
Eierne av eiendommer utskilt fra gnr. 116/bnr. 699 har adgang til denne eiendommen for reparasjon og ettersyn av vann- og kloakkledninger m.v. De har også veirett over eiendommen til avkjørsel og garasjer, samt rett til nødvendig transport for vedlikehold av hus og hage. Eierne av de utskilte eiendommene bekoster selv reparasjoner av egne ledninger og deler kostnader for fellesledninger.
Servitutten vil følge eiendommen. Kjøpers bank vil få prioritet etter ovennevnte heftelser og servitutter.
Eventuell adgang til utleie
Eiendommen har ikke separat utleieenhet. Det vil normalt være anledning til utleie av hele eiendommen eller enkeltrom, såfremt utleiearealet er bygningsmessig godkjent for varig opphold og har forsvarlige radonnivåer.
Det er krav til forsvarlige radonnivåer ved utleie. Det ble målt for radon i ca. 2014/2015 i boligen, og målingene viste radonverdier innenfor angitt grenseverdi iflg. selger.
Radonnivået i et bygg kan endre seg over tid. DSA (Direktoratet for strålevern og atomsikkerhet) anbefaler at det utføres jevnlig radonmåling ved større ombygginger samt bruksendringer, tidligere utført tiltak mot radon (ca. hvert 5. år), bygninger under tiltaksgrense ved tidligere utført måling (ca. hvert 10 år) og boliger som ligger i et kjent radonutsatt område.
Energimerking
Komplett energiattest inkludert oppvarmingskarakter fås ved henvendelse til megler eller lastes ned fra www.krogsveen.no.
Beliggenhet og tomteforhold
Beliggenhet og tomteforhold
Beliggenhet
Velkommen til Åkerveien 27A, en adresse som plasserer deg i hjertet av et etablert og trygt boligområde på Åssiden. Her bor du i rolige omgivelser, samtidig som hverdagslogistikken er usedvanlig enkel. Med dagligvarebutikker som Coop Extra kun en kort spasertur unna, blir innkjøpene enkle. For barnefamilier er det et godt utvalg av barnehager og skoler i nærområdet, deriblant Åssiden skole og Kjøsterud skole, som begge ligger innenfor gangavstand.
Åssiden er et eldorado for deg som verdsetter en aktiv livsstil og nærhet til naturen. Nærhet til et omfattende nettverk av turstier og lysløype, som er perfekt for løpe- og gåturer året rundt. For de mer eventyrlystne byr Skimore Drammen på startpunktet for den spektakulære turen gjennom Kjøsterudjuvet, en unik naturopplevelse i en 1300 meter lang kløft. Om vinteren gir skisenteret og de preparerte løypene flotte muligheter for skiaktiviteter for hele familien.
Området kombinerer det beste fra to verdener – roen fra marka og nærheten til byens fasiliteter. Kollektivforbindelsene er svært gode, med busstoppet Elias Kræmmers vei kun et par minutters gange unna, noe som gjør reisen til Drammen sentrum eller andre bydeler rask og effektiv. For et bredere utvalg av butikker og servicetilbud er det kun en kort kjøretur til både Alti Gulskogen og Solberg Senter. Dette gir en fleksibel og bekvem hverdag for beboere i alle livsfaser.
Adkomst
Det vil bli skiltet med Krogsveen visningsskilt ved fellesvisninger. Se kart i nettannonse eller Google Maps for nærmere veibeskrivelse. Velkommen til visning!
Barnehager, skoler og fritid
Godt sammensatt tilbud av private og offentlige barnehager.
Barnehager: Dalegårdsveien barnehage (0,7 km), Åssiden barnehage (0,8 km), Solhagen Rudolf Steiner barnehage (0,8 km).
Skoler: Åssiden barneskole (0,8 km) og Kjøsterud ungdomsskole (0,8 km).
Drammen kommune har tre private barne- og ungdomsskoler, Drammen Realfagsskole Heltberg, Norlights Montessoriskole Drammen og Rosendal skole (Mjøndalen).
Det ligger flere videregående skoler i Drammen og Lier, samt Universitetet i Sørøst-Norge som har campus på Papirbredden i Drammen, for mer informasjon se www.usn.no.
Dersom skole- og barnehagetilbud er av betydning for kjøpet, ber vi om at det rettes en særskilt henvendelse til kommunen for oppdatert informasjon.
Beskrivelse av tomt
Eiet tomt på 265 m². Tomten er lett skrånende og pent opparbeidet med gruset gårdsplass, plenarealer og diverse beplantning.
Eiendommen eier en ideell andel på 1/4 av realsameiets eiendom gnr. 116 og bnr. 699, som består av hageområde, gårdsplass og garasjerekke. Andelen medfølger eiendommen. Det er en felles robotgressklipper til felles plenareal.
Terrassedel (langsiden) er opparbeidet på realsameiets eiendom, se kartutsnitt for tomtegrenser. Dette medfører at realsameiet i fellesskap beslutter bruken, og at man ikke selv har eierrett og rettsvern på arealet. Realsameiet kan ved vedtak beslutte annet bruk av fellesarealet. Kjøper påtar seg risikoen for fortsatt bruk og fremtidig bruk samt eventuelle pålegg fra medeiere av realsameiets eiendom.
Parkering
Boligen disponerer en parkeringsplass i felles garasjerekke. Garasjen har gruset dekke og strømuttak.
Forøvrig er det parkering på felles gårdsplass.
Det gjøres oppmerksom på at dagens parkeringsløsning er etablert på realsameiets fellesareal, og at parkeringsplassene således ikke eies av den enkelte andelseier. Dette medfører at realsameiet i fellesskap beslutter bruken, og at man ikke selv har eierrett og rettsvern for parkeringsplassen. Realsameiet kan ved vedtak beslutte annet bruk av fellesarealet.
Vei, vann og avløp
Eiendommen har adkomst via kommunal vei.
Eiendommen er tilknyttet kommunalt ledningsnett via private stikkledninger. Eier er selv ansvarlig for private stikkledninger til boligen.
Regulerings-og arealplaner
Eiendommen er regulert til boliger i henhold til reguleringsplan, "REGULERINGS- OG BEBYGGELSESPLAN FOR EN DEL AV WINDELSTAD OG WEYDAHLJORDET.", vedtatt 03.03.1955.
Eiendommen omfattes av Kommuneplanens arealdel for Drammen kommune 2025-2037, vedtatt 18.06.2025. Arealbruken er i planen avsatt til boligbebyggelse - nåværende. Planen legger også føringer for miljøkvalitet, estetikk, natur, landskap og grønnstruktur for hele eiendommen.
Eiendommen berøres av følgende hensynssoner i kommuneplanen:
- Hensynssone: Ras- og skredfare, hele eiendommen. I områder utsatt for ras- og skredfare (inkludert kvikkleire, jord-, snø- og flomskred) kreves det i forbindelse med regulering og ved søknad om tiltak fagkyndig utredning. Nødvendige sikringstiltak og/eller avbøtende tiltak må utføres i tråd med utredningens anbefalinger for å dokumentere tilstrekkelig sikkerhet.
- Hensynssone: Flomfare, deler av eiendommen. Før det gis tillatelse innenfor hensynssonen må det dokumenteres at tiltaket er sikret mot flom etter TEK17 §7-2. Nødvendige sikringstiltak/avbøtende tiltak må utføres i tråd med utredningens anbefalinger.
- Hensynssone: Faresone høyspentanlegg (inkludert høyspentkabler), deler av eiendommen. Det er ikke tillatt med bygninger, konstruksjoner eller infrastruktur innenfor byggeforbudssonene til anleggene. Begrensningene gjelder også konstruksjoner og infrastruktur i bakken. For alle tiltak på, i eller ved høyspentanlegg skal netteier kontaktes.
Kommunen har igangsatt arbeid med en ny arealdel for kommuneplanen for perioden 2027-2039, som vil erstatte den nåværende planen når den blir vedtatt.
Utsnitt av planer med tilhørende bestemmelser kan fås ved henvendelse til megler.
Økonomi
Økonomi
Kommunale utgifter
Kommunale avgifter (vann og avløp): kr 9.680,- pr. år (3 terminer), fakturert på eiendommen i 2024. Avgiftene vil variere etter forbruket i boligen.
Renovasjonskostnader: kr 3.944,- pr. år (2 terminer). Type renovasjonsordning: Samarbeid, 2026.
Det opplyses om at Drammen kommune har varslet om en vesentlig fremtidig økning av kommunale avgifter.
I tillegg påløper det en kostnad på kr 608,- pr. år for boliger med minst ett aktivt røykrør (kostnad pr. 2026). Det påløper også kostnader for feiing av ildsted, kontroll av fyringsanlegg m.m. Frekvens på feiing samt tilsyn er avhengig av behov og vurderes av feieren.
Eiendommen er tilknyttet et realsameie som drifter og vedlikeholder felles eiendommen (bl.a. gararekken). Det betales ca. kr 1.000,- pr. mnd til felles vedlikehold.
Det må påregnes kostnader til strøm og nettleie, dette vil variere avhengig av strøm-/nettselskap. Selger har ikke opplyst om forbruk av strøm.
For denne boligen er det inngått avtale om Norgespris i stedet for strømstøtte, avtalen på kr 50 øre inkl. mva følger eiendommen og har en bindingstid frem til 31.12.2026. Nettleie, avgifter og påslag fra kraftleverandøren kommer i tillegg. Les mer om Norgespris her: https://www.regjeringen.no/no/aktuelt/legg-fram-lov-om-norgespris-pa-straum-og-fjernvarme/id3102642/
Boligen har en årlig forsikringspremie via Gjensidige. Selger har ikke opplyst om kostnader til bygningsforsikring.
Boligen er tilknyttet Viken Fiber Altibox som leverandør av tv/internett og har kostet ca. kr 1.100,- pr. mnd avhengig av kanalvalg og hastighet på nettet.
Nåværende eier har installert alarm tilknyttet Sector alarmsentral og koster ca. kr 9.400,- pr. år. Abonnementet medfølger.
Det må påregnes kostnader til innboforsikring.
Ovenstående er basert på nåværende eier/husstands senere års forbruk/utgifter. Dette vil variere avhengig av antall beboere, ønsket innetemperatur, egne fordelsavtaler, kanalvalg, hastighet på bredbånd m.m.
Formuesverdi
Formuesverdi for 2024 var kr 1.180.711,- ifølge Skatteetaten. Beløpet forutsetter at eier bor fast i boligen (primærbolig).
Ved eventuell øvrig bruk av eiendommen (f.eks. fritidsbolig, pendlerbolig, utleieobjekt) var formuesverdien for 2024 kr 4.722.845,-.
Formuesverdien justeres normalt årlig.
Fra 2026 har Stortinget vedtatt en oppdatert modell for beregning av formuesverdi for primærbolig, så avvik kan forekomme.
For mer informasjon se skatteetaten.no.
Omkostninger
4 690 000,00 Prisantydning
Omkostninger
117 250,00 Dokumentavgift til staten (2,5% av kjøpesum)
19 900,00 Gjensidige Boligkjøperpakke (valgfri)* (valgfritt)
545,00 Tinglysing panterettsdokument
545,00 Tinglysing skjøte
--------------------------------------------------------
118 340,00 Omkostninger totalt (uten Gjensidige Boligkjøperpakke (valgfri))
138 240,00 Omkostninger totalt (med Gjensidige Boligkjøperpakke (valgfri))
--------------------------------------------------------
4 808 340,00 Totalpris inkl. omkostninger
4 828 240,00 Totalpris inkl. omkostninger (med Gjensidige Boligkjøperpakke (valgfri))
--------------------------------------------------------
Totalpris inkl. omkostninger forutsetter kjøp til prisantydning.
Det tas forbehold om endringer i avgifter og gebyrer.
Tilbud om lånefinansiering
Megler formidler gjerne kontakt med rådgiver hos vår samarbeidspartner BN Bank. De har konkurransedyktige betingelser samt rask og løsningsorientert behandling av din lånesøknad. Krogsveen mottar et honorar dersom lån opprettes.
Betalingsbetingelser
Kjøpesum inkludert omkostninger, samt pantedokument tilknyttet eventuelt lån, skal være disponibelt hos megler 2 virkedager før overtagelsen.
Annen viktig informasjon
Annen viktig informasjon
Eier
Eva Gjone
Overtakelse
Etter nærmere avtale.
Boligselgerforsikring
Selger har i forbindelse med salget tegnet boligselgerforsikring levert av Gjensidige.
Boligselgerforsikringen dekker selgers ansvar etter avhendingsloven begrenset oppad til kr 14 millioner. Dersom kjøper oppdager forhold ved eiendommen som hen mener utgjør en mangel ved eiendommen, vil Gjensidige behandle reklamasjonen på vegne av selger. Forsikringsvilkår kan fås ved henvendelse til megler.
Vedlagt salgsoppgaven følger selgers egenerklæringsskjema og tilstandsrapport. Interessenter må sette seg inn i dokumentene før bud inngis.
Boligkjøperforsikring
Innen kontraktsmøtet må kjøper ta stilling til om det ønskes å bestille Boligkjøperpakken gjennom Gjensidige. I denne gunstige pakken er boligen ferdig forsikret og inkluderer rettshjelpsforsikring, også kalt Boligkjøperforsikring. Rettshjelpsforsikring gir trygghet og tilgang på profesjonell juridisk hjelp dersom det oppdages uventede feil eller mangler det første året etter overtagelse. Forsikringsselskapet behandler i så fall ethvert mangelskrav kjøper måtte ha overfor selger.
Boligkjøperpakken inkluderer bygningsforsikring for hus og hytte, innboforsikring, flytteforsikring og dobbel rentedekning - i situasjoner hvor kjøper ikke får solgt nåværende primærbolig.
Kjøper mottar ingen særskilt faktura for Boligkjøperpakken da kostnaden det første året legges til kjøpesummen for boligen. Det gjøres oppmerksom på Krogsveen mottar et honorar for denne formidlingen.
Produktark for Boligkjøperpakken ligger vedlagt i salgsoppgaven.
Dersom ikke boligkjøperpakke ønskes kan kun rettshjelpsforsikring, også kalt boligkjøperforsikring, tegnes særskilt via megler. Rettshjelpsforsikringen varer i 5 år fra overtagelse og leveres gjennom Gjensidige. Ta kontakt med megler for ytterligere informasjon.
Selskap og privatpersoner som driver med kjøp/salg/utvikling som ledd i egen næringsvirksomhet kan ikke tegne boligkjøperpakke eller rettshjelpsforsikring.
Budgivning
Forbrukerinformasjon om budgivning er vedlagt denne salgsoppgaven og er også på vår hjemmeside Krogsveen.no. Alle bud og budforhøyelser må inngis skriftlig. I tillegg må legitimasjon være fremlagt sammen med signatur fra budgiver.
Vi oppfordrer til å gi bud elektronisk via GI BUD-knappen på eiendommens hjemmeside på Krogsveen.no. Da vil samtlige vilkår bli oppfylt.
Eventuelle forhøyelser eller endringer av budet kan bekreftes pr SMS eller på e-post. Vi oppfordrer alltid til å kontakte megler pr. telefon i tillegg da forsinkelser i SMS og e-post kan forekomme.
For at budene skal kunne bli behandlet og videreformidlet skriftlig til alle involverte parter, må alle bud ha en tilstrekkelig lang akseptfrist, jf. eiendomsmeglingsforskriften § 6-3.
Selger må også skriftlig akseptere budet før aksept kan formidles til budgiver. Akseptfrist bør derfor være på minimum 30 minutter, og budforhøyelser må derfor skje i god tid før fristens utløp.
Bud i forbrukerforhold kan uansett ikke settes med kortere frist enn kl. 12.00 første virkedag etter siste annonserte visning. I tillegg kan ikke budet ha forbehold om at det skal holdes hemmelig ovenfor øvrige interessenter. Megler har iht lov om eiendomsmegling ikke anledning til å videreformidle disse budene, og de vil dermed heller ikke bli journalført.
Etter at eiendommen er solgt vil kjøper og selger få tilsendt budjournal. Øvrige budgivere kan få utlevert kopi av budjournalen i anonymisert form.
Hvitvaskingsreglene
I henhold til lov om hvitvasking og terrorfinansiering har megler plikt til å gjennomføre kontrolltiltak overfor kunder, herunder fullmektiger. Dette innebærer bl.a. å bekrefte kunders og reelle rettighetshaveres identitet på bakgrunn av fremvist gyldig legitimasjon eller på annen godkjent måte, samt å innhente opplysninger om kundeforholdets formål og tilsiktede art.
Dersom slike kundetiltak ikke kan gjennomføres, kan megler ikke etablere kundeforholdet eller utføre transaksjonen.
Hvis kjøper ikke bidrar til gjennomføring av kundekontrollen og dette fører til at transaksjonen blir forsinket eller ikke kan gjennomføres, vil dette ansees som mislighold av avtalen og gi selger rettigheter etter avhendingslova kapittel 5. I tilfeller der selger ikke bidrar til gjennomføring av løpende kundekontroll underveis i oppdraget, er det selger som misligholder sine forpliktelser etter avtalen og gi kjøper rettigheter etter avhendingslovens kapittel 4. Partene er selv ansvarlige for eventuelle kostnader og ansvar dette kan medføre. Eiendomsmegleren eller eiendomsmeglingsforetaket kan ikke holdes ansvarlig for de konsekvenser dette vil kunne få for partene eller andre som har interesser i eiendomshandelen.
Kjøper oppfordres til å innbetale kjøpesummen som ikke kommer fra låneinstitusjon i én samlet innbetaling fra egen konto i norsk bank. Megler har plikt til å melde fra til Økokrim om eiendomshandler som fremstår som mistenkelige. Melding sendes Økokrim uten at partene varsles.
Personopplysningsloven
I henhold til personopplysningsloven gjør vi oppmerksom på at interessenter kan bli registrert for videre oppfølging.
Lovanvendelse
Generelle bestemmelser
Salgsoppgaven er basert på de opplysningene selger har gitt til megler, den bygningssakyndiges tilstandsrapport, samt opplysninger innhentet fra kommunen, Kartverket og andre tilgjengelige kilder. Det er viktig at kjøper setter seg grundig inn i alle salgsdokumentene, herunder salgsoppgave, tilstandsrapport og selgers egenerklæring. Kjøper anses kjent med forhold som er tydelig beskrevet i salgsdokumentene, og slike forhold kan ikke påberopes som mangler. Dette gjelder uavhengig av om kjøper har lest dokumentene. Alle interessenter oppfordres til å undersøke eiendommen nøye, gjerne sammen med fagkyndig før bud inngis. Kjøper som velger å kjøpe usett kan ikke gjøre gjeldende som mangel noe han burde blitt kjent med ved undersøkelsen.
Dersom det er behov for avklaringer, anbefaler vi at interessenter rådfører seg med eiendomsmegler eller egne rådgivere før det legges inn bud.
En bolig som har blitt brukt i en viss tid, har vanligvis blitt utsatt for slitasje og skader kan ha oppstått. Slik bruksslitasje må kjøper regne med, og det kan avdekkes enkelte forhold etter overtakelse som nødvendiggjør utbedringer. Normal slitasje og skader som nødvendiggjør utbedring, er innenfor hva kjøper må forvente og vil ikke utgjøre en mangel.
Kjøper og selgers rettigheter og plikter reguleres av avtalen mellom partene, samt informasjonen som har vært tilgjengelig for kjøperen i forbindelse med handelen. Avtalen utfylles av avhendingsloven, og det gjelder ulike avtalevilkår avhengig av om kjøper er forbrukerkjøper eller ikke. Dette er nærmere beskrevet nedenfor.
På grunn av ulike avtalevilkår kan selger vurdere bud fra en som ikke er forbruker, ulikt fra en forbrukers bud. Dersom kjøper ikke er forbruker, er selger sitt mulige mangelsansvar begrenset fordi eiendommen selges "som den er". Selger kan ikke ta «som den er»- forbehold overfor en forbrukerkjøper. Selv et lavere bud fra en som ikke er forbruker kan foretrekkes fordi begrensningen i mulig mangelsansvar kan ha egenverdi for selger. Selger står fritt til å forkaste eller akseptere ethvert bud, og er for eksempel ikke forpliktet til å akseptere høyeste bud.
Budgiver skal i budskjema avgi egenerklæring om budgiver er forbruker eller næringsdrivende/ person som hovedsakelig handler som ledd i næringsvirksomhet. Budgivere får informasjon dersom andre bud er inngitt av en som ikke er forbruker.
Forbrukerkjøp - definisjon
Med forbrukerkjøp menes kjøp av eiendom når kjøperen er en fysisk person som ikke hovedsakelig handler som ledd i næringsvirksomhet.
Forbruker – avtalevilkår
Eiendommen har en mangel dersom den ikke er i samsvar med kravene som følger av avtalen, eller det foreligger brudd på bestemmelsene i avhendingsloven §§ 3-2 til 3-8. Hvis eiendommen ikke er i samsvar med det kjøperen må kunne forvente ut ifra alder, type og synlig tilstand, kan det være grunnlag for mangelskrav. Det samme gjelder hvis det er holdt tilbake eller gitt uriktige opplysninger om eiendommen. Dette gjelder likevel bare dersom man kan gå ut ifra at det virket inn på avtalen at opplysningen ikke ble gitt eller at mangelskravet ikke blir rettet i tide på en tydelig måte.
Boligen kan ha en mangel etter avhendingsloven § 3-3 andre ledd, dersom det er avvik mellom opplyst og faktisk innvendig areal, forutsatt at avviket er på 2% eller mer og minimum 1 kvm.
Ved beregning av et eventuelt prisavslag eller erstatning må kjøper selv dekke tap/kostnader opptil et beløp på kr 10 000 (egenandel).
Ikke-forbruker (næringsdrivende) – definisjon
Hvis kjøper er en juridisk person, eller en fysisk person som hovedsakelig handler som ledd i næringsvirksomhet, vil kjøpet ikke anses som et forbrukerkjøp.
Ikke-forbruker – avtalevilkår
Eiendommen har en mangel dersom den ikke er i samsvar med kravene som følger av avtalen.
Eiendommen selges «som den er», og selgers ansvar utover det konkret avtalte er da begrenset etter avhendingsloven § 3-9, første ledd andre setning.
Avhendingsloven § 3-3 andre ledd fravikes, og hvorvidt boligens arealsvikt utgjør en mangel vurderes etter avhendingsloven § 3-8.
Informasjon om kjøpers undersøkelsesplikt, herunder oppfordringen om å undersøke eiendommen nøye, gjelder også for kjøpere som ikke anses som forbrukere.
Det forutsettes at hjemmel overføres til kjøper. Hvis kjøper ikke ønsker hjemmelsoverføring av eiendommen, må det tas forbehold om dette i budet.
Meglers vederlag
Meglers vederlag betales av selger og er avtalt til:
Vederlag: 1,13 % av salgssummen
Minimumsprovisjon er kr 60 000,00
Vederlag:
Kontroll av hjemmel og heftelser kr 2 900,00
Markedsføringspakke kr 29 900,00
Oppgjør kr 7 500,00
Tilrettelegging kr 17 000,00
Visninger pr stk / Overtagelse kr 3 500,00
Utlegg:
Innhenting av off. oppl. Drammen kommune inkl. tegninger, RfD og feierrapport kr 3 422,25
Tinglysing sikring kr 545,00
Andre utgifter:
AX tilstandsrapport rekkehus/tomannsbolig kr 17 500,00
Boligfotografering kr 5 000,00
Boligselgerforsikring Gjensidige Eiet valgfri, ca kr 30.000,-
Vi er opptatt av verdiskapning, og har knyttet til oss samarbeidspartnere som skal sikre våre kunder de beste produkter og tjenester;
• I forbindelse med forberedelse av salget, innhenter vi informasjon om eiendommen hovedsakelig fra vår samarbeidspartner Amibita.
• Gjensidige leverer boligselgerforsikring og tilbyr bygningsforsikring
• Boligkjøperforsikring leveres av Hiscox og med Sedgwick som skadebehandler, og er formidlet gjennom Gjensidige.
• BN bank tilbyr finansieringsløsninger
• Vår avdeling Krogsveen Pluss tilbyr flyttetjenester som utvask, visningsvask, lager, tømming og transport av flyttelass, i tillegg til å formidle kontakt med Flip for overflateoppussing.
• I forbindelse med overtagelse av eiendommen tilbyr Overo avtale om strøm, alarm og bredbånd.
• Krogsveen er, sammen med øvrige bransjeaktører, medeier i den digitale annonseringsplattformen Hjem som eies av Bomega AS.
Opplysninger om oppdraget
Oppdragsnummer 20-0413/25
Eiendomsmegler Krogsveen AS, avd. Drammen
Nedre Storgate 16, 3015, DRAMMEN
950 007 613
Oppdragets KR-kode KR20.25413
Dato
Sist oppdatert: 26. mai 2026 kl. 09:16
Dokumenter
Dokumenter
PDF – 954 KB
PDF – 821 KB
PDF – 169 KB
PDF – 437 KB
PDF – 312 KB
PDF – 29 KB
PDF – 127 KB
PDF – 392 KB
Område
Legg til steder som er viktige for deg
Visning
Det er ingen planlagte visninger. Meld deg på for å avtale en tid som passer.
Lurer du på noe?
Unngå doble boligrenter
Vi tilbyr gunstig forsikring.
Vurderer du utleie?
Få et tilbud fra Utleie KrogsveenHva koster lånet?
Sjekk estimert lånekostnadVil du varsles om lignende boliger?
Ved å lagre ditt boligsøk hos oss får du beskjed når vi har en bolig som ligner denne, før den legges ut på markedet!

