Nesoddbakken 7
4 490 000 kr
131 m²
3 soverom
Komplett salgsoppgave

Sandtangen/Svelvik
Pen og innholdsrik enebolig med 3 etasjer. Kjøkken fra 2021. Fantastisk utsikt over Drammensfjorden. Rett ved strand.
Prisantydning
4 490 000 krOmkostninger
133 240 krTotalpris
4 623 240 kr
Pris
Bruksareal
155 m²BRA-I (internt bruksareal)
131 m²BRA-E (eksternt bruksareal)
24 m²TBA (terrasse-balkongareal)
37 m²
Areal
Etasje
3Byggeår
1983Soverom
3 soveromBad
1 badTomteareal
586 m² (eiet)Type
Enebolig - FrittliggendeEierform
EietFasiliteter
Garasje/P-plass og Balkong/TerrasseEnergimerke
Gul D
Nøkkelinfo
Unngå doble boligrenter
Vi tilbyr gunstig forsikring.
Vurderer du utleie?
Få et tilbud fra Utleie KrogsveenHva koster lånet?
Sjekk estimert lånekostnadBeskrivelse
Kort om eiendommen
Innhold og byggemåte
Innhold og byggemåte
Eiendommen
Nesoddbakken 7, 3060 SVELVIK
Kommunenummer 3301, gårdsnummer 333, bruksnummer 90, ideell andel 1/1
Innhold
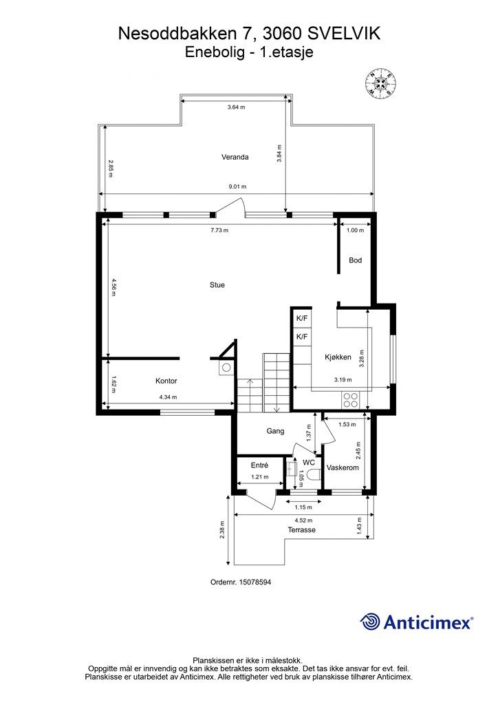
Totalt bruksareal BRA: 155 kvm
BRA-i:
Underetasje 51 kvm: Gang, bad, bod og tre soverom.
1. etasje 64 kvm: Entré, gang, toalettrom, vaskerom, kontor, stue og kjøkken.
Loftetasje 16 kvm: Soverom.
BRA-e:
Garasje 24 kvm: Garasje.
Terrasse- og balkongareal (TBA):
1. etasje 37 kvm: Terrasse mot syd 8 kvm, veranda mot nord 29 kvm.
Loftsetasjen har et totalt gulvareal (GUA) på 21 kvm, men grunnet skråtak/lav takhøyde er kun 16 kvm av arealet måleverdig som bruksareal. De delene av arealene som har lav himlingshøyde (ALH) utgjør 5 kvm.
1. etasjen har et totalt gulvareal (GUA) på 69 kvm, men grunnet skråtak/lav takhøyde er kun 64 kvm av arealet måleverdig som bruksareal. De delene av arealene som har lav himlingshøyde (ALH) utgjør 5 kvm.
Underetasjen har et totalt gulvareal (GUA) på 61 kvm, men grunnet skråtak/lav takhøyde er kun 51 kvm av arealet måleverdig som bruksareal. De delene av arealene som har lav himlingshøyde (ALH) utgjør 10 kvm.
Rom som avviker fra godkjente byggetegninger ifbm. rom for varig opphold: Soverom på loft. Se mer informasjon under punktet ferdigattest.
De oppgitte arealer er hentet fra rapport med befaringsdato 28.01.2026 utført av Anticimex AS v/Sindre Anholt Andersen. Arealene er beregnet og rom er definert etter dagens faktiske bruk, uavhengig av hva som er godkjent av bygningsmyndighetene.
Byggemåte
Selger har fått utarbeidet en tilstandsrapport, dvs. en teknisk gjennomgang av boligen hvor eventuelle avvik, risiko for kjøper og prisoverslag for hva som bør gjøres av oppgradering, er skissert. Se særskilt TGIU (tilstandsgrad ikke undersøkt), samt TG2 og TG3 som viser hva som er boligens normale slitasje, alder og type, eller som bør/må utbedres. Rapporten og selgers egenerklæring er en del av salgsoppgaven og må leses nøye før bud inngis. Kjøper overtar ansvaret for de opplysninger som fremkommer av salgsdokumentasjonen, og kan ikke gjøre gjeldende som mangel noe som burde vært kjent eller som ikke kan anses å ha betydning for avtalen.
Bygningen er iht. tilstandsrapport oppført i 1983. Eneboligen er oppført på støpt gulv mot grunn med grunnmurer i lettklinkeblokker. Yttervegger er i lettklinkeblokker og trekonstruksjoner, med utvendige fasader av murpuss og stående trekledning. Taket har en saltaksform og er tekket med takstein. Vinduer og verandadører i 2- og 3-lags glass fra 1982, 2021 og 2022. Entredør med glassfelt fra ukjent årstall. Loftetasjens vinduer ble utskiftet høsten 2022 og er 2-lags, underetasjen soverom/gang vinduer samt balkongdør utskiftet høsten 2022 og er 3-lags. Vindu på kjøkkenet utskiftet høsten 2021 og er 3-lags.
Det gjøres spesielt oppmerksom på at følgende bygningsdeler er gitt Tilstandsgrad 3 (TG3) — Store eller alvorlige avvik:
- Garasje: Den frittstående garasjen bærer preg av slitasje og elde, med for eksempel skjevheter, råteskader og lekkasje fra tak. Tiltak bør påregnes.
I tillegg er det 28 bygningsdeler gitt TG2.
Ovennevnte er kun et utdrag fra rapporten. Se supplerende tekst i tilstandsrapporten for mer informasjon. For øvrige tilstandsgrader og tilstandsgrader grunnet høy alder og evt. slitasje, så henvises det til rapporten. Kjøper overtar ansvar og risiko for dette.
Standard
Løsøre og tilbehør
Integrerte hvitevarer på kjøkkenet medfølger i handelen, dette gjelder oppvaskmaskin, platetopp, kombi mikro-/stekeovn, stekeovn, kjøleskap og fryseskap.
Videre vises det til liste fra Norges Eiendomsmeglerforbund angående løsøre og tilbehør. Produkter og installasjoner som medfølger overdras uten noen form for garantier, utover eventuell gjenværende leverandørgaranti.
Oppvarming
Boligen varmes opp med elektrisitet og vedfyring. Det er en varmepumpe fra 2015 og en peis med innsats i stuen. I tillegg er det varmekabler på bad og kjøkken samt varmefolie i gulv i gang (underetasje) og på soverom (underetasje).
Det har blitt foretatt en kontroll av pipe og ildsted i 2024, utført av Drammensregionens brannvesen IKS og alt er funnet i orden.
Siste feiing ble utført 13.03.2024.
Dersom beboelsesrom ikke har vegg- eller fastmonterte varmekilder ved visning følger dette heller ikke med.
Ferdigattest/brukstillatelse
Det foreligger ferdigattest på eiendommen datert 06.10.1983, som omfatter oppføring av bolig. I tillegg er det tilhørende godkjente byggetegninger fra 1977.
Soverom på loft er opprinnelig byggemeldt som uinnredet loft og gang i underetasje er opprinnelig byggemeldt som boder jf. godkjente byggetegninger fra 1977. Innredning av rommene til bruk for varig opphold/hoveddel er ikke bruksendret/omsøkt og er heller ikke godkjent av kommunen. Konsekvensen ved søknad kan være at rommene ikke godkjennes som varig opphold/hoveddel og at rommene da må brukes/tilbakeføres til opprinnelig godkjent formål. Kjøper overtar alt ansvar og risiko for dette videre.
Ytterste del av boden i underetasjen er opprinnelig byggemeldt som "plate på mark". Opprinnelig veranda har blitt revet og det har blitt etablert en ny samt større veranda. Selger opplyser om at det er utført endringer på bærende konstruksjoner. Megler anfører at det ikke foreligger dokumentasjon på søknad til kommunen vedrørende de utførte tiltakene. Kjøper overtar risiko og ansvaret for eventuelle pålegg fra kommunen samt kostnader forbundet med dette.
Det har blitt satt inn større vinduer og flere vinduer i loftetasjen. Det har blitt satt inn et større vindu på kjøkkenet. Vinduer i underetasjen har blitt skiftet med større og det har blitt satt inn et nytt vindu i gang. Fasadeendringer er i utgangspunktet søknadspliktig, men endringer som ikke fører til forandringer i bygningens karakter og tilbakeføring av fasade til tidligere dokumentert utførelse, er unntatt søknadsplikt. Det er kommunen som avgjør om fasadeendringen fører til at bygningens karakter endres. Det vites ikke om utførte tiltak er søknadspliktig, men megler anfører at det ikke foreligger dokumentasjon på søknad til eller korrespondanse med kommunen vedrørende de utførte tiltakene. Kjøper overtar risiko og ansvaret for eventuelle pålegg fra kommunen samt kostnader forbundet med dette.
Det er i utgangspunktet ikke søknadspliktig å oppføre en frittstående garasje på under 50 kvm, dog må bestemmelser i kommuneplanen følges (bl.a. bestemmelser om tomtens BYA). Det er ikke undersøkt nærmere og det vites ikke om bestemmelsene er fulgt ved oppføring av garasje på denne eiendommen. Selv om tiltak ikke er søknadspliktig, så skal det meldes inn til kommunen ved ferdigstillelse av tiltaket. Megler anfører at det ikke foreligger dokumentasjon på garasjebygningen i kommunens arkiv. Kjøper overtar alt ansvar og risiko for dette videre.
Kjøper overtar eiendommen slik den framstår på visning.
Tinglyste heftelser og rettigheter
Eiendommen overdras fri for pengeheftelser.
Dagboknummer: 5416
Tinglysningsdato: 04.11.1982
Servitutten omhandler: Rett til anleggelse og vedlikehold av avløpsanlegg på eiendommen. Rettighetshaver er gnr. 333/bnr. 1/fnr. 1.
Dagboknummer: 1903
Tinglysningsdato: 22.04.1983
Servitutten omhandler: Det er ikke tillatt å drive forretningsmessig virksomhet på eiendommen. Det kan ikke gjøres innsigelser mot evt. nye fellesanlegg i området, så som veier, parkeringsplasser, anlegg for vann, avløp og renovasjon m.v. Det kan heller ikke gjøres innsigelser mot fremføring av elektriske kabler. Luftkabler, ledninger eller jordkabler kan passere eiendommen.
Dagboknummer: 6478
Tinglysningsdato: 05.12.2003
Servitutten omhandler: Rettigheter og plikter ved bygging, drift og vedlikehold av høyspenningsluftledninger - mellom nettselskap (Skagerak Nett) og grunneier (gnr. 333/bnr. 1).
Dagboknummer: 747130
Tinglysningsdato: 06.07.2022
Servitutten omhandler: Eiendommen har rett til adkomstvei fra offentlig vei og over gnr. 333/bnr. 1. Rettigheten hefter i gnr. 333/bnr. 1, 91 og 92.
I tillegg er det tinglyst 56 servitutter av både eldre og nyere dato, de eldste servitutten er fra da eiendommen tidligere har vært en festet eiendom. Servituttene hefter likevel i denne eiendommen og kjøper overtar ansvaret for servituttene. Iht. grunnboksutskriften omhandler servituttene bestemmelser om vei, vannledning, båt/bryggeplass, vannrett, vannledning, telefonledninger/stolper/kabler/grøfter m.v., veivedlikehold, gjerde, jordskifte - grensegangssak m.m.
Servituttene vil følge eiendommen. Kjøpers bank vil få prioritet etter ovennevnte heftelser og servitutter.
Eventuell adgang til utleie
Eiendommen har ikke separat utleieenhet. Det vil normalt være anledning til utleie av hele eiendommen eller enkeltrom, såfremt utleiearealet er bygningsmessig godkjent for varig opphold og har forsvarlige radonnivåer.
Energimerking
Komplett energiattest inkludert oppvarmingskarakter fås ved henvendelse til megler eller lastes ned fra www.krogsveen.no.
Beliggenhet og tomteforhold
Beliggenhet og tomteforhold
Beliggenhet
Med adresse i Nesoddbakken 7 bor du i et veletablert og rolig boligområde, et nabolag som kombinerer nærhet til sjø og mark med kort vei til bylivet. Dette er et trygt og familievennlig område preget av eneboliger og hytter, hvor hverdagen er enkel og naturopplevelsene mange. Eiendommen har gode solforhold og har en nydelig utsikt over Drammensfjorden fra høyden.
Området er ideelt for en aktiv livsstil. Rett i nærheten finner du Kyststien, som inviterer til flotte turer langs fjorden. På varme dager er populære badeplasser lett tilgjengelige, og for den fiskeinteresserte er Drammensfjorden et yndet fiskested både om sommeren, og for pilking vinterstid. For de minste er det kort vei til Hellabanen fotballbane, og Svelvik Idrettsforening har et bredt tilbud for barn og unge. Grunnane naturreservat er perfekt for fugletitting og rolige turer.
Nærmeste busstopp, Jordfallbukta, med båthavn, ligger kun et par minutters gange unna. For barnefamilier er det en kort kjøretur til Støa barnehage, samt Tangen barneskole og Svelvik ungdomsskole. Alle daglige innkjøp kan gjøres i Svelvik sentrum, en åtte minutters kjøretur unna, hvor du finner både Rema 1000 og Kiwi, apotek, vinmonopol og andre servicetilbud. For et større utvalg er det kun 17 minutter til Drammen sentrum.
Svelvik byr også på et rikt kultur- og foreningsliv. I sentrum finner du sjarmerende gater, spisesteder som Dreggen Kro & Vertshus ved vannkanten, og Knutepunkt Svelvik som huser både bibliotek og kulturskole. Årlige arrangementer som Svelvikdagene skaper et levende og sosialt lokalsamfunn. Her får du det beste fra to verdener – en rolig og naturnær base med enkel tilgang til alt du trenger i hverdagen.
Adkomst
Det vil bli skiltet med Krogsveen visningsskilt ved fellesvisninger. Se kart i nettannonse eller Google Maps for nærmere veibeskrivelse. Velkommen til visning!
Barnehager, skoler og fritid
Godt sammensatt tilbud av private og offentlige barnehager.
Barnehager: Støa barnehage (3 km), Tømmerås barnehage (8,3 km), Nøstodden barnehage (9 km).
Skoler: Eiendommen er innenfor et område med valgfri skoletilhørighet, det kan velges mellom Tangen barneskole (1,8) og Tømmerås barneskole (8,8 km). Videre er det Svelvik ungdomsskole (8,9 km).
Valgfri skoletilhørighet gjelder kun for de som skal begynne på 1. trinn, eller som flytter til skolekretsene i løpet av året.
Drammen kommune har tre private barne- og ungdomsskoler, Drammen Realfagsskole Heltberg, Norlights Montessoriskole Drammen og Rosendal skole (Mjøndalen).
Det ligger flere videregående skoler i Drammen og Lier, samt Universitetet i Sørøst-Norge som har campus på Papirbredden i Drammen, for mer informasjon se www.usn.no.
Dersom skole- og barnehagetilbud er av betydning for kjøpet, ber vi om at det rettes en særskilt henvendelse til kommunen for oppdatert informasjon.
Beskrivelse av tomt
Eiet tomt på 586 m². Tomten er skrånet og opparbeidet med gruset gårdsplass, plenarealer og diverse beplantning. På eiendommen er det også en frittstående garasje. Det beregnede tomtearealet er hentet fra Matrikkelen, og kan avvike fra nøyaktig areal da oppgitt areal ikke er registrert.
Det opplyses om at det har blitt avtalt at nåværende eier har fått kjøpt et areal av gnr. 333/bnr. 1 ved innkjøring og garasjevegg (grunneier er samme grunneier av tidligere festeforhold på denne eiendommen), som ligger ved garasjen/gårdsplassen (i retning sørvest, mot veien Nesoddbakken). Iht. avtalen disponerer nåværende eier denne delen som egen tomt og det har bl.a. blitt opparbeidet en gårdsplass på dette arealet. Tomtearealet ble aldri fradelt grunneiendommen, eller sammenføyet med eiendommen som nå selges. Arealet ble ikke tinglyst over på eier av gnr. 333/bnr. 90 (Nesoddbakken 7), og man mangler således rettsvern for erhvervelsen. Det presiseres derfor at kjøper påtar seg risikoen for fortsatt bruk og eventuelle pålegg, herunder risikoen for om bruken og utskilling lar seg godkjenne, og alle kostnader forbundet med dette. Det kan være krav i lov, forskrift og planverk som ikke er oppfylt eller kan oppfylles. I så fall vil kommunen kunne kreve at tomten settes tilbake til opprinnelig godkjent stand. Grunneier bekrefter at kjøp av tomtestykket er betalt og oppfordrer til sluttføring av saken i matrikkel og tinglysing. Grunneier skal ikke bære kostnader i denne forbindelse. Kart og avtale kan fås ved henvendelse til megler.
Parkering
Frittstående garasje og parkering på gruset gårdsplass. Garasjen er på 24 kvm, men det er en kjent feil med lekkasje fra taket.
Vei, vann og avløp
Eiendommen har adkomst via privat vei med felles vedlikeholdsansvar.
Eiendommen har privat septiktank. Kommunen har en generell hjemmel til å kreve at eiendommer med privat septiktank kobler seg til det offentlige avløpsnettet. Det er pt. ikke tilgjengelig kommunalt nett i området. Kontakt megler for ytterligere informasjon.
Eiendommen har privat brønn som vannkilde. Brønnen er et fellesanlegg som brukes og driftes i samarbeid med både fastboende og hyttenaboer. Brønnen er i forbindelse med salget ikke undersøkt, men ifølge selger tas det årlige vannprøver av laget som drifter anlegget.
Regulerings-og arealplaner
Eiendommen er uregulert og omfattes av Kommuneplanens arealdel for Drammen kommune 2025-2037, vedtatt 18.06.2025. Hele eiendommen er i planen avsatt til Boligbebyggelse - Nåværende.
Det er igangsatt arbeid med en ny kommuneplan, "Kommuneplanens arealdel for Drammen kommune 2027-2039". Dette kan medføre endringer i reguleringsforholdene for eiendommen i fremtiden.
Utsnitt av plan med tilhørende bestemmelser kan fås ved henvendelse til megler.
Økonomi
Økonomi
Kommunale utgifter
Avløpsanlegg: kr 2.369,- pr. tømming (min. hvert 2 år), tømmes av Arnkværn Miljø og Renovasjon. Sist tømt 10.07.2025, tømmefrekvens er avhengig av bruken av anlegget.
Anleggstype: Slamavskiller, totalt 2 m3. Det må i tillegg påregnes kostnader til årlig tilsyn av tanken, dette koster kr 655,- pr. år.
Avløpsanlegg: kr 3.632,- pr. tømming (min. hvert år), tømmes av Arnkværn Miljø og Renovasjon. Sist tømt 27.01.2025, tømmefrekvens er avhengig av bruken av anlegget.
Anleggstype: Tett tank, totalt 6 m3. Det må i tillegg påregnes kostnader til årlig tilsyn av tanken, dette koster kr 655,- pr. år.
Kommunestyret har vedtatt en forskrift om utslipp av sanitært avløpsvann fra bolighus, hytter mv. Her gis det hjemmel for å kreve oppgradering av eksisterende avløpsanlegg.
Tilsynet for små avløpsanlegg har vurdert eiendommens avløpsanlegg. Det er ikke kjent med at det er gitt noen utslippstillatelse og anlegget har mangler ifht. dagens rensekrav. Det kan påregnes pålegg om oppgradering av avløpsløsningen, eller evt. tilkobling til kommunalt nett (ikke tilgjengelig pt.). Tilsynet oppfordrer til å vurdere en felles avløpsløsning for bygningene i området. Konferer med megler for mer informasjon. Kjøper overtar for eventuelle pålegg samt kostnader forbundet med dette.
Eiendommen har vann fra privat brønn, det må påregnes kostnader for bruk og vedlikehold av dette.
Renovasjonskostnader: kr 6.764,- pr. år (2 terminer). Type renovasjonsordning: Storfamilie renovasjon, 2026.
Det opplyses om at Drammen kommune har varslet om en vesentlig fremtidig økning av kommunale avgifter.
I tillegg påløper det en kostnad på kr 608,- pr. år for boliger med minst ett aktivt røykrør (kostnad pr. 2026). Det påløper også kostnader for feiing av ildsted, kontroll av fyringsanlegg m.m. Frekvens på feiing samt tilsyn er avhengig av behov og vurderes av feieren.
Eiendommen betaler for privat snøbrøyting av vei, dette koster ca. kr 1.500,- pr. år for fastboende.
Det må påregnes kostnader til strøm og nettleie, dette vil variere avhengig av strøm-/nettselskap. Nåværende eier har et strømforbruk på ca. 18.000 kWh pr. år.
Boligen har en årlig forsikringspremie via Tryg på kr 9.800,- pr. år (egen avtale).
Boligen har internett via mobilt bredbånd.
Det må påregnes kostnader til tv/internett og innboforsikring.
Ovenstående er basert på nåværende eier/husstands senere års forbruk/utgifter. Dette vil variere avhengig av antall beboere, ønsket innetemperatur, egne fordelsavtaler, kanalvalg, hastighet på bredbånd m.m.
Formuesverdi
Ved hjelp av skatteetatens boligkalkulator er boligens formuesverdi beregnet til kr 1.083.372,- for fjoråret når boligen benyttes som primærbolig.
Formuesverdien er en gitt prosent av den beregnede markedsverdien. Beregnet markedsverdi er basert på Statistisk sentralbyrå (SSB) sine opplysninger om omsatte boliger. I beregningen tas det hensyn til boligens beliggenhet, areal, byggeår og boligtype.
Det er eier av boligen som fastsetter formuesverdien, jf. skatteforvaltningsloven § 9-1 første ledd, men skattemyndighetene kan kontrollere at verdien er satt riktig.
Formuesverdi skal ikke overstige:
Primærbolig: 25 % av beregnet eller dokumentert markedsverdi opp til kr. 10 000 000, og deretter 70 % av den overskytende markedsverdi.
Sekundærbolig: 100 % av beregnet eller dokumentert markedsverdi.
Formuesverdier som overstiger disse grensene, kan kreves nedjustert av eier.
Fra 2026 har Stortinget vedtatt en oppdatert modell for beregning av formuesverdi for primærbolig, så avvik kan forekomme.
For mer informasjon se skatteetaten.no
Omkostninger
4 490 000,00 Prisantydning
Omkostninger
112 250,00 Dokumentavgift til staten (2,5% av kjøpesum)
19 900,00 Gjensidige Boligkjøperpakke (valgfri)
545,00 Tinglysing panterettsdokument
545,00 Tinglysing skjøte
--------------------------------------------------------
133 240,00 Omkostninger totalt
--------------------------------------------------------
4 623 240,00 Totalpris inkl. omkostninger
--------------------------------------------------------
Totalpris inkl. omkostninger forutsetter kjøp til prisantydning.
Det tas forbehold om endringer i avgifter og gebyrer.
Tilbud om lånefinansiering
Megler formidler gjerne kontakt med rådgiver hos vår samarbeidspartner BN Bank. De har konkurransedyktige betingelser samt rask og løsningsorientert behandling av din lånesøknad. Krogsveen mottar et honorar dersom lån opprettes.
Betalingsbetingelser
Kjøpesum inkludert omkostninger, samt pantedokument tilknyttet eventuelt lån, skal være disponibelt hos megler 2 virkedager før overtagelsen.
Annen viktig informasjon
Annen viktig informasjon
Eier
Amar Sunja og Sanela Sunja
Overtakelse
Etter nærmere avtale.
Boligselgerforsikring
Selger har i forbindelse med salget tegnet boligselgerforsikring levert av Gjensidige.
Boligselgerforsikringen dekker selgers ansvar etter avhendingsloven begrenset oppad til kr 14 millioner. Dersom kjøper oppdager forhold ved eiendommen som hen mener utgjør en mangel ved eiendommen, vil Gjensidige behandle reklamasjonen på vegne av selger. Forsikringsvilkår kan fås ved henvendelse til megler.
Vedlagt salgsoppgaven følger selgers egenerklæringsskjema og tilstandsrapport. Interessenter må sette seg inn i dokumentene før bud inngis.
Boligkjøperforsikring
Innen kontraktsmøtet må kjøper ta stilling til om det ønskes å bestille Boligkjøperpakken gjennom Gjensidige. I denne gunstige pakken er boligen ferdig forsikret og inkluderer rettshjelpsforsikring, også kalt Boligkjøperforsikring. Rettshjelpsforsikring gir trygghet og tilgang på profesjonell juridisk hjelp dersom det oppdages uventede feil eller mangler det første året etter overtagelse. Forsikringsselskapet behandler i så fall ethvert mangelskrav kjøper måtte ha overfor selger.
Boligkjøperpakken inkluderer bygningsforsikring for hus og hytte, innboforsikring, flytteforsikring og dobbel rentedekning - i situasjoner hvor kjøper ikke får solgt nåværende primærbolig.
Kjøper mottar ingen særskilt faktura for Boligkjøperpakken da kostnaden det første året legges til kjøpesummen for boligen. Det gjøres oppmerksom på Krogsveen mottar et honorar for denne formidlingen.
Produktark for Boligkjøperpakken ligger vedlagt i salgsoppgaven.
Dersom ikke boligkjøperpakke ønskes kan kun rettshjelpsforsikring, også kalt boligkjøperforsikring, tegnes særskilt via megler. Rettshjelpsforsikringen varer i 5 år fra overtagelse og leveres gjennom Gjensidige. Ta kontakt med megler for ytterligere informasjon.
Selskap og privatpersoner som driver med kjøp/salg/utvikling som ledd i egen næringsvirksomhet kan ikke tegne boligkjøperpakke eller rettshjelpsforsikring.
Budgivning
Forbrukerinformasjon om budgivning er vedlagt denne salgsoppgaven og er også på vår hjemmeside Krogsveen.no. Alle bud og budforhøyelser må inngis skriftlig. I tillegg må legitimasjon være fremlagt sammen med signatur fra budgiver.
Vi oppfordrer til å gi bud elektronisk via GI BUD-knappen på eiendommens hjemmeside på Krogsveen.no. Da vil samtlige vilkår bli oppfylt.
Eventuelle forhøyelser eller endringer av budet kan bekreftes pr SMS eller på e-post. Vi oppfordrer alltid til å kontakte megler pr. telefon i tillegg da forsinkelser i SMS og e-post kan forekomme.
For at budene skal kunne bli behandlet og videreformidlet skriftlig til alle involverte parter, må alle bud ha en tilstrekkelig lang akseptfrist, jf. eiendomsmeglingsforskriften § 6-3.
Selger må også skriftlig akseptere budet før aksept kan formidles til budgiver. Akseptfrist bør derfor være på minimum 30 minutter, og budforhøyelser må derfor skje i god tid før fristens utløp.
Bud i forbrukerforhold kan uansett ikke settes med kortere frist enn kl. 12.00 første virkedag etter siste annonserte visning. I tillegg kan ikke budet ha forbehold om at det skal holdes hemmelig ovenfor øvrige interessenter. Megler har iht lov om eiendomsmegling ikke anledning til å videreformidle disse budene, og de vil dermed heller ikke bli journalført.
Etter at eiendommen er solgt vil kjøper og selger få tilsendt budjournal. Øvrige budgivere kan få utlevert kopi av budjournalen i anonymisert form.
Hvitvaskingsreglene
I henhold til lov om hvitvasking og terrorfinansiering har megler plikt til å gjennomføre kontrolltiltak overfor kunder, herunder fullmektiger. Dette innebærer bl.a. å bekrefte kunders og reelle rettighetshaveres identitet på bakgrunn av fremvist gyldig legitimasjon eller på annen godkjent måte, samt å innhente opplysninger om kundeforholdets formål og tilsiktede art.
Dersom slike kundetiltak ikke kan gjennomføres, kan megler ikke etablere kundeforholdet eller utføre transaksjonen.
Hvis kjøper ikke bidrar til gjennomføring av kundekontrollen og dette fører til at transaksjonen blir forsinket eller ikke kan gjennomføres, vil dette ansees som mislighold av avtalen og gi selger rettigheter etter avhendingslova kapittel 5. I tilfeller der selger ikke bidrar til gjennomføring av løpende kundekontroll underveis i oppdraget, er det selger som misligholder sine forpliktelser etter avtalen og gi kjøper rettigheter etter avhendingslovens kapittel 4. Partene er selv ansvarlige for eventuelle kostnader og ansvar dette kan medføre. Eiendomsmegleren eller eiendomsmeglingsforetaket kan ikke holdes ansvarlig for de konsekvenser dette vil kunne få for partene eller andre som har interesser i eiendomshandelen.
Kjøper oppfordres til å innbetale kjøpesummen som ikke kommer fra låneinstitusjon i én samlet innbetaling fra egen konto i norsk bank. Megler har plikt til å melde fra til Økokrim om eiendomshandler som fremstår som mistenkelige. Melding sendes Økokrim uten at partene varsles.
Personopplysningsloven
I henhold til personopplysningsloven gjør vi oppmerksom på at interessenter kan bli registrert for videre oppfølging.
Lovanvendelse
Generelle bestemmelser
Salgsoppgaven er basert på de opplysningene selger har gitt til megler, den bygningssakyndiges tilstandsrapport, samt opplysninger innhentet fra kommunen, Kartverket og andre tilgjengelige kilder. Det er viktig at kjøper setter seg grundig inn i alle salgsdokumentene, herunder salgsoppgave, tilstandsrapport og selgers egenerklæring. Kjøper anses kjent med forhold som er tydelig beskrevet i salgsdokumentene, og slike forhold kan ikke påberopes som mangler. Dette gjelder uavhengig av om kjøper har lest dokumentene. Alle interessenter oppfordres til å undersøke eiendommen nøye, gjerne sammen med fagkyndig før bud inngis. Kjøper som velger å kjøpe usett kan ikke gjøre gjeldende som mangel noe han burde blitt kjent med ved undersøkelsen.
Dersom det er behov for avklaringer, anbefaler vi at interessenter rådfører seg med eiendomsmegler eller egne rådgivere før det legges inn bud.
En bolig som har blitt brukt i en viss tid, har vanligvis blitt utsatt for slitasje og skader kan ha oppstått. Slik bruksslitasje må kjøper regne med, og det kan avdekkes enkelte forhold etter overtakelse som nødvendiggjør utbedringer. Normal slitasje og skader som nødvendiggjør utbedring, er innenfor hva kjøper må forvente og vil ikke utgjøre en mangel.
Kjøper og selgers rettigheter og plikter reguleres av avtalen mellom partene, samt informasjonen som har vært tilgjengelig for kjøperen i forbindelse med handelen. Avtalen utfylles av avhendingsloven, og det gjelder ulike avtalevilkår avhengig av om kjøper er forbrukerkjøper eller ikke. Dette er nærmere beskrevet nedenfor.
På grunn av ulike avtalevilkår kan selger vurdere bud fra en som ikke er forbruker, ulikt fra en forbrukers bud. Dersom kjøper ikke er forbruker, er selger sitt mulige mangelsansvar begrenset fordi eiendommen selges "som den er". Selger kan ikke ta «som den er»- forbehold overfor en forbrukerkjøper. Selv et lavere bud fra en som ikke er forbruker kan foretrekkes fordi begrensningen i mulig mangelsansvar kan ha egenverdi for selger. Selger står fritt til å forkaste eller akseptere ethvert bud, og er for eksempel ikke forpliktet til å akseptere høyeste bud.
Budgiver skal i budskjema avgi egenerklæring om budgiver er forbruker eller næringsdrivende/ person som hovedsakelig handler som ledd i næringsvirksomhet. Budgivere får informasjon dersom andre bud er inngitt av en som ikke er forbruker.
Forbrukerkjøp - definisjon
Med forbrukerkjøp menes kjøp av eiendom når kjøperen er en fysisk person som ikke hovedsakelig handler som ledd i næringsvirksomhet.
Forbruker – avtalevilkår
Eiendommen har en mangel dersom den ikke er i samsvar med kravene som følger av avtalen, eller det foreligger brudd på bestemmelsene i avhendingsloven §§ 3-2 til 3-8. Hvis eiendommen ikke er i samsvar med det kjøperen må kunne forvente ut ifra alder, type og synlig tilstand, kan det være grunnlag for mangelskrav. Det samme gjelder hvis det er holdt tilbake eller gitt uriktige opplysninger om eiendommen. Dette gjelder likevel bare dersom man kan gå ut ifra at det virket inn på avtalen at opplysningen ikke ble gitt eller at mangelskravet ikke blir rettet i tide på en tydelig måte.
Boligen kan ha en mangel etter avhendingsloven § 3-3 andre ledd, dersom det er avvik mellom opplyst og faktisk innvendig areal, forutsatt at avviket er på 2% eller mer og minimum 1 kvm.
Ved beregning av et eventuelt prisavslag eller erstatning må kjøper selv dekke tap/kostnader opptil et beløp på kr 10 000 (egenandel).
Ikke-forbruker (næringsdrivende) – definisjon
Hvis kjøper er en juridisk person, eller en fysisk person som hovedsakelig handler som ledd i næringsvirksomhet, vil kjøpet ikke anses som et forbrukerkjøp.
Ikke-forbruker – avtalevilkår
Eiendommen har en mangel dersom den ikke er i samsvar med kravene som følger av avtalen.
Eiendommen selges «som den er», og selgers ansvar utover det konkret avtalte er da begrenset etter avhendingsloven § 3-9, første ledd andre setning.
Avhendingsloven § 3-3 andre ledd fravikes, og hvorvidt boligens arealsvikt utgjør en mangel vurderes etter avhendingsloven § 3-8.
Informasjon om kjøpers undersøkelsesplikt, herunder oppfordringen om å undersøke eiendommen nøye, gjelder også for kjøpere som ikke anses som forbrukere.
Det forutsettes at hjemmel overføres til kjøper. Hvis kjøper ikke ønsker hjemmelsoverføring av eiendommen, må det tas forbehold om dette i budet.
Meglers vederlag
Meglers vederlag betales av selger og er avtalt til:
Vederlag: 1,15 % av salgssummen
Minimumsprovisjon er kr 50 000,00
Vederlag:
Kontroll av hjemmel og heftelser kr 3 900,00
Markedsføringspakke kr 29 900,00
Oppgjør kr 8 900,00
Tilrettelegging kr 19 900,00
Visninger 4000,- pr. stk. - 2 GRATIS kr 0,00
Utlegg:
Innhenting av off. oppl. Drammen kommune inkl. tegninger, RFD og feierapport kr 3 422,25
Tinglysing sikring kr 545,00
Andre utgifter:
AX tilstandsrapport enebolig kr 20 625,00
Boligfotografering inkl. drone (evt. tillegg kveldsfoto 3750,-) kr 6 100,00
Boligselgerforsikring Gjensidige kr 25 637,90
Vi er opptatt av verdiskapning, og har knyttet til oss samarbeidspartnere som skal sikre våre kunder de beste produkter og tjenester;
• I forbindelse med forberedelse av salget, innhenter vi informasjon om eiendommen hovedsakelig fra vår samarbeidspartner Amibita.
• Gjensidige leverer boligselgerforsikring og tilbyr bygningsforsikring
• Boligkjøperforsikring leveres av Hiscox og med Sedgwick som skadebehandler, og er formidlet gjennom Gjensidige.
• BN bank tilbyr finansieringsløsninger
• Vår avdeling Krogsveen Pluss tilbyr flyttetjenester som utvask, visningsvask, lager, tømming og transport av flyttelass, i tillegg til å formidle kontakt med Flip for overflateoppussing.
• I forbindelse med overtagelse av eiendommen tilbyr Overo avtale om strøm, alarm og bredbånd.
• Krogsveen er, sammen med øvrige bransjeaktører, medeier i den digitale annonseringsplattformen Hjem som eies av Bomega AS.
Opplysninger om oppdraget
Oppdragsnummer 20-0017/26
Eiendomsmegler Krogsveen AS, avd. Drammen
Nedre Storgate 16, 3015, DRAMMEN
950 007 613
Oppdragets KR-kode KR20.2617
Dato
Sist oppdatert: 18. april 2026 kl. 22:50
Dokumenter
Dokumenter
PDF – 1022 KB
PDF – 541 KB
PDF – 167 KB
PDF – 518 KB
PDF – 312 KB
PDF – 29 KB
PDF – 127 KB
PDF – 392 KB
Område
Legg til steder som er viktige for deg
Visning
Ta kontakt med megler for avtale om privatvisning. Visning kan også avtales med eier direkte på tlf. 400 33 266
Ønsker du kun å bli holdt orientert, kan du fra eiendommens hjemmeside få varsel om solgtpris, eller kontakte megler.
Lurer du på noe?
Unngå doble boligrenter
Vi tilbyr gunstig forsikring.
Vurderer du utleie?
Få et tilbud fra Utleie KrogsveenHva koster lånet?
Sjekk estimert lånekostnadVil du varsles om lignende boliger?
Ved å lagre ditt boligsøk hos oss får du beskjed når vi har en bolig som ligner denne, før den legges ut på markedet!



























































