Ramnvegen 27
5 990 000 kr
115 m²
4 soverom
Komplett salgsoppgave

Vrådal Panorama
Perfekt hytte for den kresne! Magisk utsikt - Alt på en flate - 4 soverom, 2 bad - Høy standard
Prisantydning
5 990 000 krOmkostninger
170 740 krTotalpris
6 160 740 kr
Pris
Bruksareal
125 m²BRA-I (internt bruksareal)
115 m²BRA-E (eksternt bruksareal)
10 m²TBA (terrasse-balkongareal)
118 m²
Areal
Etasje
1Byggeår
2016Soverom
4 soveromBad
2 badTomteareal
939 m² (eiet)Type
Fritidseiendom på fjelletEierform
EietEnergimerke
Gul C
Nøkkelinfo
Vurderer du utleie?
Få et tilbud fra Utleie KrogsveenHva koster lånet?
Sjekk estimert lånekostnadBeskrivelse
Kort om eiendommen
Krogsveen v/Vindum ønsker velkommen til Ramnvegen 27 – Stor og eksklusiv hytte med fantastisk utsikt!
En gjennomført hytte med høy standard, flott planløsning og mange uteplasser. Perfekt for de som ønsker komfort, aktivitet og naturopplevelser i ett.
• 4 soverom, 2 bad og romslig stue/allrom med kvalitetskjøkken
• Store vindusflater – lys, luftig og panoramautsikt
• Flere solrike uteplasser og jacuzzi for ekstra velvære
• Uteboder, parkeringsplass og elbil-lader ved hytten
• Smakfullt innredet med fokus på kvalitet og funksjonalitet
• Flytt rett inn og nyt vakre omgivelser – ute og inne
• Usjenerte uteplasser med storslått utsikt
Velkommen til vakre Vrådal og Vrådal Panorama!
Innhold og byggemåte
Innhold og byggemåte
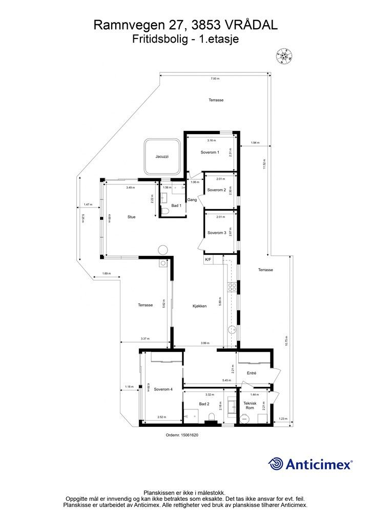
Eiendommen
Ramnvegen 27, 3853 VRÅDAL
Kommunenummer 4028, gårdsnummer 1, bruksnummer 324, ideell andel 1/1
Innhold
Totalt bruksareal BRA: 125 kvm
BRA-i:
1. etasje 115 kvm: Entre, gang, stue, kjøkken, to bad, teknisk rom og fire soverom.
BRA-e:
1. etasje 10 kvm: Bod
Åpent areal:
1. etasje 118 kvm: Terrasse
På godkjente byggetegninger er det inntegnet bod med utvendig adkomst. Soverom 1, 2 og 3 er mindre enn vist, og plassering av entredør er endret fra godkjente byggetegninger. Dette kan være søknadspliktige tiltak. Det er ikke kjent om tiltakene er omsøkt/godkjent, og det er heller ikke tatt stilling til om dette lar seg gjøre.
Vedlagte plantegninger er ikke målbare. De oppgitte arealer er hentet fra rapport datert 10.09.2024 utført av Anticimex AS Sandefjord. Arealene er beregnet og rom er definert etter dagens faktiske bruk, uavhengig av hva som er godkjent av bygningsmyndighetene.
Byggemåte
Selger har fått utarbeidet en tilstandsrapport, dvs. en teknisk gjennomgang av boligen hvor eventuelle avvik, risiko for kjøper og prisoverslag for hva som bør gjøres av oppgradering, er skissert. Se særskilt TGIU (tilstandsgrad ikke undersøkt), samt TG2 og TG3 som viser hva som er avvik fra boligens normale slitasje, alder og type, eller som bør/må utbedres. Rapporten og selgers egenerklæring er en del av salgsoppgaven og må leses nøye før bud inngis. Kjøper overtar ansvaret for de opplysninger som fremkommer av salgsdokumentasjonen, og kan ikke gjøre gjeldende som mangel noe som burde vært kjent eller som ikke kan anses å ha betydning for avtalen.
Hytta er oppført i 2016 og er iht. tilstandsrapporten oppført på støpt betong mot grunn. Yttervegger og tak i trekonstruksjoner. Fasader med liggende trekledning og natursteinsforblending. Saltak tekket med torv. Vinduer og terrassedører med to-lags glass. Ytterdører i sandwichkonstruksjon med glassfelt.
Sammendrag av boligens tilstandsgrad:
TG1 : 72 % | TG2 : 14% | TG3 : 0 % | TGIU : 14 %
Selger har fått utarbeidet en tilstandsrapport for eiendommen. Rapporten er en teknisk gjennomgang av boligen og angir eventuelle byggetekniske avvik. I rapportens sammendrag fremkommer det som takstmannen mener kjøper må være særskilt oppmerksom på, utover normal elde og slitasje, herunder:
TG 2:
* Bad 1: Drenering fra innebygget sisterne er ikke registrert, riss i flisfuger i dusjsonen, elastiske flisfuger har stedvis manglende vedheft, fallforhold på gulv er ikke tilfredsstillende, ikke oppkant ved dør.
* Bad 2: Sluket er isolert inne i dusjsonen, ingen drenering fra innebygget sisterne, elastiske flisfuger har stedvis manglende vedheft, fallforhold gulv er ikke tilfredsstillende.
* Kjøkken: moderate tegn til bomlyd i flisgulv.
* Parkett på soverom 4 har enkelte skader, enkelte løse flisfuger er observert på teknisk rom, moderate tegn til bomlyd under enkelte fliser.
* Det er ikke montert musesperre bak hjørnebord/i ytterhjørner.
TGIU:
* Gjennomføring tilknyttet avtrekksvifte kjøkken er ikke undersøkt grunnet manglende tilkomst.
* Avløpsrørene er skjult og eventuell stakeluke er ikke lokalisert.
* Sentralstøvsuger er ikke funksjonstestet.
* Takkonstruksjonen er lukket, inspeksjon ikke mulig.
* Torvtak. Undertaktekking er ikke undersøkt.
* Grunnmuren er i all hovedsak skjult av terrasse
* Byggegrunnens beskaffenhet er ukjent.
* Fuktmerker/ -symptomer i kjeller/underetg. inkl. eventuell krypekjeller og plate på mark: Ikke undersøkt.
Tilstandsrapporten følger vedlagt i salgsoppgaven for utfyllende informasjon. Interessenter må sette seg inn i denne før bud inngis.
Standard
Velkommen til Ramnvegen 27!
Hytten er oppført i 2016 og holder en gjennomgående høy hyttestandard, både når det gjelder interiør og tekniske installasjoner.
Hytten er oppført på en flate med svært god og gjennomtenkt romløsning. Her er god plass til familie og venner.
Man entrer hytten fra overbygget inngangsparti til en romslig hall med skyvedørsgarderobe og med downlights i tak. Tilliggende har man et teknisk rom som er innredet med plass til vaskemaskin og for øvrig god lagringsplass. Her er utgang ut til overbygget inngangsparti. En praktisk løsning når man kommer inn etter en dag ute i naturen!
Hovedsoverommet er beliggende i denne fløyen og har eget tilliggende bad. Perfekt voksenavdeling! Soverommet har skyvedørsgarderobe, varmepumpe, høy himling og utgang til terrasse mot øst, hvor man kan nyte morgensolen. Badet er flislagt med delikate flisvalg og innredet med dusjhjørne, servant i innredning og vegghengt toalett.
Videre inn i hytten kommer man til oppholdsrommene. Første rommet er kjøkkenet/allrommet, som nok blir hyttens hjerterom!
Her er god plass til spisestue hvor man har plass til både familie og venner, slik at den som kokkelerer har god kontakt med gjestene. Det er stor skyvedør ut til terrasse, hvor man kan nyte morgensol og de flotteste soloppganger for de morgenfriske. Gjennomgående naturlig lys. Kjøkkeninnredningen har svært godt med skapplass og innredet med hvitprofilerte fronter og integrerte hvitevarer som medfølger handelen. Det er integrert kjøl/frys, microovn, stekeovn, platetopp, ventilator og oppvaskmaskin fra byggeår og bruksslitasje må påregnes. Lekker heltre benkeplate på kjøkkenet.
Videre inn i stuen har man store vindusflater som slipper både lys inn og man nyter den fascinerende utsikten til fulle! Her er rom for både salong og go'stoler. Den høye himlingen gir rommet særpreg sammen med de store vindusflatene. Vedovn i stuen for kjøligere sesonger. Også fra stuen har man utgang til terrasse. På denne siden har terrassen har man etablert et boblebad, perfekt etter en lang dag ute for ekstra velvære!
I enden av hytten har man en fløy med soveromsgang, 3 soverom og ekstra bad. Badet er flislagt og innredet med dusjhjørne, servant i innredning og vegghengt toalett.
Det er varmekabler i alle gulv og det er utbredt bruk av downlighst i de fleste rom, lameller i stue og soverom, lys- og varmestyring slik at man har kontroll og kan komme til varm hytte, 300 l varmtvannsbereder, sentralstøvsuger, elbil lader og jacuzzi fra Sundance. Her er det ikke spart på noe!
Bod med utvendig adkomst fra terrassen samt frittstående utebod, slik at man har god plass til aktivitetsutstyr.
Den ekstra gode hyttestandarden bemerkes med følgende tilvalg:
- Downlights i alle rom
- Smart hus styring fra leverandør Control 4
- Varme og lys styring Control 4
- Lydanlegg i stue, kjøkken, hall og masterbedrom med tilgang til radio kanaler og Spotify over Control 4
- Utvendig kamera livestyres av Control 4
- Infravarmere utvendig sør, øst og vest styrt over Control 4
- Display panel Control 4 sentralt plassert i hall som styrer alle funksjoner
- Utvendig downlights under takoverbygg, og veggmontert up- and downlights på alle vegger
- Sentralstøvsuger
- Avtrekksvifte på pipe, gjør det lett å fyre i peisen
-Håndkletørkere på begge bad
- Ladestasjon til el-bil på utvendig bod
Terrasseområdene er fantastiske. Her kan man flytte seg med vær og vind og nyte solen fra tidlig morgen! Uhindret utsikt og lite innsyn fra gjenboere. Hytten bør oppleves for å få med alle de gode inntrykkene man får her!
Løsøre og tilbehør
Vi viser til liste fra Norges Eiendomsmeglerforbund som gjelder fra 01.01.2020 angående løsøre og tilbehør.
Hytten kan selges møblert etter nærmere avtale. Jacuzzi/boblebad ute medfølger handelen.
Oppvarming
Vedovn i stuen.
Varmepumpe på hovedsoverom.
Varmekabler i alle rom.
Dersom beboelsesrom ikke har vegg- eller fastmonterte varmekilder ved visning, følger dette heller ikke med.
Ferdigattest/brukstillatelse
Det foreligger ferdigattest på fritidsbustad, datert 5.1.2021. Denne kan fås ved henvendelse til megler.
Tinglyste heftelser og rettigheter
Eiendommen overdras fri for pengeheftelser.
Det er ingen tinglyste servitutter på eiendommen.
Eventuell adgang til utleie
Fritidseiendommen har ikke separat utleiedel. Det vil normalt være anledning til utleie av hele eiendommen eller enkeltrom, såfremt utleiearealet er bygningsmessig godkjent for varig opphold.
Beliggenhet og tomteforhold
Beliggenhet og tomteforhold
Beliggenhet
Eiendommen har en unik beliggenhet i naturskjønne omgivelser på toppen av Vrådal Panorama, med panoramautsikt over Nisser, Vråvatn og omkringliggende fjell. Området er et rolig og veletablert hyttefelt med direkte tilgang til flotte turmuligheter – både sommer og vinter.
Tomten ligger skrånende, noe som gir fantastiske solforhold og utsikt, samt ski-in/ski-out til alpinanlegget. Her kan man enkelt spenne på skiene og ta turer i preparerte langrennsløyper, eller nyte øvrige turmuligheter året rundt. Helårsvei med bom gir enkel og trygg adkomst, og avgiften er inkludert i fellesutgiftene for hytteeiere.
Vintertid kan man gå direkte fra hytta til alpinsenteret med 18 nedfarter og 8 heiser, tilpasset alle ferdighetsnivåer. For barn finnes eget skilekeområde, skiskole og terrengpark, samt skiutleie. På toppen av bakken finner man Cafè Utsikten og badstue med spektakulær utsikt, samt mulighet for isbad for de som ønsker en ekstra opplevelse.
Det finnes godt preparerte skiløyper med flotte tur- og treningsmuligheter rett fra området. På toppen av bakken går en rundløype på ca. 4 km, og en dagstur til Hægefjell anbefales for de som ønsker lengre turer. I bunnen av skisenteret finnes også flere løyper med ulik lengde og vanskelighetsgrad, og kort kjøretur åpner tilgang til flere oppkjørte løyper i både Vrådal og Nissedal.
I bunnen av bakken tilbys resepsjon, kafé, afterski og flere sosiale aktiviteter. Området har også badeplass, fotballøkke, skatepark, sandvolleyballbane og lekeplasser – alt samlet i nærmiljøet for enkel tilgjengelighet.
Om sommeren og snøfrie perioder byr området på et mangfold av aktiviteter: turstier, sykkelmuligheter, fiskevann, bærområder og flotte naturopplevelser. Vrådal Golfpark ligger kun ca.10 minutter kjøretur unna med en opparbeidet 9-hulls bane, kiosk og kafeteria. Området er også godt egnet for klatring, sykling og langdistanseturer i vakker natur.
Vrådal sentrum med butikker og servicetilbud ligger ca. 10 minutters kjøring unna, noe som gjør området både idyllisk og praktisk.
Adkomst
Når du er i Vrådal følger man skiltene til skisenteret (Vrådal Panorama).
Ved "rundkjøringen" inne på skisenterområdet kjører man rett fram og gjennom bommen. Bomavgift betales med kr 65,- etter utkjøring via Norgesbom, for besøkende/visningsdeltakere.
Følg veien opp mot toppen, og ta til venstre inn siste vei før parkeringsområdet på toppen.
Følg veien innover og hold til høyre, hytten ligger på venstre hånd i en sving mot slutten av veien.
Hytten er skiltet med Krogsveen Til Salgs skilt.
Beskrivelse av tomt
Eiertomt på 939 kvm.
Kanskje en av de flotteste tomtene bebygget i Vrådal, har du muligheten til å sikre deg nå!
Tomten er på nesten ett mål og ligger innerst i blindvei med friområder omkring. Her kan man nyte en fantastisk utsikt utover Vrådal, omkringliggende fjellkjeder og naturskjønne områder.
Hytten er nøye planlagt plassert på tomten for å utnytte sol og utsikt samt hindre innsyn.
Tomten er flat med stor gårdsplass hvor det er godt med parkeringsmuligheter samt skrånende terreng i forkant, mot friområder, med fjell og naturlig vegetasjon.
Uteområder som er opparbeidet ligger slik at man flytter seg med solen - morgensolen nytes med de vakreste soloppganger med utgang fra kjøkken/allrom og derfra følger man solen gjennom hele dagen!
Parkering
Parkering på stor gruset gårdsplass. Elbil-lader er montert og medfølger.
Vei, vann og avløp
Eiendommen har adkomst via privat vei med felles vedlikeholdsansvar.
Eiendommen er tilknyttet kommunalt ledningsnett via private stikkledninger. Eier er selv ansvarlig for private stikkledninger til boligen.
Regulerings-og arealplaner
Eiendommen er regulert til fritidsbebyggelse i henhold til reguleringsplan Vrådal Skisenter Felt B10 datert 25.5.2006 med tilhørende reguleringsbestemmelser.
Utsnitt av plan med tilhørende bestemmelser kan fås ved henvendelse til megler.
Økonomi
Økonomi
Kommunale utgifter
Kommunale avgifter er kr 15.034,- for inneværende år. I dette inngår gebyr for vann, avløp, renovasjon og feiing/tilsyn.
Brannvesenet er pålagt å føre tilsyn med, og å feie pipeløp i alle fritidseiendommer. Det vil kunne medføre kostnader for kjøper til utbedring av evt. fremtidige pålegg og anmerkninger.
Nåværende eier har et strømforbruk på ca 15.500 kWh pr. år (2023). Energiforbruket vil variere ihht bruken. Eier har benyttet hytten mye og lader da også bil.
Hytten har en årlig forsikringspremie på kr 12.000,-.
Privat brøyting ca kr 7.855,- betales årlig til Vrådal Panorama. Det inkluderer da også bompassering for to biler. Dette registreres i app og indeksreguleres årlig.
Brøyting av privat gårdsplass/hyttetun etter egne satser. Dette bestilles i app. Se vedlagte prisoverslag.
Hytten er tilknyttet Altibox. som leverandør av fiber og har avgift på kr 600,- pr. mnd. Tv-tuner/dekoder medfølger ikke.
Utgiftene er basert på nåværende eiers forbruk og avtaler.
Formuesverdi
Formuesverdi for 2022 var kr 1 182 813,- ifølge skatteetaten.
Omkostninger
5 990 000,00 Prisantydning
Omkostninger
149 750,00 Dokumentavgift til staten (2,5% av kjøpesum)
19 900,00 Gjensidige Boligkjøperpakke (valgfri)
545,00 Tinglysing panterettsdokument
545,00 Tinglysing skjøte
--------------------------------------------------------
170 740,00 Omkostninger totalt
--------------------------------------------------------
6 160 740,00 Totalpris inkl. omkostninger
--------------------------------------------------------
Totalpris inkl. omkostninger forutsetter kjøp til prisantydning.
Det tas forbehold om endringer i avgifter og gebyrer.
Tilbud om lånefinansiering
Megler formidler gjerne kontakt med rådgiver hos vår samarbeidspartner BN Bank. De har konkurransedyktige betingelser samt rask og løsningsorientert behandling av din lånesøknad. Krogsveen mottar et honorar for denne formidlingen.
Betalingsbetingelser
Kjøpesum inkludert omkostninger, samt pantedokument tilknyttet eventuelt lån, skal være disponibelt hos megler 2 virkedager før overtagelsen.
Annen viktig informasjon
Annen viktig informasjon
Eier
Terje Rønningen
Konsesjon
Eiendommen er ikke konsesjonspliktig, men det er boplikt i Kviteseid kommune. For at eiendommen skal kunne overskjøtes må kjøper signere på egenerklæring om konsesjonsfrihet om at boplikten ikke gjelder for denne eiendommen.
Overtakelse
Etter nærmere avtale.
Boligselgerforsikring
Selger har i forbindelse med salget tegnet boligselgerforsikring hos Anticimex. Vedlagt salgsoppgaven følger selgers egenerklæringsskjema og tilstandsrapport. Interessenter må sette seg inn i dokumentene før bud inngis.
Boligselgerforsikringen dekker selgers ansvar etter avhendingsloven. Dersom kjøper oppdager forhold ved eiendommen som man mener utgjør en mangel ved eiendommen, vil Claims Handling AS behandle reklamasjonen på vegne av selger. Forsikringsvilkår kan fås ved henvendelse til megler.
Boligkjøperforsikring
Innen kontraktsmøtet må kjøper ta stilling til om det ønskes å bestille Boligkjøperpakken gjennom Gjensidige. I denne gunstige pakken er boligen ferdig forsikret og inkluderer rettshjelpsforsikring, også kalt Boligkjøperforsikring. Rettshjelpsforsikring gir trygghet og tilgang på profesjonell juridisk hjelp dersom det oppdages uventede feil eller mangler det første året etter overtagelse. Forsikringsselskapet behandler i så fall ethvert mangelskrav kjøper måtte ha overfor selger.
Boligkjøperpakken inkluderer bygningsforsikring for hus og hytte, innboforsikring, flytteforsikring og dobbel rentedekning - i situasjoner hvor kjøper ikke får solgt nåværende primærbolig.
Kjøper mottar ingen særskilt faktura for Boligkjøperpakken da kostnaden det første året legges til kjøpesummen for boligen. Det gjøres oppmerksom på Krogsveen mottar et honorar for denne formidlingen.
Produktark for Boligkjøperpakken ligger vedlagt i salgsoppgaven.
Dersom ikke boligkjøperpakke ønskes kan kun rettshjelpsforsikring, også kalt boligkjøperforsikring, tegnes særskilt via megler. Rettshjelpsforsikringen varer i 5 år fra overtagelse og leveres gjennom Gjensidige. Ta kontakt med megler for ytterligere informasjon.
Selskap og privatpersoner som driver med kjøp/salg/utvikling som ledd i egen næringsvirksomhet kan ikke tegne boligkjøperpakke eller rettshjelpsforsikring.
Budgivning
Forbrukerinformasjon om budgivning er vedlagt denne salgsoppgaven og er også på vår hjemmeside www.krogsveen.no. Alle bud og budforhøyelser må inngis skriftlig. I tillegg må legitimasjon være fremlagt sammen med signatur fra budgiver.
Vi oppfordrer til å gi bud elektronisk via GI BUD-knappen på eiendommens hjemmeside på Krogsveen.no. Da vil samtlige vilkår bli oppfylt.
Eventuelle forhøyelser eller endringer av budet kan bekreftes pr SMS eller på e-post. Vi oppfordrer alltid til å kontakte megler pr. telefon i tillegg da forsinkelser i SMS og e-post kan forekomme.
For at budene skal kunne bli behandlet og videreformidlet skriftlig til alle involverte parter, må alle bud ha en tilstrekkelig lang akseptfrist, jf. eiendomsmeglingsforskriften § 6-3.
Selger må også skriftlig akseptere budet før aksept kan formidles til budgiver. Akseptfrist bør derfor være på minimum 30 minutter, og budforhøyelser må derfor skje i god tid før fristens utløp.
Bud kan uansett ikke settes med kortere frist enn kl. 12.00 første virkedag etter siste annonserte visning.
Etter at eiendommen er solgt vil kjøper og selger få tilsendt budjournal. Øvrige budgivere kan få utlevert kopi av budjournalen i anonymisert form.
Hvitvaskingsreglene
I henhold til lov om hvitvasking og terrorfinansiering har megler plikt til å gjennomføre kontrolltiltak overfor kunder, herunder fullmektiger. Dette innebærer bl.a. å bekrefte kunders og reelle rettighetshaveres identitet på bakgrunn av fremvist gyldig legitimasjon eller på annen godkjent måte, samt å innhente opplysninger om kundeforholdets formål og tilsiktede art.
Dersom slike kundetiltak ikke kan gjennomføres, kan megler ikke etablere kundeforholdet eller utføre transaksjonen.
Hvis kjøper ikke bidrar til gjennomføring av kundekontrollen og dette fører til at transaksjonen blir forsinket eller ikke kan gjennomføres, vil dette ansees som mislighold av avtalen og gi selger rettigheter etter avhendingslova kapittel 5. I tilfeller der selger ikke bidrar til gjennomføring av løpende kundekontroll underveis i oppdraget, er det selger som misligholder sine forpliktelser etter avtalen og gi kjøper rettigheter etter avhendingslovens kapittel 4. Partene er selv ansvarlige for eventuelle kostnader og ansvar dette kan medføre. Eiendomsmegleren eller eiendomsmeglingsforetaket kan ikke holdes ansvarlig for de konsekvenser dette vil kunne få for partene eller andre som har interesser i eiendomshandelen.
Kjøper oppfordres til å innbetale kjøpesummen som ikke kommer fra låneinstitusjon i én samlet innbetaling fra egen konto i norsk bank. Megler har plikt til å melde fra til Økokrim om eiendomshandler som fremstår som mistenkelige. Melding sendes Økokrim uten at partene varsles.
Personopplysningsloven
I henhold til personopplysningsloven gjør vi oppmerksom på at interessenter kan bli registrert for videre oppfølging.
Lovanvendelse
Generelle bestemmelser
Salgsoppgaven er basert på de opplysningene selger har gitt til megler, den bygningssakyndiges tilstandsrapport, samt opplysninger innhentet fra kommunen, Kartverket og andre tilgjengelige kilder. Det er viktig at kjøper setter seg grundig inn i alle salgsdokumentene, herunder salgsoppgave, tilstandsrapport og selgers egenerklæring. Kjøper anses kjent med forhold som er tydelig beskrevet i salgsdokumentene, og slike forhold kan ikke påberopes som mangler. Dette gjelder uavhengig av om kjøper har lest dokumentene. Alle interessenter oppfordres til å undersøke eiendommen nøye, gjerne sammen med fagkyndig før bud inngis. Kjøper som velger å kjøpe usett kan ikke gjøre gjeldende som mangel noe han burde blitt kjent med ved undersøkelsen.
Dersom det er behov for avklaringer, anbefaler vi at interessenter rådfører seg med eiendomsmegler eller egne rådgivere før det legges inn bud.
En bolig som har blitt brukt i en viss tid, har vanligvis blitt utsatt for slitasje og skader kan ha oppstått. Slik bruksslitasje må kjøper regne med, og det kan avdekkes enkelte forhold etter overtakelse som nødvendiggjør utbedringer. Normal slitasje og skader som nødvendiggjør utbedring, er innenfor hva kjøper må forvente og vil ikke utgjøre en mangel.
Kjøper og selgers rettigheter og plikter reguleres av avtalen mellom partene, samt informasjonen som har vært tilgjengelig for kjøperen i forbindelse med handelen. Avtalen utfylles av avhendingsloven, og det gjelder ulike avtalevilkår avhengig av om kjøper er forbrukerkjøper eller ikke. Dette er nærmere beskrevet nedenfor.
På grunn av ulike avtalevilkår kan selger vurdere bud fra en som ikke er forbruker, ulikt fra en forbrukers bud. Dersom kjøper ikke er forbruker, er selger sitt mulige mangelsansvar begrenset fordi eiendommen selges "som den er". Selger kan ikke ta «som den er»- forbehold overfor en forbrukerkjøper. Selv et lavere bud fra en som ikke er forbruker kan foretrekkes fordi begrensningen i mulig mangelsansvar kan ha egenverdi for selger. Selger står fritt til å forkaste eller akseptere ethvert bud, og er for eksempel ikke forpliktet til å akseptere høyeste bud.
Budgiver skal i budskjema avgi egenerklæring om budgiver er forbruker eller næringsdrivende/ person som hovedsakelig handler som ledd i næringsvirksomhet. Budgivere får informasjon dersom andre bud er inngitt av en som ikke er forbruker.
Forbrukerkjøp - definisjon
Med forbrukerkjøp menes kjøp av eiendom når kjøperen er en fysisk person som ikke hovedsakelig handler som ledd i næringsvirksomhet.
Forbruker – avtalevilkår
Eiendommen har en mangel dersom den ikke er i samsvar med kravene som følger av avtalen, eller det foreligger brudd på bestemmelsene i avhendingsloven §§ 3-2 til 3-8. Hvis eiendommen ikke er i samsvar med det kjøperen må kunne forvente ut ifra alder, type og synlig tilstand, kan det være grunnlag for mangelskrav. Det samme gjelder hvis det er holdt tilbake eller gitt uriktige opplysninger om eiendommen. Dette gjelder likevel bare dersom man kan gå ut ifra at det virket inn på avtalen at opplysningen ikke ble gitt eller at mangelskravet ikke blir rettet i tide på en tydelig måte.
Boligen kan ha en mangel etter avhendingsloven § 3-3 andre ledd, dersom det er avvik mellom opplyst og faktisk innvendig areal, forutsatt at avviket er på 2% eller mer og minimum 1 kvm.
Ved beregning av et eventuelt prisavslag eller erstatning må kjøper selv dekke tap/kostnader opptil et beløp på kr 10 000 (egenandel).
Ikke-forbruker (næringsdrivende) – definisjon
Hvis kjøper er en juridisk person, eller en fysisk person som hovedsakelig handler som ledd i næringsvirksomhet, vil kjøpet ikke anses som et forbrukerkjøp.
Ikke-forbruker – avtalevilkår
Eiendommen har en mangel dersom den ikke er i samsvar med kravene som følger av avtalen.
Eiendommen selges «som den er», og selgers ansvar utover det konkret avtalte er da begrenset etter avhendingsloven § 3-9, første ledd andre setning.
Avhendingsloven § 3-3 andre ledd fravikes, og hvorvidt boligens arealsvikt utgjør en mangel vurderes etter avhendingsloven § 3-8.
Informasjon om kjøpers undersøkelsesplikt, herunder oppfordringen om å undersøke eiendommen nøye, gjelder også for kjøpere som ikke anses som forbrukere.
Det forutsettes at hjemmel overføres til kjøper. Hvis kjøper ikke ønsker hjemmelsoverføring av eiendommen, må det tas forbehold om dette i budet.
Rett til fritt å velge megler
Valg av eiendomsmeglingsforetak skal være frivillig. Eiendomsmeglingsforetak kan ikke inngå oppdrag om eiendomsmegling dersom inngåelsen av oppdraget er satt som vilkår i avtale om annet enn eiendomsmegling, f.eks. tilbud om lån eller andre banktjenester, jf. Lov om eiendomsmegling § 6-3 (3)
Meglers vederlag
Meglers vederlag betales av selger og er avtalt til:
Vederlag: 1,25% av salgssummen
Tilrettelegging fra kr 17.000,-
Oppgjør: kr 7.500,-
Markedspakke på fritidsbolig: kr 26.000,-
Visninger: kr 2.500,- pr. visning
Oppslag eiendomsregister: kr 2.900,-
Megler har i tillegg krav på dekning av utlegg.
Opplysninger om oppdraget
Oppdragsnummer 22-0301/24
Eiendomsmegler Krogsveen AS, avd. Sandefjord
Jernbanealléen 13, 3210, SANDEFJORD
950 007 613
Oppdragets KR-kode KR22.24301
Dato
Sist oppdatert: 16. april 2026 kl. 11:36
Dokumenter
Dokumenter
PDF – 655 KB
PDF – 200 KB
PDF – 750 KB
PDF – 936 KB
PDF – 312 KB
PDF – 29 KB
PDF – 127 KB
PDF – 392 KB
Område
Legg til steder som er viktige for deg
Visning
For å delta på visning, ber vi om at du melder deg på. Da sikrer vi at du får nødvendig informasjon og at det er satt av tilstrekkelig med tid. Kontakt megler dersom annet tidspunkt ønskes. Husk å lese salgsoppgaven før visningen, så du stiller forberedt. NB. Visning utgår dersom det ikke er noen påmeldte.
Visning i påsken etter avtale med megler!
Ta kontakt med megler for avtale om privatvisning.
Ønsker du kun å bli holdt orientert, kan du fra eiendommens hjemmeside få varsel om solgtpris, eller kontakte megler.
Lurer du på noe?
Vurderer du utleie?
Få et tilbud fra Utleie KrogsveenHva koster lånet?
Sjekk estimert lånekostnadVil du varsles om lignende boliger?
Ved å lagre ditt boligsøk hos oss får du beskjed når vi har en bolig som ligner denne, før den legges ut på markedet!











![Kjøkken med hvitprofilerte fronter og integrerte hvitevarer fra byggeår [ 2016 ]](https://cdn.sanity.io/images/u9ed36i9/production/f32e58a5a928237bf4ded29218d80159872d45fb-1536x1024.jpg?fp-x=0.5&fp-y=0.5&w=640&h=360&q=90&fit=crop&auto=format)





















































