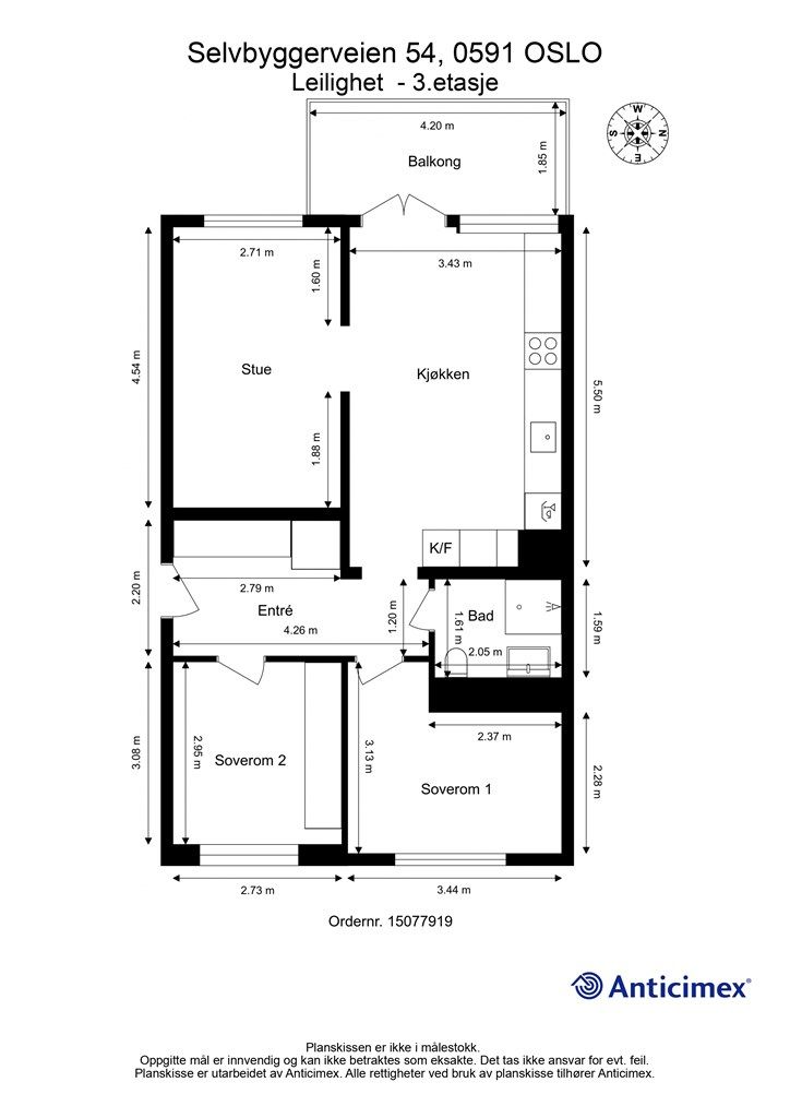
Selvbyggerveien 54
5 880 000 kr
66 m²
2 soverom
Solgt

Presenteres av
Hanne PettersenTONSENHAGEN
Skal du på én visning i Skauen borettslag i år så er det denne! UNIK 3-roms m/solrik balkong. Garasje med elbil-lader*
Prisantydning
5 880 000 krAndel fellesgjeld
191 870 krOmkostninger
19 295 krTotalpris
6 091 165 kr
Pris
Bruksareal
73 m²BRA-I (internt bruksareal)
66 m²BRA-E (eksternt bruksareal)
7 m²TBA (terrasse-balkongareal)
8 m²
Areal
Etasje
3Byggeår
1953Soverom
2 soveromBad
1 badType
AndelsleilighetEierform
AndelFasiliteter
Balkong/TerrasseFellesutgifter
6 803 krEnergimerke
Lysegrønn C
Nøkkelinfo
Unngå doble boligrenter
Vi tilbyr gunstig forsikring.
Vurderer du utleie?
Få et tilbud fra Utleie KrogsveenHva koster lånet?
Sjekk estimert lånekostnadBeskrivelse
Kort om eiendommen
Leiligheten ble pusset opp i 2022 og bærer preg av en spennende planløsning og et lekkert materialvalg - her bor du høyt, frodig og fritt uten innsyn!
Denne leiligheten skiller seg ut både på standard og beliggenhet.
Må virkelig oppleves!
Skauen borettslag ligger i markagrensen og er omringet av store grøntareal med fotballbaner, lekeplasser, ski/-turløyper, slalåmbakke, skøytebane og badedam.
Lekkert kjøkken og modernisert bad 2022
Solrik, vestvendt balkong på 8 kvm
Kjeller-/loftsbod på 4 og 9 kvm (gulvareal)
Nye sikringer og nytt, skjult el-anlegg 2022
Garasje med elbillader kan kjøpes separat*
Nye vinduer/balkongdører fra 2024
Kort vei til kollektiv- og servicetilbud
Sykkelbod i oppgangen
Felles smørebod, trimrom, utleielokale, vaskeri og hobbyrom
Område
Legg til steder som er viktige for deg
På flyttefot? Tenk kjøp og salg samtidig.
Få din egen rådgiver gjennom hele kjøps- og salgsprosessen. Det starter med en verdivurdering.
Unngå doble boligrenter
Vi tilbyr gunstig forsikring.
Vurderer du utleie?
Få et tilbud fra Utleie KrogsveenHva koster lånet?
Sjekk estimert lånekostnadVil du varsles om lignende boliger?
Ved å lagre ditt boligsøk hos oss får du beskjed når vi har en bolig som ligner denne, før den legges ut på markedet!
På flyttefot? Slik gjør vi det enklere for deg
Skreddersydd flyttepakke
Vi fikser håndverkere, vask, pakking, lagring og transport, og legger ut for utgiftene underveis.
Hjelp med både kjøp og salg
Hos oss har du din egen rådgiver gjennom hele kjøps- og salgsprosessen.
Hjelp til finansiering
Vårt samarbeid med BN Bank sikrer deg rask og løsningsorientert hjelp, til konkurransedyktige betingelser.

