Komplett salgsoppgave

Kastanjeveien 52

2 250 000 kr
47 m²
1 soverom
Velkommen til Kastanjeveien 52!
Velkommen til Kastanjeveien 52!
Kart
Redesign på Hjem.no
Del
Rune Sirnes
Presenteres av
Rune Sirnes
Åssiden
Praktisk og arealeffektiv 2-roms eierleilighet beliggende i 1. etasje. Innglasset balkong. Garasjeplass. Rett v/marka.

Unngå doble boligrenter

Vi tilbyr gunstig forsikring.
Sjekk estimert lånekostnad

    Pris

  • Prisantydning
    2 250 000 kr
  • Omkostninger
    67 290 kr
  • Totalpris
    2 317 290 kr

    Areal

  • BRUKSAREAL
    66 m²
  • BRA-I (internt bruksareal)
    47 m²
  • BRA-E (eksternt bruksareal)
    4 m²

    Nøkkelinfo

  • Etasje
    1
  • Byggeår
    1977
  • Soverom
    1 soverom
  • Bad
    1 bad
  • Type
    Eierleilighet
  • Eierform
    Eierseksjon
  • Fasiliteter
    Garasje/P-plass og Balkong/Terrasse
  • Fellesutgifter
    3 867 kr
  • Energimerke
    Rød F

Visning

Privatvisninger avholdes fortløpende. Trykk på "Visningspåmelding" eller kontakt megler på telefon/epost for å avtale dag/klokkeslett for privatvisning.
Lurer du på noe?

Beskrivelse

Kort om eiendommen

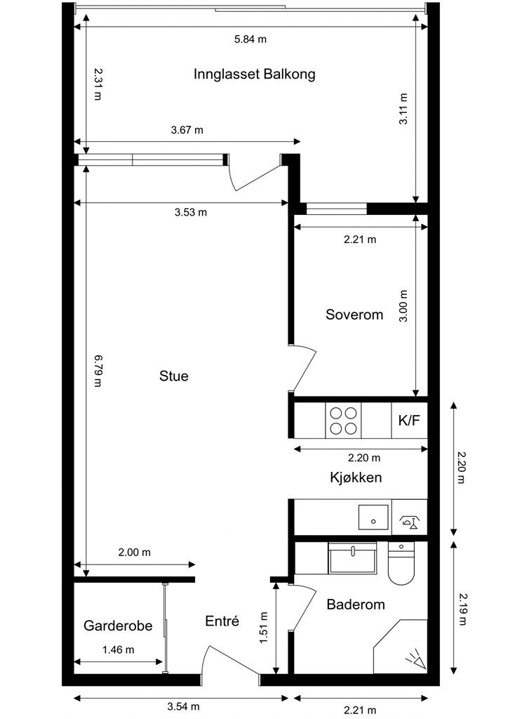
Praktisk og arealeffektiv 2-roms eierleilighet beliggende i 1. etasje.
  • Stue med delåpen løsning mot kjøkkenet
  • Kjøkken med god skap- og skuffeplass
  • Bad med dusjkabinett og opplegg for vaskemaskin
  • Garderobe på soverom og i gang
  • Det er noe behov for oppussing/oppgradering
  • Lagringsplass i disponibel bod og matbod i 1. etasje
  • Innglasset balkong på ca. 15 kvm med skyvbare glassfelt
  • Boligblokken er beliggende i høyden på Åssiden
  • Disponibel parkeringsplass i felles garasje (planlagt nytt garasjeanlegg med takhage)
  • Kort gangavstand til bussholdeplass med forbindelser til Drammen sentrum
  • Ca. 10 min kjøreavstand til Drammen sentrum med togstasjon, bussknutepunkt og sentrumsfasiliteter Velkommen til visning!
  • Innhold og byggemåte

    Eiendommen

    Kastanjeveien 52, 3026 DRAMMEN
    Kommunenummer 3301, gårdsnummer 116, bruksnummer 347, seksjonsnummer 46, ideell andel 1/1

    Innhold

    BRA-i (internt bruksareal)
    1. etasje:
    47 kvm: Stue, kjøkken, bad, soverom og gang.
    BRA-e (eksternt bruksareal)
    1. etasje:
    4 kvm: Bod i felles underetasje.
    BRA-B (innglasset balkong)
    1. etasje: 15 kvm.
    De oppgitte arealer er hentet fra rapport utført av Steffen Hegle-Olsen. Arealene er beregnet og rom er definert etter dagens faktiske bruk, uavhengig av hva som er godkjent av bygningsmyndighetene.

    Byggemåte

    Bygningen er iht. tilstandsrapport, oppført på grunnmur av betong. Boligblokken er fundamentert med betong på oppkultet grunn. Etasjeskiller er av betongdekke. Yttervegger består av mur/betong og tre, utvendig kledd med fasadeplater. Takkonstruksjonen består av typen flatt tak, utvendig tekket med papp / folie. Bygningen har malte trevinduer med 2-lags glass fra byggeår. Bygningen har malt balkongdør i tre og Brann- og lydklassifisert entrédør. Les forøvrig mer om byggemåte og den tekniske tilstanden i rapporten.
    Tilstandsrapporten og selgers egenerklæring er vedlagt salgsoppgaven. Interessenter må sette seg inn i dokumentene før bud inngis.

    Standard

    Felles overbygget inngangsparti med videre trappeadkomst til leilighetens etasjeplan (1. etasje). Leiligheten disponerer en bod på ca. 4 kvm og en matbod i felles 1. etasje (samme etasje som leiligheten). Beboerne har tilgang til felles sykkelbod. Det opplyses om at det nye garasjeanlegget vil få anlagt felles hage på taket, med lekeplass, bordtennisbord, grillplass og flere uteplasser. Iht. forslag fra ekstraordinært årsmøte datert 23.05.2024 har nåværende parkeringshus en høyde på 8,8 m (over dekke plan 1), hvorav forslaget er på 6,8 m (over dekke plan 1). Se vedlagte tegninger i salgsoppgaven.
    Stue: Stue med sofaområde og spiseplass. Delåpen løsning mot kjøkkenet, det er etablert skyvevegg foran kjøkkenet. Belegg på gulv, tapet på vegger og malte plater i himling. Utgang til innglasset balkong på ca. 15 kvm med skyvbare glassfelt, terrassebord og utvendig downlights i tak.
    Kjøkken: Kjøkken med over- og underskap i hvit samt glatt utførelse. Lysarmatur under overskap. Benkeplate av laminat. Videre er kjøkkenet utstyrt med dobbeloppvaskkum og ventilator. Opplegg for oppvaskmaskin, komfyr og frittstående kjøle-/fryseskap. Belegg på gulv, tapet på vegger og malte plater i himling.
    Bad: Servant over servantskap i hvit og glatt utførelse. Tilsvarende utførelse på to vegghengte skap. Videre er badet utstyrt med gulvstående toalett og dusjkabinett. Opplegg for vaskemaskin. Belegg på gulv, fliser på vegger og malt himling.
    Soverom: Skyvedørsgarderobe i glatt utførelse. Belegg på gulv, tapet på vegger og malte plater i himling.
    Gang: Skyvedørsgarderobe med speilfronter. Garderobeskap i profilert utførelse og glassfronter. Belegg på gulv, tapet på vegger og malte plater i himling.
    Generelt om boligen: Leiligheten er tilknyttet felles varmtvann. Sikringsskap med skrusikringer, plassert i felles gang. Det er utført el-tilsyn i 2025, hvor det var ingen konstaterte avvik.
    Selger har fått utarbeidet en tilstandsrapport for eiendommen, dvs. en teknisk gjennomgang av boligen hvor eventuelle avvik, risiko for kjøper og prisoverslag for hva som bør gjøres av oppgradering, er skissert. Se særskilt TGIU (tilstandsgrad ikke undersøkt), samt TG2 og TG3 som viser hva som er avvik fra boligens normale slitasje, alder og type, eller som bør/må utbedres. Rapporten og selgers egenerklæring er en del av salgsoppgaven og må leses nøye før bud inngis. Kjøper overtar ansvaret for de opplysninger som fremkommer av salgsdokumentasjonen, og kan ikke gjøre gjeldende som mangel noe som burde vært kjent eller som ikke kan anses å ha betydning for avtalen.
    I rapporten fremkommer det som takstmannen mener kjøper må være særskilt oppmerksom på, dette gjelder blant annet (se utfyllende tekst i rapporten):
    Følgende kontrollpunkter/forhold har blitt tildelt TG2:
    - Vinduer og dører: Generell slitasjegrad på vinduer, slitte tettelister og noe værslitt treverk.
    - Innvendige overflater: Begrenset mulighet for fullstendig visuell inspeksjon (pga. gjenstander), hull/sår i gulvbelegg og overflater av eldre dato.
    - Radon: Ikke foretatt radonmålinger (bygget er heller ikke utført med radonsperre) og eiendommen ligger i et område med "usikker" aktsomshetsgrad iht. radonkart fra NGU.
    - Bad: Preg av fukt- og dampbelastning i himling over dusj, avflassing i malingssjiktet (himling), preg av alder samt slitasje på gulvbelegg, rift i gulvbelegg, for liten høydeforskjell fra slukrist til gulv ved terskel, svelling på baderomsinnredning og drypplekkasje fra servantarmatur.
    - Kjøkken: Høy slitasjegrad på kjøkkeninnredning, enkelte skapdører henger noe, bruksmerker/skader på innredningen og ikke anbefalt med kjøkkenvifte som har kullfilter.
    - Vannledninger: Alder på innvendige vannledninger.
    - Avløpsrør: Alder på innvendige avløpsledninger.
    Følgende kontrollpunkter/forhold har blitt tildelt TG3:
    - Bad: Tettesjikt pga. alder (ikke registrert noe unormalt) og ikke tilfredsstillende tettesjikt på vegger.
    Følgende kontrollpunkter/forhold har blitt tildelt TGIU (tilstandsgrad ikke undersøkt):
    - Varmtvannstank: Det er sentralanlegg for varmtvann.
    Det anbefales ytterligere undersøkelser av disse punktene.
    Se vedlagt tilstandsrapport for supplerende informasjon vedrørende boligens tilstand.

    Løsøre og tilbehør

    Hvitevarer på kjøkkenet medfølger ikke i handelen.
    Videre vises det til liste fra Norges Eiendomsmeglerforbund angående løsøre og tilbehør. Produkter og installasjoner som medfølger overdras uten noen form for garantier, utover eventuell gjenværende leverandørgaranti.

    Oppvarming

    Boligen er basert på elektrisk oppvarming ved evt. panelovner.
    Dersom det ikke er vegg- eller fastmonterte varmekilder i beboelsesrom ved visning, følger dette heller ikke med.

    Ferdigattest/brukstillatelse

    Drammen kommune opplyser om at det ikke foreligger ferdigattest på eiendommen, men midlertidig brukstillatelse ble gitt for oppføring av 4 blokker og 2 parkeringshus datert 10.06.1977.
    Det gjøres oppmerksom at det ikke lenger utstedes ferdigattest på tiltak det er søkt om før 1998 jf. plan- og bygningsloven §21-10. Kommunen vil ikke kreve ferdigattest for disse tiltakene og vil avvise eventuelle søknader. Bestemmelsen innebærer ikke at tiltak med manglende søknad blir lovlige, men at man ikke trenger å avslutte gamle byggesaker. Normalt sett kreves ferdigattest for alle søknadspliktige tiltak som gjøres etter plan - og bygningsloven.
    Kjøper overtar eiendommen slik den framstår på visning.

    Tinglyste heftelser og rettigheter

    Leiligheten overdras fri for pengeheftelser, med unntak av sameiets tinglyste panterett:
    Som sikkerhet for den enkelte seksjonseiers forpliktelser overfor sameiet, er det tinglyst et pant i hver seksjon til sameiet på kr 20.000,- med prioritet etter 90% av lånetakst.
    De andre seksjonseierne har lovbestemt panterett i seksjonen for krav mot seksjonseieren som følger av sameieforholdet, jf. eierseksjonslovens § 31. Pantet er begrenset oppad til 2G, (G = folketrygdens grunnbeløp). I tillegg har sameiet tinglyst panterett som nevnt over.
    Tinglyst seksjoneringsbegjæring
    Dagboknummer: 5185
    Tinglysningsdato: 29.06.1984
    Omhandler seksjonering av eiendommen: Gjeldende seksjon med seksjonsnummer 46, boligformål, sameiebrøk 473/48940.
    Tinglyst reseksjonering
    Dagboknummer: 949
    Tinglysningsdato: 01.02.1985
    Omhandler reseksjonering av eiendommen: Gjeldende seksjon med seksjonsnummer 46, boligformål, sameiebrøk 473/50290.
    Det er tinglyst 3 servitutter på sameiets eiendom. Disse omhandler blant annet bestemmelser om bebyggelse, diverse ledninger, benyttelse, trafostasjon/kiosk m.m. Ingen av disse har direkte betydning for bruken av denne boligen.
    Servituttene vil følge eiendommen. Kjøpers bank vil få pant etter ovennevnte heftelser og servitutter som ikke skal slettes ved overdragelse.

    Eventuell adgang til utleie

    Leiligheten kan leies ut såfremt leiligheten har forsvarlige radonverdier. Leietaker må følge sameiets vedtekter og ordensregler på lik linje som eier. Sameiets styre skal underrettes skriftlig om alle leieforhold, senest 14 dager etter utleie.
    Selger opplyser om at det er utført radonmåling i 2024 og sameiets styre har iverksatt tiltak.
    Iflg. vedtektene er det bestemmelser om utleie til Airbnb e.l./korttidsutleie som seksjonseiere må forholde seg til. Vedtektene kan fås ved henvendelse til megler.

    Diverse

    Leiligheten har vært utleid. Selger har ikke bebodd eiendommen og har derfor ikke kunnskap om eiendommens tilstand.
    Vi er opptatt av verdiskapning, og har knyttet til oss samarbeidspartnere som skal sikre våre kunder de beste produkter og tjenester; 
    •    Gjensidige leverer boligselgerforsikring og tilbyr bygningsforsikring
    •    Boligkjøperforsikring leveres av Hiscox og med Sedgwick som skadebehandler, og er formidlet gjennom Gjensidige.
    •    BN bank tilbyr finansieringsløsninger
    •    Vår avdeling Krogsveen Pluss tilbyr flyttetjenester som utvask, visningsvask, lager, tømming og transport av flyttelass, i tillegg til å formidle kontakt med Flip for overflateoppussing.
    •    I forbindelse med overtagelse av eiendommen tilbyr Overo avtale om strøm, alarm og bredbånd.
    •    Krogsveen er, sammen med øvrige bransjeaktører, medeier i den digitale annonseringsplattformen Hjem.

    Energimerking

    Komplett energiattest inkludert oppvarmingskarakter fås ved henvendelse til megler eller lastes ned fra www.krogsveen.no.

    Beliggenhet og tomteforhold

    Beliggenhet

    Boligblokken er beliggende i høyden på Åssiden. Eiendommen grenser til friområder i bakkant av boligblokkene. Nærhet til attraktive marka med lysløyper samt populært skisenter og til Landfalltjern med fine bademuligheter.
    Åssiden har meget gode fritids- og sportstilbud, med blant annet Skimore Drammen (tidligere Drammen skisenter) som kan tilby alpinanlegg (vinterstid), terrengsykling, klatrepark og zipline på sommerstid. Åssiden IF er et aktivt idrettslag med bl.a. allidrett, håndball og fotball, se foreningens hjemmeside på www.aif.no. Berskaug hallen med mulighet for ballspill m.m. og Berskaug idrettsplass med fotballbaner, skøytebane og tennisanlegg. Flere treningssentre i nærmiljøet.
    Kort gangavstand til bussholdeplass langs Kastanjeveien med avganger til Drammen sentrum, se www.brakar.no for rutetider. Vy Ekspressbuss til Oslo og Notodden i tillegg er det lokalbuss mot Mjøndalen og Solbergelva langs Rosenkrantzgata. Fra Drammen- og Gulskogen togstasjon tar toget deg til Oslo på ca. 35-40 minutter, se www.vy.no for ekspressbuss- og togavganger. Det gjøres oppmerksom på at regjeringen har vedtatt en nedleggelse av Flytoget fra og med 2028, hvor Vy vil overta trafikken på strekningene. Generelt god offentlig kommunikasjon mot Kongsberg, Oslo og Tønsberg fra Drammen sentrum.

    Adkomst

    Det vil bli skiltet med Krogsveen visningsskilt ved fellesvisninger. Se kart i nettannonse eller Google Maps for nærmere veibeskrivelse. Velkommen til visning!

    Barnehager, skoler og fritid

    Godt sammensatt tilbud av private og offentlige barnehager.
    Barnehager: Åssiden barnehage, Dalgårdsveien barnehage.
    Skoler: Aronsløkka barneskole og Kjøsterud ungdomsskole.
    Drammen kommune har tre private barne- og ungdomsskoler, Drammen Realfagsskole Heltberg, Norlights Montessoriskole Drammen og Rosendal skole (Mjøndalen).
    Det ligger flere videregående skoler i Drammen og Lier, samt Universitetet i Sørøst-Norge som har campus på Papirbredden i Drammen, for mer informasjon se www.usn.no.
    Dersom skole- og barnehagetilbud er av betydning for kjøpet, ber vi om at det rettes en særskilt henvendelse til kommunen for oppdatert informasjon.

    Beskrivelse av tomt

    Eiet tomt på 9 030 kvm som tilhører sameiet. Tomten er fellesareal. Tomten er pent opparbeidet med gressplen, trær, prydbusker og diverse beplantninger. Hyggelige sitteområder på fellesarealet. Asfalterte gang- og kjøreveier.

    Parkering

    Leiligheten disponerer en parkeringsplass i felles garasjeanlegg, hver seksjonseier eier en lik andel i garasjelaget.
    Sameiet er i en prosess vedrørende riving av eksisterende garasjer og oppføring av nytt garasjeanlegg. Det vil bli tilrettelagt for lading av el-bil i det nye garasjeanlegget iflg. selger. Se punkt om sameiet for mer informasjon.
    Øvrig gjesteparkering på oppmerkede parkeringsplasser (ved oppgang 48, nedkjøring til nivå 1 i parkeringshuset og ved Kastanjeveien 56).
    Det gjøres oppmerksom på at dagens parkeringsløsning og boder er etablert i sameiets fellesareal, og at parkeringsplassene samt bodene således ikke eies av den enkelte seksjonseier. Dette medfører at sameiet i fellesskap beslutter bruken, og at man ikke selv har eierrett og rettsvern for parkeringsplassen/boden. Sameiet kan ved vedtak beslutte annet bruk av fellesarealet.

    Vei, vann og avløp

    Eiendommen har adkomst via kommunal vei, privat stikkvei med felles vedlikeholdsansvar for Sameiet.
    Eiendommen er tilknyttet kommunalt ledningsnett via private stikkledninger. Sameiet er ansvarlig for private stikkledninger til bygningen.

    Regulerings-og arealplaner

    Eiendommen er regulert til bl.a. boligformål, i henhold til reguleringsplan for Bråtan Vest datert 08.03.1974. Videre er eiendommen avsatt til boligbebyggelse og adkomstvei ved kommuneplanen datert 05.10.2015 med tilhørende bestemmelser. Utsnitt av plan med tilhørende bestemmelser kan fås ved henvendelse til megler.
    Det foreligger en igangsatt planlegging av ny kommunedelplan for FV 283 Rosenkrantzgata (se kommunens hjemmeside for mer info). Planen Fv 283 Rosenkrantzgata gjelder ny utforming av vei hvor hele Åssiden bydel er avsatt som planområde, men store deler av området blir ikke direkte berørt.
    Det opplyses om utstedt rammetillatelse til oppføring av boligbygg på 3. og 4. etasjer på Kastanjeveien 46 (naboeiendommen mot øst). Tidshorisont og endelig utforming av prosjektet er pt. ikke klart, det må påregnes støy o.l. fra byggeprosjektet under utbyggingen.

    Økonomi

    Boligens kostnader

    Felleskostnadene inkluderer bla. varmtvann, kommunale avgifter (vann og avløp), renovasjon, tv/internett grunnpakke, fremtidig garasjeanlegg, felles vedlikehold, felles driftskostnader, snøbrøyting/plenklipping, gang/trappevask, strøm i fellesarealer, forretningsførsel, revisjon- og administrasjonskostnader, styrehonorar, felles bygningsforsikring m.m.. Felleskostnadene justeres normalt en til to ganger årlig i forhold til sameiets faktiske utgifter.
    Felleskostnadene pr. mnd fordeles slik:
    Felleskostnader kr 2.698,-
    Garasjeprosjekt kr 750,-
    TV/internett kr 369,-
    Dugnad kr 50,-
    Sameiet er i en prosess vedrørende riving av eksisterende garasjer og oppføring av nytt garasjeanlegg. Ifbm. finansiering av prosjektet er det foreslått to alternativer, som vil bli stemt over på ekstraordinært årsmøte (planlagt avholdt fjerde kvartal 2025). Det må påregnes en kapitalinnkreving fra hver enkelt seksjon (beløp er avhengig av hvilket alternativ som blir vedtatt) og evt. en økning av felleskostnader samt andel fellesgjeld (avhengig av hvilket alternativ som blir vedtatt). Leiligheten betaler i dag kr 750,- pr. mnd i felleskostnadene som er øremerket til garasjeprosjektet. Se punkt om sameiet for mer informasjon.
    Det må påregnes kostnader til strøm og nettleie, dette vil variere avhengig av strøm-/nettselskap.
    Boligen er tilknyttet Viken fiber Altibox som leverandør av tv/internett, grunnpakke er inkludert i felleskostnadene.
    Selger har ikke bebodd eiendommen og har således ikke kjennskap til øvrige løpende utgifter for eiendommen.
    Det må påregnes kostnader til innboforsikring.
    Ovenstående er basert på nåværende eier/husstands senere års forbruk/utgifter. Dette vil variere avhengig av antall beboere, ønsket innetemperatur, egne fordelsavtaler, kanalvalg, hastighet på bredbånd osv.

    Formuesverdi

    Formuesverdi for 2023 var kr 599 551,- ifølge skatteetaten. Beløpet forutsetter at eier bor fast i boligen (primærbolig).
    Ved eventuell øvrig bruk av eiendommen (f.eks. fritidsbolig, pendlerbolig, utleieobjekt) var formuesverdien for 2023 kr 2 398 204,-.
    Formuesverdien justeres normalt årlig. Se skatteetaten.no for mer informasjon om fastsettelse av formuesverdien.

    Opplysninger om fellesgjeld

    Andel formue er kr 51.412,- pr. 31.12.2024.
    Andel fellesgjeld er kr 0,- pr. 02.06.2025.
    Sameiet har ingen fellesgjeld.

    Omkostninger

    2 250 000,00 Prisantydning
    Omkostninger
    56 250,00  Dokumentavgift til staten (2,5% av kjøpesum)
    9 950,00  Gjensidige Boligkjøperpakke (valgfri)
    545,00  Tinglysing panterettsdokument
    545,00  Tinglysing skjøte
    --------------------------------------------------------
    67 290,00 Omkostninger totalt
    --------------------------------------------------------
    2 317 290,00 Totalpris inkl. omkostninger
    --------------------------------------------------------
    Totalpris inkl. omkostninger forutsetter kjøp til prisantydning.
    Det tas forbehold om endringer i avgifter og gebyrer. 

    Tilbud om lånefinansiering

    Megler formidler gjerne kontakt med rådgiver hos vår samarbeidspartner BN Bank. De har konkurransedyktige betingelser samt rask og løsningsorientert behandling av din lånesøknad. Krogsveen mottar et honorar for denne formidlingen.

    Betalingsbetingelser

    Kjøpesum inkludert omkostninger, samt pantedokument tilknyttet eventuelt lån, skal være disponibelt hos megler 2 virkedager før overtagelsen.

    Annen viktig informasjon

    Eier

    Marit Kure

    Informasjon om sameiet

    Leiligheten er tilknyttet Boligsameiet Kastanjeveien 48-58.
    Sameiet består av 78 leiligheter og 1 garasjeseksjon.
    Forretningsfører er Boalliansen Forvaltning AS.
    Sameiets årsregnskap for 2024 viser et underskudd på kr -617.521,-.
    Dugnader og vaktmesterturnus tilknyttet sameiet må påregnes.
    Dyrehold er tillatt etter satte betingelser, med mindre det er til sjenanse for øvrige beboere. Konferer med megler for mer informasjon.
    Borettslagets hjemmeside: www.bsk48-58.no.
    Iht. husordensreglene skal vedlikeholdsarbeider ved renovering i seksjonene kun skje innenfor bestemte tidsrom (kl. 08.00 til 20.00 - mandag til fredag og kl. 10.00 til 17.00 - lørdag). Det er ikke tillatt på søndager og helligdager.
    Seksjonseieres vedlikeholdsplikt omfatter reparasjon og utskiftning av slikt som vinduer, vinduskarmer, ytterdører m.m. iht. vedtektene. Skal det byttes vinduer og dører, eller gjøre andre endringer som kan påvirke sameiets fasade, eller ombygninger innvendig utover vanlig oppussing må det søkes styret om godkjennelse iht. husordensreglene.
    Styret er av den oppfatning at det utførte løpende og periodiske vedlikeholdet er tilstrekkelig for å opprettholde den bokførte verdien på bygningsmassen.
    Foretatte arbeid/påkostninger de senere år: Reparasjon av elektrisk anlegg og fasadeplater. Utført radontiltak. Skiftet gulvbelegg i fellesområde. Nytt tak ble ferdigstilt (2020), grundig vasking av garasjeanlegg, defekt utebelysning og montering av lyskastere (56-58). Nye låser i sikringsskap.
    Saker som har vært og er under arbeid iht. årsmelding for 2024: Oppfølging av regelmessig vedlikehold av grøntanlegg. Kontroll av takvifter i alle oppganger. Radonmåling i oppganger (utført digitalt). Rengjort slukrister på tak (vår og høst). Oppmerking av parkeringsplasser. Innhentet tilbud på låsesystem og dørautomatikk. Vurdert ekstra filtrering på vanninntak. Utskiftning av eldre vinduer (ikke i balkong), utføres av hver enkelt seksjonseier innen 31.12.2026.
    Sameiet har startet forberedende arbeider ang. riving av deler av eksisterende garasjeanlegg og utbedring/utvidelse av garasjeanlegget. Styret har fått fullmakt til: Utarbeide og søke kommunen om dispensasjoner basert på forprosjektet. Utarbeide og søke kommunen om rammetillatelse m.m. Utarbeide tegninger til takhage. Innhenting av tilbud fra entreprenører - utarbeide tilbudsbeskrivelse (fase 1) og innhenting av tilbud (fasade 2). Rammesøknad for bygging av garasje og takhage ble godkjent andre kvartal 2025.
    Ifbm. finansiering av prosjektet er det foreslått to alternativer, som vil bli stemt over på ekstraordinært årsmøte (planlagt avholdt fjerde kvartal 2025):
    Alternativ 1: Kapitalinnkreving på kr 450.000,- fra hver seksjon (forbehold om endelig sum, som blir kjent september/oktober 2025).
    Alternativ 2: Låneopptak på kr 34.000.000,- med en nedbetalingstid på 20 år, ved låneopptak vil det bli tilrettelagt for individuell nedbetaling av fellesgjeld (IN-ordning). Medfører en økning av felleskostnadene på min. kr 3.310,- pr. mnd for alle seksjonene og det vil i tillegg bli en kapitalinnkreving fra hver seksjon (betydelig mindre beløp enn alternativ 1).
    Leiligheten betaler i dag kr 750,- pr. mnd i felleskostnadene som er øremerket til garasjeprosjektet, kostnaden dekker vedlikehold, oppstøtting, befaringer, dispensasjons- og rammesøknad samt tilbudsprosess (både eksisterende og nytt garasjeanlegg).
    I arbeidet med garasjesaken har styret avdekket av grunnbokshjemmelen til garasjeanlegget tilligger Kastanjeveien Garasjelag (ikke eksistert på veldig mange år). Styret vil innhente juridisk bistand for å avklare at grunnbokshjemmelen til sameiets garasjeeiendom, kan overføres til sameiet. Selve tinglysingen, herunder med et estimat på dokumentavgiften, vil bli forelagt årsmøtet på et senere tidspunkt sammen med tilbudene og vurderingen ifbm. garasjeprosjektet.
    Seksjonseieren disponerer fritt over egen seksjon med de begrensninger som følger av sameieforholdet og eierseksjonsloven. Seksjonseieren kan fritt selge, pantsette og leie ut sin egen seksjon. Sameiets styre skal underrettes skriftlig om alle overdragelser og leieforhold, senest 14 dager etter overtakelse/utleie.
    Ingen kan kjøpe eller på annen måte erverve flere enn to boligseksjoner i sameiet i henhold til lov om eierseksjoner. Dette gjelder ikke for kjøp og erverv av fritidsboliger, erverv ved ekspropriasjon, arv eller forskudd på arv til livsarving eller en kreditors erverv for å redde en fordring som er sikret med pant i en seksjon.
    Sameiets bygningsmasse er fullverdiforsikret i IF Skadeforsikring NUF, polisenr: SP848468.6.1.
    Dokumenter vedrørende sameiet kan fås ved henvendelse til megler.

    Overtakelse

    Etter nærmere avtale.

    Boligselgerforsikring

    Selger har i forbindelse med salget tegnet boligselgerforsikring levert av Gjensidige.  
    Boligselgerforsikringen dekker selgers ansvar etter avhendingsloven begrenset oppad til kr 14 millioner. Dersom kjøper oppdager forhold ved eiendommen som hen mener utgjør en mangel ved eiendommen, vil Gjensidige behandle reklamasjonen på vegne av selger. Forsikringsvilkår kan fås ved henvendelse til megler.  
    Vedlagt salgsoppgaven følger selgers egenerklæringsskjema og tilstandsrapport. Interessenter må sette seg inn i dokumentene før bud inngis. 

    Boligkjøperforsikring

    Innen kontraktsmøtet må kjøper ta stilling til om det ønskes å bestille Boligkjøperpakken gjennom Gjensidige. I denne gunstige pakken er boligen ferdig forsikret og inkluderer rettshjelpsforsikring, også kalt Boligkjøperforsikring. Rettshjelpsforsikring gir trygghet og tilgang på profesjonell juridisk hjelp dersom det oppdages uventede feil eller mangler det første året etter overtagelse. Forsikringsselskapet behandler i så fall ethvert mangelskrav kjøper måtte ha overfor selger. 
    Boligkjøperpakken inkluderer bygningsforsikring for hus og hytte, innboforsikring, flytteforsikring og dobbel rentedekning - i situasjoner hvor kjøper ikke får solgt nåværende primærbolig.   
    Kjøper mottar ingen særskilt faktura for Boligkjøperpakken da kostnaden det første året legges til kjøpesummen for boligen. Det gjøres oppmerksom på Krogsveen mottar et honorar for denne formidlingen.
    Produktark for Boligkjøperpakken ligger vedlagt i salgsoppgaven.  
    Dersom ikke boligkjøperpakke ønskes kan kun rettshjelpsforsikring, også kalt boligkjøperforsikring, tegnes særskilt via megler. Rettshjelpsforsikringen varer i 5 år fra overtagelse og leveres gjennom Gjensidige. Ta kontakt med megler for ytterligere informasjon. 
    Selskap og privatpersoner som driver med kjøp/salg/utvikling som ledd i egen næringsvirksomhet kan ikke tegne boligkjøperpakke eller rettshjelpsforsikring. 

    Budgivning

    Forbrukerinformasjon om budgivning er vedlagt denne salgsoppgaven og er også på vår hjemmeside Krogsveen.no. Alle bud og budforhøyelser må inngis skriftlig. I tillegg må legitimasjon være fremlagt sammen med signatur fra budgiver.
    Vi oppfordrer til å gi bud elektronisk via GI BUD-knappen på eiendommens hjemmeside på Krogsveen.no. Da vil samtlige vilkår bli oppfylt.  
    Eventuelle forhøyelser eller endringer av budet kan bekreftes pr SMS eller på e-post. Vi oppfordrer alltid til å kontakte megler pr. telefon i tillegg da forsinkelser i SMS og e-post kan forekomme.
    For at budene skal kunne bli behandlet og videreformidlet skriftlig til alle involverte parter, må alle bud ha en tilstrekkelig lang akseptfrist, jf. eiendomsmeglingsforskriften § 6-3.
    Selger må også skriftlig akseptere budet før aksept kan formidles til budgiver. Akseptfrist bør derfor være på minimum 30 minutter, og budforhøyelser må derfor skje i god tid før fristens utløp.
    Bud i forbrukerforhold kan uansett ikke settes med kortere frist enn kl. 12.00 første virkedag etter siste annonserte visning. I tillegg kan ikke budet ha forbehold om at det skal holdes hemmelig ovenfor øvrige interessenter. Megler har iht lov om eiendomsmegling ikke anledning til å videreformidle disse budene, og de vil dermed heller ikke bli journalført.
    Etter at eiendommen er solgt vil kjøper og selger få tilsendt budjournal. Øvrige budgivere kan få utlevert kopi av budjournalen i anonymisert form.

    Hvitvaskingsreglene

    I henhold til lov om hvitvasking og terrorfinansiering har megler plikt til å gjennomføre kontrolltiltak overfor kunder, herunder fullmektiger. Dette innebærer bl.a. å bekrefte kunders og reelle rettighetshaveres identitet på bakgrunn av fremvist gyldig legitimasjon eller på annen godkjent måte, samt å innhente opplysninger om kundeforholdets formål og tilsiktede art.
    Dersom slike kundetiltak ikke kan gjennomføres, kan megler ikke etablere kundeforholdet eller utføre transaksjonen.
    Hvis kjøper ikke bidrar til gjennomføring av kundekontrollen og dette fører til at transaksjonen blir forsinket eller ikke kan gjennomføres, vil dette ansees som mislighold av avtalen og gi selger rettigheter etter avhendingslova kapittel 5. I tilfeller der selger ikke bidrar til gjennomføring av løpende kundekontroll underveis i oppdraget, er det selger som misligholder sine forpliktelser etter avtalen og gi kjøper rettigheter etter avhendingslovens kapittel 4. Partene er selv ansvarlige for eventuelle kostnader og ansvar dette kan medføre. Eiendomsmegleren eller eiendomsmeglingsforetaket kan ikke holdes ansvarlig for de konsekvenser dette vil kunne få for partene eller andre som har interesser i eiendomshandelen.
    Kjøper oppfordres til å innbetale kjøpesummen som ikke kommer fra låneinstitusjon i én samlet innbetaling fra egen konto i norsk bank. Megler har plikt til å melde fra til Økokrim om eiendomshandler som fremstår som mistenkelige. Melding sendes Økokrim uten at partene varsles. 

    Personopplysningsloven

    I henhold til personopplysningsloven gjør vi oppmerksom på at interessenter kan bli registrert for videre oppfølging.

    Lovanvendelse

    Generelle bestemmelser
    Salgsoppgaven er basert på de opplysningene selger har gitt til megler, den bygningssakyndiges tilstandsrapport, samt opplysninger innhentet fra kommunen, Kartverket og andre tilgjengelige kilder. Det er viktig at kjøper setter seg grundig inn i alle salgsdokumentene, herunder salgsoppgave, tilstandsrapport og selgers egenerklæring. Kjøper anses kjent med forhold som er tydelig beskrevet i salgsdokumentene, og slike forhold kan ikke påberopes som mangler. Dette gjelder uavhengig av om kjøper har lest dokumentene. Alle interessenter oppfordres til å undersøke eiendommen nøye, gjerne sammen med fagkyndig før bud inngis. Kjøper som velger å kjøpe usett kan ikke gjøre gjeldende som mangel noe han burde blitt kjent med ved undersøkelsen. 
    Dersom det er behov for avklaringer, anbefaler vi at interessenter rådfører seg med eiendomsmegler eller egne rådgivere før det legges inn bud.
    En bolig som har blitt brukt i en viss tid, har vanligvis blitt utsatt for slitasje og skader kan ha oppstått. Slik bruksslitasje må kjøper regne med, og det kan avdekkes enkelte forhold etter overtakelse som nødvendiggjør utbedringer. Normal slitasje og skader som nødvendiggjør utbedring, er innenfor hva kjøper må forvente og vil ikke utgjøre en mangel.
    Kjøper og selgers rettigheter og plikter reguleres av avtalen mellom partene, samt informasjonen som har vært tilgjengelig for kjøperen i forbindelse med handelen. Avtalen utfylles av avhendingsloven, og det gjelder ulike avtalevilkår avhengig av om kjøper er forbrukerkjøper eller ikke.  Dette er nærmere beskrevet nedenfor. 
    På grunn av ulike avtalevilkår kan selger vurdere bud fra en som ikke er forbruker, ulikt fra en forbrukers bud. Dersom kjøper ikke er forbruker, er selger sitt mulige mangelsansvar begrenset fordi eiendommen selges "som den er".  Selger kan ikke ta «som den er»- forbehold overfor en forbrukerkjøper. Selv et lavere bud fra en som ikke er forbruker kan foretrekkes fordi begrensningen i mulig mangelsansvar kan ha egenverdi for selger. Selger står fritt til å forkaste eller akseptere ethvert bud, og er for eksempel ikke forpliktet til å akseptere høyeste bud.
    Budgiver skal i budskjema avgi egenerklæring om budgiver er forbruker eller næringsdrivende/ person som hovedsakelig handler som ledd i næringsvirksomhet. Budgivere får informasjon dersom andre bud er inngitt av en som ikke er forbruker. 
    Forbrukerkjøp - definisjon
    Med forbrukerkjøp menes kjøp av eiendom når kjøperen er en fysisk person som ikke hovedsakelig handler som ledd i næringsvirksomhet.
    Forbruker – avtalevilkår
    Eiendommen har en mangel dersom den ikke er i samsvar med kravene som følger av avtalen, eller det foreligger brudd på bestemmelsene i avhendingsloven §§ 3-2 til 3-8. Hvis eiendommen ikke er i samsvar med det kjøperen må kunne forvente ut ifra alder, type og synlig tilstand, kan det være grunnlag for mangelskrav. Det samme gjelder hvis det er holdt tilbake eller gitt uriktige opplysninger om eiendommen. Dette gjelder likevel bare dersom man kan gå ut ifra at det virket inn på avtalen at opplysningen ikke ble gitt eller at mangelskravet ikke blir rettet i tide på en tydelig måte.
    Boligen kan ha en mangel etter avhendingsloven § 3-3 andre ledd, dersom det er avvik mellom opplyst og faktisk innvendig areal, forutsatt at avviket er på 2% eller mer og minimum 1 kvm.
    Ved beregning av et eventuelt prisavslag eller erstatning må kjøper selv dekke tap/kostnader opptil et beløp på kr 10 000 (egenandel).
    Ikke-forbruker (næringsdrivende) – definisjon 
    Hvis kjøper er en juridisk person, eller en fysisk person som hovedsakelig handler som ledd i næringsvirksomhet, vil kjøpet ikke anses som et forbrukerkjøp. 
    Ikke-forbruker – avtalevilkår
    Eiendommen har en mangel dersom den ikke er i samsvar med kravene som følger av avtalen.
    Eiendommen selges «som den er», og selgers ansvar utover det konkret avtalte er da begrenset etter avhendingsloven § 3-9, første ledd andre setning. 
    Avhendingsloven § 3-3 andre ledd fravikes, og hvorvidt boligens arealsvikt utgjør en mangel vurderes etter avhendingsloven § 3-8. 
    Informasjon om kjøpers undersøkelsesplikt, herunder oppfordringen om å undersøke eiendommen nøye, gjelder også for kjøpere som ikke anses som forbrukere.
    Det forutsettes at hjemmel overføres til kjøper. Hvis kjøper ikke ønsker hjemmelsoverføring av eiendommen, må det tas forbehold om dette i budet.

    Meglers vederlag

    Meglers vederlag betales av selger og er avtalt til:
    Vederlag: 1,00 % av salgssummen
    Minimumsvederlag: kr 38. 000,00
    Kontroll av hjemmel og heftelser  kr 2 900,00
    Markedsføringspakke  kr 27 400,00
    Oppgjør  kr 7 500,00
    Tilrettelegging  kr 17 000,00
    Utlegg
    Eierskiftegebyr forretningsfører (selger)  kr 6 570,00
    Innhenting av informasjon forretningsfører USBL  kr 4 914,00
    Tinglysing sikring  kr 545,00
    Andre utgifter
    Boligselgerforsikring Buysure inkl. tilstandsrapport Anticimex (4,42 promille av salgssum + takstmann kr. 9.700,-)  kr 21 855,00
    Fotografering (grunnpakke)  kr 3 250,00

    Opplysninger om oppdraget

    Oppdragsnummer 20-0212/25
    Eiendomsmegler Krogsveen AS, avd. Drammen
    Nedre Storgate 16, 3015, DRAMMEN
    950 007 613
    Oppdragets KR-kode KR20.25212

    Dato

    Sist oppdatert: 04. november 2025 kl. 09:54

    Dokumenter

    Utskriftsvennlig salgsoppgave

    Område

    Legg til steder som er viktige for deg

    Prisutvikling for området

    Kvadratmeterpris
    0 kr/m²
    Endring
    ↘︎ % ()

    Visning

    Privatvisninger avholdes fortløpende. Trykk på "Visningspåmelding" eller kontakt megler på telefon/epost for å avtale dag/klokkeslett for privatvisning.
    Lurer du på noe?

    Vil du varsles om lignende boliger?

    Ved å lagre ditt boligsøk hos oss får du beskjed når vi har en bolig som ligner denne, før den legges ut på markedet!

    På flyttefot? Slik gjør vi det enklere for deg

    Skreddersydd flyttepakke

    Vi fikser håndverkere, vask, pakking, lagring og transport, og legger ut for utgiftene underveis.

    Hjelp med både kjøp og salg

    Hos oss har du din egen rådgiver gjennom hele kjøps- og salgsprosessen.

    Hjelp til finansiering

    Vårt samarbeid med BN Bank sikrer deg rask og løsningsorientert hjelp, til konkurransedyktige betingelser.