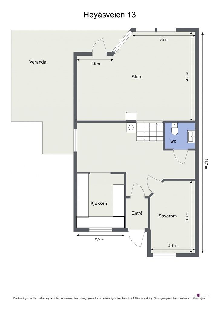
Høyåsveien 13
5 800 000 kr
130 m²
3 soverom
Solgt
Langhus
Innholdsrik enebolig i kjede med familievennlig utforming | Flott utsikt | Rikelig med sol | Garasje | Nærhet til marka
Prisantydning
5 800 000 krOmkostninger
165 990 krTotalpris
5 965 990 kr
Pris
Bruksareal
154 m²BRA-I (internt bruksareal)
130 m²BRA-E (eksternt bruksareal)
24 m²TBA (terrasse-balkongareal)
56 m²
Areal
Byggeår
1989Soverom
3 soveromBad
1 badTomteareal
583 m² (eiet)Type
Enebolig i kjedeEierform
EietFasiliteter
Garasje/P-plass og Balkong/TerrasseEnergimerke
Gul D
Nøkkelinfo
Unngå doble boligrenter
Vi tilbyr gunstig forsikring.
Vurderer du utleie?
Få et tilbud fra Utleie KrogsveenHva koster lånet?
Sjekk estimert lånekostnadBeskrivelse
Kort om eiendommen
Velkommen til Høyåsveien 13!
- Enebolig i kjede over fire halvplan, med særpreg og sjarm
- God planløsning med mange soner
- Usjenerte uteplasser med utsikt over Nøstvedtmarka
- Nydelig utsikt og sol fra morgen til kveld.
- Pent opparbeidet tomt med solrik og lettstelt hage
- Garasje med elbillader
- Barnevennlig beliggenhet i blindvei
- Lekeplass rett ved huset, som beboerne i Høyåsveien eier hver sin ideelle andel av
- Kollektivtilbud ca. 400 meter fra boligen.
- Ca. 10 minutter til Ski og ca. 25 minutter til Oslo sentrum med bil
- Buss til Ski bruker ca. 8 minutter og Follobanen tar deg fra Ski til Oslo på 11 minutter
- Umiddelbar nærhet til marka med flotte turstier og lysløype.
Område
Legg til steder som er viktige for deg
På flyttefot? Tenk kjøp og salg samtidig.
Få din egen rådgiver gjennom hele kjøps- og salgsprosessen. Det starter med en verdivurdering.
Unngå doble boligrenter
Vi tilbyr gunstig forsikring.
Vurderer du utleie?
Få et tilbud fra Utleie KrogsveenHva koster lånet?
Sjekk estimert lånekostnadVil du varsles om lignende boliger?
Ved å lagre ditt boligsøk hos oss får du beskjed når vi har en bolig som ligner denne, før den legges ut på markedet!
På flyttefot? Slik gjør vi det enklere for deg
Skreddersydd flyttepakke
Vi fikser håndverkere, vask, pakking, lagring og transport, og legger ut for utgiftene underveis.
Hjelp med både kjøp og salg
Hos oss har du din egen rådgiver gjennom hele kjøps- og salgsprosessen.
Hjelp til finansiering
Vårt samarbeid med BN Bank sikrer deg rask og løsningsorientert hjelp, til konkurransedyktige betingelser.




