Statsrådtunet 3B
3 690 000 kr
74 m²
2 soverom
Solgt

Råholt
Romslig og gjennomgående 3R selveierleilighet med garasje | Terrasse på ca. 26 kvm med gode solforhold |
Prisantydning
3 690 000 krOmkostninger
103 290 krTotalpris
3 793 290 kr
Pris
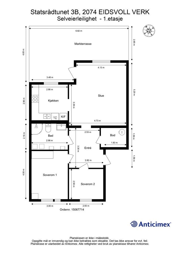
Bruksareal
95 m²BRA-I (internt bruksareal)
74 m²BRA-E (eksternt bruksareal)
21 m²TBA (terrasse-balkongareal)
26 m²
Areal
Etasje
1Byggeår
2014Soverom
2 soveromBad
1 badType
EierleilighetEierform
EierseksjonFasiliteter
Garasje/P-plass og Balkong/TerrasseFellesutgifter
2 730 krEnergimerke
Rød B
Nøkkelinfo
Unngå doble boligrenter
Vi tilbyr gunstig forsikring.
Vurderer du utleie?
Få et tilbud fra Utleie KrogsveenHva koster lånet?
Sjekk estimert lånekostnadBeskrivelse
Kort om eiendommen
Velkommen til Statsrådtunet 3B
Lys og romslig 3-roms eierleilighet i 1. etasje med god standard fra 2014 og praktisk planløsning. Leiligheten har store romslige rom, med store vinduer som gir mye naturlig lys. Fra stua har man adkomst til leilighetens terrasse på ca. 26 kvm. Leiligheten har egen garasje på sameiets felles parkeringsplass, samt en utebod rett utenfor leiligheten.
Leiligheten ligger sentralt Råholt, men tilbaketrukket og fredelig. Det er kort vei til togstasjon, med avganger til Oslo og Oslo Lufthavn. Kort vei fra eiendommen er det skoler, barnehager, butikker og turmuligheter. For den aktive finnes idrettsanlegg, badevann og skiløyper. Mistberget og Hurdalssjøen byr på flotte naturopplevelser året rundt.
Velkommen til visning
Område
Legg til steder som er viktige for deg
På flyttefot? Tenk kjøp og salg samtidig.
Få din egen rådgiver gjennom hele kjøps- og salgsprosessen. Det starter med en verdivurdering.
Unngå doble boligrenter
Vi tilbyr gunstig forsikring.
Vurderer du utleie?
Få et tilbud fra Utleie KrogsveenHva koster lånet?
Sjekk estimert lånekostnadVil du varsles om lignende boliger?
Ved å lagre ditt boligsøk hos oss får du beskjed når vi har en bolig som ligner denne, før den legges ut på markedet!

