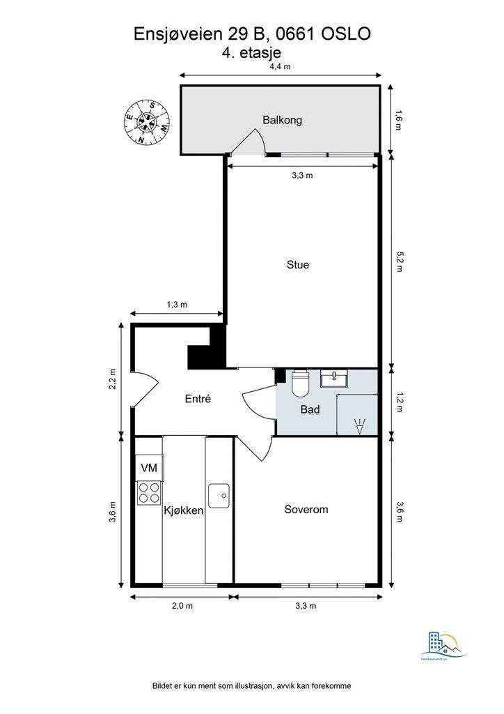
Ensjøveien 29B
4 500 000 kr
46 m²
1 soverom
Solgt
Ensjø
Lekker og gjennomgående 2-roms med delikate overflater og herlig balkong - A-konto fyring og internett inkl. - Sentralt
Prisantydning
4 500 000 krAndel fellesgjeld
164 565 krOmkostninger
22 923 krTotalpris
4 687 488 kr
Pris
Bruksareal
47 m²BRA-I (internt bruksareal)
46 m²BRA-E (eksternt bruksareal)
1 m²TBA (terrasse-balkongareal)
7 m²
Areal
Etasje
4Byggeår
1946Soverom
1 soveromBad
1 badType
AksjeleilighetEierform
AksjeFasiliteter
Garasje/P-plass og Balkong/TerrasseFellesutgifter
4 794 krEnergimerke
Grønn G
Nøkkelinfo
Unngå doble boligrenter
Vi tilbyr gunstig forsikring.
Vurderer du utleie?
Få et tilbud fra Utleie KrogsveenHva koster lånet?
Sjekk estimert lånekostnadBeskrivelse
Kort om eiendommen
Krogsveen v/ Simen Istre Grevskott har gleden av å presentere Ensjøveien 29B. En lys og lekker 2-roms leilighet med god planløsning og behagelige fargevalg. Flott beliggenhet på Ensjø i et sentralt og populært boligområde. Gangavstand til Kampen og Vålerenga med butikker, caféer og koselige parker.
Kvaliteter:
Delikate overflater og lekkert gulv i fiskebensmønster
Funksjonelt kjøkken m/opplegg for vaskemaskin
Store vindusflater og god takhøyde på ca. 2,5m
Mulighet for å flytte kjøkken og etablere soverom
Luftig balkong med hyggelig utsikt
A-konto fjernvarme og internett inkl.
Romslig kjellerbod, fellesvaskeri og 2 sykkelboder
Sentralt med nærhet til "alt"
T-bane linje 1-4 like ved
Parkeringsplass etter "første mann til mølla"- prinsippet
Område
Legg til steder som er viktige for deg
På flyttefot? Tenk kjøp og salg samtidig.
Få din egen rådgiver gjennom hele kjøps- og salgsprosessen. Det starter med en verdivurdering.
Unngå doble boligrenter
Vi tilbyr gunstig forsikring.
Vurderer du utleie?
Få et tilbud fra Utleie KrogsveenHva koster lånet?
Sjekk estimert lånekostnadVil du varsles om lignende boliger?
Ved å lagre ditt boligsøk hos oss får du beskjed når vi har en bolig som ligner denne, før den legges ut på markedet!
På flyttefot? Slik gjør vi det enklere for deg
Skreddersydd flyttepakke
Vi fikser håndverkere, vask, pakking, lagring og transport, og legger ut for utgiftene underveis.
Hjelp med både kjøp og salg
Hos oss har du din egen rådgiver gjennom hele kjøps- og salgsprosessen.
Hjelp til finansiering
Vårt samarbeid med BN Bank sikrer deg rask og løsningsorientert hjelp, til konkurransedyktige betingelser.




