Årvollveien 58Q
4 480 000 kr
50 m²
1 soverom
Komplett salgsoppgave

ÅRVOLLSKOGEN
Tiltalende og markanær 2-roms selveier. To markterrasser, egen hagedel, heis og garasjeplass
Prisantydning
4 480 000 krAndel fellesgjeld
7 315 krOmkostninger
123 210 krTotalpris
4 610 525 kr
Pris
Bruksareal
58 m²BRA-I (internt bruksareal)
50 m²BRA-E (eksternt bruksareal)
8 m²TBA (terrasse-balkongareal)
30 m²
Areal
Etasje
1Byggeår
2005Soverom
1 soveromBad
1 badType
EierleilighetEierform
EierseksjonFasiliteter
Garasje/P-plass, Heis og Balkong/TerrasseFellesutgifter
4 357 krEnergimerke
Rød E
Nøkkelinfo
Unngå doble boligrenter
Vi tilbyr gunstig forsikring.
Vurderer du utleie?
Få et tilbud fra Utleie KrogsveenHva koster lånet?
Sjekk estimert lånekostnadBeskrivelse
Kort om eiendommen
Innhold og byggemåte
Innhold og byggemåte
Eiendommen
Årvollveien 58Q, 0590 OSLO
Kommunenummer 301, gårdsnummer 86, bruksnummer 996, seksjonsnummer 6, ideell andel 1/1
Innhold
Totalt bruksareal BRA: 58 kvm
BRA-i:
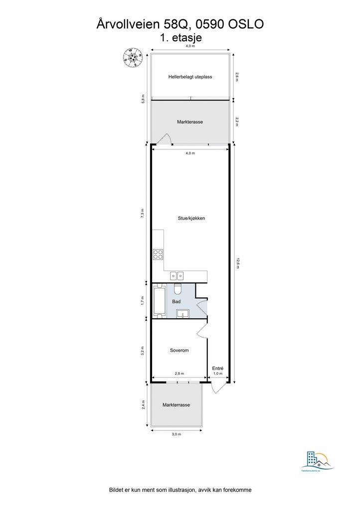
1. etasje 50 kvm: Entré, soverom, bad, og stue/kjøkken.
BRA-e:
1. etasje 8 kvm: Kjellerbod.
Åpent areal:
1. etasje 23 kvm: Vestvendt markterrasse og hellebelagt uteplass.
1. etasje 7 kvm: Østvendt markterrasse.
Boden er tinglyst som en tilleggsdel til seksjonen.
Vedlagte plantegninger er ikke målbare. De oppgitte arealer er hentet fra rapport med befaringsdato 24.03.2026 utført av Marcus Pettersen v/ Takstkonsulent1 AS.
Byggemåte
Selger har innhentet en tilstandsrapport av boligen/eiendommen. Av rapporten fremgår det at flere bygningsdeler har fått tilstandsgrad ikke undersøkt/ikke tilgjengelig for undersøkelse (TG IU), 2 (TG2) og/eller 3 (TG3). Rapporten beskriver også avvik på undersøkte bygningsdeler uten tilstandsgrad. Kjøper overtar ansvaret for de opplysninger som fremkommer av salgsdokumentasjonen, og kan ikke gjøre gjeldende som mangel noe som burde vært kjent eller som ikke kan anses å ha betydning for avtalen.
Boligblokk bygget i 2005. Bygningen er antatt fundamentert med betong til stedlige masser. Ringmur av betong. Etasjeskillere av prefabrikkerte betongelementer. Yttervegger oppført med bindingsverk av tre, utvendig kledd med stående bordkledning. Flat takkonstruksjon, antatt tekket med asfalt takbelegg/folie (ikke besiktiget).
Vinduer med 2-lags isolerglass, produsert i 2004. Balkongdør med 2-lags isolerglass, produsert i 2004. Boligen har malt hovedytterdør.
Les for øvrig mer om byggemåte og den tekniske tilstanden i rapporten.
Det gjøres spesielt oppmerksom på:
TILSTANDSGRAD 2 (VESENTLIGE AVVIK OG MINDRE AVVIK SOM ETTER NS 3600 GIR TG 2):
Våtrom:
- Overflater vegger og himling: Overflatene ser visuelt bra ut, tilstandsgraden settes av hensyn til alder. Konsekvensen av manglende tiltak er økt risiko for at tettesjiktet har redusert funksjon, noe som kan føre til fuktskader i underliggende konstruksjoner.
- Overflater gulv: Det registreres noe krakkelering i en gulvflis ved toalettet. Overflatene ser visuelt bra ut, tilstandsgraden settes av hensyn til alder og nevnt avvik. Konsekvensen av manglende tiltak er økt risiko for at tettesjiktet har redusert funksjon, noe som kan føre til fuktskader i underliggende konstruksjoner.
- Sluk, membran og tettesjikt: Vurdering basert på alder. Tilstandsgrad 2 gis med bakgrunn i at mer enn halvparten av forventet brukstid for membran/tettesjikt er passert. Det er viktig å merke seg at levetiden til en membran varierer basert på kvalitet, installasjon og bruk. Eldre membraner kan bli sprø og sprekke opp, noe som fører til at de mister sin vanntettende funksjon. Dette kan resultere i vannlekkasjer gjennom vegger og gulv og fuktskader.
Vinduer:
Vinduer er av eldre dato og har oppnådd minste forventede brukstid. Det er fare for punktering av isolerglass som følge av alder, og påregnelig med utskiftninger på sikt. Dersom vinduene ikke
skiftes ut ved behov, kan det oppstå redusert isolasjonsevne, økt varmetap og risiko for fuktskader i tilstøtende konstruksjoner.
Dører:
Balkongdør er av eldre dato og har oppnådd minste forventede brukstid. Det er fare for punktering av isolerglass som følge av alder, og påregnelig med utskiftninger på sikt. Det bør påregnes utskifting av balkongdøren på sikt, da den har oppnådd minste forventede brukstid. Dersom døren ikke skiftes ut, er det økt risiko for punktering av isolerglass, varmetap og redusert funksjon, noe som kan føre til økte vedlikeholdskostnader og dårligere inneklima.
Vannledninger:
Mer enn halvparten av forventet brukstid er passert på innvendige vannledninger.
TG IU (Ikke undersøkt):
Våtrom:
Tilliggende konstruksjoner: Hulltaking er ikke foretatt da det ikke er fysisk mulig pga tilliggende konstruksjoner.
Se utfyllende tekst i rapporten.
Tilstandsrapporten er inntatt i salgsoppgaven. Rapporten inneholder informasjon om avvikene og konsekvensen av disse. For avvik som er gitt TG3 har den bygningssakkyndige i tillegg gitt et anslag på hva det vil koste å utbedre disse avvikene. Ettersom kjøper regnes å være kjent med forhold som tydelig fremgår av tilstandsrapporten, oppfordres du til å sette deg grundig inn i rapporten i sin helhet.
Standard
Årvollskogen er for mange en av favorittene på Årvoll/Tonsenhagen. Sameiet har et flott parkområde, kort vei til marka, butikker og transport.
Her er det et ungt, sporty og engasjert bomiljø.
Dette er leiligheten for deg som ønsker kort vei til både byen og skogen.
I markanære omgivelser og med byens rauseste naboer vil du finne deg godt til rette i Årvollskogen!
Ønsker du en bolig med rekkehusfølelse, egen hagedel og store uteplasser rett ved inngangen til marka?
Med to uteplasser, egen hageflekk, gode solforhold og trappefri adkomst er denne leiligheten perfekt for både unge, eldre og deg med hund/katt.
Det er lagt ny parkett, nye fliser i entré, malt overflater og skiftet fronter på kjøkken ila de siste 5 årene.
Det medfølger en garasjeplass i oppvarmet, lukket garasjeanlegg.
Boligen ligger i markagrensen, og bak sameiet starter turstiene inn i flotte Lillomarka.
ENTRÈ:
Egen inngang fra bakgård gir en rekkehusfølelse. Lys og imøtekommende entré med plass for oppbevaring av sko og oppheng av tøy.
Pene fliser på gulv.
STUE MED ÅPEN KJØKKENLØSNING:
Romslig stue med store vindusflater som slipper inn godt med lys. Plass for tv-møblement, spisegruppe og sofagruppe. Det er nylig montert elektrisk rullegardin.
Fra stuen er det utgang til vestvendt markterrasse samt hellebelagt uteplass på til sammen 23 kvm samt hellebelagt uteplass.
Åpen kjøkkenløsning mot stuen skaper et luftig og sosialt rom. Kjøkkenet har godt med skap- og benkeplass.
Kjøkkeninnredning med profilerte fronter. Heltre benkeplate med nedfelt vask- og skyllekum. Fliser og belysning over benkeplaten. Integrert oppvaskmaskin.
Opplegg for komfyr. Avtrekk over kokeplass.
BAD:
Flislagt bad med varmekabler og opplegg for vaskemaskin. Innredet med klosett, servant med innredning, speilskap og badekar.
Mekanisk avtrekk.
SOVEROM:
Soverom med plass for dobbeltseng og nattbord samt garderobeskap. Rommet vender mot bakgården.
ØSTVENDT MARKTERRASSE:
Markterrasse på 7 kvm som vender inn mot indre gård. Her har du også en idyllisk hageflekk opparbeidet med gress, tre og planter.
Port inn til hagen fra felles bakgård som gir enkel tilgang til ski, sykkel og barnevogn. Terrasse har utebelysning.
VESTVENDT MARKTERRASSE OG UTEPLASS:
Delvis overbygget markterrasse som vender mot vest. Terrassen har markise, utebelysning og stikkontakt.
Videre adkomst til hellebelagt uteplass ved markterrassen. Uteplassen er på til sammen 23 kvm og oppleves usjenert og privat med skjermende levegg rundt. Her er det god plass til flere sittegrupper og grill.
Praktisk port ut mot veien.
DIVERSE:
- Heis til garasjeanlegg
- Garasjeplass
- Kjellerbod på ca. 7,6 kvm
- Felles sykkelrom, badstue og smørebod
- Plass til barnevogn under trappen i oppgangen
Løsøre og tilbehør
Vi viser til liste fra Norges Eiendomsmeglerforbund som gjelder fra 01.01.2020 angående løsøre og tilbehør.
Kjøleskap og komfyr medfølger.
Det gjøres oppmerksom på at hvitevarene er kjøpt for noen år tilbake, og kjøper må forvente slitasje som følge alder og normal bruk.
Oppvarming
Boligen varmes opp med elektrisk oppvarming. Elektrisk gulvvarme på bad.
Dersom beboelsesrom ikke har vegg- eller fastmonterte varmekilder ved visning, følger dette heller ikke med.
Ferdigattest/brukstillatelse
Det foreligger ferdigattest på boligblokken, datert 06.10.2011. Denne kan fås ved henvendelse til megler.
Kjøper overtar boligen slik den fremstår på visning.
Tinglyste heftelser og rettigheter
Leiligheten overdras fri for pengeheftelser med unntak av fellesgjeld.
Sameiet har legalpant for krav mot sameieren som følger av sameieforholdet iht. eierseksjonsloven § 31. Pantet er begrenset oppad til 2G, (G = folketrygdens grunnbeløp).
I tillegg har sameiet tinglyst panterett som nevnt over.
Det er tinglyst 1 servitutt og 3 rettigheter på sameiets eiendom. Disse omhandler blant annet bestemmelse om garasje/ parkering, bruksrett vedrørende boder, bruksrett vedr. uteoppholdsareal, bestemmelse om fellesareal, bestemmelse om felles bruk.
Servituttene vil følge eiendommen. Kjøpers bank vil få pant etter ovennevnte heftelser og servitutter.
Eventuell adgang til utleie
Leiligheten kan leies ut såfremt leiligheten har forsvarlige radonverdier. Leietaker må følge sameiets vedtekter og ordensregler på lik linje som eier.
Diverse
Boligen ble profesjonelt rengjort 23. mars og vil ikke bli ytterligere rengjort før overtakelse.
Eiendommen inngår i et dødsbo hvor arvingene er selgere. Arvingene har ikke bebodd eiendommen og kjennskapen til eiendommens tilstand kan være mangelfull. Kjøper må derfor kunne påregne at det kan være flere feil og mangler som normalt oppdages ved bruk av boligen, men som selger av dødsbo ikke har mulighet å vite.
Beliggenhet og tomteforhold
Beliggenhet og tomteforhold
Beliggenhet
Øverst på Årvoll, tett inntil markagrensen, ligger Årvollskogens tre boligsameier. Området er svært populært for mennesker med sans for trening, tur og friluft.
På baksiden av sameiet ligger inngangsporten til Lillomarka. Både varierte sykkelstier, koselige turstier, Oslo Skisenter og fantastiske skiløyper/lysløyper starter her! Alpinanlegget har bakker for både store og små. Hyppig preparering og lite folk i bakken, gir ofte nydelige skiforhold og til og med mulighet for pudderkjøring på de beste vinterdagene!
Inn til koselige betjente markastuer, som bl.a. Linderudkollen og Trollvannstua, er det kun 15-30 minutter enten du går på ski eller til fots. Hit kan du enkelt komme deg frem også med barnevogn.
Rusletur til Grefsenkollen hvor man kan nyte uteservering med spektakulær utsikt. Her arrangeres også musikkfestivalen "Over Oslo" i juni hvert år. Bor du i Årvollskogen er det perfekt å rusle hjem fra konsert i sommernatta.
Vakre Isdammen, kun 250 meter unna, er nærmeste lille badevann. Hit går turen for både barn som vil vasse i vannet, foreldre som vil ha seg en dukkert og for de som ønsker et idyllisk sted å grille pølser og drikke kaffe. Oppe på Isdammen ligger også en oppusset hytte, som kan leies i forbindelse med barnebursdager o.l.
Til tross for at Årvollskogen ligger ved markagrensen, er det kun 7 km til Grünerløkkas spennende fasiliteter og mindre enn 10 km til Oslo sentrum. Meget effektivt og godt kollektivtilbud fra Årvoll (Stig) til sentrum. (Buss nr. 25, 31, og 26). I tillegg går 31-bussen gjennom hele natten fra sentrum til Årvoll.
Setter du pris på umiddelbar nærhet til marka og enkel adkomst til sentrum? Da er Årvollskogen et fantastisk alternativ!
Beskrivelse av tomt
Eiertomt på 6 745 kvm som tilhører sameiet. Tomten er fellesareal. Området er lukket og bilfritt med store grøntarealer. Pent opparbeidet fellesareal med gressplen, prydbusker og trær samt oppsatte lekeapparater, sykkelstativ og sitteplasser.
Parkering
Medfølgende garasjeplass med elbillader i felles garasjeanlegg. Plassen er en ideell andel av Sameiet Årvollskogen Garasjeanlegg.
Det er mulig å selge/leie ut egen garasjeplass til andre i de tre sameiene i Årvollskogen.
På baksiden av Årvollveien 60 har de tre sameiene i Årvollskogen egen gjesteparkeringsplass som kan benyttes mot betaling. Ellers gateparkering etter områdets bestemmelser.
Vei, vann og avløp
Eiendommen har adkomst via kommunal vei (Årvollveien) og via privat vei, samt private innerveier med felles vedlikeholdsansvar for sameiet.
Eiendommen er tilknyttet kommunalt ledningsnett via private stikkledninger. Sameiet er ansvarlig for private stikkledninger til bygningen.
Regulerings-og arealplaner
Eiendommen er regulert til boligformål i henhold til reguleringsplan S-3936 datert 06.11.2002 med tilhørende reguleringsbestemmelser.
Utsnitt av plan med tilhørende bestemmelser kan fås ved henvendelse til megler.
Tomten i Østreheimsveien 28 A (ridesentertomten som ligger mellom Årvollskogen og Grefsenkleiva) er i dag regulert til bygging av ridesenter. Ridesentertomten er for øvrig solgt til entreprenørselskapet Vedal AS. Eier av tomten ønsker å utvikle eiendommene gnr. 86, bnr. 1001 og deler av 458 til boligformål. Forslaget legger til rette for et boområde bestående av ca. 250 boenheter. Til sammen planlegges det for at Årvolltunet inneholder ca. 250 boenheter, og prosjektet vil i stor grad preges av større enheter og rause grøntarealer. En andel rekkehus vil i tillegg gi en god overgang fra småhusområdet og nabobebyggelsen. Prosjektet tilrettelegger for grendehus som er tilgjengelig for hele nærmiljøet samt en liten sykkelbane/skøytebane og tuftepark. For mer informasjon om prosjektet se https://www.vedal.no/prosjekt/arvolltunet/.
Fylkesmannen gav tillatelse til oppstart av planarbeid 25. september 2020 og på oppstartsmøtet som ble avholdt i august 2020 sier Plan- og Bygningsetaten at de er åpne for å se på en omregulering av tomten. Utbygger varslet oppstart av planarbeid 30.10.2020 og 06.01.2023 ble det sendt planforslag til offentlig ettersyn. P.t pågår det en oppdatering av planforslaget etter offentlig ettersyn.
For videre informasjon konferer megler eller se saksnummer 202003584 hos Plan- og Bygningsetaten.
Bymiljøetaten har startet et arbeid for å regulere dagens alpinanlegg i Trollvannskleiva og Grefsenkleiva. Det foreligger planer om ny stolheis, ny varmestue samt utvidelse av løypene. Planforslaget ble sendt til offentlig ettersyn 13.06.2025. Se saksnummer 201802070 hos Plan- og Bygningsetaten.
Vann- og avløpsetaten i Oslo kommune (VAV) ønsker å anlegge et omløp i tunnel forbi Årvollbassenget som ligger i Årvollåsen. Tiltaket er nødvendig for å få utført vedlikehold av bassenget. I tillegg ønskes det å regulere eksisterende overføringstunnel for drikkevann mellom Oset og Bredtvet/Rødtvet. Dette for å gi anlegget en planmessig beskyttelse. Årvollbassenget har i dag atkomsttunnel i begge ender via tunnelinnganger ved Tonsenhagen og nord for Isdammen. Disse atkomstene vil benyttes i arbeidet. Adkomsten ved Isdammen går via Årvollkrysset på rv. 4 og Årvollveien videre til
Isdammen og på Hadelandsveien i Marka videre. Det må forventes aktivitet med tungtrafikk i bygge- og anleggs perioden.
Planforslaget ble stadfestet 15.10.2025. Se saksnummer 202452124 og 2025/06797 hos Plan- og Bygningsetaten.
I Årvollveien 57 er det gitt tillatelse til tiltak for søknad om underbygg, innbygging av veranda og bruksendring fra tilleggsdel til hoveddel. Tillatelsen ble gitt 05.11.2025. Se saksnummer 2025/11691 hos Plan- og Bygningsetaten.
Økonomi
Økonomi
Boligens kostnader
Fellesutgiftene er kr 4 357,- pr. mnd. og inkluderer: Varmtvann, kabel-tv/internett, strøm til fellesområder, renter og avdrag andel fellesgjeld, garasjeplass og bod, felles forsikring, vaktmestertjeneste, trappevask, kommunale avgifter, drift, vedlikehold m.m.
Fellesutgiftene justeres normalt en til to ganger årlig i forhold til sameiets faktiske utgifter.
Fellesutgiftene fordeles slik:
Felleskostnader: kr 3 841,- (herav kapitalkostnader på kr 293,25)
Garasjeplass: kr 481,-
Bod: kr 35,-
Det er innført eiendomsskatt i Oslo kommune, men det tilkommer ikke eiendomsskatt på leiligheten pt.
Boligen er tilknyttet Telenor som leverandør av kabel-tv/internett og grunnpakke (Frihet M) er inkludert i felleskostnadene. Tv-tuner/dekoder medfølger.
Kjøper må selv tegne innboforsikring.
Selger har ikke bebodd eiendommen og har således ikke kjennskap til øvrige løpende utgifter for eiendommen.
Formuesverdi
Ved hjelp av skatteetatens boligkalkulator er boligens formuesverdi beregnet til kr 1 112 799,- for fjoråret når boligen benyttes som primærbolig.
Formuesverdien er en gitt prosent av den beregnede markedsverdien. Beregnet markedsverdi er basert på Statistisk sentralbyrå (SSB) sine opplysninger om omsatte boliger. I beregningen tas det hensyn til boligens beliggenhet, areal, byggeår og boligtype.
Det er eier av boligen som fastsetter formuesverdien, jf. skatteforvaltningsloven § 9-1 første ledd, men skattemyndighetene kan kontrollere at verdien er satt riktig.
Formuesverdi skal ikke overstige:
Primærbolig: 25 % av beregnet eller dokumentert markedsverdi opp til kr. 10 000 000, og deretter 70 % av den overskytende markedsverdi.
Sekundærbolig: 100 % av beregnet eller dokumentert markedsverdi.
Formuesverdier som overstiger disse grensene, kan kreves nedjustert av eier.
Fra 2026 har Stortinget vedtatt en oppdatert modell for beregning av formuesverdi for primærbolig, så avvik kan forekomme.
For mer informasjon se skatteetaten.no.
Opplysninger om fellesgjeld
Andel formue er kr 8 466,- pr. 31.12.2025.
Andel fellesgjeld er kr 7 315,- pr. 18.03.2026.
Total fellesgjeld for sameiet er kr 1 406 610,- pr. 18.03.2026 og lånevilkårene er:
Bank: OBOS-banken AS
Lånenr.: 98208122754
Lånetype: Annuitetslån
Rentesats: 6,80%
Innfrielsesdato: 30.05.2028
Type rente: Flytende rente
Terminer i året: 12
Administrasjonsavtale: Nei
Omkostninger
4 480 000,00 Prisantydning
7 315,00 Andel av fellesgjeld
--------------------------------------------------------
4 487 315,00 Pris inkl. fellesgjeld
Omkostninger
112 170,00 Dokumentavgift til staten (2,5% av kjøpesum)
9 950,00 Gjensidige Boligkjøperpakke (valgfri)
545,00 Tinglysing panterettsdokument
545,00 Tinglysing skjøte
--------------------------------------------------------
123 210,00 Omkostninger totalt
--------------------------------------------------------
4 610 525,00 Totalpris inkl. omkostninger
--------------------------------------------------------
Dersom sameiet har fellesgjeld, vil leilighetens andel av fellesgjelden komme i tillegg til kjøpesummen. Denne gjelden skal ikke innbetales i oppgjøret, men følger leiligheten.
Totalpris inkl. omkostninger forutsetter kjøp til prisantydning.
Det tas forbehold om endringer i avgifter og gebyrer.
Tilbud om lånefinansiering
Megler formidler gjerne kontakt med rådgiver hos vår samarbeidspartner BN Bank. De har konkurransedyktige betingelser samt rask og løsningsorientert behandling av din lånesøknad. Krogsveen mottar et honorar dersom lån opprettes.
Betalingsbetingelser
Kjøpesum inkludert omkostninger, samt pantedokument tilknyttet eventuelt lån, skal være disponibelt hos megler 2 virkedager før overtagelsen.
Annen viktig informasjon
Annen viktig informasjon
Eier
Anette Romskaug
Informasjon om sameiet
Leiligheten er tilknyttet Årvollskogen Boligsameie I, med sameiebrøk 76/14612.
Sameiet består av 145 boligseksjoner.
Forretningsfører er OBOS Eiendomsforvaltning AS, tlf. 22 86 55 00.
Dyrehold er tillatt så lenge dette ikke på en urimelig eller unødvendig måte er til skade eller ulempe for de øvrige brukerne av eiendommen.
Badstue, smørebod og innvendig sykkelparkering i garasjeanlegg disponeres av beboerne.
Foretatte påkostninger de senere år:
2024: Nye varmtvannsberedere i sameiets tekniske rom
2023: Fortsettelse utbedring av fasade
2022: Utskifting og forbedring av fordelerskap
Utbedring av fasade, herunder maling og utskiftning av planker der det er nødvendig
2021: Oppgradering og maling av fasaden på rekkehusene mot Årvollveien
Styret har oppgradert varmekabler i flere trapper
Normalt vedlikehold og utbedring for vifter/ventilasjon ved behov er foretatt gjennom året
Vanlig vedlikehold/kontroll og utbedring for heis ved feil ved behov er foretatt
2020: Rehabilitering i 58K
2018: Fasadeutbedring. Varmekabler i trappene
2017: Nytt berederrom, utskifting rørledninger
2013: Maling av fasader
Planlagte påkostninger:
Fasaden på blokk 58 mot parken skal rehabiliteres (panel skiftes) i 2026 og 2027, med en total estimert kostnadsramme på kr 6 500 000,-. Dette ble på årsmøtet i år vedtatt finansiert ved ekstra kapitalinnkreving, og vil fordeles over flere avdrag i 2026 og 2027. Utgiftene blir fordelt etter individuell brøk, og totalsummen for denne leiligheten kommer på kr 33.809,-. Summen fordeles på 9 innbetalinger med forfall 1. mars 2026, 1. april 2026, 1. mai 2026, 1. juni 2026, 1. mars 2027, 1. april 2027, 1. mai 2027 og 1. juni 2027.
I årsrapport for 2025 fremkommer det også følgende fremtidige planer:
- Det ble utarbeidet en tilstandsrapport fra OPAK i 2022. Denne anbefaler utskifting av brannvarslingsanlegget i en 5-10 årsperiode, altså at dette tidligst vurderes i 2027.
- I et lengre perspektiv er det behov for å vurdere taktekking. I rapporten er dette anbefalt å gjøre mot slutten av en ti-årsperiode, altså mot 2032.
- Det er avdekket et kabelbrudd på en varmekabel utvendig trapp. Dette må utbedres vår/sommer 2026.
Iht. sameiets vedtekter må kjøper godkjennes av styret som ny sameier. Det er kjøpers ansvar at styregodkjenning blir gitt, men styret kan ikke nekte godkjenning uten saklig grunn.
Vi gjør videre oppmerksom på at det iht. eierseksjonsloven ikke er anledning å erverve mer enn 2 seksjoner i sameiet, her teller også eierskap via. firma, nærstående og familie. Kjøper har risikoen for at overskjøting på denne bakgrunn kan nektes av Statens Kartverk. I så fall vil kjøper uansett være forpliktet til å gjennomføre handelen, og oppgjør til selger vil finne sted tross manglende overskjøting. Konferer med megler for mer informasjon.
Dokumenter for sameiet kan fås ved henvendelse til megler.
Overtakelse
Etter nærmere avtale.
Boligselgerforsikring
Selger har i forbindelse med salget tegnet Boligselgerforsikring levert av Gjensidige. Boligselgerforsikring dekker selgers ansvar etter avhendingsloven begrenset oppad til kr 14 millioner. Dersom kjøper oppdager forhold ved eiendommen som hen mener utgjør en mangel ved eiendommen, vil Gjensidige behandle reklamasjonen på vegne av selger. Forsikringsvilkår kan fås ved henvendelse til megler.
Vedlagt salgsoppgaven følger selgers egenerklæringsskjema og tilstandsrapport. Interessenter må sette seg inn i dokumentene før bud inngis. Egenerklæringen er fylt ut av arvingene iht deres kjennskap om eiendommen. Da de ikke har bebodd eiendommen kan kjennskapen være mangelfull.
Boligkjøperforsikring
Innen kontraktsmøtet må kjøper ta stilling til om det ønskes å bestille Boligkjøperpakken gjennom Gjensidige. I denne gunstige pakken er boligen ferdig forsikret og inkluderer rettshjelpsforsikring, også kalt Boligkjøperforsikring. Rettshjelpsforsikring gir trygghet og tilgang på profesjonell juridisk hjelp dersom det oppdages uventede feil eller mangler det første året etter overtagelse. Forsikringsselskapet behandler i så fall ethvert mangelskrav kjøper måtte ha overfor selger.
Boligkjøperpakken inkluderer bygningsforsikring for hus og hytte, innboforsikring, flytteforsikring og dobbel rentedekning - i situasjoner hvor kjøper ikke får solgt nåværende primærbolig.
Kjøper mottar ingen særskilt faktura for Boligkjøperpakken da kostnaden det første året legges til kjøpesummen for boligen. Det gjøres oppmerksom på Krogsveen mottar et honorar for denne formidlingen.
Produktark for Boligkjøperpakken ligger vedlagt i salgsoppgaven.
Dersom ikke boligkjøperpakke ønskes kan kun rettshjelpsforsikring, også kalt boligkjøperforsikring, tegnes særskilt via megler. Rettshjelpsforsikringen varer i 5 år fra overtagelse og leveres gjennom Gjensidige. Ta kontakt med megler for ytterligere informasjon.
Selskap og privatpersoner som driver med kjøp/salg/utvikling som ledd i egen næringsvirksomhet kan ikke tegne boligkjøperpakke eller rettshjelpsforsikring.
Budgivning
Forbrukerinformasjon om budgivning er vedlagt denne salgsoppgaven og er også på vår hjemmeside Krogsveen.no. Alle bud og budforhøyelser må inngis skriftlig. I tillegg må legitimasjon være fremlagt sammen med signatur fra budgiver.
Vi oppfordrer til å gi bud elektronisk via GI BUD-knappen på eiendommens hjemmeside på Krogsveen.no. Da vil samtlige vilkår bli oppfylt.
Eventuelle forhøyelser eller endringer av budet kan bekreftes pr SMS eller på e-post. Vi oppfordrer alltid til å kontakte megler pr. telefon i tillegg da forsinkelser i SMS og e-post kan forekomme.
For at budene skal kunne bli behandlet og videreformidlet skriftlig til alle involverte parter, må alle bud ha en tilstrekkelig lang akseptfrist, jf. eiendomsmeglingsforskriften § 6-3.
Selger må også skriftlig akseptere budet før aksept kan formidles til budgiver. Akseptfrist bør derfor være på minimum 30 minutter, og budforhøyelser må derfor skje i god tid før fristens utløp.
Bud i forbrukerforhold kan uansett ikke settes med kortere frist enn kl. 12.00 første virkedag etter siste annonserte visning. I tillegg kan ikke budet ha forbehold om at det skal holdes hemmelig ovenfor øvrige interessenter. Megler har iht lov om eiendomsmegling ikke anledning til å videreformidle disse budene, og de vil dermed heller ikke bli journalført.
Etter at eiendommen er solgt vil kjøper og selger få tilsendt budjournal. Øvrige budgivere kan få utlevert kopi av budjournalen i anonymisert form.
Hvitvaskingsreglene
I henhold til lov om hvitvasking og terrorfinansiering har megler plikt til å gjennomføre kontrolltiltak overfor kunder, herunder fullmektiger. Dette innebærer bl.a. å bekrefte kunders og reelle rettighetshaveres identitet på bakgrunn av fremvist gyldig legitimasjon eller på annen godkjent måte, samt å innhente opplysninger om kundeforholdets formål og tilsiktede art.
Dersom slike kundetiltak ikke kan gjennomføres, kan megler ikke etablere kundeforholdet eller utføre transaksjonen.
Hvis kjøper ikke bidrar til gjennomføring av kundekontrollen og dette fører til at transaksjonen blir forsinket eller ikke kan gjennomføres, vil dette ansees som mislighold av avtalen og gi selger rettigheter etter avhendingslova kapittel 5. I tilfeller der selger ikke bidrar til gjennomføring av løpende kundekontroll underveis i oppdraget, er det selger som misligholder sine forpliktelser etter avtalen og gi kjøper rettigheter etter avhendingslovens kapittel 4. Partene er selv ansvarlige for eventuelle kostnader og ansvar dette kan medføre. Eiendomsmegleren eller eiendomsmeglingsforetaket kan ikke holdes ansvarlig for de konsekvenser dette vil kunne få for partene eller andre som har interesser i eiendomshandelen.
Kjøper oppfordres til å innbetale kjøpesummen som ikke kommer fra låneinstitusjon i én samlet innbetaling fra egen konto i norsk bank. Megler har plikt til å melde fra til Økokrim om eiendomshandler som fremstår som mistenkelige. Melding sendes Økokrim uten at partene varsles.
Personopplysningsloven
I henhold til personopplysningsloven gjør vi oppmerksom på at interessenter kan bli registrert for videre oppfølging.
Lovanvendelse
Generelle bestemmelser
Salgsoppgaven er basert på de opplysningene selger har gitt til megler, den bygningssakyndiges tilstandsrapport, samt opplysninger innhentet fra kommunen, Kartverket og andre tilgjengelige kilder. Det er viktig at kjøper setter seg grundig inn i alle salgsdokumentene, herunder salgsoppgave, tilstandsrapport og selgers egenerklæring. Kjøper anses kjent med forhold som er tydelig beskrevet i salgsdokumentene, og slike forhold kan ikke påberopes som mangler. Dette gjelder uavhengig av om kjøper har lest dokumentene. Alle interessenter oppfordres til å undersøke eiendommen nøye, gjerne sammen med fagkyndig før bud inngis. Kjøper som velger å kjøpe usett kan ikke gjøre gjeldende som mangel noe han burde blitt kjent med ved undersøkelsen.
Dersom det er behov for avklaringer, anbefaler vi at interessenter rådfører seg med eiendomsmegler eller egne rådgivere før det legges inn bud.
En bolig som har blitt brukt i en viss tid, har vanligvis blitt utsatt for slitasje og skader kan ha oppstått. Slik bruksslitasje må kjøper regne med, og det kan avdekkes enkelte forhold etter overtakelse som nødvendiggjør utbedringer. Normal slitasje og skader som nødvendiggjør utbedring, er innenfor hva kjøper må forvente og vil ikke utgjøre en mangel.
Kjøper og selgers rettigheter og plikter reguleres av avtalen mellom partene, samt informasjonen som har vært tilgjengelig for kjøperen i forbindelse med handelen. Avtalen utfylles av avhendingsloven, og det gjelder ulike avtalevilkår avhengig av om kjøper er forbrukerkjøper eller ikke. Dette er nærmere beskrevet nedenfor.
På grunn av ulike avtalevilkår kan selger vurdere bud fra en som ikke er forbruker, ulikt fra en forbrukers bud. Dersom kjøper ikke er forbruker, er selger sitt mulige mangelsansvar begrenset fordi eiendommen selges "som den er". Selger kan ikke ta «som den er»- forbehold overfor en forbrukerkjøper. Selv et lavere bud fra en som ikke er forbruker kan foretrekkes fordi begrensningen i mulig mangelsansvar kan ha egenverdi for selger. Selger står fritt til å forkaste eller akseptere ethvert bud, og er for eksempel ikke forpliktet til å akseptere høyeste bud.
Budgiver skal i budskjema avgi egenerklæring om budgiver er forbruker eller næringsdrivende/ person som hovedsakelig handler som ledd i næringsvirksomhet. Budgivere får informasjon dersom andre bud er inngitt av en som ikke er forbruker.
Forbrukerkjøp - definisjon
Med forbrukerkjøp menes kjøp av eiendom når kjøperen er en fysisk person som ikke hovedsakelig handler som ledd i næringsvirksomhet.
Forbruker – avtalevilkår
Eiendommen har en mangel dersom den ikke er i samsvar med kravene som følger av avtalen, eller det foreligger brudd på bestemmelsene i avhendingsloven §§ 3-2 til 3-8. Hvis eiendommen ikke er i samsvar med det kjøperen må kunne forvente ut ifra alder, type og synlig tilstand, kan det være grunnlag for mangelskrav. Det samme gjelder hvis det er holdt tilbake eller gitt uriktige opplysninger om eiendommen. Dette gjelder likevel bare dersom man kan gå ut ifra at det virket inn på avtalen at opplysningen ikke ble gitt eller at mangelskravet ikke blir rettet i tide på en tydelig måte.
Boligen kan ha en mangel etter avhendingsloven § 3-3 andre ledd, dersom det er avvik mellom opplyst og faktisk innvendig areal, forutsatt at avviket er på 2% eller mer og minimum 1 kvm.
Ved beregning av et eventuelt prisavslag eller erstatning må kjøper selv dekke tap/kostnader opptil et beløp på kr 10 000 (egenandel).
Ikke-forbruker (næringsdrivende) – definisjon
Hvis kjøper er en juridisk person, eller en fysisk person som hovedsakelig handler som ledd i næringsvirksomhet, vil kjøpet ikke anses som et forbrukerkjøp.
Ikke-forbruker – avtalevilkår
Eiendommen har en mangel dersom den ikke er i samsvar med kravene som følger av avtalen.
Eiendommen selges «som den er», og selgers ansvar utover det konkret avtalte er da begrenset etter avhendingsloven § 3-9, første ledd andre setning.
Avhendingsloven § 3-3 andre ledd fravikes, og hvorvidt boligens arealsvikt utgjør en mangel vurderes etter avhendingsloven § 3-8.
Informasjon om kjøpers undersøkelsesplikt, herunder oppfordringen om å undersøke eiendommen nøye, gjelder også for kjøpere som ikke anses som forbrukere.
Det forutsettes at hjemmel overføres til kjøper. Hvis kjøper ikke ønsker hjemmelsoverføring av eiendommen, må det tas forbehold om dette i budet.
Meglers vederlag
Meglers vederlag betales av selger og er avtalt til:
Vederlag: 1,25 % av salgssummen inkl. eventuell fellesgjeld. Minimumsprovisjon er kr 60 000,00
Vederlag:
Kontroll av hjemmel og heftelser kr 3 900,00
Markedsføringspakke kr 30 900,00
Oppgjør kr 8 900,00
Tilrettelegging kr 19 900,00
Visninger pr stk / Overtagelse kr 4 500,00
Utlegg:
Eierskiftegebyr forretningsfører - OBOS kr 6 725,00
Innhenting av informasjon forretningsfører kr 4 225,00
Tinglysing sikring kr 545,00
Andre utgifter:
Boligselgerforsikring Gjensidige Snr - regnes av prisantydning kr 21 434,-
Foto kr 5 550,00
Tilstandsrapport kr 10 000,00
Vi er opptatt av verdiskapning, og har knyttet til oss samarbeidspartnere som skal sikre våre kunder de beste produkter og tjenester;
• Gjensidige leverer boligselgerforsikring og tilbyr bygningsforsikring
• Boligkjøperforsikring leveres av Hiscox og med Sedgwick som skadebehandler, og er formidlet gjennom Gjensidige.
• BN bank tilbyr finansieringsløsninger
• Vår avdeling Krogsveen Pluss tilbyr flyttetjenester som utvask, visningsvask, lager, tømming og transport av flyttelass, i tillegg til å formidle kontakt med Flip for overflateoppussing.
• I forbindelse med overtagelse av eiendommen tilbyr Overo avtale om strøm, alarm og bredbånd.
• Krogsveen er, sammen med øvrige bransjeaktører, medeier i Bomega AS som tilbyr den digitale annonseringsplattformen Hjem.
Opplysninger om oppdraget
Oppdragsnummer 39-0058/26
Eiendomsmegler Krogsveen AS, avd. Årvoll
Lofthusveien 66, 0588, OSLO
950 007 613
Oppdragets KR-kode KR39.2658
Dato
Sist oppdatert: 05. april 2026 kl. 15:26
Dokumenter
Dokumenter
PDF – 902 KB
PDF – 627 KB
PDF – 2 MB
PDF – 312 KB
PDF – 29 KB
PDF – 127 KB
PDF – 392 KB
Område
Legg til steder som er viktige for deg
Visning
Unngå doble boligrenter
Vi tilbyr gunstig forsikring.
Vurderer du utleie?
Få et tilbud fra Utleie KrogsveenHva koster lånet?
Sjekk estimert lånekostnadVil du varsles om lignende boliger?
Ved å lagre ditt boligsøk hos oss får du beskjed når vi har en bolig som ligner denne, før den legges ut på markedet!

