Maridalsveien 205
3 690 000 kr
36 m²
1 soverom
Solgt

Presenteres av
Tom MartinsenBjølsen / Nydalen
Sjarmerende og pen leilighet med stor balkong | God planløsning | Varmtvann & internett inkludert | Nært BI og Akerselva
Prisantydning
3 690 000 krAndel fellesgjeld
521 872 krOmkostninger
10 495 krTotalpris
4 222 367 kr
Pris
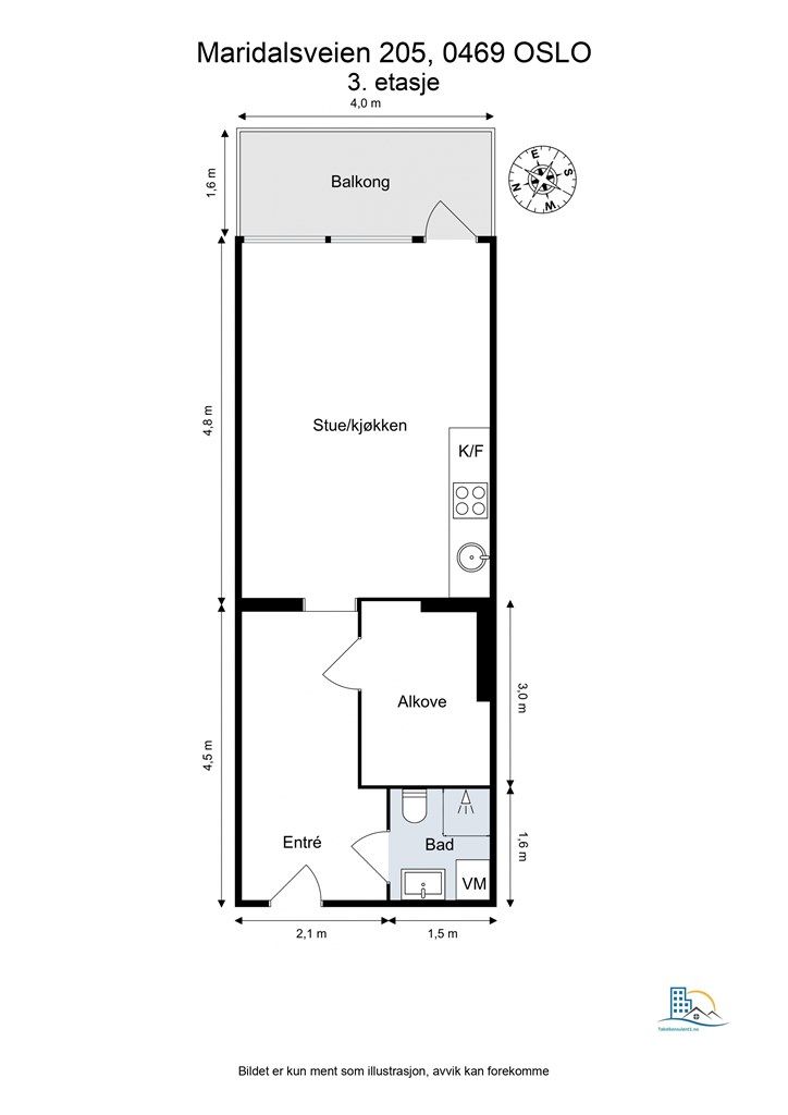
Bruksareal
38 m²BRA-I (internt bruksareal)
36 m²BRA-E (eksternt bruksareal)
2 m²TBA (terrasse-balkongareal)
6 m²
Areal
Etasje
3Byggeår
1940Soverom
1 soveromBad
1 badType
AksjeleilighetEierform
AksjeFasiliteter
Balkong/TerrasseFellesutgifter
5 217 krEnergimerke
Rød C
Nøkkelinfo
Unngå doble boligrenter
Vi tilbyr gunstig forsikring.
Vurderer du utleie?
Få et tilbud fra Utleie KrogsveenHva koster lånet?
Sjekk estimert lånekostnadBeskrivelse
Kort om eiendommen
Tom Martinsen v/ Krogsveen har gleden av å presentere Maridalsveien 205!
En lys og innbydende 1-roms med sovealkove, praktisk planløsning og en romslig balkong. Her bor du i byggets 3.etasje i et ettertraktet og hyggelig boligområde på Bjølsen, like ved BI og Storo. Med Akerselva som nærmeste nabo har du fine turmuligheter som tar deg gjennom Grünerløkka til sentrum eller opp til Nordmarka og Maridalsvannet med turstier hele året. Tilknyttet aksjesameiet finnes det både gjesteparkering og mulighet for å leie parkeringsplass. Rask overtakelse mulig!
Varmtvann og internett inkludert
Solrik, østvendt balkong
Veletablert borettslag
Kjellerbod på 2 kvm
Sentral beliggenhet
Rett ved Akerselva
Sovealkove
Velkommen til visning!
Område
Legg til steder som er viktige for deg
På flyttefot? Tenk kjøp og salg samtidig.
Få din egen rådgiver gjennom hele kjøps- og salgsprosessen. Det starter med en verdivurdering.
Unngå doble boligrenter
Vi tilbyr gunstig forsikring.
Vurderer du utleie?
Få et tilbud fra Utleie KrogsveenHva koster lånet?
Sjekk estimert lånekostnadVil du varsles om lignende boliger?
Ved å lagre ditt boligsøk hos oss får du beskjed når vi har en bolig som ligner denne, før den legges ut på markedet!
På flyttefot? Slik gjør vi det enklere for deg
Skreddersydd flyttepakke
Vi fikser håndverkere, vask, pakking, lagring og transport, og legger ut for utgiftene underveis.
Hjelp med både kjøp og salg
Hos oss har du din egen rådgiver gjennom hele kjøps- og salgsprosessen.
Hjelp til finansiering
Vårt samarbeid med BN Bank sikrer deg rask og løsningsorientert hjelp, til konkurransedyktige betingelser.

