Freidigveien 8
12 500 000 kr
173 m²
3 soverom
Solgt
Nordstrand
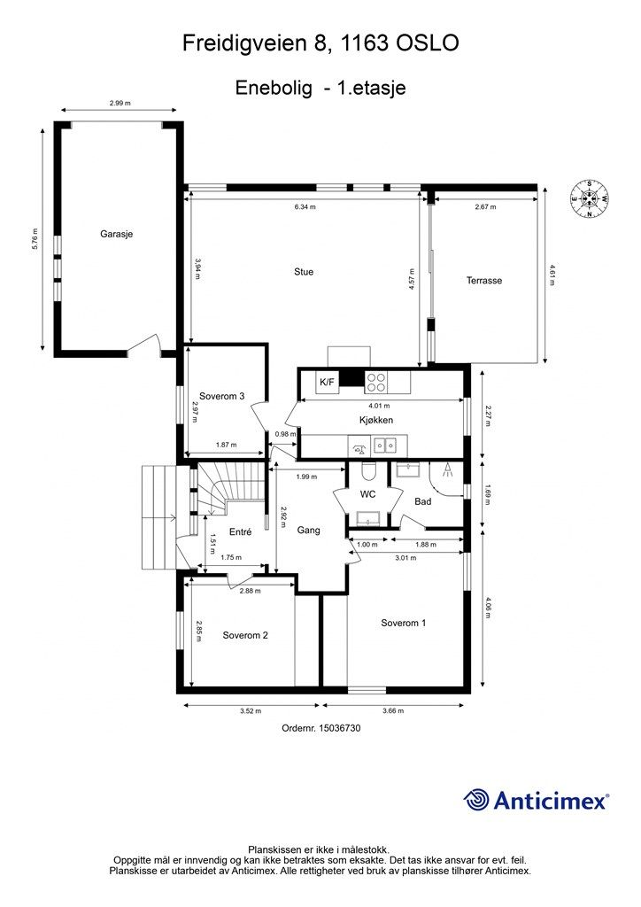
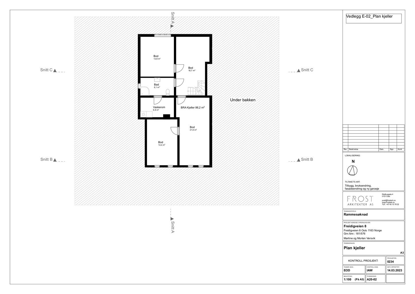
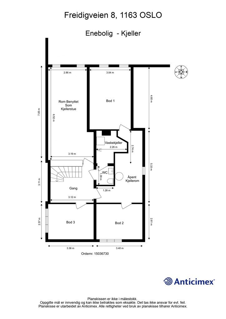
Frittliggende enebolig med garasje. (Ca. 191 kvm bra.) Rammetillatelse for tilbygg. Stort potensial for den rette.
Prisantydning
12 500 000 krOmkostninger
333 490 krTotalpris
12 833 490 kr
Pris
Bruksareal
191 m²BRA-I (internt bruksareal)
173 m²BRA-E (eksternt bruksareal)
18 m²TBA (terrasse-balkongareal)
12 m²
Areal
Byggeår
1961Soverom
3 soveromBad
2 badTomteareal
903 m² (eiet)Type
Enebolig - FrittliggendeEierform
EietFasiliteter
Garasje/P-plass og Balkong/TerrasseEnergimerke
Oransje F
Nøkkelinfo
Unngå doble boligrenter
Vi tilbyr gunstig forsikring.
Vurderer du utleie?
Få et tilbud fra Utleie KrogsveenHva koster lånet?
Sjekk estimert lånekostnadBeskrivelse
Kort om eiendommen
Velkommen til Freidigveien 8, en frittliggende enebolig med en solrik og barnevennlig beliggenhet, ved Nordstrandhallen. Boligen har en meget innholdsrik og gjennomtenkt planløsning på ett plan der alle primærbehovene er ivaretatt. Romslige oppholdsrom med store vinduer mot vest, som gir god kontakt mellom hus og hage. I tillegg har boligen full kjeller og garasje. Oppgradering må påregnes. Nåværende eier har fått en godkjent rammetillatelse på tilbygg på ca. 24 kvm. i tillegg til en dobbelgarasje. Tillatelsen er også godkjent for diverse bruksendringer i eksisterende bolig. Attraktiv beliggenhet, tilbaketrukket og skjermet, med direkte adkomst til det Nordstrand har å by på.
Område
Legg til steder som er viktige for deg
På flyttefot? Tenk kjøp og salg samtidig.
Få din egen rådgiver gjennom hele kjøps- og salgsprosessen. Det starter med en verdivurdering.
Unngå doble boligrenter
Vi tilbyr gunstig forsikring.
Vurderer du utleie?
Få et tilbud fra Utleie KrogsveenHva koster lånet?
Sjekk estimert lånekostnadVil du varsles om lignende boliger?
Ved å lagre ditt boligsøk hos oss får du beskjed når vi har en bolig som ligner denne, før den legges ut på markedet!




