Skogfaret 25A
15 950 000 kr
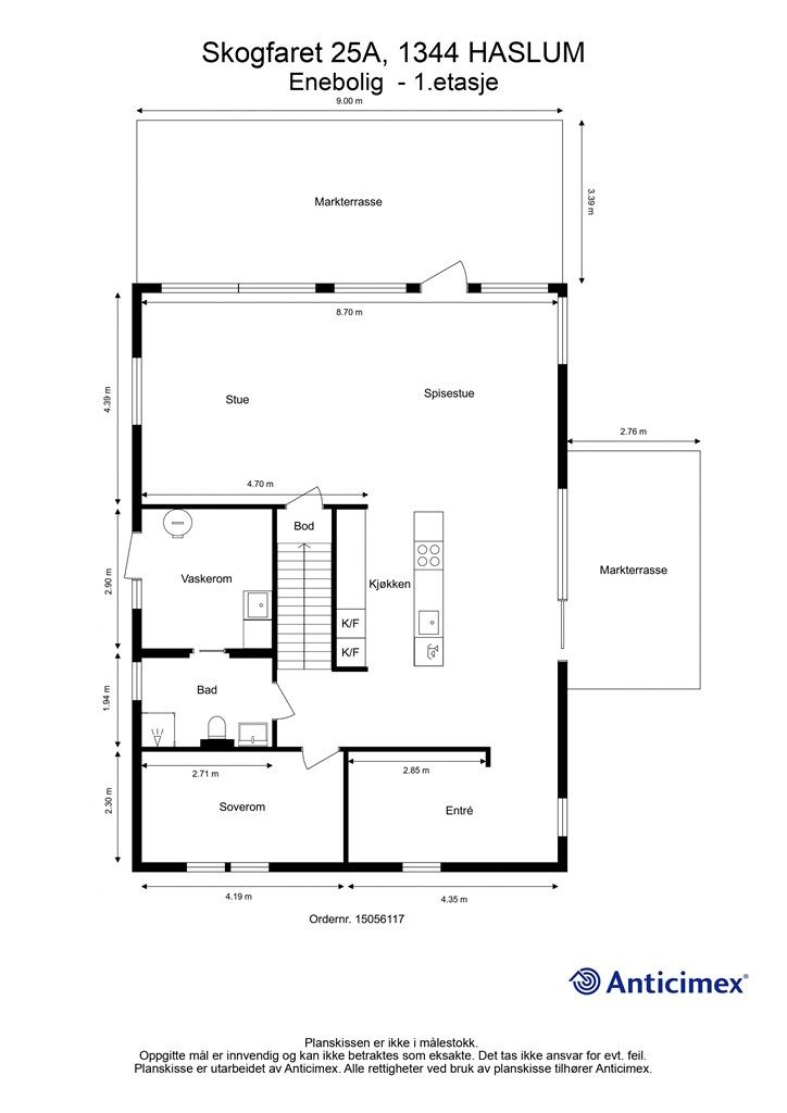
215 m²
5 soverom
Solgt

HASLUM
Høyt beliggende og moderne utsiktseiendom o/2 plan fra 2021 m/barnevennlig beliggenhet -Fantastiske solforhold -Garasje
Prisantydning
15 950 000 krOmkostninger
419 740 krTotalpris
16 369 740 kr
Pris
Bruksareal
215 m²BRA-I (internt bruksareal)
215 m²TBA (terrasse-balkongareal)
41 m²
Areal
Etasje
2Byggeår
2021Soverom
5 soveromBad
2 badTomteareal
801 m² (eiet)Type
Enebolig - FrittliggendeEierform
EietFasiliteter
Garasje/P-plass og Balkong/TerrasseEnergimerke
Grønn B
Nøkkelinfo
Unngå doble boligrenter
Vi tilbyr gunstig forsikring.
Vurderer du utleie?
Få et tilbud fra Utleie KrogsveenHva koster lånet?
Sjekk estimert lånekostnadBeskrivelse
Kort om eiendommen
Høyt beliggende og moderne enebolig fra 2021 med svært barnevennlig og ettertraktet beliggenhet på Haslum. Boligen har høy standard, gjennomtenkt planløsning og luftige rom med 2,5 meters takhøyde. Hele fem soverom, inkl. hovedsoverom med walk-in closet, og flere stueseksjoner gir plass til hele familien.
Boligen byr på to lekre bad, vaskerom med egen inngang og et stilrent kjøkken fra Drømmekjøkkenet med grillplass rett utenfor kjøkkendelen. Pent opparbeidede uteområder og sørvendt terrasse med god boltreplass. Her kan du nyte flott utsikt utover Kolsåstoppen og sol fra morgen til kveld.
Med vannbåren varme, balansert ventilasjon og Kebony-kledning får du en vedlikeholdsvennlig bolig. Med nærhet til skoler, barnehager, kollektivtilbud og Bærumsmarka gjør dette til en sjelden mulighet!
Område
Legg til steder som er viktige for deg
På flyttefot? Tenk kjøp og salg samtidig.
Få din egen rådgiver gjennom hele kjøps- og salgsprosessen. Det starter med en verdivurdering.
Unngå doble boligrenter
Vi tilbyr gunstig forsikring.
Vurderer du utleie?
Få et tilbud fra Utleie KrogsveenHva koster lånet?
Sjekk estimert lånekostnadVil du varsles om lignende boliger?
Ved å lagre ditt boligsøk hos oss får du beskjed når vi har en bolig som ligner denne, før den legges ut på markedet!

