Sømveien 9A
5 450 000 kr
49 m²
2 soverom
Komplett salgsoppgave

Kjelsås
Gjennomgående og nydelig 3-roms leilighet med utgang til solrik balkong og terrasse. Fyring inkludert.
Prisantydning
5 450 000 krAndel fellesgjeld
235 039 krOmkostninger
153 160 krTotalpris
5 838 199 kr
Pris
Bruksareal
60 m²BRA-I (internt bruksareal)
49 m²BRA-E (eksternt bruksareal)
11 m²TBA (terrasse-balkongareal)
25 m²
Areal
Etasje
1Byggeår
1956Soverom
2 soveromBad
1 badType
EierleilighetEierform
EierseksjonFasiliteter
Balkong/TerrasseFellesutgifter
5 244 krEnergimerke
Grønn G
Nøkkelinfo
Unngå doble boligrenter
Vi tilbyr gunstig forsikring.
Vurderer du utleie?
Få et tilbud fra Utleie KrogsveenHva koster lånet?
Sjekk estimert lånekostnadDette liker selger best ved boligen
Enkel tilgang til flott uteområde. Svært god planløsning. Rolig område med nærhet til nærhet til Nordmarka og badeområde på Frysja. Kollektivtilbudet er bra og det er kun 14 min til Oslo S med tog fra Kjelsås stasjon som ligger 4 minutt gange unna.
Beskrivelse
Kort om eiendommen
Velkommen til en nydelig 3-roms leilighet med god planløsning. Leiligheten ligger i første etasje med utgang til solrik balkong, og ned til en terrasse. Leiligheten oppleves som delikat med moderne fargevalg på vegger, samt 1-stavs gulv, Kvik kjøkken og flislagt bad.
Her bor man i hyggelig omgivelser med store grønne fellesarealer, samt nærheten til turområder langs Akerselven, Maridalen og Nordmarka. Fra leiligheten er det kort vei til offentlige kommunikasjonsmuligheter som buss og tog på Kjelsås Stasjon. Søndagsåpen Joker på Frysja.
- Fyring inkludert
- Parkering i offentlig gate utenfor sameiet tomt.
- Fibernett og kabel-tv inkludert
Innhold og byggemåte
Innhold og byggemåte
Eiendommen
Sømveien 9A, 0493 OSLO
Kommunenummer 301, gårdsnummer 72, bruksnummer 62, seksjonsnummer 42, ideell andel 1/1
Innhold
Totalt bruksareal BRA: 60 kvm
BRA-i:
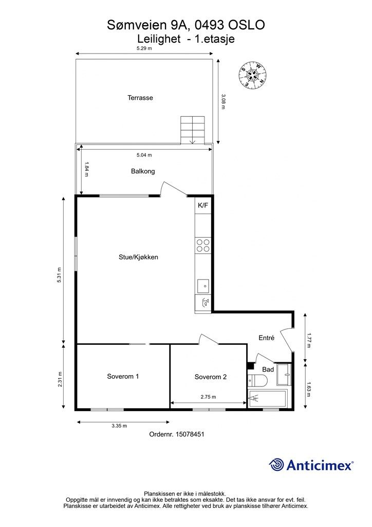
1. etasje 49 kvm: Entré, åpen stuekjøkkenløsning, bad og to soverom.
BRA-e:
1. etasje 11 kvm: Bod og bod benyttet som vaskerom.
Åpent areal:
1. etasje 25 kvm: Terrasse og balkong.
Leiligheten disponerer 2 boder i kjelleren. Det gjøres oppmerksom på at boligens eksterne boder tilhører sameiet fellesareal, og at boden således ikke eies av den enkelte sameier. Dette medfører at sameiet i fellesskap beslutter bruken, og at man ikke selv har eierrett og rettsvern for boden. Sameiet kan ved vedtak beslutte annet bruk av fellesarealet og disponering av bodarealet kan dermed opphøre.
Den ene boden er innredet som vaskerom av tidligere eier.
Vedlagte plantegninger er ikke målbare. De oppgitte arealer er hentet fra rapport med befaringsdato 21.01.2026 utført av Anticimex v/John O. Ljungblom. Arealene er beregnet og rom er definert etter dagens faktiske bruk, uavhengig av hva som er godkjent av bygningsmyndighetene.
Planløsningen på leiligheten har blitt gjort om siden byggeår, og det vises til beskrivelse om dette under ferdigattest.
Byggemåte
Selger har fått utarbeidet en tilstandsrapport, dvs. en teknisk gjennomgang av boligen hvor eventuelle avvik, risiko for kjøper og prisoverslag for hva som bør gjøres av oppgradering, er skissert. Se særskilt TGIU (tilstandsgrad ikke undersøkt), samt TG2 og TG3 som viser hva som er boligens normale slitasje, alder og type, hva som er avvik fra dette og hva som bør/må utbedres. Rapporten og selgers egenerklæring er en del av salgsoppgaven og må leses nøye før bud inngis. Kjøper overtar ansvaret for de opplysninger som fremkommer av salgsdokumentasjonen, og kan ikke gjøre gjeldende som mangel noe som burde vært kjent eller som ikke kan anses å ha betydning for avtalen.
Bygningen er iht. tilstandsrapporten oppført i tre. Bygningen har støpt gulv mot grunn. Grunnmur av betong/murkonstruksjon. Bærende vegger av betong/murkonstruksjoner og metallbjelke. Etasjeskillere av trekonstruksjoner og betongkonstruksjoner mot kjelleretasje. Yttervegger utvendig kledd med stående og liggende trekledning. Tak av trekonstruksjoner tekket med papp/plater (taket er ikke besiktiget). Leiligheten har entredør med brannklasse og lydklasse dB. Balkongdør og vinduer med to-lags glass og karmer/rammer av tre fra 2000.
Les for øvrig mer om byggemåte og den tekniske tilstanden i rapporten.
Det gjøres spesielt oppmerksom på der det har blitt gitt TG2 i rapporten:
Våtrom/Bad:
Det registreres bomlyd (tegn til hulrom) under enkelte gulvfliser. Eksakt årsak er ikke kjent. Forholdet indikerer manglende vedheft mellom flis og underlag. Det er også registrert noe avskalling i badekar.
Kjøkken:
Det er kun kullfilter og ikke separat avtrekk fra rommet.
Øvrige rom:
Det er registrert skjevheter på gulvet i rommene kjøkken/stue og mot entré, samt noe knirk på gulvene.
Tekniske anlegg, VVS anlegg:
Vannrør av kobber i bygningen og avløpsrør av i bygningen er vurdert til å ha en alder som tilsier at anbefalt brukstid er passert. Varmtvannsberederen er eldre og det anbefales å ha jevnlig ettersyn slik at man ser når det vil være behov for tiltak.
Vannbåren varme er i hovedsak eldre anlegg/element i leiligheten uten påviste skader/lekkasjer. TG2 er valgt på grunn av alder og tilstand. Det kan ikke utelukkes behov for reparasjoner/utskiftning.
Dører og vinduer:
Dører og vinduer er av eldre dato.
Balkong og terrasse:
Er av alder som tilsier at oppgraderinger og vedlikehold bør påregnes ved behov.
Sammendrag og utdrag av selger egenerklæringsskjema:
- Vannlekkasje på badet i 2024. Reparasjoner utført av Servicealliansen gjennom Gjensidige.
Standard
Entré:
Hyggelig entré i leiligheten med gode oppvaringsmuligheter for ytterklær og sko.
Stue med åpen kjøkkenløsning:
Luftig stue og lys stue med flere innredningsmuligheter. Åpen kjøkkenløsning til stuen som gir rommet et sosial løsning mot spisedelen. Det er plass til sofaseksjon, tv-seksjon og spisebord i dette rommet.
Kjøkkenet er fra Kvik og inneholder integrerte hvitevarer som komfyr, induksjonsplatetopp, frys-/kjøleskap og oppvaskmaskin. Kjøkkenet har slette fronter, benkeplate av laminat og sort vask med Grohe Essence blandebatteri med L-kran og utrekkbar hånddusj.
Fra stuen/kjøkkenet er det utgang til overbygget balkong på 9 kvm. Her er det god plass til sittegruppe, grill og diverse balkongmøbler. Det er montert markise som skjermer mot sol. Fra balkongen er det trapp ned til terrasse på rundt 16 kvm. Terrassen og balkongen er sydvestvendt og har således meget gode solforhold.
Bad:
Nydelig og pent bad med gulvvarme og fliser på vegger og gulv. Badet inneholder badekar (som også kan monteres lett av), blandebatteri i børstet nikkel fra Tapwell, servant og rundt speil med lys fra Foss bad. Gulvfliser i dusjsonen med avløp.
To soverom:
Leiligheten har to soverom, der det ene er av størrelsen hovedsoverom og det andre gjesterom/barnerom/hjemmekontor.
På hovedsoverommet er det et stort og romslig skyvedørsgarderobe, og det er plass til dobbeltseng. Det andre soverommet er også av god størrelse med plass til sen, pult og skrivebord. Det er også opphengt veggskap for mer oppbevaring.
Diverse:
En av kjellerbodene som disponeres for leiligheten er i ettertid innredet som vaskerom. Denne endringen er ikke meldt inn til styret eller bruksendret hos kommunen. Vaskemaskin og tørketrommel tilhører selger og medfølger ikke handelen. Det er ikke sluk i boden, så dagens eier overtar ansvar og risiko for bruken som vaskerom i boden.
Løsøre og tilbehør
Vi viser til liste fra Norges Eiendomsmeglerforbund som gjelder fra 01.01.2020 angående løsøre og tilbehør.
Vaskemaskin og tørketrommel på vaskerommet nede i kjelleren er selger sine hvitevarer og følger ikke med handelen.
Oppvarming
Leiligheten har oppvarming med radiatorer via sentralvarme og gulvvarme på bad.
Dersom beboelsesrom ikke har vegg- eller fastmonterte varmekilder ved visning, følger dette heller ikke med.
Ferdigattest/brukstillatelse
Det foreligger ferdigattest på eiendommen datert 19. februar 1965.
Det foreligger også ferdigattest endring/reparasjon av bygningstekniske installasjoner datert 15.11.2023. Dette gjelder utsparing av bærevegg.
I ettertid av ferdigattesten har det blitt gjort endringer i planløsningen på leiligheten, der kjøkkenet er flyttet ut til stuen og dette rommet er gjort mindre og innredet som soverom. Denne endringen er gjort av tidligere eier. Dagen eier har fått ferdigattest for bæresøylen som refereres ovenfor angående utsparing av bæreveggen. Endring av planløsningen er ikke meldt inn, og ny eier overtar således ansvar og risiko selv for å søke til kommunen om bruksendring.
Ferdigattester med tegninger ligger vedlagt i salgsoppgaven.
Tinglyste heftelser og rettigheter
Leiligheten overdras fri for pengeheftelser med unntak av:
Dokumentnr: 40175, tinglyst: 25.06.1987 - Panterett uten opptrinnsrett til sameiet for NOK 10.000,-. Gjelder for hele sameiet.
Sameiet har legalpant for krav mot sameieren som følger av sameieforholdet iht. eierseksjonsloven § 31. Pantet er begrenset oppad til 2G, (G = folketrygdens grunnbeløp). I tillegg har sameiet tinglyst panterett som nevnt over.
Det er tinglyst 10 servitutter på sameiets eiendom. Disse omhandler blant annet bestemmelser om bebyggelse, veg, gjerde, vann-/kloakkledning, vedtak av Oslo kommunes vann-/kloakkreglement, bestemmelse om trafostasjon/kiosk og erklæring om panterett uten opptrinnsrett til sameiet.
Servituttene vil følge eiendommen. Kjøpers bank vil få pant etter ovennevnte heftelser og servitutter.
Eventuell adgang til utleie
Leiligheten kan leies ut såfremt leiligheten har forsvarlige radonverdier. Leietaker må følge sameiets vedtekter og ordensregler på lik linje som eier.
Det er krav til forsvarlige radonnivåer ved utleie. Det er målt radonverdi på det høyeste årsmiddelverdi 38Bq/m3 og med høyeste måleverdi 53 Bq/m3 i leiligheten, og dette er innenfor angitt grenseverdi.
Beliggenhet og tomteforhold
Beliggenhet og tomteforhold
Beliggenhet
Eiendommen har en meget attraktiv beliggenhet i et rolig boligområde med nærhet til Akerselva og marka. Boligen ligger i en trafikkstille gate med gangavstand til fasiliteter som offentlig kommunikasjon, barnehager, skoler og gode servicetilbud. Det er kort vei til Grefsenplatået med blomsterbutikk/grønnsakhandel, restaurant og pub.
Området kan by på store grøntarealer med lekeplasser, fotballbaner, samt kort vei til alpinanlegg i Grefsenkleiva. Like nedenfor Maridalsvannet ligger Brekkedammen ved Frysja, med populære friområder og idylliske badeplasser. Trikkehallen som ligger i nærheten, er kjent for sitt rike aktivitets- og kulturtilbud for barn og ungdom. Teknisk museum, som er en turistattraksjon, ligger ca. 7 minutter gange fra boligen.
Det går turvei langs Akerselva nedover til sentrum gjennom Nydalen med alle sine butikker, kafeer og restauranter. På toppen av Grefsenkleiva ligger populære Grefsenkollen restaurant med fantastisk utsikt. Grefsen Tennisklubb har et flott anlegg med syv baner og Kjelsås Idrettslag tilbyr i tillegg bl.a. basketball, fotball, håndball, langrenn, orientering og allidrett.
Fra boligen er det umiddelbar nærhet til offentlig kommunikasjon som raskt tar deg til mer sentrale deler av hovedstaden. Buss og tog fra Kjelsås stasjon, trikk fra Kjelsåsalléen og T-bane fra Storo. Det tar ca. 10 minutter å sykle til Torshov og ca. 15 minutter til Grünerløkka.
Adkomst
Enkel adkomst fra Sømveien. Det vil bli skiltet med Krogsveen visningsskilt ved fellesvisninger.
Barnehager, skoler og fritid
Boligen sokner til Kjelsås skole (1.-7. trinn) og Engebråten skole (8.-10. trinn). Det er også flere kommunale og private barnehager i området som blant annet Engebråten barnehage, Kjelsås skole barnehage og Stilla barnehage.
Dersom skole- og barnehagetilbud er av betydning for kjøpet, ber vi om at det rettes en særskilt henvendelse til kommunen/bydelsadministrasjonen for oppdatert informasjon
Beskrivelse av tomt
Eiertomt på 18.946 kvm kvm som tilhører sameiet. Tomten er fellesareal. Fellesarealet er pent opparbeidet med store grøntarealer som omkranser byggene med plen, trær og diverse beplantinger, samt asfalterte gang-/internveier. Leiligheten har tilgang til felles hage, og enkelte leiligheter har bygget ut plating med terrasse på det som er fellesarealer til sameiet.
Parkering
Gateparkering etter områdets gjeldende bestemmelser. Sameiet har etablert seks felles ladepunkter for el-biler, fire ved Sømveien 1 og to ved Sømveien 13.
Muligheter for å leie garasjeplass for seksjonseiere i sameiet hos de som eier garasje når det er ledig. Ta kontakt med megler for å høre om det er noen som har lagt ut plassen deres for utleie og hva de skal ha av leien av plassen.
Vei, vann og avløp
Eiendommen har adkomst via kommunal vei.
Eiendommen er tilknyttet kommunalt ledningsnett via private stikkledninger. Sameiet er ansvarlig for private stikkledninger til bygningen.
Regulerings-og arealplaner
Sameiets eiendom er regulert til bolig m. tilhørende anlegg, felles lekeareal og offentlig kjørebane/veigrunn i henhold til reguleringsplan V310354 datert 31.03.1954 og S-55GA datert 01.08.1933 med tilhørende reguleringsbestemmelser.
Delen av eiendommen som leiligheten ligger på er uregulert i følge reguleringskart datert 25.05.2023.
Området går inn under Oslos nye kommuneplan, Oslo mot 2030 - Smart, trygg, grønn datert 23.09.2015. I følge kommuneplan er eiendommen avsatt til bebyggelse og anlegg.
Utsnitt av plan med tilhørende bestemmelser kan fås ved henvendelse til megler.
Økonomi
Økonomi
Boligens kostnader
Fellesutgiftene er kr 5.244,60,- pr. mnd. og inkluderer: A-konto fyring, kabel-TV/fibernett, nedbetaling av andel fellesgjeld, kommunale avgifter, felles bygningsforsikring, forretningsførsel, drift/vedlikehold m.m.
Fellesutgiftene justeres normalt en til to ganger årlig i forhold til sameiets faktiske utgifter.
Felleskostnadene fordeles slik:
Lån renter 1.214,80,-
Lån avdrag 600,80,-
Felleskostnader 2.970,-
Kabel-tv 459,-
I selgers husstand har det bodd to mennesker og det opplyses om at strømforbruket har vært ca 4.339 kwh pr år som har tilsvart rundt kr. 4.500,-.
Boligen er tilknyttet Obos OpenNet og Riks-TV som leverandør av fibernett (1000/1000 Mbit) og kabel-tv og er inkludert i fellesutgiftene.
Utgiftene er basert på nåværende eiers forbruk. Kjøper må selv tegne innboforsikring.
Formuesverdi
Formuesverdi for 2024 var kr 1 307 628,- ifølge selgers skatteetaten. Beløpet forutsetter at eier bor fast i boligen (primærbolig).
Ved eventuell øvrig bruk av eiendommen (f.eks. fritidsbolig, pendlerbolig, utleieobjekt) var formuesverdien for 2023 kr 5 230 510,-.
Formuesverdien justeres normalt årlig.
Fra 2026 har Stortinget vedtatt en oppdatert modell for beregning av formuesverdi for primærbolig, så avvik kan forekomme.
For mer informasjon se skatteetaten.no.
Opplysninger om fellesgjeld
Andel formue er kr 30 000,- pr.
Andel fellesgjeld er kr 235 039,- pr.
Total fellesgjeld for sameiet er kr 10 316 329,- pr. 15.01.2026 og lånevilkårene er:
Lån 1: OBOS-banken AS
Rentebetingelser: 6,59% flytende rente
Lånets løpetid: 30.04.2042
Restsaldo: 8 596 009,-
Andel saldo: 214 671,-
Lånetype: Annuitetslån
Lån 2: OBOS-banken AS
Rentebetingelser: 6,59% flytende rente
Lånets løpetid: 30.08.2039
Restsaldo: 1 720 321,-
Andel saldo: 20 369,-
Lånetype: Annuitetslån
Omkostninger
5 450 000,00 Prisantydning
235 039,00 Andel av fellesgjeld
--------------------------------------------------------
5 685 039,00 Pris inkl. fellesgjeld
Omkostninger
142 120,00 Dokumentavgift til staten (2,5% av kjøpesum)
9 950,00 Gjensidige Boligkjøperpakke (valgfri)
545,00 Tinglysing panterettsdokument
545,00 Tinglysing skjøte
--------------------------------------------------------
153 160,00 Omkostninger totalt
--------------------------------------------------------
5 838 199,00 Totalpris inkl. omkostninger
--------------------------------------------------------
Dersom sameiet har fellesgjeld, vil leilighetens andel av fellesgjelden komme i tillegg til kjøpesummen. Denne gjelden skal ikke innbetales i oppgjøret, men følger leiligheten.
Totalpris inkl. omkostninger forutsetter kjøp til prisantydning.
Det tas forbehold om endringer i avgifter og gebyrer.
Tilbud om lånefinansiering
Megler formidler gjerne kontakt med rådgiver hos vår samarbeidspartner BN Bank. De har konkurransedyktige betingelser samt rask og løsningsorientert behandling av din lånesøknad. Krogsveen mottar et honorar dersom lån opprettes.
Betalingsbetingelser
Kjøpesum inkludert omkostninger, samt pantedokument tilknyttet eventuelt lån, skal være disponibelt hos megler 2 virkedager før overtagelsen.
Annen viktig informasjon
Annen viktig informasjon
Eier
Steinar Lofthus Rosseland og Ida Byrkjeland
Informasjon om sameiet
Leiligheten er tilknyttet Kjelsåshaugen S/E.
Sameiet består av 81 seksjoner.
Forretningsfører er Obos Eiendomsforvaltning AS.
Dugnad, snømåking og trappevask må påregnes.
Dyrehold er tillatt iht. husordensreglene.
Fellesvaskeri for beboerne ligger i Sømveien nr. 1.
Foretatte påkostninger:
2024: Oljetank fjernet
2023: Inngikk ny brøyteavtale
Skiftet dør på søppelskurene
Erstattet utgangsdører i 9 og 13
Utført visuell kontroll av avløpsrørene
Installert brannvarslere i oppgang og kjellere
2022: Utbedret garasjene ved jernbanen
Utskiftning av 35 radiatorer i sameiet
Reparert lekkasje i et rør i nærvarmeanlegget
Reparert og utbedret etter knekk på avløpsrør i rekkehusene i 10A
2021: Etablering av 6 el-bil plasser
Etablering av fiber til alle husstander
2019: Etablering av bergvarme
Etablering av nye søppelskur
2017: Kjøpt tomten
2016: Ferdigstilt lekeplass
2014: Ferdigstilt balkongrenovering
2013: Balkongrenovering, nytt asfaltdekke
2012: Oppstart fasaderenovering resterende gavlvegger
2009: Drenering
2005: Bytte av kledning
Planlagte påkostninger:
Styreleder opplyser i mail den 10.04:
Vi har ikke vedtatt noen kostbare oppgraderinger i nærmeste fremtid, men har gjennomført inspeksjon av avløpsrørene og disse må nok strømpefornyes om 5+ år. Videre nærmer det seg nok en tid da vi må gjøre noe med takene, men det blir nok også om rundt 5 år.
Iht. sameiets årsmøte 21.03.2024 ble det vedtatt om vedtektsendring for lekkasjestopp. Dette for å redusere antall vannlekkasjer ved vanntilkoblede enheter. De er delvis presisert i vedtektene i dag, men gjelder kun varmtvannsberedere. Vedtektenes 5-1 (3) endres til: "Seksjonseieren skal vedlikeholde våtrom slik at lekkasjer unngås. Varmtvannsbereder, oppvaskmaskin, vaskemaskin og lignende i rom uten sluk skal ha lekkasjestopp."
Vi gjør videre oppmerksom på at det iht. eierseksjonsloven ikke er anledning å erverve mer enn 2 seksjoner i sameiet, her teller også eierskap via. firma, nærstående og familie. Kjøper har risikoen for at overskjøting på denne bakgrunn kan nektes av Statens Kartverk. I så fall vil kjøper uansett være forpliktet til å gjennomføre handelen, og oppgjør til selger vil finne sted tross manglende overskjøting. Konferer med megler for mer informasjon.
Dokumenter for sameiet og kopi av seksjonsbegjæringen kan fås ved henvendelse til megler.
Overtakelse
Etter nærmere avtale.
Boligselgerforsikring
Selger har i forbindelse med salget tegnet boligselgerforsikring levert av Gjensidige.
Boligselgerforsikringen dekker selgers ansvar etter avhendingsloven begrenset oppad til kr 14 millioner. Dersom kjøper oppdager forhold ved eiendommen som hen mener utgjør en mangel ved eiendommen, vil Gjensidige behandle reklamasjonen på vegne av selger. Forsikringsvilkår kan fås ved henvendelse til megler.
Vedlagt salgsoppgaven følger selgers egenerklæringsskjema og tilstandsrapport. Interessenter må sette seg inn i dokumentene før bud inngis.
Boligkjøperforsikring
Innen kontraktsmøtet må kjøper ta stilling til om det ønskes å bestille Boligkjøperpakken gjennom Gjensidige. I denne gunstige pakken er boligen ferdig forsikret og inkluderer rettshjelpsforsikring, også kalt Boligkjøperforsikring. Rettshjelpsforsikring gir trygghet og tilgang på profesjonell juridisk hjelp dersom det oppdages uventede feil eller mangler det første året etter overtagelse. Forsikringsselskapet behandler i så fall ethvert mangelskrav kjøper måtte ha overfor selger.
Boligkjøperpakken inkluderer bygningsforsikring for hus og hytte, innboforsikring, flytteforsikring og dobbel rentedekning - i situasjoner hvor kjøper ikke får solgt nåværende primærbolig.
Kjøper mottar ingen særskilt faktura for Boligkjøperpakken da kostnaden det første året legges til kjøpesummen for boligen. Det gjøres oppmerksom på Krogsveen mottar et honorar for denne formidlingen.
Produktark for Boligkjøperpakken ligger vedlagt i salgsoppgaven.
Dersom ikke boligkjøperpakke ønskes kan kun rettshjelpsforsikring, også kalt boligkjøperforsikring, tegnes særskilt via megler. Rettshjelpsforsikringen varer i 5 år fra overtagelse og leveres gjennom Gjensidige. Ta kontakt med megler for ytterligere informasjon.
Selskap og privatpersoner som driver med kjøp/salg/utvikling som ledd i egen næringsvirksomhet kan ikke tegne boligkjøperpakke eller rettshjelpsforsikring.
Budgivning
Forbrukerinformasjon om budgivning er vedlagt denne salgsoppgaven og er også på vår hjemmeside Krogsveen.no. Alle bud og budforhøyelser må inngis skriftlig. I tillegg må legitimasjon være fremlagt sammen med signatur fra budgiver.
Vi oppfordrer til å gi bud elektronisk via GI BUD-knappen på eiendommens hjemmeside på Krogsveen.no. Da vil samtlige vilkår bli oppfylt.
Eventuelle forhøyelser eller endringer av budet kan bekreftes pr SMS eller på e-post. Vi oppfordrer alltid til å kontakte megler pr. telefon i tillegg da forsinkelser i SMS og e-post kan forekomme.
For at budene skal kunne bli behandlet og videreformidlet skriftlig til alle involverte parter, må alle bud ha en tilstrekkelig lang akseptfrist, jf. eiendomsmeglingsforskriften § 6-3.
Selger må også skriftlig akseptere budet før aksept kan formidles til budgiver. Akseptfrist bør derfor være på minimum 30 minutter, og budforhøyelser må derfor skje i god tid før fristens utløp.
Bud i forbrukerforhold kan uansett ikke settes med kortere frist enn kl. 12.00 første virkedag etter siste annonserte visning. I tillegg kan ikke budet ha forbehold om at det skal holdes hemmelig ovenfor øvrige interessenter. Megler har iht lov om eiendomsmegling ikke anledning til å videreformidle disse budene, og de vil dermed heller ikke bli journalført.
Etter at eiendommen er solgt vil kjøper og selger få tilsendt budjournal. Øvrige budgivere kan få utlevert kopi av budjournalen i anonymisert form.
Hvitvaskingsreglene
I henhold til lov om hvitvasking og terrorfinansiering har megler plikt til å gjennomføre kontrolltiltak overfor kunder, herunder fullmektiger. Dette innebærer bl.a. å bekrefte kunders og reelle rettighetshaveres identitet på bakgrunn av fremvist gyldig legitimasjon eller på annen godkjent måte, samt å innhente opplysninger om kundeforholdets formål og tilsiktede art.
Dersom slike kundetiltak ikke kan gjennomføres, kan megler ikke etablere kundeforholdet eller utføre transaksjonen.
Hvis kjøper ikke bidrar til gjennomføring av kundekontrollen og dette fører til at transaksjonen blir forsinket eller ikke kan gjennomføres, vil dette ansees som mislighold av avtalen og gi selger rettigheter etter avhendingslova kapittel 5. I tilfeller der selger ikke bidrar til gjennomføring av løpende kundekontroll underveis i oppdraget, er det selger som misligholder sine forpliktelser etter avtalen og gi kjøper rettigheter etter avhendingslovens kapittel 4. Partene er selv ansvarlige for eventuelle kostnader og ansvar dette kan medføre. Eiendomsmegleren eller eiendomsmeglingsforetaket kan ikke holdes ansvarlig for de konsekvenser dette vil kunne få for partene eller andre som har interesser i eiendomshandelen.
Kjøper oppfordres til å innbetale kjøpesummen som ikke kommer fra låneinstitusjon i én samlet innbetaling fra egen konto i norsk bank. Megler har plikt til å melde fra til Økokrim om eiendomshandler som fremstår som mistenkelige. Melding sendes Økokrim uten at partene varsles.
Personopplysningsloven
I henhold til personopplysningsloven gjør vi oppmerksom på at interessenter kan bli registrert for videre oppfølging.
Lovanvendelse
Generelle bestemmelser
Salgsoppgaven er basert på de opplysningene selger har gitt til megler, den bygningssakyndiges tilstandsrapport, samt opplysninger innhentet fra kommunen, Kartverket og andre tilgjengelige kilder. Det er viktig at kjøper setter seg grundig inn i alle salgsdokumentene, herunder salgsoppgave, tilstandsrapport og selgers egenerklæring. Kjøper anses kjent med forhold som er tydelig beskrevet i salgsdokumentene, og slike forhold kan ikke påberopes som mangler. Dette gjelder uavhengig av om kjøper har lest dokumentene. Alle interessenter oppfordres til å undersøke eiendommen nøye, gjerne sammen med fagkyndig før bud inngis. Kjøper som velger å kjøpe usett kan ikke gjøre gjeldende som mangel noe han burde blitt kjent med ved undersøkelsen.
Dersom det er behov for avklaringer, anbefaler vi at interessenter rådfører seg med eiendomsmegler eller egne rådgivere før det legges inn bud.
En bolig som har blitt brukt i en viss tid, har vanligvis blitt utsatt for slitasje og skader kan ha oppstått. Slik bruksslitasje må kjøper regne med, og det kan avdekkes enkelte forhold etter overtakelse som nødvendiggjør utbedringer. Normal slitasje og skader som nødvendiggjør utbedring, er innenfor hva kjøper må forvente og vil ikke utgjøre en mangel.
Kjøper og selgers rettigheter og plikter reguleres av avtalen mellom partene, samt informasjonen som har vært tilgjengelig for kjøperen i forbindelse med handelen. Avtalen utfylles av avhendingsloven, og det gjelder ulike avtalevilkår avhengig av om kjøper er forbrukerkjøper eller ikke. Dette er nærmere beskrevet nedenfor.
På grunn av ulike avtalevilkår kan selger vurdere bud fra en som ikke er forbruker, ulikt fra en forbrukers bud. Dersom kjøper ikke er forbruker, er selger sitt mulige mangelsansvar begrenset fordi eiendommen selges "som den er". Selger kan ikke ta «som den er» forbehold ovenfor en forbrukerkjøper. Selv et lavere bud fra en som ikke er forbruker kan foretrekkes fordi begrensningen i mulig mangelsansvar kan ha egenverdi for selger. Selger står fritt til å forkaste eller akseptere ethvert bud, og er for eksempel ikke forpliktet til å akseptere høyeste bud.
Budgiver skal i budskjema avgi egenerklæring om budgiver er forbruker eller næringsdrivende/ person som hovedsakelig handler som ledd i næringsvirksomhet. Budgivere får informasjon dersom andre bud er inngitt av en som ikke er forbruker.
Forbrukerkjøp - definisjon
Med forbrukerkjøp menes kjøp av eiendom når kjøperen er en fysisk person som ikke hovedsakelig handler som ledd i næringsvirksomhet.
Forbruker – avtalevilkår
Eiendommen har en mangel dersom den ikke er i samsvar med kravene som følger av avtalen, eller det foreligger brudd på bestemmelsene i avhendingsloven §§ 3-2 til 3-8. Hvis eiendommen ikke er i samsvar med det kjøperen må kunne forvente ut ifra alder, type og synlig tilstand, kan det være grunnlag for mangelskrav. Det samme gjelder hvis det er holdt tilbake eller gitt uriktige opplysninger om eiendommen. Dette gjelder likevel bare dersom man kan gå ut ifra at det virket inn på avtalen at opplysningen ikke ble gitt eller at mangelskravet ikke blir rettet i tide på en tydelig måte.
Boligen kan ha en mangel etter avhendingsloven § 3-3 andre ledd dersom det er avvik mellom opplyst og faktisk innvendig areal, forutsatt at avviket er på 2% eller mer og minimum 1 kvm.
Ved beregning av et eventuelt prisavslag eller erstatning må kjøper selv dekke tap/kostnader opptil et beløp på kr 10 000 (egenandel).
Ikke-forbruker (næringsdrivende) – definisjon
Hvis kjøper er en juridisk person, eller en fysisk person som hovedsakelig handler som ledd i næringsvirksomhet, vil kjøpet ikke anses som et forbrukerkjøp.
Ikke-forbruker – avtalevilkår
Eiendommen har en mangel dersom den ikke er i samsvar med kravene som følger av avtalen.
Eiendommen selges «som den er», og selgers ansvar utover det konkret avtalte er da begrenset etter avhendingsloven § 3-9, første ledd andre setning.
Avhendingsloven § 3-3 andre ledd fravikes, og hvorvidt boligens arealsvikt utgjør en mangel vurderes etter avhendingsloven § 3-8.
Informasjon om kjøpers undersøkelsesplikt, herunder oppfordringen om å undersøke eiendommen nøye, gjelder også for kjøpere som ikke anses som forbrukere.
Meglers vederlag
Vi er opptatt av verdiskapning, og har knyttet til oss samarbeidspartnere som skal sikre våre kunder de beste produkter og tjenester;
• I forbindelse med forberedelse av salget, innhenter vi informasjon om eiendommen hovedsakelig fra vår samarbeidspartner Amibita.
• Gjensidige leverer boligselgerforsikring og tilbyr bygningsforsikring
• Boligkjøperforsikring leveres av Hiscox og med Sedgwick som skadebehandler, og er formidlet gjennom Gjensidige.
• BN bank tilbyr finansieringsløsninger
• Vår avdeling Krogsveen Pluss tilbyr flyttetjenester som utvask, visningsvask, lager, tømming og transport av flyttelass, i tillegg til å formidle kontakt med Flip for overflateoppussing.
• I forbindelse med overtagelse av eiendommen tilbyr Overo avtale om strøm, alarm og bredbånd.
• Krogsveen er, sammen med øvrige bransjeaktører, medeier i Bomega AS som tilbyr den digitale annonseringsplattformen Hjem.
Opplysninger om oppdraget
Oppdragsnummer 52-0005/26
Eiendomsmegler Krogsveen AS, avd. Sagene
Maridalsveien 157, 0461, OSLO
950 007 613
Oppdragets KR-kode KR52.265
Dato
Sist oppdatert: 27. januar 2026 kl. 14:10
Dokumenter
Dokumenter
PDF – 1018 KB
PDF – 243 KB
PDF – 312 KB
PDF – 29 KB
PDF – 127 KB
PDF – 392 KB
Område
Legg til steder som er viktige for deg
Visning
Unngå doble boligrenter
Vi tilbyr gunstig forsikring.
Vurderer du utleie?
Få et tilbud fra Utleie KrogsveenHva koster lånet?
Sjekk estimert lånekostnadVil du varsles om lignende boliger?
Ved å lagre ditt boligsøk hos oss får du beskjed når vi har en bolig som ligner denne, før den legges ut på markedet!

