Furuheimvegen 30
3 950 000 kr
116 m²
5 soverom
Komplett salgsoppgave

Furuheim
Flott hytte med masse plass - 5 soverom, 1,5 bad, badstue, 2 stuer - Utsiktstomt med gode solforhold
Prisantydning
3 950 000 krOmkostninger
119 740 krTotalpris
4 069 740 kr
Pris
Bruksareal
123 m²BRA-I (internt bruksareal)
116 m²BRA-E (eksternt bruksareal)
7 m²TBA (terrasse-balkongareal)
90 m²
Areal
Etasje
2Byggeår
2009Soverom
5 soveromBad
1 badTomteareal
1 034 m² (eiet)Type
Fritidseiendom på fjelletEierform
EietEnergimerke
Oransje D
Nøkkelinfo
Vurderer du utleie?
Få et tilbud fra Utleie KrogsveenHva koster lånet?
Sjekk estimert lånekostnadBeskrivelse
Kort om eiendommen
Krogsveen v/Vindum ønsker velkommen til denne flotte og innholdsrike hytten i Furuheimvegen 30!
* Perfekt hytte for dere som ønsker en roligere og mer usjenert beliggende hytte
* Hytten er meget innholdsrik med bla. hall, 5 soverom (hvorav 3 på hovedplan), 1,5 bad, badstue, kjøkken og stue med masse plass samt loftstue
* Hytten er bygget i 2009 og fremstår som meget velholdt og pent brukt - kun 1 eier
* Flotte utearealer, nydelig utsikt og svært gode solforhold. Her kan man nyte late fridager i usjenerte og rolige omgivelser
* Flytt rett inn og nyt late dager i Vrådal - Sentralt med alle de flotte fasiliteter Vrådal har å by på året rundt
Innhold og byggemåte
Innhold og byggemåte
Eiendommen
Furuheimvegen 30, 3853 VRÅDAL
Kommunenummer 4028, gårdsnummer 14, bruksnummer 351, ideell andel 1/1
Innhold
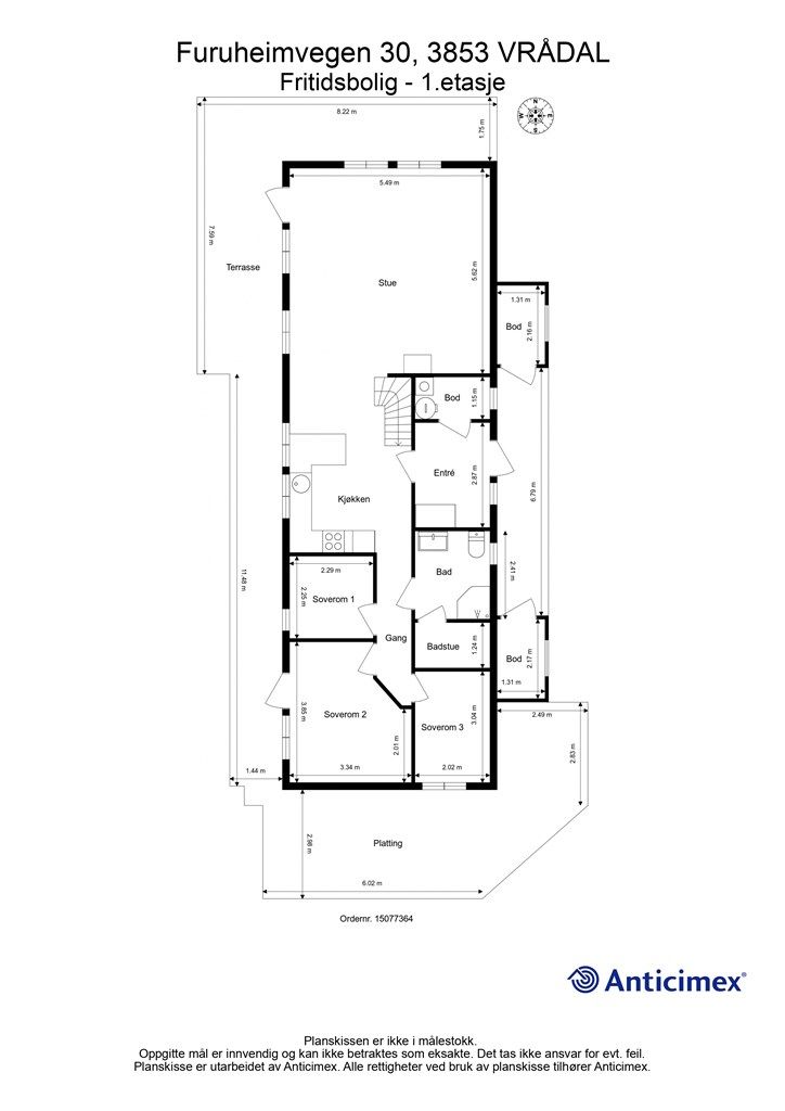
Totalt bruksareal BRA: 123 kvm
BRA-i:
1. etasje 95 kvm: Entrè, gang, stue, kjøkken, bad, bod, badstue og tre soverom.
2. etasje 21 kvm: TV-stue og to soverom.
BRA-e:
1. etasje 7 kvm: To boder med utvendig adkomst.
Åpent areal:
1. etasje 82 kvm: Inngangsparti (10 kvm), terrasse (45 kvm), platting (27 kvm).
2. etasje 8 kvm: Balkong
2.etasjen har et totalt gulvareal (GUA) på 30 kvm, men grunnet skråtak/lav takhøyde er kun 21 kvm av arealet måleverdig som bruksareal. De delene av arealene som har lav himlingshøyde (ALH) utgjør 9 kvm. Toalettrommet er innredet, men ikke måleverdig grunnet lav takhøyde.
Det gjøres oppmerksom på at vegg mellom bod og hoveddel er skjønnsmessig oppmålt. Det gjøres oppmerksom på at platting er skjønnsmessig oppmålt. Avvik kan forekomme.
Boder med utvendig adkomst er til sammen oppmålt til 7 kvm (BRA-e).
Vedlagte plantegninger er ikke målbare. De oppgitte arealer er hentet fra rapport med befaringsdato 20.11.2025, utført av Anticimex Sandefjord AS.
Byggemåte
Selger har fått utarbeidet en tilstandsrapport, dvs. en teknisk gjennomgang av boligen hvor eventuelle avvik, risiko for kjøper og prisoverslag for hva som bør gjøres av oppgradering, er skissert. Se særskilt TGIU (tilstandsgrad ikke undersøkt), samt TG2 og TG3 som viser hva som er avvik fra boligens normale slitasje, alder og type, eller som bør/må utbedres. Rapporten og selgers egenerklæring er en del av salgsoppgaven og må leses nøye før bud inngis. Kjøper overtar ansvaret for de opplysninger som fremkommer av salgsdokumentasjonen, og kan ikke gjøre gjeldende som mangel noe som burde vært kjent eller som ikke kan anses å ha betydning for avtalen.
Hytta er oppført i 2009 og er iht. tilstandsrapporten oppført på støpt betong mot grunn. Plate på mark. Yttervegger og tak i trekonstruksjoner. Fasader med stående og liggende kledning. Saltak tekket med torv. Vinduer og terrassedører med to-lags isolerglass. Ytterdør i sandwichkonstruksjon med isolerglassfelt og nøkkelfri kodelås.
Sammendrag av boligens tilstandsgrad:
TG1 : 74 % | TG2 : 14 % | TG3 : 0 % | TGIU : 12 %
I rapportens sammendrag fremkommer det som takstmannen mener kjøper må være særskilt oppmerksom, på utover normal elde og slitasje, herunder:
TG 2:
* Bad: Tilluftsspalte er ikke etablert. Tettesjiktet har en alder som tilsier at restlevetiden er usikker. Det er ikke benyttet tilstrekkelig tettesjikt på våtrommets veggflater. Gulvet er tilnærmet flatt. Det er stedvis motfall på gulvflater utenfor dusjsonen. Ikke tilfredsstillende membranoppkant.
* Toalettrom: Tilluftsspalte er ikke etablert.
* Dørbladet til innerdør ved bod og toalettrom har kontakt med dørterskel/dørkarm, noe som gjør at døren henger når den åpnes og lukkes.
* Loft: Spor etter gnagere. Det kan ikke verifiseres at det er etablert tilstrekkelig lufting på gesims.
* Trappen er bratt. Trappen har åpninger på mer enn 0,10 meter. Rekkverket har åpninger på mer enn 0,10 meter.
* Balkong: Rekkverkshøyden er under 1,0 meter.
* Terrasse: Skjevheter i konstruksjonen.
* Vann var ikke tilkoblet på befaringsdagen til takstmannen.
Tilstandsrapporten følger vedlagt i salgsoppgaven for utfyllende informasjon. Interessenter må sette seg inn i denne før bud inngis.
Standard
Hytten ligger flott til i en liten sidevei uten gjennomgangstrafikk. Høyt og fritt med fantastisk utsikt til omkringliggende fjeller, Vrådal Panorama og Nisser. I tillegg har man en vestvendt beliggenhet, slik at man kan nyte optimale solforhold.
Eiendommen er oppført i 2009, og har kun en eier. Den er pent brukt og meget godt vedlikeholdt. Det er i hovedsak innredet med tregulver og hvittet panel på vegger og tak. Flislagt gulv med varmekabler i hallen og på badet samt i innvendig bod/teknisk rom.
Man entrer eiendommen fra overbygget inngangsparti, hvor man har to boder med utvendig adkomst. Perfekt for lagring av fritidsutstyr etc.
På ytterdøren er det montert dørlås for nøkkelfri adkomst.
Inn i hallen er det godt med plass og praktisk med tilliggende bod/teknisk rom. Her er det god plass til å henge av seg og det er opplegg til vaskemaskin.
Hytten har dør mellom hall og oppholdsrom, slik at man kan stenge av. Soveromsgangen fører inn mot 3 romslige soverom. Det er pr idag innredet med familiekøyeseng på to av soverommene, mens hovedsoverommet har dobbelseng. Det er fra hovedsoverommet utgang til overbygget veranda.
Badet er romslig og innredet med dusjkabinett, toalett, servant i innredning. Det er downlights i tak og varmekabler i gulv. Tilliggende badstue er perfekt for de som liker å slappe av i varme omgivelser.
Kjøkkenet ligger i åpen løsning mot stuen. Det er praktisk med god skap- og benkeplass. Innredet med hvite slette fronter. Kjøkkenøy er både sosialt og praktisk for hyttens kokk!
Integrerte hvitevarer som oppvaskmaskin, stekeovn med dampfunksjon, platetopp, kjøleskap under benk og kaffemaskin medfølger. Hvitevarer er fra byggeår og slitasje må påregnes.
Stuen/spisestuen er stor og rommelig - her er svært gode møbleringsmuligheter med rom for både spisestue og salong. Det er høy himling i stuen, noe som gir rommet både særpreg og ekstra god romfølelse.
I stuen er det en deilig peisovn for kjøligere sesonger.
Utgang til terrassen fra stuen. Terrassen er stor og delvis overbygget med plass til flere møblement. Her kan man flytte seg med solen fra forholdsvis tidlig til sen kveld.
I loftsetasjen er det innredet med en ekstra stue. Perfekt for de som har ungdommer i hus og som ekstra tv-stue. Det er utgang til overbygget balkong fra stuen.
Det er innredet med to ekstra soverom i denne etasjen. På disse rommene er det innredet med dobbelsenger (150 cm og 120 cm bredde). Praktisk med toalettrom i samme etasje (ikke måleverdig areal pga lav takhøyde).
Utsikten nyter man både inne og ute. Velkommen til Furuheimvegen 30!
Løsøre og tilbehør
Vi viser til liste fra Norges Eiendomsmeglerforbund som gjelder fra 01.01.2020 angående løsøre og tilbehør.
Hytten kan selges møblert, etter avtale med selger. Spisebord og salongbord i stuen samt vinkelsofa i loftstuen medfølger ikke.
Oppvarming
Vedovn i stue.
Varmekabler på badet og i entré.
Ellers elektrisk med panelovner. Dersom beboelsesrom ikke har vegg- eller fastmonterte varmekilder ved visning, følger dette heller ikke med.
Feiervesenet opplyser at de har utført feiing og tilsyn 15.02.2024. Ingen registrerte avvik eller anmerkninger.
Ferdigattest/brukstillatelse
Det foreligger ferdigattest på "Fritidsbustad" datert 23.4.2015. Denne kan fås ved henvendelse til megler.
Tinglyste heftelser og rettigheter
Eiendommen overdras fri for pengeheftelser.
Det er tinglyst følgende servitutter på eiendommen: Dagboknr 448341, tinglyst 22.6.2009, type heftelse: Bestemmelse om anlegg og vedlikehold av ledninger mm: Eier av gnr 14, bnr 346 har rett til å gjennomføre vedlikehold/endring av rør og ledningsnett som går over denne eiendommen.
Servitutten vil følge eiendommen. Kjøpers bank vil få prioritet etter ovennevnte servitutt.
Eventuell adgang til utleie
Fritidseiendommen har ikke separat utleiedel. Det vil normalt være anledning til utleie av hele eiendommen eller enkeltrom, såfremt utleiearealet er bygningsmessig godkjent for varig opphold.
Beliggenhet og tomteforhold
Beliggenhet og tomteforhold
Beliggenhet
Hytta ligger sentralt til i natur- og aktivitetsparadiset Vrådal i Kviteseid kommune. Vrådal ligger ved de idylliske innsjøene Nisser og Vråvatn, vest i Norges flotteste fylke - Telemark.
Det beste med Vrådal som hyttedestinasjon er at det er et sted man virkelig kan aktivisere seg hele året!
Det er gangavstand til Straand hotell og sentrum med fasiliteter som koselig kafè, dagligvareforretning m.m.
Straand Sommerland er et familievennlig akivitetsområde som lokker til seg både turister, hyttefolk og fastboende. Ved Straand nedre camping er det en stor hoppepute til glede for barna.
Det er heller ikke langt til alpin senteret, som er populært med sine 18 nedfarter. Fine oppkjørte skiløyper. Ved skisenteret er det en stor lekeplass med hoppepute, husker, lekestue og klatrestativ samt skatepark.
Fra hytta har man utsikt til Hægefjell som er et yndet turmål for fotturister - i tillegg kommer det klatrere fra hele verden for å kose seg i den flere hundre meter høye blankskurte granitt veggen på sydsiden av fjellet.
Videre er Roholtfjellet og Åhomnuten populære turmål. Vrådal tilbyr mange aktiviteter for hele familien. Hva med en kanotur eller en sykkeltur langs idylliske grusveier? Et besøk på golfbanen eller en tur med M/S Fram? Veteranbåten M/S Fram seiler på slusecruise på innsjøen Nisser. Den ligger ved Straand Brygge, rett ved hotellet. Skiturer, preparerte langrennsløyper, bærsanking - mulighetene er mange og varierte.
Strendene ved Nisser er som skapt for de minste. Det er fin, hvit sand og langgrunt. Ta med familien på piknik til grillplassen på en av øyene og server grillede pølser, hamburgere osv.
En ekte helårsdestinasjon med deilige, varme somre og snørike vintre.
Innsjøen Nisser byr på «utallige» øyer, strender og svaberg. Perfekt for bading, båtliv, padling, fiske, camping med mer. Perfekt utgangspunkt for fjellturer, med Hægefjell (1021 moh.), Roholtfjell (1005 moh.) og Venelifjell (905 moh.) i umiddelbar nærhet til hytta. Vrådal Alpin kun 6 min kjøring unna.
Selger er en ivrig fjellvandrer og padler, og mener Vrådal tilbyr det beste av alt
Adkomst
Fra Vrådal kjører man mot Kviteseid. Furuheimvegen er blant de første veiene på høyre hånd, etter avkjøringen til Vrådal sentrum.
Følg Furuheimvegen oppover i fjellet og hytten ligger inn en stikkvei til venstre mot toppen. Hytten ligger på høyre hånd.
Hytten er merket med Krogsveen Til Salgs plakat.
Beskrivelse av tomt
Eiertomt på 1 034 kvm
Parkering
Parkering på gruset gårdsplass. God plass til hytteeier og gjester.
Vei, vann og avløp
Eiendommen har adkomst via privat vei med felles vedlikeholdsansvar.
Eiendommen er tilknyttet kommunalt ledningsnett via private stikkledninger. Eier er selv ansvarlig for private stikkledninger til boligen.
Regulerings-og arealplaner
Eiendommen er regulert til fritidsformål i henhold til reguleringsplan "Furuheim Hyttegrend" datert 26.2.07 revidert 1.6.2024 med tilhørende reguleringsbestemmelser.
Området er under utbygging og utvikling, og det er ubebygde tomter omkring eiendommen. Utsnitt av plan med tilhørende bestemmelser kan fås ved henvendelse til megler
Økonomi
Økonomi
Kommunale utgifter
Kommunale avgifter er kr 13.991,- for inneværende år (2025). I dette inngår gebyr for vann, avløp, renovasjon og feiing/tilsyn.
Brannvesenet er pålagt å føre tilsyn med, og å feie pipeløp i alle fritidseiendommer. Det vil kunne medføre kostnader for kjøper til utbedring av evt. fremtidige pålegg og anmerkninger.
Nåværende eier har et strømforbruk på ca 4.300 kwh pr. år. Det er tegnet Norgespris med binding ut 2026. Kjøper overtar dette og til enhver tid gjeldende vilkår.
Hytten har en årlig forsikringspremie på kr 6.600,-.
Velavgift er kr 4.200,- pr. år (2025) for brøyting og vedlikehold av privat vei/adkomst.
Hytten er tilknyttet har parabolantenne som medfølger handelen. Kjøper må selv tegne abonnement. Dekoder medfølger.
Utgiftene er basert på nåværende eiers forbruk og avtaler.
Formuesverdi
Formuesverdi for 2023 var kr 187 173,- ifølge skatteetaten.
Omkostninger
3 950 000,00 Prisantydning
Omkostninger
98 750,00 Dokumentavgift til staten (2,5% av kjøpesum)
19 900,00 Gjensidige Boligkjøperpakke (valgfri)
545,00 Tinglysing panterettsdokument
545,00 Tinglysing skjøte
--------------------------------------------------------
119 740,00 Omkostninger totalt
--------------------------------------------------------
4 069 740,00 Totalpris inkl. omkostninger
--------------------------------------------------------
Tilbud om lånefinansiering
Megler formidler gjerne kontakt med rådgiver hos vår samarbeidspartner BN Bank. De har konkurransedyktige betingelser samt rask og løsningsorientert behandling av din lånesøknad. Krogsveen mottar et honorar dersom lån opprettes.
Betalingsbetingelser
Kjøpesum inkludert omkostninger, samt pantedokument tilknyttet eventuelt lån, skal være disponibelt hos megler 2 virkedager før overtagelsen.
Annen viktig informasjon
Annen viktig informasjon
Eier
Tom Kristoffersen
Konsesjon
Eiendommen er ikke konsesjonspliktig, men det er boplikt i Kviteseid kommune. For at eiendommen skal kunne overskjøtes må kjøper signere på egenerklæring om konsesjonsfrihet om at boplikten ikke gjelder for denne eiendommen.
Overtakelse
Etter nærmere avtale.
Boligselgerforsikring
Selger har i forbindelse med salget tegnet boligselgerforsikring levert av Gjensidige.
Boligselgerforsikringen dekker selgers ansvar etter avhendingsloven begrenset oppad til kr 14 millioner. Dersom kjøper oppdager forhold ved eiendommen som hen mener utgjør en mangel ved eiendommen, vil Gjensidige behandle reklamasjonen på vegne av selger. Forsikringsvilkår kan fås ved henvendelse til megler.
Vedlagt salgsoppgaven følger selgers egenerklæringsskjema og tilstandsrapport. Interessenter må sette seg inn i dokumentene før bud inngis.
Boligkjøperforsikring
Innen kontraktsmøtet må kjøper ta stilling til om det ønskes å bestille Boligkjøperpakken gjennom Gjensidige. I denne gunstige pakken er boligen ferdig forsikret og inkluderer rettshjelpsforsikring, også kalt Boligkjøperforsikring. Rettshjelpsforsikring gir trygghet og tilgang på profesjonell juridisk hjelp dersom det oppdages uventede feil eller mangler det første året etter overtagelse. Forsikringsselskapet behandler i så fall ethvert mangelskrav kjøper måtte ha overfor selger.
Boligkjøperpakken inkluderer bygningsforsikring for hus og hytte, innboforsikring, flytteforsikring og dobbel rentedekning - i situasjoner hvor kjøper ikke får solgt nåværende primærbolig.
Kjøper mottar ingen særskilt faktura for Boligkjøperpakken da kostnaden det første året legges til kjøpesummen for boligen. Det gjøres oppmerksom på Krogsveen mottar et honorar for denne formidlingen.
Produktark for Boligkjøperpakken ligger vedlagt i salgsoppgaven.
Dersom ikke boligkjøperpakke ønskes kan kun rettshjelpsforsikring, også kalt boligkjøperforsikring, tegnes særskilt via megler. Rettshjelpsforsikringen varer i 5 år fra overtagelse og leveres gjennom Gjensidige. Ta kontakt med megler for ytterligere informasjon.
Selskap og privatpersoner som driver med kjøp/salg/utvikling som ledd i egen næringsvirksomhet kan ikke tegne boligkjøperpakke eller rettshjelpsforsikring.
Budgivning
Forbrukerinformasjon om budgivning er vedlagt denne salgsoppgaven og er også på vår hjemmeside Krogsveen.no. Alle bud og budforhøyelser må inngis skriftlig. I tillegg må legitimasjon være fremlagt sammen med signatur fra budgiver.
Vi oppfordrer til å gi bud elektronisk via GI BUD-knappen på eiendommens hjemmeside på Krogsveen.no. Da vil samtlige vilkår bli oppfylt.
Eventuelle forhøyelser eller endringer av budet kan bekreftes pr SMS eller på e-post. Vi oppfordrer alltid til å kontakte megler pr. telefon i tillegg da forsinkelser i SMS og e-post kan forekomme.
For at budene skal kunne bli behandlet og videreformidlet skriftlig til alle involverte parter, må alle bud ha en tilstrekkelig lang akseptfrist, jf. eiendomsmeglingsforskriften § 6-3.
Selger må også skriftlig akseptere budet før aksept kan formidles til budgiver. Akseptfrist bør derfor være på minimum 30 minutter, og budforhøyelser må derfor skje i god tid før fristens utløp.
Bud i forbrukerforhold kan uansett ikke settes med kortere frist enn kl. 12.00 første virkedag etter siste annonserte visning. I tillegg kan ikke budet ha forbehold om at det skal holdes hemmelig ovenfor øvrige interessenter. Megler har iht lov om eiendomsmegling ikke anledning til å videreformidle disse budene, og de vil dermed heller ikke bli journalført.
Etter at eiendommen er solgt vil kjøper og selger få tilsendt budjournal. Øvrige budgivere kan få utlevert kopi av budjournalen i anonymisert form.
Hvitvaskingsreglene
I henhold til lov om hvitvasking og terrorfinansiering har megler plikt til å gjennomføre kontrolltiltak overfor kunder, herunder fullmektiger. Dette innebærer bl.a. å bekrefte kunders og reelle rettighetshaveres identitet på bakgrunn av fremvist gyldig legitimasjon eller på annen godkjent måte, samt å innhente opplysninger om kundeforholdets formål og tilsiktede art.
Dersom slike kundetiltak ikke kan gjennomføres, kan megler ikke etablere kundeforholdet eller utføre transaksjonen.
Hvis kjøper ikke bidrar til gjennomføring av kundekontrollen og dette fører til at transaksjonen blir forsinket eller ikke kan gjennomføres, vil dette ansees som mislighold av avtalen og gi selger rettigheter etter avhendingslova kapittel 5. I tilfeller der selger ikke bidrar til gjennomføring av løpende kundekontroll underveis i oppdraget, er det selger som misligholder sine forpliktelser etter avtalen og gi kjøper rettigheter etter avhendingslovens kapittel 4. Partene er selv ansvarlige for eventuelle kostnader og ansvar dette kan medføre. Eiendomsmegleren eller eiendomsmeglingsforetaket kan ikke holdes ansvarlig for de konsekvenser dette vil kunne få for partene eller andre som har interesser i eiendomshandelen.
Kjøper oppfordres til å innbetale kjøpesummen som ikke kommer fra låneinstitusjon i én samlet innbetaling fra egen konto i norsk bank. Megler har plikt til å melde fra til Økokrim om eiendomshandler som fremstår som mistenkelige. Melding sendes Økokrim uten at partene varsles.
Personopplysningsloven
I henhold til personopplysningsloven gjør vi oppmerksom på at interessenter kan bli registrert for videre oppfølging.
Lovanvendelse
Generelle bestemmelser
Salgsoppgaven er basert på de opplysningene selger har gitt til megler, den bygningssakyndiges tilstandsrapport, samt opplysninger innhentet fra kommunen, Kartverket og andre tilgjengelige kilder. Det er viktig at kjøper setter seg grundig inn i alle salgsdokumentene, herunder salgsoppgave, tilstandsrapport og selgers egenerklæring. Kjøper anses kjent med forhold som er tydelig beskrevet i salgsdokumentene, og slike forhold kan ikke påberopes som mangler. Dette gjelder uavhengig av om kjøper har lest dokumentene. Alle interessenter oppfordres til å undersøke eiendommen nøye, gjerne sammen med fagkyndig før bud inngis. Kjøper som velger å kjøpe usett kan ikke gjøre gjeldende som mangel noe han burde blitt kjent med ved undersøkelsen.
Dersom det er behov for avklaringer, anbefaler vi at interessenter rådfører seg med eiendomsmegler eller egne rådgivere før det legges inn bud.
En bolig som har blitt brukt i en viss tid, har vanligvis blitt utsatt for slitasje og skader kan ha oppstått. Slik bruksslitasje må kjøper regne med, og det kan avdekkes enkelte forhold etter overtakelse som nødvendiggjør utbedringer. Normal slitasje og skader som nødvendiggjør utbedring, er innenfor hva kjøper må forvente og vil ikke utgjøre en mangel.
Kjøper og selgers rettigheter og plikter reguleres av avtalen mellom partene, samt informasjonen som har vært tilgjengelig for kjøperen i forbindelse med handelen. Avtalen utfylles av avhendingsloven, og det gjelder ulike avtalevilkår avhengig av om kjøper er forbrukerkjøper eller ikke. Dette er nærmere beskrevet nedenfor.
På grunn av ulike avtalevilkår kan selger vurdere bud fra en som ikke er forbruker, ulikt fra en forbrukers bud. Dersom kjøper ikke er forbruker, er selger sitt mulige mangelsansvar begrenset fordi eiendommen selges "som den er". Selger kan ikke ta «som den er»- forbehold overfor en forbrukerkjøper. Selv et lavere bud fra en som ikke er forbruker kan foretrekkes fordi begrensningen i mulig mangelsansvar kan ha egenverdi for selger. Selger står fritt til å forkaste eller akseptere ethvert bud, og er for eksempel ikke forpliktet til å akseptere høyeste bud.
Budgiver skal i budskjema avgi egenerklæring om budgiver er forbruker eller næringsdrivende/ person som hovedsakelig handler som ledd i næringsvirksomhet. Budgivere får informasjon dersom andre bud er inngitt av en som ikke er forbruker.
Forbrukerkjøp - definisjon
Med forbrukerkjøp menes kjøp av eiendom når kjøperen er en fysisk person som ikke hovedsakelig handler som ledd i næringsvirksomhet.
Forbruker – avtalevilkår
Eiendommen har en mangel dersom den ikke er i samsvar med kravene som følger av avtalen, eller det foreligger brudd på bestemmelsene i avhendingsloven §§ 3-2 til 3-8. Hvis eiendommen ikke er i samsvar med det kjøperen må kunne forvente ut ifra alder, type og synlig tilstand, kan det være grunnlag for mangelskrav. Det samme gjelder hvis det er holdt tilbake eller gitt uriktige opplysninger om eiendommen. Dette gjelder likevel bare dersom man kan gå ut ifra at det virket inn på avtalen at opplysningen ikke ble gitt eller at mangelskravet ikke blir rettet i tide på en tydelig måte.
Boligen kan ha en mangel etter avhendingsloven § 3-3 andre ledd, dersom det er avvik mellom opplyst og faktisk innvendig areal, forutsatt at avviket er på 2% eller mer og minimum 1 kvm.
Ved beregning av et eventuelt prisavslag eller erstatning må kjøper selv dekke tap/kostnader opptil et beløp på kr 10 000 (egenandel).
Ikke-forbruker (næringsdrivende) – definisjon
Hvis kjøper er en juridisk person, eller en fysisk person som hovedsakelig handler som ledd i næringsvirksomhet, vil kjøpet ikke anses som et forbrukerkjøp.
Ikke-forbruker – avtalevilkår
Eiendommen har en mangel dersom den ikke er i samsvar med kravene som følger av avtalen.
Eiendommen selges «som den er», og selgers ansvar utover det konkret avtalte er da begrenset etter avhendingsloven § 3-9, første ledd andre setning.
Avhendingsloven § 3-3 andre ledd fravikes, og hvorvidt boligens arealsvikt utgjør en mangel vurderes etter avhendingsloven § 3-8.
Informasjon om kjøpers undersøkelsesplikt, herunder oppfordringen om å undersøke eiendommen nøye, gjelder også for kjøpere som ikke anses som forbrukere.
Det forutsettes at hjemmel overføres til kjøper. Hvis kjøper ikke ønsker hjemmelsoverføring av eiendommen, må det tas forbehold om dette i budet.
Meglers vederlag
Meglers vederlag betales av selger og er avtalt til:
Vederlag: 1,50 % av salgssummen inkl. eventuell fellesgjeld. Minimumsprovisjon er kr 48 000,00
Vederlag:
Fotopakke inkl drone kr 5 200,00
Kontroll av hjemmel og heftelser kr 2 900,00
Markedsføringspakke Fritid kr 27 400,00
Oppgjør kr 7 500,00
Tilrettelegging kr 17 000,00
Visninger pr stk / Overtagelse kr 2 900,00
Utlegg:
Innhenting av offentlig opplysninger - Kviteseid kr 2 200,00
Tinglysing sikring kr 545,00
Andre utgifter:
AX tilstandsrapport Hytte under 150 kvm kr 17 500,00
Boligselgerforsikring Gjensidige Tomt/Fritid regnes av prisant. kr 24 924,50
Opplysninger om oppdraget
Oppdragsnummer 22-0460/25
Eiendomsmegler Krogsveen AS, avd. Sandefjord
Jernbanealléen 13, 3210, SANDEFJORD
950 007 613
Oppdragets KR-kode KR22.25460
Dato
Sist oppdatert: 29. april 2026 kl. 09:48
Dokumenter
Dokumenter
PDF – 937 KB
PDF – 744 KB
PDF – 556 KB
PDF – 312 KB
PDF – 29 KB
PDF – 127 KB
PDF – 392 KB
Område
Legg til steder som er viktige for deg
Visning
For å delta på visning, ber vi om at du melder deg på. Da sikrer vi at du får nødvendig informasjon og at det er satt av tilstrekkelig med tid. Kontakt megler dersom annet tidspunkt ønskes. Husk å lese salgsoppgaven før visningen, så du stiller forberedt. NB. Visning utgår dersom det ikke er noen påmeldte.
Ta kontakt med megler for avtale om privatvisning.
Ønsker du kun å bli holdt orientert, kan du fra eiendommens hjemmeside få varsel om solgtpris, eller kontakte megler.
Lurer du på noe?
Vurderer du utleie?
Få et tilbud fra Utleie KrogsveenHva koster lånet?
Sjekk estimert lånekostnadVil du varsles om lignende boliger?
Ved å lagre ditt boligsøk hos oss får du beskjed når vi har en bolig som ligner denne, før den legges ut på markedet!





















































