Bolstadhagen 46
5 500 000 kr
219 m²
4 soverom
Solgt

Presenteres av
Arild KnudsenÅssiden
Romslig og innholdsrik enebolig med 2 etasjer. 2 bad. Vestvendt terrasse m/utsikt. Tomt over 1 mål. Dobbelgarasje.
Prisantydning
5 500 000 krOmkostninger
158 490 krTotalpris
5 658 490 kr
Pris
Bruksareal
269 m²BRA-I (internt bruksareal)
219 m²BRA-E (eksternt bruksareal)
50 m²TBA (terrasse-balkongareal)
22 m²
Areal
Etasje
2Byggeår
1969Soverom
4 soveromBad
2 badTomteareal
1 059 m² (eiet)Type
Enebolig - FrittliggendeEierform
EietFasiliteter
Garasje/P-plass og Balkong/TerrasseEnergimerke
Oransje F
Nøkkelinfo
Unngå doble boligrenter
Vi tilbyr gunstig forsikring.
Vurderer du utleie?
Få et tilbud fra Utleie KrogsveenHva koster lånet?
Sjekk estimert lånekostnadBeskrivelse
Kort om eiendommen
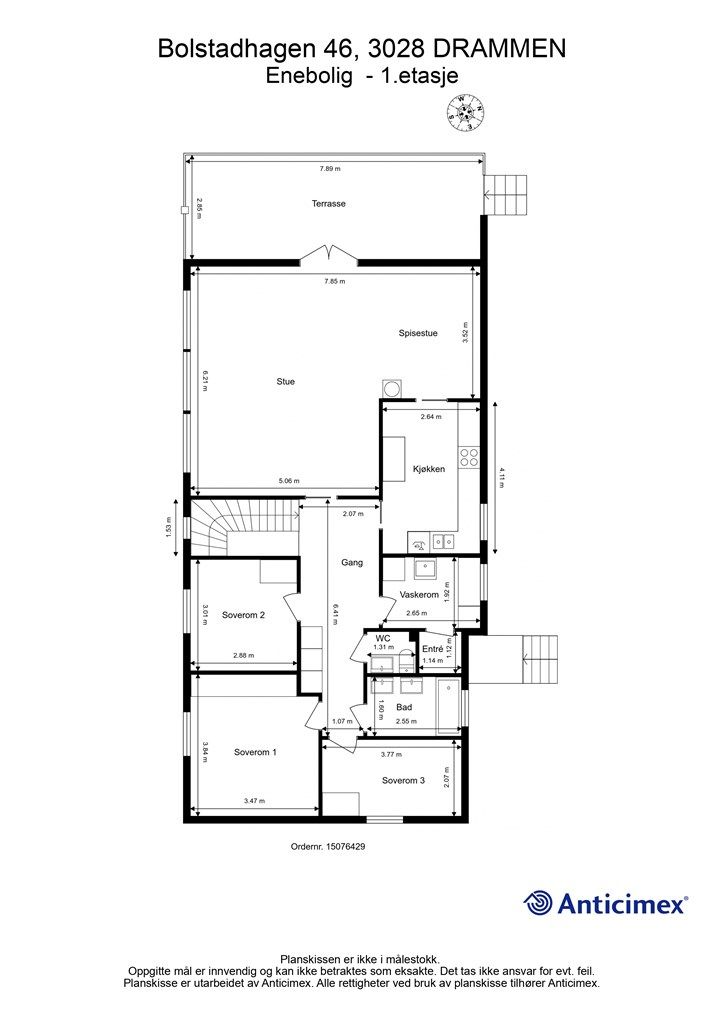
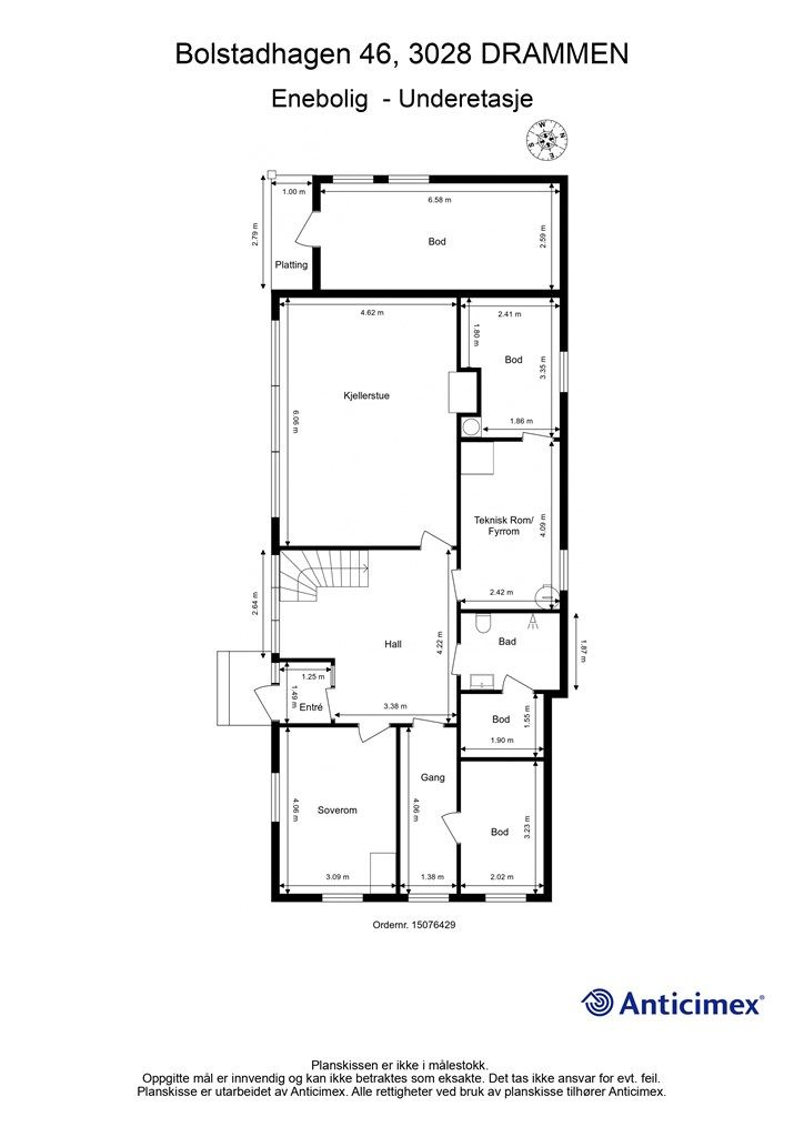
Romslig og innholdsrik enebolig med 2 etasjer.
- Romslig vinkelstue og hyggelig kjellerstue, begge med store vindusflater.
- Profilert kjøkken fra ca. 2010 i seksjoner med god plass på arbeidsbenk.
- 2 bad, praktisk vaskerom og ekstra wc-rom.
- Luft-til-luft varmepumpe i trapp og innmurt peis i kjellerstue.
- Delvis overbygget vestvendt terrasse på ca. 22 kvm med flott utsikt og gode solforhold.
- Stor tomt på over 1 mål med god boltreplass i hagen.
- Parkering i frittstående dobbelgarasje på ca. 32 kvm og gruset gårdsplass.
- Eiendommen er fint beliggende i et attraktivt og barnevennlig boligområde.
- Veletablert og sentralt nærmiljø med det meste av fritids-/servicetilbud tilgjengelig innen kort avstand.
- Gangavstand til bussholdeplass, barnehager, skoler, skisenter og Kiwi XL
Område
Legg til steder som er viktige for deg
På flyttefot? Tenk kjøp og salg samtidig.
Få din egen rådgiver gjennom hele kjøps- og salgsprosessen. Det starter med en verdivurdering.
Unngå doble boligrenter
Vi tilbyr gunstig forsikring.
Vurderer du utleie?
Få et tilbud fra Utleie KrogsveenHva koster lånet?
Sjekk estimert lånekostnadVil du varsles om lignende boliger?
Ved å lagre ditt boligsøk hos oss får du beskjed når vi har en bolig som ligner denne, før den legges ut på markedet!
På flyttefot? Slik gjør vi det enklere for deg
Skreddersydd flyttepakke
Vi fikser håndverkere, vask, pakking, lagring og transport, og legger ut for utgiftene underveis.
Hjelp med både kjøp og salg
Hos oss har du din egen rådgiver gjennom hele kjøps- og salgsprosessen.
Hjelp til finansiering
Vårt samarbeid med BN Bank sikrer deg rask og løsningsorientert hjelp, til konkurransedyktige betingelser.

