Vestengveien 2E
9 950 000 kr
120 m²
3 soverom
Solgt
Ekeberg/Brannfjell
Familievennlig kjedet enebolig | 3 soverom | Terrasse/hage og carport | Attraktiv beliggenhet på Brannfjell/Ekeberg
Prisantydning
9 950 000 krOmkostninger
269 740 krTotalpris
10 219 740 kr
Pris
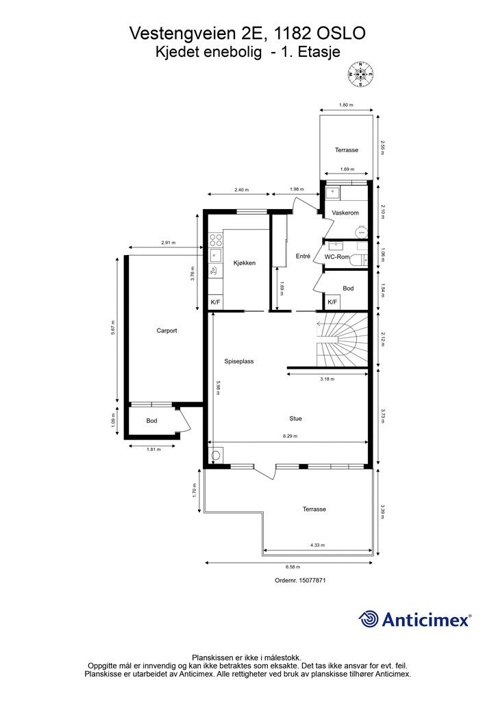
Bruksareal
120 m²BRA-I (internt bruksareal)
120 m²TBA (terrasse-balkongareal)
31 m²
Areal
Byggeår
1990Soverom
3 soveromBad
1 badTomteareal
313 m² (eiet)Type
Enebolig i kjedeEierform
EietEnergimerke
Gul D
Nøkkelinfo
Unngå doble boligrenter
Vi tilbyr gunstig forsikring.
Vurderer du utleie?
Få et tilbud fra Utleie KrogsveenHva koster lånet?
Sjekk estimert lånekostnadBeskrivelse
Kort om eiendommen
Velkommen Til Vestengveien 2E!
En praktisk og familievennlig kjedet enebolig fra 1990 med attraktiv beliggenhet på Brannfjell/Ekeberg. Boligen ligger tilbaketrukket i et rolig og barnevennlig område med kort vei til skole, barnehage, kollektivtransport og flotte friområder. Planløsningen er gjennomtenkt med 3 soverom, romslige oppholdsarealer, eget vaskerom, bad og separat wc-rom. Fra stuen er det utgang til solrik terrasse og hage, og i 2. etasje er det balkong med hyggelig utsyn. Carport med sportsbod følger eiendommen. En bolig med gode kvaliteter og plass til hele familien. Boligen har i hovedsak standard fra byggeåret og påkostninger bør påregnes.
Velkommen til visning!
Område
Legg til steder som er viktige for deg
På flyttefot? Tenk kjøp og salg samtidig.
Få din egen rådgiver gjennom hele kjøps- og salgsprosessen. Det starter med en verdivurdering.
Unngå doble boligrenter
Vi tilbyr gunstig forsikring.
Vurderer du utleie?
Få et tilbud fra Utleie KrogsveenHva koster lånet?
Sjekk estimert lånekostnadVil du varsles om lignende boliger?
Ved å lagre ditt boligsøk hos oss får du beskjed når vi har en bolig som ligner denne, før den legges ut på markedet!




