Vatjønnvegen 87
2 500 000 kr
86 m²
5 soverom
Komplett salgsoppgave
Vamark - Vinje
Fjellhytte med 4 soverom og anneks
Prisantydning
2 500 000 krOmkostninger
83 490 krTotalpris
2 583 490 kr
Pris
Bruksareal
104 m²BRA-I (internt bruksareal)
86 m²BRA-E (eksternt bruksareal)
18 m²TBA (terrasse-balkongareal)
39 m²
Areal
Byggeår
1999Soverom
5 soveromBad
1 badTomteareal
988 m² (festet)Type
Fritidseiendom på fjelletEierform
EietEnergimerke
Rød D
Nøkkelinfo
Vurderer du utleie?
Få et tilbud fra Utleie KrogsveenHva koster lånet?
Sjekk estimert lånekostnadBeskrivelse
Kort om eiendommen
Hytta ligger på et høydedrag mellom Hovden og Haukeli og er omgitt av snaufjell. Den ble bygget på slutten av 90-tallet og påbygget noen år etter, samtidig som det ble satt opp et anneks. Hytta er praktisk med egen TV-stue og 4 soverom.- Et perfekt sted for rekreasjon, peiskos og hyggelige samlinger rundt langbordet. Rett utenfor stuedøra finnes fine turområder og oppkjørte skiløyper om vinteren. Til Hovden er det ca. 20 min. med bil. og ned til Haukeli er det ca. 10 min.
Innhold og byggemåte
Innhold og byggemåte
Eiendommen
Vatjønnvegen 87, 3895 EDLAND
Kommunenummer 4036, gårdsnummer 92, bruksnummer 2, festenummer 38, ideell andel 1/1
Innhold
Totalt bruksareal BRA: 104 kvm
BRA-i:
Hytte:
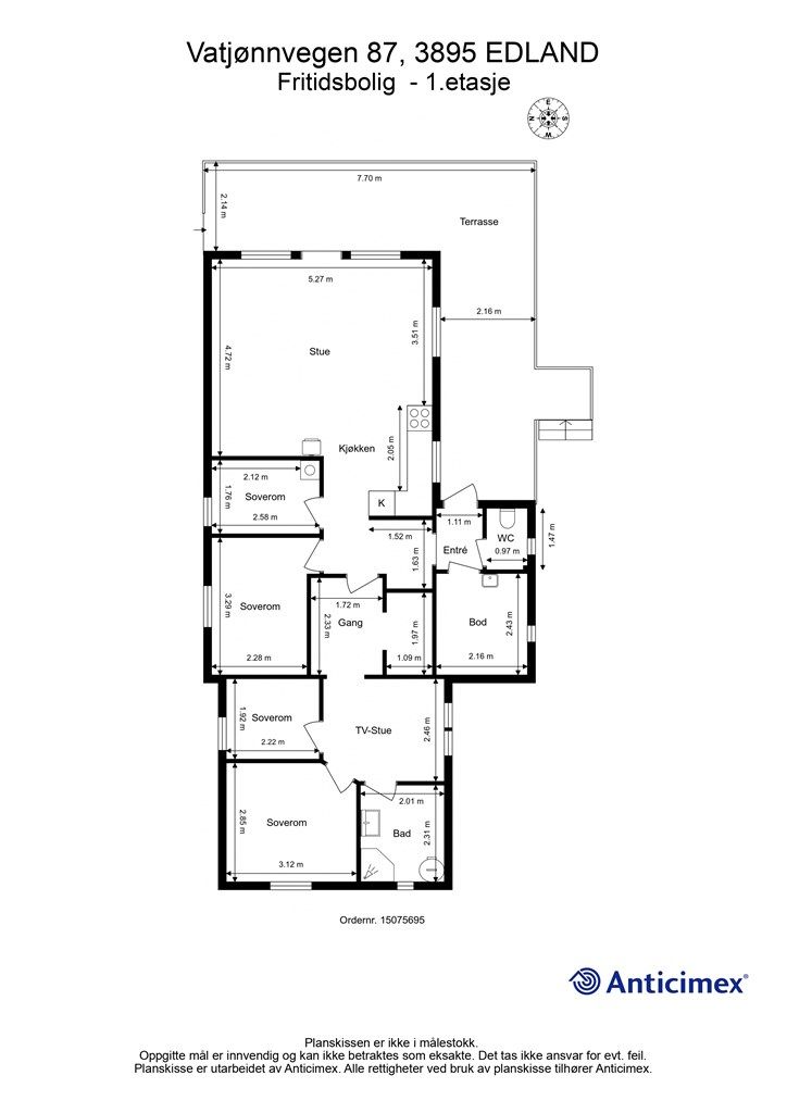
1. etasje 86 kvm: Entré, wc, bod, gang, stue, kjøkken, fire soverom, tv-stue og bad.
BRA-e:
Anneks:
1. etasje 18 kvm: Gang og stue/soverom.
Åpent areal:
Hytte:
1. etasje 31 kvm: Terrasse
Anneks:
1. etasje 8 kvm: Terrasse
Fritidsboligen har et totalt gulvareal (GUA) på 88 m2, men grunnet skråtak/lav takhøyde er kun 86 m2 av arealet måleverdig som bruksareal. De delene av arealene som har lav himlingshøyde (ALH) utgjør 2 m2.
Vedlagte plantegninger er ikke målbare. De oppgitte arealer er hentet fra rapport med befaringsdato 11.09.2025 utført av Anticimex Sandefjord AS. Arealene er beregnet og rom er definert etter dagens faktiske bruk, uavhengig av hva som er godkjent av bygningsmyndighetene.
Byggemåte
Selger har fått utarbeidet en tilstandsrapport, dvs. en teknisk gjennomgang av boligen hvor eventuelle avvik, risiko for kjøper og prisoverslag for hva som bør gjøres av oppgradering, er skissert. Se særskilt TGIU (tilstandsgrad ikke undersøkt), samt TG2 og TG3 som viser hva som er boligens normale slitasje, alder og type, hva som er avvik fra dette og hva som bør/må utbedres. Rapporten og selgers egenerklæring er en del av salgsoppgaven og må leses nøye før bud inngis. Kjøper overtar ansvaret for de opplysninger som fremkommer av salgsdokumentasjonen, og kan ikke gjøre gjeldende som mangel noe som burde vært kjent eller som ikke kan anses å ha betydning for avtalen.
Bygningen er iht. tilstandsrapporten oppført på søyler/fundamener i mur-Betongkontruksjoner. Tregulv med stubbloft. Yttervegger av trekonstruksjon med stående kledning. Saltak av trekonstruksjon tekket med torv. Vinduer i tre med koblet glass. Les for øvrig mer om byggemåte og den tekniske tilstanden i rapporten.
Det gjøres spesielt oppmerksom på forhold med tilstandsgrad 3 (TG3): Skorstein inne i fritidsboligen har fått TG3 fordi pipens overflater ikke er behandlet/pusset. Det er også for liten avstand mellom sotluke og brennbart materiale i henhold til brannkrav. Det er foretatt skjevhetsmålinger i fritidsboligen. Forskjellen mellom høyeste og laveste punkt i stue er 40 mm og 26 mm i hovedsoverommet. Skjevheteen kan skyldes settninger.
Følgende forhold er gitt tilstandsgrad 2 (TG2) i rapporten:
Badet er ikke innredet som våtrom og tilfredsstiller ikke kjrav for våtrom og lekkasejsikkerhet. Det er ikke sluk i gulvet. Effekten av avtrekksviften er ikke testet da den er sensorstyrt. Tilluftsspalte ved dør er ikke etablert, noe som medfører i redusert ventilering av rommet når dør er lukket.
Det er usikkert kommentert at det er usikker rest levetid for varmtvannsberederen. Det er kun fremlagt samsvarserklæring på deler av det utførte elektriske arbeidet, men det er ikke registrert åpenbare avvik.
Kledningen og vindusomrammingen har stedvis slitasje og skader. Det er usikkert om kledningen er montert med tilstrekkelig lufting, noe som kan påvirke kledningens levetid negativt. Kledningen har også kort avstand til terreng/terrasse som kan gi økt fare for fuktinntrengning og forkortet levetid. Vinduer, ytterdører og balkongdør har slitasje og behov for oppgraderinger/overflatebehandling Det er observert fuktmerker innvendig ved vinduer, men det er ikke registrert forhøyde fuktverdier.
Det har blitt gjort en helhetsvurdering av av taket som er en lukket konstruksjon, det er ikke kjent hvordan oppbygningen er utført. Takkonstruksjonen har liten, ingen eller mangelfull ventilering, som gir risiko for kondens med påfølgende skader. Takrenner av plast er på enkelte steder slitte og har lekkasjer. Deler av taket har lite torv. Trær på torvtaket bør fjernes da røtter kan skade undertak og tettinger.
Rekkverk på terrasser har stedvis slitte overflater. Lettklinkeblokker som er fundament for terrasse har kontakt med jordmasser, noe som kan forkorte levetiden til blokkene.
Drenering er nedgravd og skult, og kan ikke undersøkes. Det har blitt satt TG2 grunnet alder.
Anneks har fått TG2 grunnet alder og behov for vedlikehold, det er trær og røtter på torvtak som bør fjernes.
Det gjøres spesielt oppmerksom på at det er enkelte forhold som ikke er undersøkt på grunn av manglende tilkomst eller skjulte konstruksjoner. Dette gjelder blant annet fundamenter som er naturlig skjult. Det er heller ikke undersøkt hvilke grunnforhold som foreligger på eiendommen. Minirenseanlegg med tank er ikke kontrollert på befaringstidspunktet, da dette krever særskilt fagkyndighet.
Egenerklæringsskjema er fremlagt og signert 04.09.2025. Det foreligger samsvarserklæringer for el-anlegget fra 2018.
Se supplerende tekst i tilstandsrapporten om om ovennevnte forhold.
Standard
Hytta er funksjonell og praktisk. Stilen er Nordisk med utstrakt bruk av naturmaterialer. Vegger og himlinger har panel som enkelt og vakkert videreføres med furugulvets lange linjer. Ved å velge åpen løsning mellom stue og kjøkken er det like god utsikt fra begge rom. Hele dette rommet er en sosial sone med utgang til terrassen og store vindusfelt som bidrar til den gode romfølelsen. Her kan du sitte å spille spill i sofaen, mens noen sitter ved spisebordet og snakker med de som lager mat. I enden av rommet mot gangen er det en peisovn som gir god varme og flammene syntes fra alle sitteplassene. Kjøkkenet har innredning med furufronter og arbeidsbenk også den i heltre. Integrert komfyr med koketopp, ventilator og kjøleskap plassert under benken som også medfølger. Hytta har 4 soverom og TV-stue. Annekset er innredet med oppholdsrom og sovealkove i tillegg til en gang som også benyttes til lagerplass.
Løsøre og tilbehør
Vi viser til liste fra Norges Eiendomsmeglerforbund som gjelder fra 01.01.2020 angående løsøre og tilbehør.
Oppvarming
Peisovn i stua. Ellers elektrisk oppvarming. Dersom beboelsesrom ikke har vegg- eller fastmonterte varmekilder ved visning, følger dette heller ikke med.
Ferdigattest/brukstillatelse
Det foreligger ferdigattest på tilbygg og anneks, datert 10.11.2025.
Det er ikke søkt ferdigattest for oppføring av den opprinnelige hytta. Denne ble byggesøkt før 1998. Det gjøres oppmerksom på at det ikke lenger utstedes ferdigattest på tiltak det er søkt om før 1998 jf. plan- og bygningsloven § 21-10. Kommunen vil ikke kreve ferdigattest for disse tiltakene og vil avvise eventuelle søknader. Bestemmelsen innebærer ikke at tiltak med manglende søknad blir lovlige, men at man ikke trenger å avslutte gamle byggesaker. Normalt sett kreves ferdigattest for alle søknadspliktige tiltak som gjøres etter plan- og bygningsloven.
Tinglyste heftelser og rettigheter
Eiendommen overdras fri for pengeheftelser med unntak av:
Festekontrakt som blir tinglyst ved overskjøting til nye eiere.
Det er ingen andre tinglyste servitutter på eiendommen.
Kjøpers bank vil få prioritet etter ovennevnte heftelse.
Eiendommen vil få tinglyst rett til helårsparkering på gnr. 92, bnr. 2 i Vinje kommune, på anvist plass. Rettigheten blir tinglyst på gbnr. 92/2 i forbindelse med tinglysing av festekontrakten.
Beliggenhet og tomteforhold
Beliggenhet og tomteforhold
Beliggenhet
880 meter over havet, ca. 2,5 timers kjøring fra Grenland og ca. 3,5 timer fra Kristiansand, ligger denne modifiserte "Solhytten" med god avstand til naboer. Herfra er det fin utsikt til det duvende fjellandskapet og bare noen få meter fra hytta, mil etter mil med preparerte skiløyper. Rett utfor stue døra er det turterreng både sommer og vinter for alle aldersgrupper, med varierende løyper i lune skogkledde daler eller i snaufjellet. Litt videre mot Hovden ligger Langeidvatn, her er det fine områder for padling med kano eller kajakk. Det er flere fiskevann i området og fiskekort fås kjøpt i matbutikkene og bensinstasjonen i Haukeli. Der er mye blåbær, tyttebær og molter i nærområdet. Det er ca. 5 km. til Haukeli med butikker, kafe og bensinstasjon. Til Hovden er det ca. 20 km. Her finnes alpinanlegg, badeland og restauranter. Til Haukelifjell alpinanlegg er det ca. 25 km.
Adkomst
Når du kommer via E-134 til Hakekli, ta RV 9 (Bykleheivegen) til høyre og følg denne i ca. 4,5 km. Her tar du til høyre inn mot Vatjønn. Veien kommer litt brått på, idet den går inn til venstre i det du begynner på en lang slette. Følg veien innover ca. 1 km. og ta til høyre rett før et lite tjern. Herfra føgler du veien og tar opp til høyre idet du ser ei hytte rett frem. Her ligger hytta fint for seg selv å en liten åsrygg.
Beskrivelse av tomt
Festet tomt på 988 kvm. Framfor hytta er det gruset parkering og gårdsplass. Tomten for øvrig består av naturtomt med noe vegetasjon. Terrasse og inngangsparti i trevirke. Terrassen ut for stua vender mot vest og er delvis overbygget. Inngangspartiet er også overbygget og vender mot syd.
Regulering av feste
Festeavgiften er kr 3.000,- pr. år. Festeavtalen utløper 01.01.2097.
Festeavgiften reguleres hvert 10. år iht konsumprisindeksen.
Siste regulering av festeavgift var i 2018.
Grunneier er Gisle Sondre Gardsteig.
Kopi av lov om tomtefeste kan fåes ved henvendelse til megler.
Når festeavtalen utløper kan avtalen kreves forlenget. Fester kan alternativt kreve tomten innløst dersom vilkårene for innløsning i tomtefesteloven er oppfylt (finnes unntak fra innløsningsretten). Ved en evt. forlengelse løper festeforholdet videre på samme vilkår, men bortfester har rett til å kreve et "engangsløft" av festeavgift regulert. til 2 % av råtomteverdien, maksimalt på kr. 15.558,- i år 2025 pr. dekar tomt. Beløpet reguleres årlig iht. KPI. Grunneier har rett til ny justering hvert 30. år med 2 % av tomteverdien.
Kontakt megler for nærmere informasjon.
Parkering
Hytta har rett til helårsparkering for en bil på anvist parkeringsplass, men denne er lite brukt etter at det ble vei helt frem og parkering nå skjer på gruset område ved hytta. Derom vei frem til hytta ønskes brøytet har nåværende eier gitt beskjed til grunneier ved behov og betalt han for det.
Vei, vann og avløp
Eiendommen har adkomst via privat vei med felles vedlikeholdsansvar.
Eiendommen har vann fra brønn nedenfor hytta. Brønnen er i forbindelse med salget ikke undersøkt og det er ikke tatt vannprøver. Det tas forbehold om vannkvalitet og brønnens tilstand. Brønnen var tidligere et prosjekt med en hyttenabo som i ettertid har boret etter vann. Avløp fra hytta til en enkel kum med filter som tidvis må tømmes. Det er ikke søkt om å legge inn vann med avløp i hytta. Dette er således en ulovlig løsning. Kjøper overtar ansvaret for dette og må evt. søke om å etablere godkjente avløpsordninger. Grunneier har etablert et renseanlegg som er dimensjonert for alle hyttene på feltet. Dette muliggjør lovlig avløp, kontakt megler for evt. mer informasjon.
Regulerings-og arealplaner
Eiendommen er regulert til fritidsbolig i henhold til detaljregulering for Vamark Hyttefelt, med tilhørende reguleringsbestemmelser datert datert 18.02.2016.
I kommuneplanens arealdel er området avsatt til fritidsboliger med hensynssone for bevaring av naturmiljø.
Utsnitt av plan med tilhørende bestemmelser kan fås ved henvendelse til megler.
Økonomi
Økonomi
Kommunale utgifter
Kommunale avgifter er kr 3.366,- for inneværende år. I dette inngår gebyr for renovasjon og feiing/tilsyn.
Nåværende eier har et strømforbruk som tilsvarer ca. kr 15.000,- pr. år.
Fritidsboligen har en årlig forsikringspremie på ca. kr 6.500,- inkl. innbo.
Velavgift til Vatjønn hytteforening er kr 600,- pr. år. I tillegg er det ca. 6 000,- kroner årlig i brøyteavgift.
Boligen har parabolantenne. Tv-tuner/dekoder medfølger.
Utgiftene er basert på nåværende eiers forbruk og avtaler.
Selger har avtalt Norgespris på strøm på eiendommen for perioden 03.11.2025-31.12.2026, og denne er pt på kr 50 øre inkl mva. Nettleie, avgifter og påslag fra kraftleverandøren kommer i tillegg.
Denne avtalen vil følge eiendommen i den avtalte perioden.
Les mer om Norgespris her: https://www.regjeringen.no/no/aktuelt/legg-fram-lov-om-norgespris-pa-straum-og-fjernvarme/id3102642/
Omkostninger
2 500 000,00 Prisantydning
Omkostninger
62 500,00 Dokumentavgift til staten (2,5% av kjøpesum)
19 900,00 Gjensidige Boligkjøperpakke (valgfri)
545,00 Tinglysing panterettsdokument
545,00 Tinglysing skjøte
--------------------------------------------------------
83 490,00 Omkostninger totalt
--------------------------------------------------------
2 583 490,00 Totalpris inkl. omkostninger
--------------------------------------------------------
Totalpris inkl. omkostninger forutsetter kjøp til prisantydning.
Det tas forbehold om endringer i avgifter og gebyrer.
Tilbud om lånefinansiering
Megler formidler gjerne kontakt med rådgiver hos vår samarbeidspartner BN Bank. De har konkurransedyktige betingelser samt rask og løsningsorientert behandling av din lånesøknad. Krogsveen mottar et honorar for denne formidlingen.
Betalingsbetingelser
Kjøpesum inkludert omkostninger, samt pantedokument tilknyttet eventuelt lån, skal være disponibelt hos megler 2 virkedager før overtagelsen.
Annen viktig informasjon
Annen viktig informasjon
Eier
Arne Nilsen
Konsesjon
Eiendommen er ikke konsesjonspliktig, men det er boplikt i Vinje kommune. For at eiendommen skal kunne overskjøtes må kjøper signere på egenerklæring om konsesjonsfrihet om at boplikten ikke gjelder for denne eiendommen.
Overtakelse
Etter nærmere avtale.
Boligselgerforsikring
Selger har i forbindelse med salget tegnet boligselgerforsikring levert av Gjensidige.
Boligselgerforsikringen dekker selgers ansvar etter avhendingsloven begrenset oppad til kr 14 millioner. Dersom kjøper oppdager forhold ved eiendommen som hen mener utgjør en mangel ved eiendommen, vil Gjensidige behandle reklamasjonen på vegne av selger. Forsikringsvilkår kan fås ved henvendelse til megler.
Vedlagt salgsoppgaven følger selgers egenerklæringsskjema og tilstandsrapport. Interessenter må sette seg inn i dokumentene før bud inngis.
Boligkjøperforsikring
Innen kontraktsmøtet må kjøper ta stilling til om det ønskes å bestille Boligkjøperpakken gjennom Gjensidige. I denne gunstige pakken er boligen ferdig forsikret og inkluderer rettshjelpsforsikring, også kalt Boligkjøperforsikring. Rettshjelpsforsikring gir trygghet og tilgang på profesjonell juridisk hjelp dersom det oppdages uventede feil eller mangler det første året etter overtagelse. Forsikringsselskapet behandler i så fall ethvert mangelskrav kjøper måtte ha overfor selger.
Boligkjøperpakken inkluderer bygningsforsikring for hus og hytte, innboforsikring, flytteforsikring og dobbel rentedekning - i situasjoner hvor kjøper ikke får solgt nåværende primærbolig.
Kjøper mottar ingen særskilt faktura for Boligkjøperpakken da kostnaden det første året legges til kjøpesummen for boligen. Det gjøres oppmerksom på Krogsveen mottar et honorar for denne formidlingen.
Produktark for Boligkjøperpakken ligger vedlagt i salgsoppgaven.
Dersom ikke boligkjøperpakke ønskes kan kun rettshjelpsforsikring, også kalt boligkjøperforsikring, tegnes særskilt via megler. Rettshjelpsforsikringen varer i 5 år fra overtagelse og leveres gjennom Gjensidige. Ta kontakt med megler for ytterligere informasjon.
Selskap og privatpersoner som driver med kjøp/salg/utvikling som ledd i egen næringsvirksomhet kan ikke tegne boligkjøperpakke eller rettshjelpsforsikring.
Budgivning
Forbrukerinformasjon om budgivning er vedlagt denne salgsoppgaven og er også på vår hjemmeside Krogsveen.no. Alle bud og budforhøyelser må inngis skriftlig. I tillegg må legitimasjon være fremlagt sammen med signatur fra budgiver.
Vi oppfordrer til å gi bud elektronisk via GI BUD-knappen på eiendommens hjemmeside på Krogsveen.no. Da vil samtlige vilkår bli oppfylt.
Eventuelle forhøyelser eller endringer av budet kan bekreftes pr SMS eller på e-post. Vi oppfordrer alltid til å kontakte megler pr. telefon i tillegg da forsinkelser i SMS og e-post kan forekomme.
For at budene skal kunne bli behandlet og videreformidlet skriftlig til alle involverte parter, må alle bud ha en tilstrekkelig lang akseptfrist, jf. eiendomsmeglingsforskriften § 6-3.
Selger må også skriftlig akseptere budet før aksept kan formidles til budgiver. Akseptfrist bør derfor være på minimum 30 minutter, og budforhøyelser må derfor skje i god tid før fristens utløp.
Bud i forbrukerforhold kan uansett ikke settes med kortere frist enn kl. 12.00 første virkedag etter siste annonserte visning. I tillegg kan ikke budet ha forbehold om at det skal holdes hemmelig ovenfor øvrige interessenter. Megler har iht lov om eiendomsmegling ikke anledning til å videreformidle disse budene, og de vil dermed heller ikke bli journalført.
Etter at eiendommen er solgt vil kjøper og selger få tilsendt budjournal. Øvrige budgivere kan få utlevert kopi av budjournalen i anonymisert form.
Hvitvaskingsreglene
I henhold til lov om hvitvasking og terrorfinansiering har megler plikt til å gjennomføre kontrolltiltak overfor kunder, herunder fullmektiger. Dette innebærer bl.a. å bekrefte kunders og reelle rettighetshaveres identitet på bakgrunn av fremvist gyldig legitimasjon eller på annen godkjent måte, samt å innhente opplysninger om kundeforholdets formål og tilsiktede art.
Dersom slike kundetiltak ikke kan gjennomføres, kan megler ikke etablere kundeforholdet eller utføre transaksjonen.
Hvis kjøper ikke bidrar til gjennomføring av kundekontrollen og dette fører til at transaksjonen blir forsinket eller ikke kan gjennomføres, vil dette ansees som mislighold av avtalen og gi selger rettigheter etter avhendingslova kapittel 5. I tilfeller der selger ikke bidrar til gjennomføring av løpende kundekontroll underveis i oppdraget, er det selger som misligholder sine forpliktelser etter avtalen og gi kjøper rettigheter etter avhendingslovens kapittel 4. Partene er selv ansvarlige for eventuelle kostnader og ansvar dette kan medføre. Eiendomsmegleren eller eiendomsmeglingsforetaket kan ikke holdes ansvarlig for de konsekvenser dette vil kunne få for partene eller andre som har interesser i eiendomshandelen.
Kjøper oppfordres til å innbetale kjøpesummen som ikke kommer fra låneinstitusjon i én samlet innbetaling fra egen konto i norsk bank. Megler har plikt til å melde fra til Økokrim om eiendomshandler som fremstår som mistenkelige. Melding sendes Økokrim uten at partene varsles.
Personopplysningsloven
I henhold til personopplysningsloven gjør vi oppmerksom på at interessenter kan bli registrert for videre oppfølging.
Lovanvendelse
Generelle bestemmelser
Salgsoppgaven er basert på de opplysningene selger har gitt til megler, den bygningssakyndiges tilstandsrapport, samt opplysninger innhentet fra kommunen, Kartverket og andre tilgjengelige kilder. Det er viktig at kjøper setter seg grundig inn i alle salgsdokumentene, herunder salgsoppgave, tilstandsrapport og selgers egenerklæring. Kjøper anses kjent med forhold som er tydelig beskrevet i salgsdokumentene, og slike forhold kan ikke påberopes som mangler. Dette gjelder uavhengig av om kjøper har lest dokumentene. Alle interessenter oppfordres til å undersøke eiendommen nøye, gjerne sammen med fagkyndig før bud inngis. Kjøper som velger å kjøpe usett kan ikke gjøre gjeldende som mangel noe han burde blitt kjent med ved undersøkelsen.
Dersom det er behov for avklaringer, anbefaler vi at interessenter rådfører seg med eiendomsmegler eller egne rådgivere før det legges inn bud.
En bolig som har blitt brukt i en viss tid, har vanligvis blitt utsatt for slitasje og skader kan ha oppstått. Slik bruksslitasje må kjøper regne med, og det kan avdekkes enkelte forhold etter overtakelse som nødvendiggjør utbedringer. Normal slitasje og skader som nødvendiggjør utbedring, er innenfor hva kjøper må forvente og vil ikke utgjøre en mangel.
Kjøper og selgers rettigheter og plikter reguleres av avtalen mellom partene, samt informasjonen som har vært tilgjengelig for kjøperen i forbindelse med handelen. Avtalen utfylles av avhendingsloven, og det gjelder ulike avtalevilkår avhengig av om kjøper er forbrukerkjøper eller ikke. Dette er nærmere beskrevet nedenfor.
På grunn av ulike avtalevilkår kan selger vurdere bud fra en som ikke er forbruker, ulikt fra en forbrukers bud. Dersom kjøper ikke er forbruker, er selger sitt mulige mangelsansvar begrenset fordi eiendommen selges "som den er". Selger kan ikke ta «som den er»- forbehold overfor en forbrukerkjøper. Selv et lavere bud fra en som ikke er forbruker kan foretrekkes fordi begrensningen i mulig mangelsansvar kan ha egenverdi for selger. Selger står fritt til å forkaste eller akseptere ethvert bud, og er for eksempel ikke forpliktet til å akseptere høyeste bud.
Budgiver skal i budskjema avgi egenerklæring om budgiver er forbruker eller næringsdrivende/ person som hovedsakelig handler som ledd i næringsvirksomhet. Budgivere får informasjon dersom andre bud er inngitt av en som ikke er forbruker.
Forbrukerkjøp - definisjon
Med forbrukerkjøp menes kjøp av eiendom når kjøperen er en fysisk person som ikke hovedsakelig handler som ledd i næringsvirksomhet.
Forbruker – avtalevilkår
Eiendommen har en mangel dersom den ikke er i samsvar med kravene som følger av avtalen, eller det foreligger brudd på bestemmelsene i avhendingsloven §§ 3-2 til 3-8. Hvis eiendommen ikke er i samsvar med det kjøperen må kunne forvente ut ifra alder, type og synlig tilstand, kan det være grunnlag for mangelskrav. Det samme gjelder hvis det er holdt tilbake eller gitt uriktige opplysninger om eiendommen. Dette gjelder likevel bare dersom man kan gå ut ifra at det virket inn på avtalen at opplysningen ikke ble gitt eller at mangelskravet ikke blir rettet i tide på en tydelig måte.
Boligen kan ha en mangel etter avhendingsloven § 3-3 andre ledd, dersom det er avvik mellom opplyst og faktisk innvendig areal, forutsatt at avviket er på 2% eller mer og minimum 1 kvm.
Ved beregning av et eventuelt prisavslag eller erstatning må kjøper selv dekke tap/kostnader opptil et beløp på kr 10 000 (egenandel).
Ikke-forbruker (næringsdrivende) – definisjon
Hvis kjøper er en juridisk person, eller en fysisk person som hovedsakelig handler som ledd i næringsvirksomhet, vil kjøpet ikke anses som et forbrukerkjøp.
Ikke-forbruker – avtalevilkår
Eiendommen har en mangel dersom den ikke er i samsvar med kravene som følger av avtalen.
Eiendommen selges «som den er», og selgers ansvar utover det konkret avtalte er da begrenset etter avhendingsloven § 3-9, første ledd andre setning.
Avhendingsloven § 3-3 andre ledd fravikes, og hvorvidt boligens arealsvikt utgjør en mangel vurderes etter avhendingsloven § 3-8.
Informasjon om kjøpers undersøkelsesplikt, herunder oppfordringen om å undersøke eiendommen nøye, gjelder også for kjøpere som ikke anses som forbrukere.
Det forutsettes at hjemmel overføres til kjøper. Hvis kjøper ikke ønsker hjemmelsoverføring av eiendommen, må det tas forbehold om dette i budet.
Meglers vederlag
Meglers vederlag betales av selger og er avtalt til:
Vederlag: 3,75 % av salgssummen.
Vederlag
Kontroll av hjemmel og heftelser kr 2 900,-
Markedsføringspakke Fritid kr 27 400,-
Oppgjør kr 7 500,-
Tilrettelegging kr 17 000,-
Visninger pr stk kr 4 000,-
Utlegg
Innhenting av offentlig opplysninger Vinje kommune kr 4 152,-
Tinglysing sikring kr 545,-
Andre utgifter
Tilstandsrapport kr 17 500,-
Boligselgerforsikring Gjensidige kr 15 775,-
Foto - inkl. drone kr 10 000,-
Opplysninger om oppdraget
Oppdragsnummer 28-0085/25
Eiendomsmegler Krogsveen AS, avd. Bamble og Porsgrunn
Strandgata 22, 3960, STATHELLE
950 007 613
Oppdragets KR-kode KR28.2585
Dato
Sist oppdatert: 26. mai 2026 kl. 12:36
Dokumenter
Dokumenter
PDF – 743 KB
PDF – 494 KB
PDF – 194 KB
PDF – 912 KB
PDF – 312 KB
PDF – 29 KB
PDF – 127 KB
PDF – 392 KB
Område
Legg til steder som er viktige for deg
Visning
Ta kontakt med megler for avtale om privatvisning.
Ønsker du kun å bli holdt orientert, kan du fra eiendommens hjemmeside få varsel om solgtpris, eller kontakte megler.
Lurer du på noe?
Vurderer du utleie?
Få et tilbud fra Utleie KrogsveenHva koster lånet?
Sjekk estimert lånekostnadVil du varsles om lignende boliger?
Ved å lagre ditt boligsøk hos oss får du beskjed når vi har en bolig som ligner denne, før den legges ut på markedet!






































