Traverveien 15
5 380 000 kr
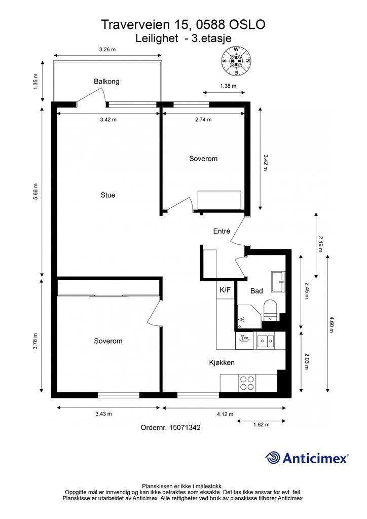
67 m²
2 soverom
Solgt

Presenteres av
Hanne PettersenDISEN/ÅRVOLL
MAGISK UTSIKT! Luftig og lekker 3-roms med sjeldent god beliggenhet - Solrik, vestvendt balkong
Prisantydning
5 380 000 krAndel fellesgjeld
186 910 krOmkostninger
18 978 krTotalpris
5 585 888 kr
Pris
Bruksareal
70 m²BRA-I (internt bruksareal)
67 m²BRA-E (eksternt bruksareal)
3 m²TBA (terrasse-balkongareal)
4 m²
Areal
Etasje
3Byggeår
1955Soverom
2 soveromBad
1 badType
AndelsleilighetEierform
AndelFasiliteter
Balkong/TerrasseFellesutgifter
5 447 krEnergimerke
Grønn F
Nøkkelinfo
Unngå doble boligrenter
Vi tilbyr gunstig forsikring.
Vurderer du utleie?
Få et tilbud fra Utleie KrogsveenHva koster lånet?
Sjekk estimert lånekostnadBeskrivelse
Kort om eiendommen
Flott beliggende leilighet i blindvei med vestvendt balkong og MAGISK utsikt.
Fra balkongen har man flott utsikt, her kan du nyte solen midtsommers fra ca. kl. 13 - 21.
Tonsenjordet borettslag er et svært populært borettslag.
Her er det et ungt, sporty og engasjert bomiljø.
Blindveien er omkranset av grøntareal, sittegrupper og lekeplasser.
Traverveien 15 har en av gatens beste beliggenheter.
Denne leiligheten er det vanskelig å ikke falle for!
Moderne fargepalett er gjennomgående i boligen
Enstavs eikeparkett
Stilrent Ikea kjøkken m/integrerte hvitevarer
2 luftige soverom
Tidløst bad pusset opp i 2009 av brl.
Kjellerbod og loftsbod m/gulvareal på hhv. 3 og 10 kvm
Varmtvann og fyring er inkl. i felleskostnader
Forkjøpsretten er forhåndsutlyst
Område
Legg til steder som er viktige for deg
På flyttefot? Tenk kjøp og salg samtidig.
Få din egen rådgiver gjennom hele kjøps- og salgsprosessen. Det starter med en verdivurdering.
Unngå doble boligrenter
Vi tilbyr gunstig forsikring.
Vurderer du utleie?
Få et tilbud fra Utleie KrogsveenHva koster lånet?
Sjekk estimert lånekostnadVil du varsles om lignende boliger?
Ved å lagre ditt boligsøk hos oss får du beskjed når vi har en bolig som ligner denne, før den legges ut på markedet!
På flyttefot? Slik gjør vi det enklere for deg
Skreddersydd flyttepakke
Vi fikser håndverkere, vask, pakking, lagring og transport, og legger ut for utgiftene underveis.
Hjelp med både kjøp og salg
Hos oss har du din egen rådgiver gjennom hele kjøps- og salgsprosessen.
Hjelp til finansiering
Vårt samarbeid med BN Bank sikrer deg rask og løsningsorientert hjelp, til konkurransedyktige betingelser.

