Nedre Hoffland 19
4 900 000 kr
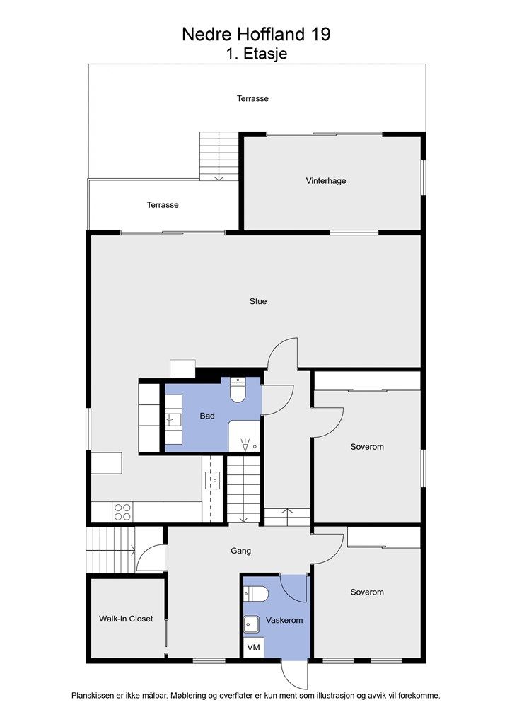
186 m²
2 soverom
Solgt

Hoffland/Ellingsøy
BUD MOTTATT! Oppusset enebolig med garasje | Pent opparbeidet og skjermet tomt med flott sjøutsikt | Hagestue | Terrasser på 92 m2
Prisantydning
4 900 000 krOmkostninger
143 400 krTotalpris
5 043 400 kr
Pris
Bruksareal
225 m²BRA-I (internt bruksareal)
186 m²BRA-E (eksternt bruksareal)
39 m²TBA (terrasse-balkongareal)
92 m²
Areal
Etasje
2Byggeår
1965Soverom
2 soveromBad
1 badTomteareal
832 m² (eiet)Type
Enebolig - FrittliggendeEierform
EietFasiliteter
Garasje/P-plass og Balkong/Terrasse
Nøkkelinfo
Unngå doble boligrenter
Vi tilbyr gunstig forsikring.
Vurderer du utleie?
Få et tilbud fra Utleie KrogsveenHva koster lånet?
Sjekk estimert lånekostnadBeskrivelse
Kort om eiendommen
Fin enebolig oppført over to etasjer i 1965 med senere tilbygg.
* Hovedetasjen oppusset i 2018
* Pent opparbeidet og skjermet tomt
* Flott utsikt
* Garasje 28 kvm
* Hagestue 11 kvm
* Stor terrasse i 2 plan på 92 kvm
* Utebod
Velkommen til visning! Husk påmelding!
Område
Legg til steder som er viktige for deg
På flyttefot? Tenk kjøp og salg samtidig.
Få din egen rådgiver gjennom hele kjøps- og salgsprosessen. Det starter med en verdivurdering.
Unngå doble boligrenter
Vi tilbyr gunstig forsikring.
Vurderer du utleie?
Få et tilbud fra Utleie KrogsveenHva koster lånet?
Sjekk estimert lånekostnadVil du varsles om lignende boliger?
Ved å lagre ditt boligsøk hos oss får du beskjed når vi har en bolig som ligner denne, før den legges ut på markedet!

