Parkenga 5B
8 700 000 kr
241 m²
4 soverom
Solgt

Presenteres av
Hanne PettersenAMMERUD
UNIK MULIGHET! Skap eneboligdrømmen i markagrensen - Godkjent hybel - Tomt på 1263 kvm - Dobbelgarasje
Prisantydning
8 700 000 krOmkostninger
238 490 krTotalpris
8 938 490 kr
Pris
Bruksareal
294 m²BRA-I (internt bruksareal)
241 m²BRA-E (eksternt bruksareal)
53 m²TBA (terrasse-balkongareal)
15 m²
Areal
Byggeår
1974Soverom
4 soveromBad
2 badTomteareal
1 263 m² (eiet)Type
Enebolig med utleiedelEierform
EietFasiliteter
Garasje/P-plass og Balkong/TerrasseEnergimerke
Grønn G
Nøkkelinfo
Unngå doble boligrenter
Vi tilbyr gunstig forsikring.
Vurderer du utleie?
Få et tilbud fra Utleie KrogsveenHva koster lånet?
Sjekk estimert lånekostnadBeskrivelse
Kort om eiendommen
Velkommen til boligdrømmen ved Ammerudskogen!
Ønsker du om å skape din egen drømmebolig med tilhørende hage?
Her kan du gjøre akkurat det!
Boligen har behov for oppussing, men er fullspekket av muligheter!
Stor eiendom med hele 294 kvm i BRA.
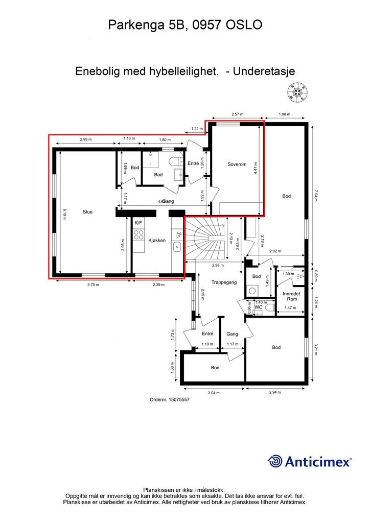
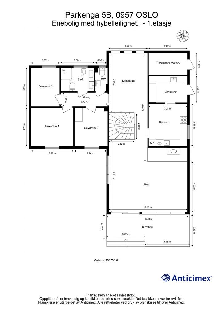
Eneboligen går over to plan med 3 soverom, 2 stuer, kjøkken, baderom, toalettrom og vaskerom samt underetasje med toalett, 3 boder og egen hybeldel.
Her har man en skjermet og barnevennlig beliggenhet, med idyllisk utsikt og fine solforhold, ikke minst nærhet til marka.
Oppussingsobjekt med enormt potensiale
Eiendommen har aldri vært til salgs tidligere og har en av områdets største tomter på hele 1 263 kvm
Godkjent hybeldel leies ut til kr 16 000,- pr. mnd.
Dobbelgarasje på 40 kvm fra 2010 med elektrisk garasjeport
Område
Legg til steder som er viktige for deg
På flyttefot? Tenk kjøp og salg samtidig.
Få din egen rådgiver gjennom hele kjøps- og salgsprosessen. Det starter med en verdivurdering.
Unngå doble boligrenter
Vi tilbyr gunstig forsikring.
Vurderer du utleie?
Få et tilbud fra Utleie KrogsveenHva koster lånet?
Sjekk estimert lånekostnadVil du varsles om lignende boliger?
Ved å lagre ditt boligsøk hos oss får du beskjed når vi har en bolig som ligner denne, før den legges ut på markedet!
På flyttefot? Slik gjør vi det enklere for deg
Skreddersydd flyttepakke
Vi fikser håndverkere, vask, pakking, lagring og transport, og legger ut for utgiftene underveis.
Hjelp med både kjøp og salg
Hos oss har du din egen rådgiver gjennom hele kjøps- og salgsprosessen.
Hjelp til finansiering
Vårt samarbeid med BN Bank sikrer deg rask og løsningsorientert hjelp, til konkurransedyktige betingelser.

