Korvaldveien 125A
7 900 000 kr
271 m²
4 soverom
Komplett salgsoppgave

Mjøndalen
Innbydende og familievennlig bolig med 3 store etasjer. 3 stuer og 3 bad. Solrikt og skjermet uteområde. Dobbelgarasje.
Prisantydning
7 900 000 krOmkostninger
218 490 krTotalpris
8 118 490 kr
Pris
Bruksareal
316 m²BRA-I (internt bruksareal)
271 m²BRA-E (eksternt bruksareal)
45 m²TBA (terrasse-balkongareal)
41 m²
Areal
Etasje
3Byggeår
1996Soverom
4 soveromBad
3 badTomteareal
722 m² (eiet)Type
Enebolig - FrittliggendeEierform
EietFasiliteter
Garasje/P-plass og Balkong/Terrasse
Nøkkelinfo
Unngå doble boligrenter
Vi tilbyr gunstig forsikring.
Vurderer du utleie?
Få et tilbud fra Utleie KrogsveenHva koster lånet?
Sjekk estimert lånekostnadBeskrivelse
Kort om eiendommen
Innhold og byggemåte
Innhold og byggemåte
Eiendommen
Korvaldveien 125A, 3050 MJØNDALEN
Kommunenummer 3301, gårdsnummer 216, bruksnummer 179, ideell andel 1/1
Innhold
Totalt bruksareal BRA: 316 kvm.
BRA-i:
Kjeller:
93 kvm: Trappegang, vaskerom, bad, kjellerstue og tre boder.
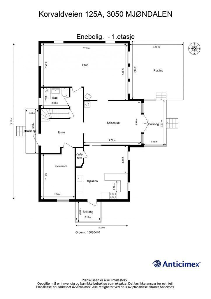
1. etasje:
99 kvm: Entré, trapperom til kjeller, bad, ett soverom, stue, spisestue, kjøkken og kjølerom.
2. etasje:
79 kvm: Loftstue, bad, tre soverom og to garderoberom.
BRA-e:
Dobbelgarasje - 1. etasje:
45 kvm: Garasje (34 kvm) og bod (11 kvm).
TBA (terrasse- og balkongareal)
1. etasje:
37 kvm: Balkong ved kjøkken (5 kvm), balkong ved spisestue (7 kvm), balkong ved inngangsparti (4 kvm) og markterrasse (21 kvm).
2. etasje:
4 kvm: Balkong.
2. etasjen har et totalt gulvareal (GUA) på 84 kvm, men grunnet skråtak/lav takhøyde er kun 79 kvm av arealet måleverdig som bruksareal. De delene av arealene som har lav himlingshøyde (ALH) utgjør 5 kvm.
Garasjens lagringsloft har et gulvareal på 28 kvm som i sin helhet er klassifisert som ALH på grunn av lav takhøyde, og er derfor ikke måleverdig som bruksareal.
De oppgitte arealer er hentet fra rapport med befaringsdato 08.04.2026 utført av Anticimex AS v/Jon Simonsen. Arealene er beregnet og rom er definert etter dagens faktiske bruk, uavhengig av hva som er godkjent av bygningsmyndighetene.
Byggemåte
Selger har innhentet en tilstandsrapport av eiendommen. Dersom det er registrert avvik, er disse klassifisert med tilstandsgrader (TGIU, TG2 og/eller TG3). Kjøper overtar ansvaret for de opplysninger som fremkommer av salgsdokumentasjonen, og kan ikke gjøre gjeldende som mangel noe som burde vært kjent eller som ikke kan anses å ha betydning for avtalen.
Bygningen er iht. tilstandsrapport en enebolig oppført i 1996. Bygget er oppført med støpt gulv mot grunn, grunnmur av lettklinkerblokker, etasjeskillere av lettbetongelementer og trekonstruksjoner, og yttervegger av trekonstruksjoner med stående trekledning. Forbedret drenering på forsiden av boligen i 2013. Kledd yttervegg i kjellerstue med Styrodur plater og pusset i 2013. Takkonstruksjonen er et saltak i tre med takark, og yttertaket er tekket med takstein fra byggeår. Boligen har vinduer med karmer av tre og stedvis i plast, med to-lags glass fra byggeår, 2013 og 2018 (kjøkken, soverom i 1. etasje, bad i 2. etasje og soverom 3 fra 2018). Balkongdør fra 2018 ved kjøkken. Ytterdører er fra byggeår og ca. 2018 (ytterdør/stalldør i kjeller fra 2018). Innvendig er det profilerte og slette innerdører, samt en dør med brann- og lydklassifisering til bad i kjeller. Gravd ut store lyskasser og rømningsvei i 2013.
Bygningen er iht. tilstandsrapport en frittstående dobbel garasje oppført i 2015 med tilhørende bod. Bygningen har støpt gulv mot grunn, ringmur i lettklinkerblokker og er en trekonstruksjon med stående trekledning. Taket er et saltak i trekonstruksjoner, tekket med takstein. Garasjen har leddport og sidedør i metall, samt vinduer med trerammer og to-lags glass.
Det elektriske anlegget har sikringsskap plassert i entré og er sikret med automatsikringer. Det er observert at downlights på kaldloft mangler tilstrekkelig kasse mot overliggende isolasjon, og det anbefales en utvidet kontroll av anlegget av en elektrofaglig person.
Det gjøres spesielt oppmerksom på at følgende bygningsdeler er gitt Tilstandsgrad 3 (TG3) — Store eller alvorlige avvik:
Våtrom - Bad. Kjeller.
- Lekkasjesikkerhet: Det kan ikke verifiseres om tettesjikt har tilstrekkelig oppkant ved dørterskel. På bakgrunn av dette samt at det ikke er etablert sluk i rommet vurderes lekkasjesikkerheten til ikke være tilfredsstillende ivaretatt.
- Avløp (inkl. sluk): Det er ikke etablert sluk i rommet. Bruk av tett dusjkabinett må derfor videreføres.
Følgende bygningsdeler er gitt Tilstandsgrad 2 (TG2) — Avvik som kan kreve tiltak:
Våtrom - Bad. Kjeller.
- Vanntett sjikt / membran i gulv og vegger: Det er uklart om det er benyttet vanntett sjikt på våtrommets veggflater. På grunn av dette må derfor bruk av tett dusjkabinett videreføres.
- Ventilasjon: Tilluftsspalte eller lignende ved dør er ikke etablert.
- Sanitærutstyr og innredning: Drenering fra innebygget toalettsisterne er ikke registrert.
- Fagmessig utførelse: Det foreligger informasjon om at våtrommet er bygget eller delvis bygget ved egeninnsats.
Våtrom - Vaskerom. Kjeller.
- Fallforhold rundt sluk: Lokalfallet i sluksonen er mindre enn anbefalt.
- Lekkasjesikkerhet: Fallforhold utenfor sluksonen vurderes ikke til å være tilstrekkelig for å lede eventuelt lekkasjevann til sluk, og det er ikke påvist at vanntett sjikt har tilstrekkelig oppkant ved dørterskel for å kompensere for dette.
- Vanntett sjikt/membran i gulv og vegger: Det er uklart om det er benyttet vanntett sjikt på våtrommets gulv og veggflater.
- Tettesjiktets tilslutning til sluk: Overgang mellom sluk og vanntett sjikt er uoversiktlig.
- Vannrør: Vannrør av kobber (og tilhørende komponenter) har en alder som tilsier at fremtidig funksjon er usikker. Bygningsdelen er skjult, så den faktiske tilstanden er ukjent.
- Ventilasjon: Tilluftsspalte eller lignende er ikke etablert. Våtrommet har kun naturlig ventilasjon.
Våtrom - Bad. 1.etasje.
- Overflater vegger: Vindu er plassert nær våtsonen ved dusj, noe som anses som uheldig.
- Fallforhold rundt sluk: Lokalfallet i sluksonen er mindre enn anbefalt.
- Lekkasjesikkerhet: Fallforhold utenfor sluksonen vurderes til å være lite i forhold til preaksepterte ytelser (anbefalinger). Til opplysning så er tettesjikt ført minimum 15 mm opp ved dørterskel slik at lekkasjesikkerheten mot tilstøtende rom er vurdert som tilfredsstillende ivaretatt.
- Tettesjiktets tilslutning til sluk: Overgang mellom sluk og vanntett sjikt er uoversiktlig.
Tekniske anlegg
- Vannrør (utover det som nevnes under andre sjekkpunkter): Boligens vannrør av kobber (og tilhørende komponenter) har en alder som tilsier at fremtidig funksjon er usikker. Bygningsdelen er skjult, så den faktiske tilstanden er ukjent.
- Fordelerskap og fordelerstammer: Fordelerstammer i kjeller: Fordelerstammer for rør-i-rør er plassert åpent på vegg og i himling og ikke i eget lukket fordelerskap med kontrollert avrenning til sluk.
- Mekaniske ventilasjonsanlegg (utover det som nevnes under andre sjekkpunkter): Ventilasjonsvifte på kaldloft: Anlegget og tilknyttet utstyr har en alder som tilsier at fremtidig funksjon er usikker.
Andre rom - 1.etasje.
- Overflate gulv: TG 2 gjelder for gulvflater med heltre gulvbord: Synlige deler av gulvets overflatemateriale bærer preg av slitasje med enkelte riper og hakk. Forholdet vurderes i hovedsak til å være av estetisk betydning, men riper og hakk av en viss dybde kan gjøre at fuktighet som for eksempel fra rengjøring forårsaker misfarging eller lignende konsekvenser. Det er registrert tegn til knirk i deler av gulvet.
Rom under terreng - Kjeller.
- Overflate gulv: Deler av gulvets overflatemateriale har stedvise tegn til misfarging i fuger, trolig som følge av fuktbelastning/vannsøl. Forholdet vurderes i hovedsak til å være av estetisk betydning, uten nevneverdige konsekvenser utover dette.
- Innerdører: Dørbladet på enkelte innerdører kommer i kontakt med karmen slik at døren ikke kan åpnes og lukkes som normalt.
- Kontroll i lukkede konstruksjoner: Selger opplyser om at det brukt plastisolasjon (isopor) veggkonstruksjonen mot yttervegg i kjellerstue, en løsning som er forbundet med økt risiko for helsefarlig avgassing ved brann. Det er foretatt hulltaking og utført fuktmåling i utlektet veggkonstruksjon i bod mot nordvest. Målingen gir kun et øyeblikksbilde og kan eksempelvis endre seg med årstider, fukt- og temperaturforhold. Fuktinnholdet i tilgjengelig treverk ble målt med piggelektroder til 9,1 vektprosent. Dette måleresultatet tilsier at det ikke ble registrert forhøyet fuktnivå.
Loft - innredet - 2.etasje.
- Konstruksjonsoppbygging: Det er ingen tilkomst bak knevegger. Det gjøres oppmerksom på at det ikke er observert symptomer på fuktskader. Etasjens skråtak er i praksis en lukket konstruksjon, men det er gjort observasjoner av konstruksjonsoppbygningen fra kaldtloft. Disse observasjonene tyder ikke på feil ved oppbygningen.
Spesialrom - Kjølerom. 1.etasje.
- Konstruksjonsoppbygging: Rommets vegger er en lukket konstruksjon og ikke tilgjengelig for inspeksjon. Det gjøres oppmerksom på at det ikke er observert symptomer på fuktskader.
- Tekniske anlegg (kjøleaggregat, badstueovn med mer): På bakgrunn av alderen til det tekniske utstyret som tilhører rommet vurderes det at fremtidig funksjon er usikker.
Etasjeskiller og gulv på grunn (skjevhetsmåling)
- Kjeller: På stor bod er det på tilfeldige punkter målt lokale høydeforskjeller opptil 20 mm (TG 2). I kjellerstue er det på tilfeldige punkter målt lokale høydeforskjeller opptil 5 mm. Stikkprøvene som er utført har avdekket stedvise vesentlige skjevheter. Eksakt årsak er ikke kjent, men det anses som lite sannsynlig at forholdet skyldes strukturelle skader i konstruksjonen.
Yttervegger inkl. fasader
- Lufting av ytterkledning: Det er ikke etablert spalte for lufting og drenering bak ytterkledningen.
Yttertak
- Tekking (med tilhørende beslag): Taktekkingen (med tilhørende beslag) viser begynnende tegn til slitasje og elde. Det er derimot ikke registrert synlige skader av vesentlig betydning, men taktekkingen har nådd en alder og tilstand der fremtidig funksjon vurderes som usikker.
- Undertak (inkluderer sløyfer, lekter og innfestninger): Undertaket (inkluderer sløyfer, lekter, innfestninger og lignende) med tilhørende komponenter har en alder som tilsier at fremtidig funksjon er usikker. Bygningsdelen er skjult, så den faktiske tilstanden er ukjent.
- Snøfangere: Snøfangerutstyr er ikke etablert. På grunn av oppføringstidspunktet vurderes det at kravet for snøfangerutstyr trolig ikke var gjeldende, men TG2 er valgt siden forholdet kan påvirke sikkerheten.
Balkonger - 1.etasje v/kjøkken.
- Konstruksjon og fundamenter: Det observeres skjevheter søyler under balkongen.
Balkonger - 1.etasje v/spisestue.
- Tilstand på rekkverk og overflatematerialer: Overflatematerialer på balkongens og trappens gulvflater viser tegn til slitasje.
Balkonger - Ved inngangsparti.
- Tilstand på rekkverk og overflatematerialer: Overflatematerialer på terrassebord viser tegn til elde og slitasje.
- Konstruksjon og fundamenter: Det observeres tegn til skjevheter i trappen til terreng.
Terrasse / platting
- Tilstand på rekkverk og overflatematerialer: Overflatematerialer på terrassen viser tegn til elde og slitasje.
Grunnmur, fundament
- Grunnmur og fundament: Tegn til riss og enkelte sprekkdannelser observeres stedvis i overflaten til grunnmuren i overgang grunnmur og lysgrav mot vest og ved ovegang til støttemur ved ned gang til kjeller.
Drenering
- Helhetsvurdering: Det er valgt å vurdere dreneringen med en samlet helhetsvurdering. Følgende hovedmomenter er lagt til grunn for vurderingen: Drenering har en alder som tilsier at fremtidig funksjon er usikker. Forhold som påvirker funksjonen er i hovedsak nedgravd og skjult, noe som medfører at tilstanden ikke kan fastslås ved visuell inspeksjon. Dette gjelder blant annet forhold som fuktbeskyttelse av konstruksjoner mot terreng, grunnforhold og tilstand på rør og lignende. Forholdene påvirker særlig konstruksjoner som er i direkte eller nær kontakt med bakken. Lokale og fremtidige klimaforhold er også en påvirkningsfaktor.
Andre byggverk - Dobbel garasje.
- Annet: Taksperrene på langvegg mot syd ligger ikke direkte over underliggende veggstendere.
Følgende bygningsdeler er ikke undersøkt (TGIU):
Våtrom - Vaskerom. Kjeller.
- Kontroll i tilliggende konstruksjon ikke utført: Med bakgrunn i at våtrommets vegger ved våtsone er av mur/betong er det ikke praktisk mulig å gjennomføre fuktmåling/hulltaking i et område der det erfaringsmessig forekommer skader. Hulltaking og fuktmåling i lukkede konstruksjoner er derfor ikke utført. Tilstanden inne i konstruksjonen er ikke kjent. Det ble derimot gjennomført et overflatesøk med fuktindikator, uten at det ble påvist indikasjoner som tyder på fuktskader.
Våtrom - Bad. 2.etasje.
- Kontroll i tilliggende konstruksjon ikke utført: På grunn av dusjsonens plassering mot yttervegger var det av den grunn ikke mulig og foreta hulltaking/fuktmåling i denne sonen, som erfaringsmessig ansses som mest risikoutsatt. Det ble derimot gjennomført et overflatesøk med fuktindikator, uten at det ble påvist indikasjoner på fuktskader.
Tekniske anlegg
- Annet: Sentralstøvsugeranlegg er ikke funksjonstestet av undertegnede. Eksakt tilstand og funksjonalitet er ikke kjent.
Yttervegger inkl. fasader
- Gnagersikring: Det har ikke vært mulig å kontrollere om ytterkledningen er sikret mot inntrekk av gnagere. Det kan derfor ikke bekreftes om gnagersikringen er utført på korrekt måte.
Yttertak
- Takgjennomføringer (takhatter o.l.): På bakgrunn av begrensningene i inspeksjonsmuligheten av taket, lot ikke takgjennomførinnger seg undersøke. Konsekvens er at tilstand og utførelse er derfor ukjent, og forholdet bør derfor undersøkes nærmere.
- Detaljer inn mot tilstøtende konstruksjoner: På bakgrunn av begrensningene i inspeksjonsmuligheten av taket, lot ikke overgang yttertak og vegger på taksrk seg undersøke. Konsekvens er at tilstand og utførelse er derfor ukjent, og forholdet bør derfor undersøkes nærmere.
Terrasse / platting
- Konstruksjon og fundamenter: Fundamentene var ikke tilgjengelige for undersøkelser grunnet lukket konstruksjon, noe som gjorde at utførelsen/tilstanden ikke lot seg kontrollere som en konsekvens.
Helse, miljø og sikkerhet
Innvendige trapper - Rekkverk og håndløper
Det registreres følgende: Trappene har ingen håndløpere på vegg. Basert på ovennevnte forhold oppfyller ikke trappene dagens krav til sikkerhet. Om trappen oppfylte kravene som var gjeldende på oppføringstidspunktet eller ikke, er ikke tatt stilling til. Selger opplyser om at håndløpere er demontert av praktiske grunner pt., disse vil medfølge boligen.
Balkonger - 1.etasje v/kjøkken. - Rekkverkshøyde og lysåpninger
Det registreres følgende: Rekkverkshøyden er under 1,0 meter. Basert på ovennevnte forhold oppfyller ikke balkongen dagens krav til sikkerhet. Om balkongen oppfylte kravene som var gjeldende på oppføringstidspunktet eller ikke, er ikke tatt stilling til.
Utvendig trapp - Til kjeller. - Rekkerkshøyde og lysåpninger
Det registreres følgende: Trappen mangler håndløperer på vegger, noe som kan medføre fare for liv og helse. Basert på ovennevnte forhold oppfyller ikke trappen dagens krav til sikkerhet. Om trappen oppfylte kravene som var gjeldende på oppføringstidspunktet eller ikke, er ikke tatt stilling til. Selger opplyser om at håndløpere er demontert av praktiske grunner pt., disse vil medfølge boligen.
Forstøtningsmur - Ved nedgang til kjeller. - Rekkerkshøyde og lysåpninger
Det registreres følgende: Rekkverkshøyden er under 1,0 meter. Forstøtningsmuren mangler fullverdig rekkverk på deler av muren (del mot inngangsparti) noe som kan medføre fare for liv og helse. Basert på ovennevnte forhold oppfyller ikke rekkverket dagens krav til sikkerhet. Om rekkverket oppfylte kravene som var gjeldende på oppføringstidspunktet eller ikke, er ikke tatt stilling til.
I tillegg opplyses det om følgende i rapporten:
- Geologiske forhold: Eiendommen ligger i et aktsomhetsområde for overvann. (Kilde: Eiendomsverdi).
Tilstandsrapporten er inntatt i salgsoppgaven. Rapporten inneholder informasjon om eventuelle avvik og konsekvensen av disse. Dersom det er registrert avvik med TG3, har den bygningssakkyndige i tillegg gitt et anslag på hva det vil koste å utbedre disse. Ettersom kjøper regnes å være kjent med forhold som tydelig fremgår av tilstandsrapporten, oppfordres du til å sette deg grundig inn i rapporten i sin helhet.
Selger beskriver også i egenerklæringsskjema:
Det er utført arbeid på våtrom i flere omganger. I 2008 ble det bygget nytt vaskerom i kjeller av tømrer. I 2013 ble det bygget nytt bad i kjeller av rørlegger. Badet i 1. etasje ble pusset opp i 2019, og badet i 2. etasje i 2021, begge av murmester. I 2018 ble det bygget terrasse utenfor kjøkkenet, tak over kjellertrapp, og byttet tre vinduer og en verandadør på kortveggen mot gårdsplass. I forbindelse med omgjøring av kjellerrom til kjellerstue i 2013, ble det gravd ut lyskasser og forbedret drenering på forsiden av huset. Yttervegg i kjellerstue ble kledd med Styrodur-plater. Det er utført elektrisk arbeid i forbindelse med oppussing av kjeller i 2013 og bygging av garasje i 2015. En feilkobling fra byggeår, der kloakk- og vannrør var byttet om utvendig, ble oppdaget av kommunen i 2021 og utbedret av faglært firma. En varmepumpe ble installert i 2020. Kjellerstue med bad og to boder ble innredet i 2013.
Selger opplyser om at murpuss på vegg under utedelen til varmepumpen har begynt å løsne litt fra veggen, dette er trolig grunnet ansamling av vann på vinterstid (som også legger seg litt opp etter veggen).
Standard
Løsøre og tilbehør
Hvitevarer på kjøkkenet medfølger i handelen, dette gjelder integrert oppvaskmaskin, integrert mikrobølgeovn og gasskomfyr.
Tallerkenhylle på kjøkken og gammelt flasketørkestativ i entré medfølger ikke.
Videre vises det til liste fra Norges Eiendomsmeglerforbund angående løsøre og tilbehør. Produkter og installasjoner som medfølger overdras uten noen form for garantier, utover eventuell gjenværende leverandørgaranti.
Oppvarming
Boligen varmes i hovedsak opp med elektrisitet, varmepumpe og vedfyring. Varmepumpe er plassert i stue. Det er peisovn i stue. Gulvvarme på bad (kjeller, 1. etasje og 2. etasje) samt på kjøkken, i entré og i kjellerstue.
Det har blitt foretatt en kontroll av pipe og ildsted i 2020, utført av Drammensregionens brannvesen IKS og alt er funnet i orden.
Siste feiing ble utført 30.09.2020.
Dersom beboelsesrom ikke har vegg- eller fastmonterte varmekilder ved visning, følger dette heller ikke med.
Ferdigattest/brukstillatelse
Drammen kommune opplyser om at det ikke foreligger ferdigattest for oppføring av boligen, men midlertidig brukstillatelse ble gitt den 21.11.1996. Følgende arbeid gjenstod iht. tillatelsen: Montering av røykvarsler. Henge opp brannslokningsapparat type 6 kg ABE. Montere lås på feieluke. Puss av bunn i pipe. Montere utvendig trapp.
I tilknytning til midlertidig brukstillatelse ble det utstedt godkjente byggetegninger datert 19.03.1996.
Det gjøres oppmerksom at det ikke lenger utstedes ferdigattest på tiltak det er søkt om før 1998 jf. plan- og bygningsloven §21-10. Kommunen vil ikke kreve ferdigattest for disse tiltakene og vil avvise eventuelle søknader. Bestemmelsen innebærer ikke at tiltak med manglende søknad blir lovlige, men at man ikke trenger å avslutte gamle byggesaker. Normalt sett kreves ferdigattest for alle søknadspliktige tiltak som gjøres etter plan - og bygningsloven.
Det er sendt inn og godkjent søknad om tiltak uten ansvarsrett datert 05.09.2013 med godkjente byggetegninger fra 2013. Tiltaket omfattet mindre byggearbeid på boligeiendom, herunder bygging av kjellerstue og toalett i uinnredet kjeller. Selger anfører at kommunen har inspisert samt bekreftet at bl.a. rømningsvinduer og lysinnslipp var tilstrekkelig ved ferdigstillelse av tiltaket. Det er også sendt inn og godkjent søknad om tiltak uten ansvarsrett datert 29.04.2015 med godkjente byggetegninger fra 2015. Tiltaket omfattet mindre byggearbeid på boligeiendom, herunder oppføring av dobbelgarasje. Det foreligger ikke ferdigattest på tiltakene per dags dato, gitte tillatelser er i utgangspunktet gyldig i 3 år fra utstedelse. Kjøper påtar seg risikoen for fortsatt bruk og fremtidig bruk samt eventuelle pålegg fra kommunen.
Kjellernedgang med utvendig trapp og ytterdør til kjeller er ikke tegnet inn på godkjente byggetegninger fra 19.03.1996. Selger anfører at trapp og ytterdør ble ferdigstilt i forbindelse med oppføring av bygget. I tillegg besitter selger på reviderte byggetegninger med inntegnet trapp og ytterdør, dog er ikke disse stemplet godkjent av kommunen. Kjøper overtar alt ansvar og risiko for dette videre.
Det er etablert et takoverbygg over kjellernedgangen i 2018, i tillegg er det oppført en balkong i 2018 (tilknyttet kjøkkenet i 1. etasje). Selger anfører at tiltakene ikke omfattes av søknadsplikt.
Vaskerom i kjeller er opprinnelig byggemeldt som uinnredet kjeller (tilleggsdel) jf. Godkjente byggetegninger datert 19.03.1996. Innredning av rommet til hoveddel er ikke bruksendret/omsøkt og er heller ikke godkjent av kommunen. Kjøper overtar alt ansvar og risiko for dette videre.
Kjøper overtar eiendommen slik den framstår på visning.
Tinglyste heftelser og rettigheter
Eiendommen overdras fri for pengeheftelser
Kommunen har legalpant i eiendommen for forfalte krav på eiendomsskatt og kommunale avgifter/gebyrer.
Dagboknummer: 1147
Tinglysningsdato: 05.02.2001
Servitutten omhandler: Beboerne på gnr. 216, bnr. 179 (og flere andre eiendommer) har rett til å opparbeide og vedlikeholde et lekeareal på gnr. 216, bnr. 187. Kostnader og arbeid baseres på dugnad og fordeles på de som bruker lekeplassen. Erklæringen gir også eier av bnr. 187 rett til å søke omdisponering av arealet hvis det ikke er i bruk, og gir da gnr. 216, bnr. 188 en førsterett til kjøp. Rettigheten hefter i gnr. 216/bnr. 187.
Servitutten vil bli prøvd slettet før overtagelse, da bestemmelsene ikke lenger er gjeldende/relevant for eiendommen.
Dagboknummer: 662068
Tinglysningsdato: 03.09.2010
Servitutten omhandler: Servitutten omhandler: Eiendommen (gnr. 216, bnr. 179, tidligere bnr. 202) tillater at gnr. 216, bnr. 156 bygger terrasse/veranda inntil to meter fra grensen. Avstandskravet gjelder for alle bygningsdeler. Rettighetshaver er gnr. 216/bnr. 156. Eiendommen (gnr. 216, bnr. 179) har rett til å bygge garasje inntil én meter fra tomtegrensen mot gnr. 216, bnr. 156. Garasjen kan bygges med større areal og høyere møne- og rafthøyde enn det som var tillatt i tidligere Nedre Eiker kommune på søknadstidspunktet. Rettigheten hefter i gnr. 216/bnr. 156.
Servituttene vil følge eiendommen. Kjøpers bank vil få prioritet etter ovennevnte heftelser og servitutter.
Eventuell adgang til utleie
Eiendommen har ikke separat utleieenhet. Det vil normalt være anledning til utleie av hele eiendommen eller enkeltrom, såfremt utleiearealet er bygningsmessig godkjent for varig opphold og har forsvarlige radonnivåer.
Energimerking
Komplett energiattest inkludert oppvarmingskarakter fås ved henvendelse til megler eller lastes ned fra www.krogsveen.no.
Beliggenhet og tomteforhold
Beliggenhet og tomteforhold
Beliggenhet
Attraktivt og rolig boligområde like utenfor Mjøndalen sentrum. Kort vei til sentrum med alle servicetilbud. Gangavstand til flotte turmuligheter i marka. Kort vei til Mjøndalen barneskole, SFO, IFO, barnehage og Veiavangen ungdomsskole.
Nærhet til flere flotte turmuligheter til bl.a. Portåsen, MIF hytta og områdene rundt. Naturen her byr på milevis med skiløyper og tur/sykkelstier. Få minutters kjøring til populære Hagatjern med flotte fiske og bademuligheter. Portåsens 9 hulls golfbane er og bare en liten kjøretur unna. Idyllisk gangsti langs Drammenselven hele veien til Hokksund.
Kort kjørevei til Consto Arena og Mjøndalen idrettsforenings idrettsanlegg med fotballbaner, kunstisbane, idrettshall, tennisbane og klubbhus. MIF har et bredt utvalg av aktiviteter som, allidrett, fotball, bandy, turn, ski og judo m.m.
Fra Mjøndalen sentrum er det et godt kollektivtilbud med både tog og buss. Toget bruker ca. 9 minutter til Drammen, ca. 32 minutter til Kongsberg og ca. 45 minutter til Oslo S, se www.vy.no for avganger. Parkeringsmuligheter ved stasjonen. Bussforbindelse til Hokksund og Drammen via både Krokstadelva/Solbergelva og Ytterkollen, se www.brakar.no for rutetider. Med bil er det ca. 20 minutters kjøring til Drammen, ca. 30 minutter til Kongsberg og ca. 45 minutter til Oslo utenfor rushtid.
Adkomst
Det vil bli skiltet med Krogsveen visningsskilt ved fellesvisninger. Se kart i nettannonse eller Google Maps for nærmere veibeskrivelse. Velkommen til visning!
Barnehager, skoler og fritid
Godt sammensatt tilbud av private og offentlige barnehager.
Barnehager: Hatten barnehage (1,3 km), Vassenga barnehage (1,5 km), Mølllenhof barnehage (2,7 km).
Skoler: Mjøndalen barneskole (1,3 km) og Veiavangen ungdomsskole (0,9 km).
Drammen kommune har tre private barne- og ungdomsskoler, Drammen Realfagsskole Heltberg, Norlights Montessoriskole Drammen og Rosendal skole (Mjøndalen).
Det ligger flere videregående skoler i Drammen og Lier, samt Universitetet i Sørøst-Norge som har campus på Papirbredden i Drammen, for mer informasjon se www.usn.no.
Dersom skole- og barnehagetilbud er av betydning for kjøpet, ber vi om at det rettes en særskilt henvendelse til kommunen for oppdatert informasjon.
Beskrivelse av tomt
Eiertomt på 722 kvm. Svakt skrånende tomt som er opparbeidet med asfaltert gårdsplass, biloppstillingsplasser, plenarealer og diverse beplantninger.
Selger opplyser om at tidligere nabo (Korvaldveien 123) opparbeidet, etter eget ønske, sin tomt litt lenger inn en tomtegrensen. Derfor ble innkjørselen til denne eiendommen, asfaltert litt over grensen (etter muntlig avtale), og inn til opparbeidet "kant" hos naboen.
Del av opparbeidet hekk mot Korvaldveien eies av gnr. 256/bnr. 1 (området/deler av området er trolig planlagt etablert som fortau iht. "Detaljregulering for fortau i Korvaldveien"), se kartutsnitt for tomtegrenser. Kjøper påtar seg risikoen for fortsatt bruk og fremtidig bruk samt eventuelle pålegg fra grunneier.
Opparbeidet område bak garasjen eies av gnr. 216/bnr. 173 (privateid), se kartutsnitt for tomtegrenser. Kjøper påtar seg risikoen for fortsatt bruk og fremtidig bruk samt eventuelle pålegg fra grunneier.
Parkering
Frittstående dobbelgarasje på 34 kvm, oppført i 2015 (mangler ferdigattest). Garasjen har støpt dekke, leddport av metall og elektrisk portåpner. Det er en bod i bakkant av garasjen på 11 kvm, i tillegg er det tilgang til et gulvet lagringsloft over garasjen.
Montert elbillader.
Forøvrig er det biloppstillingsplasser på asfaltert gårdsplass.
Vei, vann og avløp
Eiendommen har adkomst via kommunal vei.
Eiendommen er tilknyttet kommunalt ledningsnett via private stikkledninger. Eier er selv ansvarlig for private stikkledninger til boligen.
Selger opplyser om at kommunale vann- og kloakkledninger skal oppgraderes ifbm. anleggelse av fortau i Korvaldveien. Dette vil medføre en betydelig oppgradering av veien.
Regulerings-og arealplaner
Eiendommen ligger i et uregulert område, men er i Kommuneplanens arealdel for Drammen kommune 2025-2037, vedtatt 18.06.2025, avsatt til boligbebyggelse.
Det foreligger en igangsatt planlegging av ny kommuneplan for Drammen kommune 2027-2039, se kommunens hjemmeside for mer info.
Tilliggende eiendommen er det en detaljreguleringsplan som er under arbeid, dette gjelder "Detaljregulering for fortau i Korvaldveien". Planforslaget ligger rett sør for Mjøndalen sentrum, og omfatter omtrent 1,2 km eksisterende vegarealer i Korvaldveien, samt deler av tilgrensende eiendommer og eksisterende avkjørsler. Foreløpig status for planen er "planforslag" og det ble kunngjort oppstart av planarbeidet den 27.03.2019, se kommunens hjemmeside for mer info. Se vedlagt reguleringsplan i salgsoppgaven. Tidshorisont og endelig utforming av prosjektet er pt. ikke klart, det må påregnes støy, begrenset fremkommelighet o.l. fra byggeprosjektet under utbyggingen (med forbehold om at planen blir vedtatt).
Naboeiendommen gnr. 216/bnr. 173 - Korvaldveien 121 (privateid), er per dags dato ubebygde og består av grøntarealer. Iht. kommuneplanen datert 18.06.2025 er områdene avsatt til boligbebyggelse. Selger har ikke mottatt nabovarsel eller kjenner til eventuelle utbyggingsplaner for eiendommene.
Utsnitt av plan med tilhørende bestemmelser kan fås ved henvendelse til megler.
Økonomi
Økonomi
Kommunale utgifter
Kommunale avgifter (vann og avløp): kr 11.852,- pr. år (3 terminer), fakturert på eiendommen i 2025. Avgiftene vil variere etter forbruket i boligen.
Renovasjonskostnader: kr 5.201,- pr. år (2 terminer). Type renovasjonsordning: Standard renovasjon, 2026.
Det opplyses om at Drammen kommune har varslet om en vesentlig fremtidig økning av kommunale avgifter.
I tillegg påløper det en kostnad på kr 608,- pr. år for boliger med minst ett aktivt røykrør (kostnad pr. 2026). Det påløper også kostnader for feiing av ildsted, kontroll av fyringsanlegg m.m. Frekvens på feiing samt tilsyn er avhengig av behov og vurderes av feieren.
Det må påregnes kostnader til strøm og nettleie, dette vil variere avhengig av strøm-/nettselskap. Nåværende eier har et strømforbruk på ca. 30.000 kWh pr. år (inkl. lading av el-bil).
For denne boligen er det inngått avtale om Norgespris i stedet for strømstøtte, avtalen på kr 50 øre inkl. mva følger eiendommen og har en bindingstid frem til 31.12.2026. Nettleie, avgifter og påslag fra kraftleverandøren kommer i tillegg. Les mer om Norgespris her: https://www.regjeringen.no/no/aktuelt/legg-fram-lov-om-norgespris-pa-straum-og-fjernvarme/id3102642/
Boligen har en årlig forsikringspremie via IF Forsikring på kr 13.830,- pr. år.
Boligen er tilknyttet Viken Fiber Altibox som leverandør av fiber og har kostet ca. kr 1.500,- pr. mnd avhengig av hastighet på nettet.
Nåværende eier har installert alarm. Denne blir sagt opp og kjøper kan selv velge om alarm er ønskelig.
Det må påregnes kostnader til innboforsikring.
Ovenstående er basert på nåværende eier/husstands senere års forbruk/utgifter. Dette vil variere avhengig av antall beboere, ønsket innetemperatur, egne fordelsavtaler, kanalvalg, hastighet på bredbånd m.m.
Formuesverdi
Formuesverdi for 2024 var kr 1 624 624,- ifølge Skatteetaten. Beløpet forutsetter at eier bor fast i boligen (primærbolig).
Ved eventuell øvrig bruk av eiendommen (f.eks. fritidsbolig, pendlerbolig, utleieobjekt) var formuesverdien for 2024 kr 6 498 495,-.
Fra 2026 har Stortinget vedtatt en oppdatert modell for beregning av formuesverdi for primærbolig, så avvik kan forekomme.
For mer informasjon se skatteetaten.no.
Omkostninger
7 900 000,00 Prisantydning
Omkostninger
197 500,00 Dokumentavgift til staten (2,5% av kjøpesum)
19 900,00 Gjensidige Boligkjøperpakke* (valgfritt)
545,00 Tinglysing panterettsdokument
545,00 Tinglysing skjøte
--------------------------------------------------------
198 590,00 (Omkostninger totalt (uten Gjensidige Boligkjøperpakke))
218 490,00 Omkostninger totalt (med Gjensidige Boligkjøperpakke))
--------------------------------------------------------
8 098 590,00 Totalpris inkl. omkostninger
8 118 490,00 Totalpris inkl. omkostninger (med Gjensidige Boligkjøperpakke)
--------------------------------------------------------
Totalpris inkl. omkostninger forutsetter kjøp til prisantydning.
Det tas forbehold om endringer i avgifter og gebyrer.
Tilbud om lånefinansiering
Megler formidler gjerne kontakt med rådgiver hos vår samarbeidspartner BN Bank. De har konkurransedyktige betingelser samt rask og løsningsorientert behandling av din lånesøknad. Krogsveen mottar et honorar dersom lån opprettes.
Betalingsbetingelser
Kjøpesum inkludert omkostninger, samt pantedokument tilknyttet eventuelt lån, skal være disponibelt hos megler 2 virkedager før overtagelsen.
Annen viktig informasjon
Annen viktig informasjon
Eier
Monica Aardalsbakke Sirnes og Sven Gerhard Sirnes
Konsesjon
Eiendommen eier en ideell andel av en felles ubebygd tomt. For at eiendommen skal kunne overskjøtes, må kjøper signere på egenerklæring om konsesjonsfrihet.
Erklæringen må godkjennes av kommunen før eiendommen kan overskjøtes til kjøper.
Overtakelse
Etter nærmere avtale.
Boligselgerforsikring
Selger har i forbindelse med salget tegnet boligselgerforsikring levert av Gjensidige.
Boligselgerforsikringen dekker selgers ansvar etter avhendingsloven begrenset oppad til kr 14 millioner. Dersom kjøper oppdager forhold ved eiendommen som hen mener utgjør en mangel ved eiendommen, vil Gjensidige behandle reklamasjonen på vegne av selger. Forsikringsvilkår kan fås ved henvendelse til megler.
Vedlagt salgsoppgaven følger selgers egenerklæringsskjema og tilstandsrapport. Interessenter må sette seg inn i dokumentene før bud inngis.
Boligkjøperforsikring
Innen kontraktsmøtet må kjøper ta stilling til om det ønskes å bestille Boligkjøperpakken gjennom Gjensidige. I denne gunstige pakken er boligen ferdig forsikret og inkluderer rettshjelpsforsikring, også kalt Boligkjøperforsikring. Rettshjelpsforsikring gir trygghet og tilgang på profesjonell juridisk hjelp dersom det oppdages uventede feil eller mangler det første året etter overtagelse. Forsikringsselskapet behandler i så fall ethvert mangelskrav kjøper måtte ha overfor selger.
Boligkjøperpakken inkluderer bygningsforsikring for hus og hytte, innboforsikring, flytteforsikring og dobbel rentedekning - i situasjoner hvor kjøper ikke får solgt nåværende primærbolig.
Kjøper mottar ingen særskilt faktura for Boligkjøperpakken da kostnaden det første året legges til kjøpesummen for boligen. Det gjøres oppmerksom på Krogsveen mottar et honorar for denne formidlingen.
Produktark for Boligkjøperpakken ligger vedlagt i salgsoppgaven.
Dersom ikke boligkjøperpakke ønskes kan kun rettshjelpsforsikring, også kalt boligkjøperforsikring, tegnes særskilt via megler. Rettshjelpsforsikringen varer i 5 år fra overtagelse og leveres gjennom Gjensidige. Ta kontakt med megler for ytterligere informasjon.
Selskap og privatpersoner som driver med kjøp/salg/utvikling som ledd i egen næringsvirksomhet kan ikke tegne boligkjøperpakke eller rettshjelpsforsikring.
Budgivning
Forbrukerinformasjon om budgivning er vedlagt denne salgsoppgaven og er også på vår hjemmeside Krogsveen.no. Alle bud og budforhøyelser må inngis skriftlig. I tillegg må legitimasjon være fremlagt sammen med signatur fra budgiver.
Vi oppfordrer til å gi bud elektronisk via GI BUD-knappen på eiendommens hjemmeside på Krogsveen.no. Da vil samtlige vilkår bli oppfylt.
Eventuelle forhøyelser eller endringer av budet kan bekreftes pr SMS eller på e-post. Vi oppfordrer alltid til å kontakte megler pr. telefon i tillegg da forsinkelser i SMS og e-post kan forekomme.
For at budene skal kunne bli behandlet og videreformidlet skriftlig til alle involverte parter, må alle bud ha en tilstrekkelig lang akseptfrist, jf. eiendomsmeglingsforskriften § 6-3.
Selger må også skriftlig akseptere budet før aksept kan formidles til budgiver. Akseptfrist bør derfor være på minimum 30 minutter, og budforhøyelser må derfor skje i god tid før fristens utløp.
Bud i forbrukerforhold kan uansett ikke settes med kortere frist enn kl. 12.00 første virkedag etter siste annonserte visning. I tillegg kan ikke budet ha forbehold om at det skal holdes hemmelig ovenfor øvrige interessenter. Megler har iht lov om eiendomsmegling ikke anledning til å videreformidle disse budene, og de vil dermed heller ikke bli journalført.
Etter at eiendommen er solgt vil kjøper og selger få tilsendt budjournal. Øvrige budgivere kan få utlevert kopi av budjournalen i anonymisert form.
Hvitvaskingsreglene
I henhold til lov om hvitvasking og terrorfinansiering har megler plikt til å gjennomføre kontrolltiltak overfor kunder, herunder fullmektiger. Dette innebærer bl.a. å bekrefte kunders og reelle rettighetshaveres identitet på bakgrunn av fremvist gyldig legitimasjon eller på annen godkjent måte, samt å innhente opplysninger om kundeforholdets formål og tilsiktede art.
Dersom slike kundetiltak ikke kan gjennomføres, kan megler ikke etablere kundeforholdet eller utføre transaksjonen.
Hvis kjøper ikke bidrar til gjennomføring av kundekontrollen og dette fører til at transaksjonen blir forsinket eller ikke kan gjennomføres, vil dette ansees som mislighold av avtalen og gi selger rettigheter etter avhendingslova kapittel 5. I tilfeller der selger ikke bidrar til gjennomføring av løpende kundekontroll underveis i oppdraget, er det selger som misligholder sine forpliktelser etter avtalen og gi kjøper rettigheter etter avhendingslovens kapittel 4. Partene er selv ansvarlige for eventuelle kostnader og ansvar dette kan medføre. Eiendomsmegleren eller eiendomsmeglingsforetaket kan ikke holdes ansvarlig for de konsekvenser dette vil kunne få for partene eller andre som har interesser i eiendomshandelen.
Kjøper oppfordres til å innbetale kjøpesummen som ikke kommer fra låneinstitusjon i én samlet innbetaling fra egen konto i norsk bank. Megler har plikt til å melde fra til Økokrim om eiendomshandler som fremstår som mistenkelige. Melding sendes Økokrim uten at partene varsles.
Personopplysningsloven
I henhold til personopplysningsloven gjør vi oppmerksom på at interessenter kan bli registrert for videre oppfølging.
Lovanvendelse
Generelle bestemmelser
Salgsoppgaven er basert på de opplysningene selger har gitt til megler, den bygningssakyndiges tilstandsrapport, samt opplysninger innhentet fra kommunen, Kartverket og andre tilgjengelige kilder. Det er viktig at kjøper setter seg grundig inn i alle salgsdokumentene, herunder salgsoppgave, tilstandsrapport og selgers egenerklæring. Kjøper anses kjent med forhold som er tydelig beskrevet i salgsdokumentene, og slike forhold kan ikke påberopes som mangler. Dette gjelder uavhengig av om kjøper har lest dokumentene. Alle interessenter oppfordres til å undersøke eiendommen nøye, gjerne sammen med fagkyndig før bud inngis. Kjøper som velger å kjøpe usett kan ikke gjøre gjeldende som mangel noe han burde blitt kjent med ved undersøkelsen.
Dersom det er behov for avklaringer, anbefaler vi at interessenter rådfører seg med eiendomsmegler eller egne rådgivere før det legges inn bud.
En bolig som har blitt brukt i en viss tid, har vanligvis blitt utsatt for slitasje og skader kan ha oppstått. Slik bruksslitasje må kjøper regne med, og det kan avdekkes enkelte forhold etter overtakelse som nødvendiggjør utbedringer. Normal slitasje og skader som nødvendiggjør utbedring, er innenfor hva kjøper må forvente og vil ikke utgjøre en mangel.
Kjøper og selgers rettigheter og plikter reguleres av avtalen mellom partene, samt informasjonen som har vært tilgjengelig for kjøperen i forbindelse med handelen. Avtalen utfylles av avhendingsloven, og det gjelder ulike avtalevilkår avhengig av om kjøper er forbrukerkjøper eller ikke. Dette er nærmere beskrevet nedenfor.
På grunn av ulike avtalevilkår kan selger vurdere bud fra en som ikke er forbruker, ulikt fra en forbrukers bud. Dersom kjøper ikke er forbruker, er selger sitt mulige mangelsansvar begrenset fordi eiendommen selges "som den er". Selger kan ikke ta «som den er»- forbehold overfor en forbrukerkjøper. Selv et lavere bud fra en som ikke er forbruker kan foretrekkes fordi begrensningen i mulig mangelsansvar kan ha egenverdi for selger. Selger står fritt til å forkaste eller akseptere ethvert bud, og er for eksempel ikke forpliktet til å akseptere høyeste bud.
Budgiver skal i budskjema avgi egenerklæring om budgiver er forbruker eller næringsdrivende/ person som hovedsakelig handler som ledd i næringsvirksomhet. Budgivere får informasjon dersom andre bud er inngitt av en som ikke er forbruker.
Forbrukerkjøp - definisjon
Med forbrukerkjøp menes kjøp av eiendom når kjøperen er en fysisk person som ikke hovedsakelig handler som ledd i næringsvirksomhet.
Forbruker – avtalevilkår
Eiendommen har en mangel dersom den ikke er i samsvar med kravene som følger av avtalen, eller det foreligger brudd på bestemmelsene i avhendingsloven §§ 3-2 til 3-8. Hvis eiendommen ikke er i samsvar med det kjøperen må kunne forvente ut ifra alder, type og synlig tilstand, kan det være grunnlag for mangelskrav. Det samme gjelder hvis det er holdt tilbake eller gitt uriktige opplysninger om eiendommen. Dette gjelder likevel bare dersom man kan gå ut ifra at det virket inn på avtalen at opplysningen ikke ble gitt eller at mangelskravet ikke blir rettet i tide på en tydelig måte.
Boligen kan ha en mangel etter avhendingsloven § 3-3 andre ledd, dersom det er avvik mellom opplyst og faktisk innvendig areal, forutsatt at avviket er på 2% eller mer og minimum 1 kvm.
Ved beregning av et eventuelt prisavslag eller erstatning må kjøper selv dekke tap/kostnader opptil et beløp på kr 10 000 (egenandel).
Ikke-forbruker (næringsdrivende) – definisjon
Hvis kjøper er en juridisk person, eller en fysisk person som hovedsakelig handler som ledd i næringsvirksomhet, vil kjøpet ikke anses som et forbrukerkjøp.
Ikke-forbruker – avtalevilkår
Eiendommen har en mangel dersom den ikke er i samsvar med kravene som følger av avtalen.
Eiendommen selges «som den er», og selgers ansvar utover det konkret avtalte er da begrenset etter avhendingsloven § 3-9, første ledd andre setning.
Avhendingsloven § 3-3 andre ledd fravikes, og hvorvidt boligens arealsvikt utgjør en mangel vurderes etter avhendingsloven § 3-8.
Informasjon om kjøpers undersøkelsesplikt, herunder oppfordringen om å undersøke eiendommen nøye, gjelder også for kjøpere som ikke anses som forbrukere.
Det forutsettes at hjemmel overføres til kjøper. Hvis kjøper ikke ønsker hjemmelsoverføring av eiendommen, må det tas forbehold om dette i budet.
Meglers vederlag
Meglers vederlag betales av selger og er avtalt til:
Vederlag: 0,90 % av salgssummen
Vederlag:
Kontroll av hjemmel og heftelser kr 3 900,00
Markedsføringspakke kr 29 900,00
Oppgjør kr 8 900,00
Tilrettelegging kr 19 900,00
Visninger pr. stk. (gjelder fellesvisninger eller privatvisninger etter kl16/helgedag) kr 4 000,00
Utlegg:
Innhenting av feierrapport fra Drammensreg. Brannvesen kr 573,00
Innhenting av off. oppl. Drammen kommune inkl. tegninger og RFD kr 2 833,00
Tinglysing sikring kr 545,00
Andre utgifter:
Boligfotografering inkl dronefoto kr 7 000,00
Boligselgerforsikring Gjensidige kr 42 254,00
Tilstandsrapport med målsatte plantegninger kr 24 690,00
Vi er opptatt av verdiskapning, og har knyttet til oss samarbeidspartnere som skal sikre våre kunder de beste produkter og tjenester;
• I forbindelse med forberedelse av salget, innhenter vi informasjon om eiendommen hovedsakelig fra vår samarbeidspartner Ambita.
• Gjensidige leverer boligselgerforsikring og tilbyr bygningsforsikring
• Boligkjøperforsikring leveres av Hiscox og med Sedgwick som skadebehandler, og er formidlet gjennom Gjensidige.
• BN bank tilbyr finansieringsløsninger
• Vår avdeling Krogsveen Pluss tilbyr flyttetjenester som utvask, visningsvask, lager, tømming og transport av flyttelass, i tillegg til å formidle kontakt med Flip for overflateoppussing.
• I forbindelse med overtagelse av eiendommen tilbyr Overo avtale om strøm, alarm og bredbånd.
• Krogsveen er, sammen med øvrige bransjeaktører, medeier i den digitale annonseringsplattformen Hjem som eies av Bomega AS.
Opplysninger om oppdraget
Oppdragsnummer 20-0046/26
Eiendomsmegler Krogsveen AS, avd. Drammen
Nedre Storgate 16, 3015, DRAMMEN
950 007 613
Oppdragets KR-kode KR20.2646
Dato
Sist oppdatert: 26. april 2026 kl. 09:14
Dokumenter
Dokumenter
PDF – 976 KB
PDF – 7 MB
PDF – 170 KB
PDF – 4 MB
PDF – 312 KB
PDF – 29 KB
PDF – 127 KB
PDF – 392 KB
Område
Legg til steder som er viktige for deg
Visning
For å delta på visning, ber vi om at du melder deg på. Da sikrer vi at du får nødvendig informasjon og at det er satt av tilstrekkelig med tid. Kontakt megler dersom annet tidspunkt ønskes. Husk å lese salgsoppgaven før visningen, så du stiller forberedt.
Ønsker du kun å bli holdt orientert, kan du fra eiendommens hjemmeside få varsel om solgtpris, eller kontakte megler.
Lurer du på noe?
Unngå doble boligrenter
Vi tilbyr gunstig forsikring.
Vurderer du utleie?
Få et tilbud fra Utleie KrogsveenHva koster lånet?
Sjekk estimert lånekostnadVil du varsles om lignende boliger?
Ved å lagre ditt boligsøk hos oss får du beskjed når vi har en bolig som ligner denne, før den legges ut på markedet!


























































