Engerjordet 46
7 500 000 kr
122 m²
3 soverom
Solgt

Blommenholm
Velholdt rekkehus med svært god intern beliggenhet i et attraktivt og barnevennlig område!
Prisantydning
7 500 000 krOmkostninger
208 490 krTotalpris
7 708 490 kr
Pris
Bruksareal
139 m²BRA-I (internt bruksareal)
122 m²BRA-E (eksternt bruksareal)
17 m²TBA (terrasse-balkongareal)
26 m²
Areal
Byggeår
1958Soverom
3 soveromBad
2 badTomteareal
149 m² (eiet)Type
RekkehusEierform
EietFasiliteter
Garasje/P-plass og Balkong/TerrasseÅrlig velavgift
13 745 krEnergimerke
Rød F
Nøkkelinfo
Unngå doble boligrenter
Vi tilbyr gunstig forsikring.
Vurderer du utleie?
Få et tilbud fra Utleie KrogsveenHva koster lånet?
Sjekk estimert lånekostnadBeskrivelse
Kort om eiendommen
Eiendomsmegler Cecilie Muri har gleden av å ønske velkommen til denne flotte familieboligen beliggende i et svært attraktivt og barnevennlig boligområde på Blommenholm. Boligen ligger tett på Sandvika med et rikt utvalg butikker, kaféer, restauranter og servicefasiliteter, flotte turområder i nærområdet og kort gange til buss.
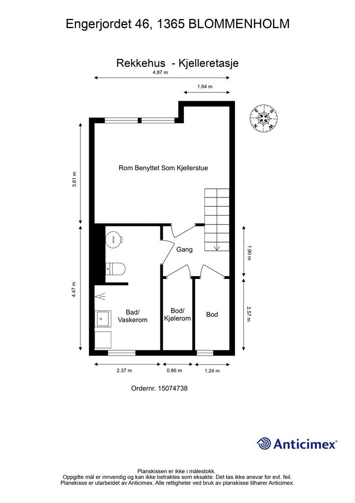
Boligen er et rekkehus over 3 plan, og har en god planløsning med entré, baderom og tre soverom i 1. etasje, stor og hyggelig stue med åpen kjøkkenløsning og stor balkong i 2. etasje og rom benyttet som kjellerstue, baderom/vaskerom og boder/kjølerom i kjelleretasjen. Utvendig finner du en hyggelig terrasse ved inngangspartiet, koselig hage og garasjesplass.
Velkommen til visning!
Område
Legg til steder som er viktige for deg
På flyttefot? Tenk kjøp og salg samtidig.
Få din egen rådgiver gjennom hele kjøps- og salgsprosessen. Det starter med en verdivurdering.
Unngå doble boligrenter
Vi tilbyr gunstig forsikring.
Vurderer du utleie?
Få et tilbud fra Utleie KrogsveenHva koster lånet?
Sjekk estimert lånekostnadVil du varsles om lignende boliger?
Ved å lagre ditt boligsøk hos oss får du beskjed når vi har en bolig som ligner denne, før den legges ut på markedet!

