Hyttesone H 73
3 990 000 kr
44 m²
2 soverom
Komplett salgsoppgave
Store Arøya - Helgeroa
Nærhet til himmel og hav
Prisantydning
3 990 000 krOmkostninger
120 740 krTotalpris
4 110 740 kr
Pris
Bruksareal
54 m²BRA-I (internt bruksareal)
44 m²BRA-E (eksternt bruksareal)
10 m²TBA (terrasse-balkongareal)
59 m²
Areal
Byggeår
1963Soverom
2 soveromBad
1 badTomteareal
653 m² (eiet)Type
Fritidseiendom ved sjøenEierform
EietEnergimerke
E
Nøkkelinfo
Vurderer du utleie?
Få et tilbud fra Utleie KrogsveenHva koster lånet?
Sjekk estimert lånekostnadBeskrivelse
Kort om eiendommen
Den arealeffektive hytta ble trolig oppført på 1960-tallet, og har siden blitt oppgradert og modernisert med tidsriktig kjøkken og bad. Hytta ligger høyt og fritt til på et høydedrag med fantastisk utsikt og svært gode solforhold gjennom dagen. Til eiendommen medfølger båtplass på felles brygge, noe som gir enkel tilgang til sjøen og et aktivt båtliv. På Store Arøya finner du flotte turstier og badeplasser med både svaberg og sandstrender, perfekt til både avslapning og friluftsliv. Med båt er det kun en kort tur til både Helgeroa og Langesund, som byr på hyggelige restauranter, butikker og sommerliv.
Innhold og byggemåte
Innhold og byggemåte
Eiendommen
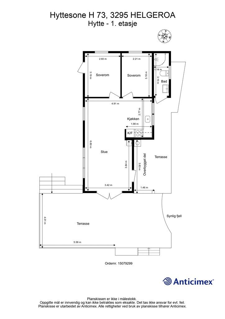
Hyttesone H 73, 3295 HELGEROA
Kommunenummer 3909, gårdsnummer 4083, bruksnummer 199, ideell andel 1/1
Innhold
Totalt bruksareal BRA: 54 kvm
BRA-i:
Hytte:
1. etasje 44 kvm: Stue, kjøkken og to soverom.
BRA-e:
Anneks/bod:
1. etasje 6 kvm: Ett rom.
Hytte:
1. etasje 4 kvm: Bad/toalett. (inkl. vegg inntil hytta)
Åpent areal:
Anneks/bod:
1. etasje 59 kvm:
Vedlagte plantegninger er ikke målbare. De oppgitte arealer er hentet fra rapport med befaringsdato 02.03.2026 utført av Anticimex Sandefjord. Arealene er beregnet og rom er definert etter dagens faktiske bruk, uavhengig av hva som er godkjent av bygningsmyndighetene.
Byggemåte
Selger har innhentet en tilstandsrapport av boligen/eiendommen. Av rapporten fremgår det at flere bygningsdeler har fått tilstandsgrad 2 (TG2). Rapporten beskriver også avvik på undersøkte bygningsdeler uten tilstandsgrad. Kjøper overtar ansvaret for de opplysninger som fremkommer av salgsdokumentasjonen, og kan ikke gjøre gjeldende som mangel noe som burde vært kjent eller som ikke kan anses å ha betydning for avtalen.
Bygningen er iht. tilstandsrapporten oppført med bjelkelag av treverk på søylefundamenter fundamentert på fjell. Yttervegger av trekonstruksjoner kledd med liggende trekledning. Saltak tekket med takplater av metall. terrassedører med karmer av tre. Vinduer med karmer av tre på soverom og av plast i stue. Les for øvrig mer om byggemåte og den tekniske tilstanden i rapporten.
Det gjøres spesielt oppmerksom på følgende bygningsdeler som har fått TG2 i rapporten:
Våtrom-bad:
- Badet har blitt helhetlig vurdert til TG2. Basert på våtrommets samlede tilstandsbilde må det påregnes videre overvåking slik at tiltak eller fornyelse kan iverksettes når dette blir nødvendig.
Tekniske anlegg:
- Annet: Viktig å sette seg inn i rutiner for bruk av vann og diverse teknisk utstyr. Det bør også holdes oppsyn med isolert del, konstruksjonen av treverk ligger tett på bakken, noe som gjør at det må forventes forkortet levetid av disse elementene.
Andre rom:
- Annet: Hytteeier har åpnet flere av veggene fra innsiden og bygget opp konstruksjonen igjen. Det ble flere steder gjort lokale utbedringer av blant annet råteskader. Stedvis ble vindpapp (svarpapp) reparert. Det ble ikke etablert luftesjikt mot mot ytterkledning, dette må ses i sammenheng med alder/tilstand på yttervegger og tiltak vedr. fasader bør påregnes, da uluftet kledning gir risiko for skader i konstruksjonen.
Loft-uinnredet:
- Kaldtloftet har blitt helhetlig vurdert til TG2. Basert på våtrommets samlede tilstandsbilde må det påregnes videre overvåking slik at tiltak eller fornyelse kan iverksettes når dette blir nødvendig. Erfaring viser at igangsetting av slike arbeider i mange tilfeller avdekker ytterligere forhold som krever tiltak.
Etasjeskiller og gulv på grunn (skjevhetsmåling):
- I stue er det på tilfeldige punkter målt lokale høydeforskjeller opptil 12 mm, på kjøkken er dette målt til 6 mm. Det er registrert tegn på redusert stivhet, og merkbare rystelser i bjelkelaget ved hard gange. Må også ses i sammenhengmed alder på bygget.
Skadedyr og fuktkrevende insekter:
- Gnagere: Det observeres spor etter gnagere på loft og i teknisk rom. Nøyaktig hvor eller hvordan gnagere kommer seg inn i bygningen, har ikke latt seg påvise. Selger har gjort omfattende arbeider inne i boligen, med blant annet åpning av flere vegger. De har etter beste evne prøvd å gjøre tetting, men det er ingen garanti for at dette er tilstrekkelig. Det legges til at en del av observasjonene kan stamme fra tidligere tider, før tiltak er gjort.
- Maur: Hytteeier opplyser om observasjoner av maur i bjelkelag/stubbloft. Rapport fra skaddyrfirma er fremlagt angående dette, det ble da gjort noen tiltak i form av blant annet giftåte. Det er ikke kjent om forholdet er aktivt eller om maurene ble helt borte. Konsekvens er at under gunstige forhold kan maur gjøre skade på bygningsmaterialer, som for eksempel treverk og isolasjonsmaterialer, ved å lage ganger og svekke materialene.
Yttervegger inkl. fasader:
- Det er valgt å vurdere yttervegger og fasader (og tilhørende bygningsdeler) med en samlet helhetsvurdering. Basert på bygningsdelenes samlede tilstandsbilde bør det
påregnes tiltak som forebyggende vedlikehold og/eller lokale utbedringer der dette viser seg å være et behov.
Vinduer og ytterdører:
- Vinduer og overramming: Det er stedvis liten klaring mellom utvendig listverk og vannbord/beslag under vinduet. Konsekvens er økt risiko for fuktopptak i trevirket, redusert levetid og utfordringer med overflatebehandling/vedlikehold. Enkelte vannbord/beslag har utilstrekkelig tilpassing mot kledning.
- Ytterdører og omramming: Terrassedør ved soverom har betydelig slitasje, samt at lukkemekanismen ikke lenge fungerer som tenkt. Konsekvens er at dørens levetid vurderes som passert.
- Det registreres følgende avvik på dør til bad: Ved funksjonstesting ble det registrert at dørbladet får kontakt med dørterskelen.
Yttertak:
- Tekking (med tilhørende beslag): Det er slakt takfall over bad, området er i minste laget for bruk av denne typen tekking.
- Vannbord, vindskier, gesimskasser og lignende: Vindskier viser begynnende tegn til slitasje og elde, ved bad er det blant annet tegn på råtedannelse i endeved. Vurderingen er begrenset til det som er synlig fra bakkenivå.
- Takrenner og utvendige nedløp:
- Snøfangere: Snøfangerutstyr er ikke etablert. TG2 er valgt siden forholdet kan påvirke sikkerheten.
Terrasse / platting:
- Det er valgt å vurdere terrassene (og tilhørende bygningsdeler) med en samlet helhetsvurdering. Basert på bygningsdelenes samlede tilstandsbilde bør det
påregnes tiltak som forebyggende vedlikehold og/eller lokale utbedringer der dette viser seg å være et behov.
Utvendig trapp:
- Utvendig trapp: Trappene viser tegn til slitasje og elde, med stedvise symptomer på begynnende skader.
Grunnmur, fundament:
- Søyler og pilarer: Utførelsen av søyler/pilarer og synlige deler av fundamenter er av variende type og tilstand. Hele området under hytte er ikke tilstrekkelig undersøkt grunnet lav høyde, samt lagring av materialer/utstyr.
- Stedvis er det åpninger i asfaltplater i stubbloftet, lokale utbedringer anbefales. Det har tidligere vært aktivitet av stokkmaur i bjelkelag/stubbloft, konsekvensen er at dette
erfaringsmessig medfører risiko for andre skjulte feil og mangler som ikke lar seg registrere ved visuell inspeksjon. Generelt bør det holdes oppsyn/overvåkning av stubbloft/bjelkelag og områdene under, slik at tiltak kan iverksettes ved behov.
Drenering:
- Det er valgt å vurdere dreneringen med en samlet helhetsvurdering. Dreneringens funksjon påvirker boligens bruksområder og bygningstekniske tilstand. Forhold som påvirker
funksjonen er i hovedsak nedgravd og skjult, noe som medfører at tilstanden ikke kan fastslås ved visuell inspeksjon. Dette gjelder blant annet forhold som fuktbeskyttelse av konstruksjoner mot terreng, grunnforhold og tilstand på rør og lignende. Forholdene påvirker særlig konstruksjoner som er i direkte eller nær kontakt med bakken. Lokale og fremtidige klimaforhold er også en påvirkningsfaktor. Foreslått tiltak er forebyggende vedlikehold og lokale utbedringer, eventuelt utskiftning hvis dette viser seg å bli nødvendig
Andre byggverk - Anneks/bod:
- Det er valgt å vurdere bygningen med en samlet helhetsvurdering. Basert på byggverkets samlede tilstandsbilde bør det påregnes tiltak som forebyggende vedlikehold og/eller lokale utbedringer der dette viser seg å være et behov.
Det gjøres spesielt oppmerksom på følgende bygningsdeler som har fått TGIU i rapporten:
Yttertak:
- Takkonstruksjon: På bakgrunn av at ventilasjonen av takkonstruksjonen over deler av hytta ikke kan kartlegges og undersøkes fra innsiden, foreligger det en usikkerhet om hvordan/om denne funksjonen er ivaretatt. Forholdet kan ikke kartlegges fra utsiden alene. Foreslått tiltak er videre undersøkelser og kartlegging av dagens utførelse og tilstand.
- Undertak (inkluderer sløyfer, lekter og innfestninger): Ikke undersøkt, grunnet taktekkingsmateriele, som ikke lar seg skyve opp/åpne.
Tilstandsrapporten er inntatt i salgsoppgaven. Rapporten inneholder informasjon om avvikene og konsekvensen av disse. For avvik som er gitt TG3 har den bygningssakkyndige i tillegg gitt et anslag på hva det vil koste å utbedre disse avvikene. Ettersom kjøper regnes å være kjent med forhold som tydelig fremgår av tilstandsrapporten, oppfordres du til å sette deg grundig inn i rapporten i sin helhet.
Standard
Hytta har gjennomgåede en-stavs eikeparkett. Vegger og himlinger med malte panelplater (MDF). Kjøkken med åpen løsning mot stua og innredning fra Systemkjøkken. Innredningen er fra 2016 med profilerte fronter, ventilator og porselensvask. Integrert stekeovn og induksjon koketopp, Bad med flislagt gulv, wc, servant og dusjkabinett. Hvitevarer medfølger i handelen, det gjøres oppmerksom på at hvitevarene er kjøpt for noen år tilbake, og kjøper må forvente slitasje som følge alder og normal bruk.
Løsøre og tilbehør
Vi viser til liste fra Norges Eiendomsmeglerforbund som gjelder fra 01.01.2020 angående løsøre og tilbehør.
Oppvarming
Peisovn i stua og luft-luft varmepumpe. Ellers elektrisk oppvarming. Dersom beboelsesrom ikke har vegg- eller fastmonterte varmekilder ved visning, følger dette heller ikke med.
Ferdigattest/brukstillatelse
Eiendommen har vært brukt til fritidsboligformål siden 1963, byggeår er imidlertid noe usikkert.
Kommunen opplyser at det ikke foreligger ferdigattest eller midlertidig brukstillatelse for eiendommen. Det finnes av den grunn ikke dokumentasjon over eiendommens lovlighet. Kjøper overtar eiendommen slik den fremstår på visning med risiko og ansvaret for eventuelle pålegg fra kommunen og kostnader forbundet med dette.
Det foreligger ingen dokumentasjon for annekset som heller ikke er registrert i matrikkelinformasjon fra kommunen. Det antas at bygget har stått der tilnærmet like lenge som hytta. Kjøper overtar ansvar og risiko for dette videre.
Terrassen ble utvidet i 2002 uten at det ble søkt om. Kommunen er kjent med forholdet. Ifølge opplysninger fra kommunen da hytta ble omsatt i 2016 skal byggesaksbehandler ha ringt daværende eier som skal ha sagt at det vil bli søkt om, men som ikke ble gjort. I forbindelse med at nåværende eier søkte om tilbygg som ble avslått i 2025 ble det sendt inn tegninger av eksisterende hytte slik den er nå. Kommunen opplyser at disse gjelder. Kjøper overtar ansvar og risiko for dette videre.
Det gjøres oppmerksom på at det ikke lenger utstedes ferdigattest på tiltak det er søkt om før 1998 jf. plan- og bygningsloven § 21-10. Kommunen vil ikke kreve ferdigattest for disse tiltakene og vil avvise eventuelle søknader. Bestemmelsen innebærer ikke at tiltak med manglende søknad blir lovlige, men at man ikke trenger å avslutte gamle byggesaker. Normalt sett kreves ferdigattest for alle søknadspliktige tiltak som gjøres etter plan- og bygningsloven.
Tinglyste heftelser og rettigheter
Eiendommen overdras fri for pengeheftelser.
Det er tinglyst følgende servitutter på eiendommen:
Dagboknr 1459722, tinglyst 23.12.2022, type heftelse: jordskiftesak om båtfeste.
Servitutten vil følge eiendommen. Kjøpers bank vil få prioritet etter ovennevnte heftelser og servitutter.
Eiendommen har tinglyst rett til vann, vei over jordet samt rett til båtplass og badeplass på Gnr. 4083, Bnr. 19. Rettigheten er tinglyst på Gnr. 4083, Bnr. 19, dagboknr 6865, tinglyst 30.09.2002.
Beliggenhet og tomteforhold
Beliggenhet og tomteforhold
Beliggenhet
Hytta ligger usjenert og solrikt til på en kolle ovenfor fergeleiet på øya. Herfra har man utsikt innover fjorden mot Brevik og utover mot Helgeroa og selvfølgelig ned til fergebrygga. Det er fine turområder på øya med sti som går over til syd vestre siden. Her er det en kritt hvit sandstrand som er blant områdets fineste. Det er ca. 150 meter fra hytta og ned til fergeleiet. Til båtplasen er det ca. 300 meter. Skjærgården i området er variert og vakker med et eldorado av holmer og sund. Det er korte båtturer i skjermet farvann til sommersteder som Helgeroa, Brevik og Langesund. Her finnes butikker, restauranter og andre servicefasiliteter. Wrightegården i Langesund er kjent for å tiltrekke seg mange kjente artister om sommeren, ofte settes det opp ferge fra Langesund og ut til omkringliggende øyer i forbindese med slike konserter. Fergen som går i rute mellom Helgeroa og Langesund og har flere anløp om sommeren. Den korresponderer også med ferge til øyer litt lenger inn i fjorden, noe som gir mulighet for såkalt øyhopping.
Adkomst
Med båt fra Helgeroa, Langesund eller andre fastlandsforbindelser i området. Det går ferge til øya som går mellom Helgeroa og Langesund. Det vil bli skiltet med Krogsveen visningsskilt ved fellesvisninger.
Beskrivelse av tomt
Eiet tomt på 652 kvm. Den består hovedsakelig av naturtomt med fjellknauser. Terrasse mot nord og ved inngangspartiet mot vest som er overbygget.
Vei, vann og avløp
Eiendommen har adkomst via sjøveien med ferge eller egen båt.
Eiendommen er tilknyttet kommunalt ledningsnett via private stikkledninger. Eier er selv ansvarlig for private stikkledninger til boligen.
Regulerings-og arealplaner
Eiendommen ligger i et uregulert område, men er i kommuneplanens arealdel 2025-2037, datert 10.12.2025 avsatt til: Byggeforbud i områder inntil 100 meter langs vassdrag og LNRF område.
Utsnitt av plan med tilhørende bestemmelser kan fås ved henvendelse til megler.
Økonomi
Økonomi
Kommunale utgifter
Kommunale avgifter utgjorde kr. 12.429 for 2025. Avgiftene er prognosert til å utgjøre kr. 12.893,- for inneværende år. I dette inngår gebyr for vann, avløp og hytterenovasjon.
Nåværende eier har et strømforbruk som tilsvarer ca. kr 3.949,- pr. år. / 3.799 kwh. pr. år. Utgiftene er basert på nåværende eiers forbruk og avtaler.
Selger har avtalt Norgespris på strøm på eiendommen for perioden 2026, og denne er pt på kr 50 øre inkl mva. Nettleie, avgifter og påslag fra kraftleverandøren kommer i tillegg. Er det fjernvarme vil det også komme kostnader i tillegg.
Denne avtalen vil følge eiendommen i den avtalte perioden.
Les mer om Norgespris her: https://www.regjeringen.no/no/aktuelt/legg-fram-lov-om-norgespris-pa-straum-og-fjernvarme/id3102642/
Fritidsboligen har en årlig forsikringspremie på kr 4.000,-.
Formuesverdi
Formuesverdi for 2024 var kr 196.260,- ifølge Skatteetaten.
Formuesverdien justeres normalt årlig.
For mer informasjon se skatteetaten.no
Omkostninger
3 990 000,00 Prisantydning
Omkostninger
99 750,00 Dokumentavgift til staten (2,5% av kjøpesum)
19 900,00 Gjensidige Boligkjøperpakke (valgfri)
545,00 Tinglysing panterettsdokument
545,00 Tinglysing skjøte
--------------------------------------------------------
120 740,00 Omkostninger totalt
--------------------------------------------------------
4 110 740,00 Totalpris inkl. omkostninger
--------------------------------------------------------
Totalpris inkl. omkostninger forutsetter kjøp til prisantydning.
Det tas forbehold om endringer i avgifter og gebyrer.
Tilbud om lånefinansiering
Megler formidler gjerne kontakt med rådgiver hos vår samarbeidspartner BN Bank. De har konkurransedyktige betingelser samt rask og løsningsorientert behandling av din lånesøknad. Krogsveen mottar et honorar dersom lån opprettes.
Betalingsbetingelser
Kjøpesum inkludert omkostninger, samt pantedokument tilknyttet eventuelt lån, skal være disponibelt hos megler 2 virkedager før overtagelsen.
Annen viktig informasjon
Annen viktig informasjon
Eier
Henriette Louise Stulen Liaskar og Odd Magne Stulen Liaskar
Konsesjon
Eiendommen er ikke konsesjonspliktig, men det er boplikt i Larvik kommune. For at eiendommen skal kunne overskjøtes må kjøper signere på egenerklæring om konsesjonsfrihet om at boplikten ikke gjelder for denne eiendommen.
Overtakelse
Etter nærmere avtale.
Boligselgerforsikring
Selger har i forbindelse med salget tegnet boligselgerforsikring levert av Gjensidige.
Boligselgerforsikringen dekker selgers ansvar etter avhendingsloven begrenset oppad til kr 14 millioner. Dersom kjøper oppdager forhold ved eiendommen som hen mener utgjør en mangel ved eiendommen, vil Gjensidige behandle reklamasjonen på vegne av selger. Forsikringsvilkår kan fås ved henvendelse til megler.
Vedlagt salgsoppgaven følger selgers egenerklæringsskjema og tilstandsrapport. Interessenter må sette seg inn i dokumentene før bud inngis.
Boligkjøperforsikring
Innen kontraktsmøtet må kjøper ta stilling til om det ønskes å bestille Boligkjøperpakken gjennom Gjensidige. I denne gunstige pakken er boligen ferdig forsikret og inkluderer rettshjelpsforsikring, også kalt Boligkjøperforsikring. Rettshjelpsforsikring gir trygghet og tilgang på profesjonell juridisk hjelp dersom det oppdages uventede feil eller mangler det første året etter overtagelse. Forsikringsselskapet behandler i så fall ethvert mangelskrav kjøper måtte ha overfor selger.
Boligkjøperpakken inkluderer bygningsforsikring for hus og hytte, innboforsikring, flytteforsikring og dobbel rentedekning - i situasjoner hvor kjøper ikke får solgt nåværende primærbolig.
Kjøper mottar ingen særskilt faktura for Boligkjøperpakken da kostnaden det første året legges til kjøpesummen for boligen. Det gjøres oppmerksom på Krogsveen mottar et honorar for denne formidlingen.
Produktark for Boligkjøperpakken ligger vedlagt i salgsoppgaven.
Dersom ikke boligkjøperpakke ønskes kan kun rettshjelpsforsikring, også kalt boligkjøperforsikring, tegnes særskilt via megler. Rettshjelpsforsikringen varer i 5 år fra overtagelse og leveres gjennom Gjensidige. Ta kontakt med megler for ytterligere informasjon.
Selskap og privatpersoner som driver med kjøp/salg/utvikling som ledd i egen næringsvirksomhet kan ikke tegne boligkjøperpakke eller rettshjelpsforsikring.
Budgivning
Forbrukerinformasjon om budgivning er vedlagt denne salgsoppgaven og er også på vår hjemmeside Krogsveen.no. Alle bud og budforhøyelser må inngis skriftlig. I tillegg må legitimasjon være fremlagt sammen med signatur fra budgiver.
Vi oppfordrer til å gi bud elektronisk via GI BUD-knappen på eiendommens hjemmeside på Krogsveen.no. Da vil samtlige vilkår bli oppfylt.
Eventuelle forhøyelser eller endringer av budet kan bekreftes pr SMS eller på e-post. Vi oppfordrer alltid til å kontakte megler pr. telefon i tillegg da forsinkelser i SMS og e-post kan forekomme.
For at budene skal kunne bli behandlet og videreformidlet skriftlig til alle involverte parter, må alle bud ha en tilstrekkelig lang akseptfrist, jf. eiendomsmeglingsforskriften § 6-3.
Selger må også skriftlig akseptere budet før aksept kan formidles til budgiver. Akseptfrist bør derfor være på minimum 30 minutter, og budforhøyelser må derfor skje i god tid før fristens utløp.
Bud i forbrukerforhold kan uansett ikke settes med kortere frist enn kl. 12.00 første virkedag etter siste annonserte visning. I tillegg kan ikke budet ha forbehold om at det skal holdes hemmelig ovenfor øvrige interessenter. Megler har iht lov om eiendomsmegling ikke anledning til å videreformidle disse budene, og de vil dermed heller ikke bli journalført.
Etter at eiendommen er solgt vil kjøper og selger få tilsendt budjournal. Øvrige budgivere kan få utlevert kopi av budjournalen i anonymisert form.
Hvitvaskingsreglene
I henhold til lov om hvitvasking og terrorfinansiering har megler plikt til å gjennomføre kontrolltiltak overfor kunder, herunder fullmektiger. Dette innebærer bl.a. å bekrefte kunders og reelle rettighetshaveres identitet på bakgrunn av fremvist gyldig legitimasjon eller på annen godkjent måte, samt å innhente opplysninger om kundeforholdets formål og tilsiktede art.
Dersom slike kundetiltak ikke kan gjennomføres, kan megler ikke etablere kundeforholdet eller utføre transaksjonen.
Hvis kjøper ikke bidrar til gjennomføring av kundekontrollen og dette fører til at transaksjonen blir forsinket eller ikke kan gjennomføres, vil dette ansees som mislighold av avtalen og gi selger rettigheter etter avhendingslova kapittel 5. I tilfeller der selger ikke bidrar til gjennomføring av løpende kundekontroll underveis i oppdraget, er det selger som misligholder sine forpliktelser etter avtalen og gi kjøper rettigheter etter avhendingslovens kapittel 4. Partene er selv ansvarlige for eventuelle kostnader og ansvar dette kan medføre. Eiendomsmegleren eller eiendomsmeglingsforetaket kan ikke holdes ansvarlig for de konsekvenser dette vil kunne få for partene eller andre som har interesser i eiendomshandelen.
Kjøper oppfordres til å innbetale kjøpesummen som ikke kommer fra låneinstitusjon i én samlet innbetaling fra egen konto i norsk bank. Megler har plikt til å melde fra til Økokrim om eiendomshandler som fremstår som mistenkelige. Melding sendes Økokrim uten at partene varsles.
Personopplysningsloven
I henhold til personopplysningsloven gjør vi oppmerksom på at interessenter kan bli registrert for videre oppfølging.
Lovanvendelse
Generelle bestemmelser
Salgsoppgaven er basert på de opplysningene selger har gitt til megler, den bygningssakyndiges tilstandsrapport, samt opplysninger innhentet fra kommunen, Kartverket og andre tilgjengelige kilder. Det er viktig at kjøper setter seg grundig inn i alle salgsdokumentene, herunder salgsoppgave, tilstandsrapport og selgers egenerklæring. Kjøper anses kjent med forhold som er tydelig beskrevet i salgsdokumentene, og slike forhold kan ikke påberopes som mangler. Dette gjelder uavhengig av om kjøper har lest dokumentene. Alle interessenter oppfordres til å undersøke eiendommen nøye, gjerne sammen med fagkyndig før bud inngis. Kjøper som velger å kjøpe usett kan ikke gjøre gjeldende som mangel noe han burde blitt kjent med ved undersøkelsen.
Dersom det er behov for avklaringer, anbefaler vi at interessenter rådfører seg med eiendomsmegler eller egne rådgivere før det legges inn bud.
En bolig som har blitt brukt i en viss tid, har vanligvis blitt utsatt for slitasje og skader kan ha oppstått. Slik bruksslitasje må kjøper regne med, og det kan avdekkes enkelte forhold etter overtakelse som nødvendiggjør utbedringer. Normal slitasje og skader som nødvendiggjør utbedring, er innenfor hva kjøper må forvente og vil ikke utgjøre en mangel.
Kjøper og selgers rettigheter og plikter reguleres av avtalen mellom partene, samt informasjonen som har vært tilgjengelig for kjøperen i forbindelse med handelen. Avtalen utfylles av avhendingsloven, og det gjelder ulike avtalevilkår avhengig av om kjøper er forbrukerkjøper eller ikke. Dette er nærmere beskrevet nedenfor.
På grunn av ulike avtalevilkår kan selger vurdere bud fra en som ikke er forbruker, ulikt fra en forbrukers bud. Dersom kjøper ikke er forbruker, er selger sitt mulige mangelsansvar begrenset fordi eiendommen selges "som den er". Selger kan ikke ta «som den er»- forbehold overfor en forbrukerkjøper. Selv et lavere bud fra en som ikke er forbruker kan foretrekkes fordi begrensningen i mulig mangelsansvar kan ha egenverdi for selger. Selger står fritt til å forkaste eller akseptere ethvert bud, og er for eksempel ikke forpliktet til å akseptere høyeste bud.
Budgiver skal i budskjema avgi egenerklæring om budgiver er forbruker eller næringsdrivende/ person som hovedsakelig handler som ledd i næringsvirksomhet. Budgivere får informasjon dersom andre bud er inngitt av en som ikke er forbruker.
Forbrukerkjøp - definisjon
Med forbrukerkjøp menes kjøp av eiendom når kjøperen er en fysisk person som ikke hovedsakelig handler som ledd i næringsvirksomhet.
Forbruker – avtalevilkår
Eiendommen har en mangel dersom den ikke er i samsvar med kravene som følger av avtalen, eller det foreligger brudd på bestemmelsene i avhendingsloven §§ 3-2 til 3-8. Hvis eiendommen ikke er i samsvar med det kjøperen må kunne forvente ut ifra alder, type og synlig tilstand, kan det være grunnlag for mangelskrav. Det samme gjelder hvis det er holdt tilbake eller gitt uriktige opplysninger om eiendommen. Dette gjelder likevel bare dersom man kan gå ut ifra at det virket inn på avtalen at opplysningen ikke ble gitt eller at mangelskravet ikke blir rettet i tide på en tydelig måte.
Boligen kan ha en mangel etter avhendingsloven § 3-3 andre ledd, dersom det er avvik mellom opplyst og faktisk innvendig areal, forutsatt at avviket er på 2% eller mer og minimum 1 kvm.
Ved beregning av et eventuelt prisavslag eller erstatning må kjøper selv dekke tap/kostnader opptil et beløp på kr 10 000 (egenandel).
Ikke-forbruker (næringsdrivende) – definisjon
Hvis kjøper er en juridisk person, eller en fysisk person som hovedsakelig handler som ledd i næringsvirksomhet, vil kjøpet ikke anses som et forbrukerkjøp.
Ikke-forbruker – avtalevilkår
Eiendommen har en mangel dersom den ikke er i samsvar med kravene som følger av avtalen.
Eiendommen selges «som den er», og selgers ansvar utover det konkret avtalte er da begrenset etter avhendingsloven § 3-9, første ledd andre setning.
Avhendingsloven § 3-3 andre ledd fravikes, og hvorvidt boligens arealsvikt utgjør en mangel vurderes etter avhendingsloven § 3-8.
Informasjon om kjøpers undersøkelsesplikt, herunder oppfordringen om å undersøke eiendommen nøye, gjelder også for kjøpere som ikke anses som forbrukere.
Det forutsettes at hjemmel overføres til kjøper. Hvis kjøper ikke ønsker hjemmelsoverføring av eiendommen, må det tas forbehold om dette i budet.
Meglers vederlag
Meglers vederlag betales av selger og er avtalt til:
Vederlag: 3,75 % av salgssummen.
Vederlag:
Kontroll av hjemmel og heftelser kr 3 900,-
Markedsføringspakke Fritid kr 29 900,-
Oppgjør kr 8 900,-
Tilrettelegging kr 19 900,-
Utlegg:
Innhenting av offentlig opplysninger Larvik kommune kr 5 452,-
Tinglysing sikring kr 545,-
Andre utgifter:
Tilstandsrapport kr 17 500,-
Boligselgerforsikring Gjensidige kr 25 176,90,-.
Foto kr 5 000,-
Vi er opptatt av verdiskapning, og har knyttet til oss samarbeidspartnere som skal sikre våre kunder de beste produkter og tjenester;
• I forbindelse med forberedelse av salget, innhenter vi informasjon om eiendommen hovedsakelig fra vår samarbeidspartner Amibita.
• Gjensidige leverer boligselgerforsikring og tilbyr bygningsforsikring
• Boligkjøperforsikring leveres av Hiscox og med Sedgwick som skadebehandler, og er formidlet gjennom Gjensidige.
• BN bank tilbyr finansieringsløsninger
• Vår avdeling Krogsveen Pluss tilbyr flyttetjenester som utvask, visningsvask, lager, tømming og transport av flyttelass, i tillegg til å formidle kontakt med Flip for overflateoppussing.
• I forbindelse med overtagelse av eiendommen tilbyr Overo avtale om strøm, alarm og bredbånd.
• Krogsveen er, sammen med øvrige bransjeaktører, medeier i Bomega AS som tilbyr den digitale annonseringsplattformen Hjem.
Opplysninger om oppdraget
Oppdragsnummer 28-0006/26
Eiendomsmegler Krogsveen AS, avd. Bamble og Porsgrunn
Strandgata 22, 3960, STATHELLE
950 007 613
Oppdragets KR-kode KR28.266
Dato
Sist oppdatert: 31. mars 2026 kl. 14:38
Dokumenter
Dokumenter
PDF – 169 KB
PDF – 312 KB
PDF – 29 KB
PDF – 127 KB
PDF – 392 KB
Område
Legg til steder som er viktige for deg
Visning
Oppmøte med felles båttransport fra Helgeroa.
For å delta på visning, ber vi om at du melder deg på. Da sikrer vi at du får nødvendig informasjon og at det er satt av tilstrekkelig med tid. Kontakt megler dersom annet tidspunkt ønskes. Husk å lese salgsoppgaven før visningen, så du stiller forberedt. NB. Visning utgår dersom det ikke er noen påmeldte. Ønsker du kun å bli holdt orientert, kan du fra eiendommens hjemmeside få varsel om solgtpris, eller kontakte megler.
Lurer du på noe?
Vurderer du utleie?
Få et tilbud fra Utleie KrogsveenHva koster lånet?
Sjekk estimert lånekostnadVil du varsles om lignende boliger?
Ved å lagre ditt boligsøk hos oss får du beskjed når vi har en bolig som ligner denne, før den legges ut på markedet!









































