Briskeveien 62
5 450 000 kr
123 m²
3 soverom
Solgt
Langhus/Bøleråsen
Velholdt halvpart av tomannsbolig | Innerst i blindvei | Garasje m/elbillader | Flott utsikt, gode solforhold | Må sees!
Prisantydning
5 450 000 krOmkostninger
159 240 krTotalpris
5 609 240 kr
Pris
Bruksareal
144 m²BRA-I (internt bruksareal)
123 m²BRA-E (eksternt bruksareal)
21 m²TBA (terrasse-balkongareal)
26,5 m²
Areal
Byggeår
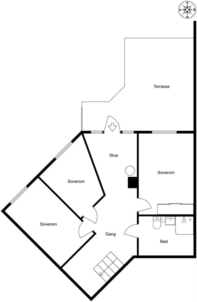
1991Soverom
3 soveromBad
2 badTomteareal
238 m² (eiet)Type
Halvpart vertikaldelt boligEierform
EietFasiliteter
Garasje/P-plass og Balkong/TerrasseEnergimerke
Rød E
Nøkkelinfo
Unngå doble boligrenter
Vi tilbyr gunstig forsikring.
Vurderer du utleie?
Få et tilbud fra Utleie KrogsveenHva koster lånet?
Sjekk estimert lånekostnadBeskrivelse
Kort om eiendommen
- En av toppbeliggenhetene på feltet!
- Meget familievennlig, trygt og anerkjent som et godt sted å bo
- Egen garasje med elbillader og praktisk bod i bakkant. Det er også godt med gjesteparkering i nærområdet.
- Meget fin og usjenert sydvestvendt markterrasse og balkong med flott utsikt!
- Romslig stue med kjøkken i åpen løsning. Hvitevarer på kjøkkenet medfølger.
- Tre soverom og bad i begge etasjer
- Svale soverom i underetasje
- Plass til hjemmekontor/tv-stue i u.etasje
- Hagestue klargjort for skyvedører
- Grendehus som kan leies til bursdager og andre arrangementer
- Gangavstand til barnehager, barneskole og ungdomsskole
- Gangavstand til buss som går til togstasjonen. Man kan også gå til togstasjon. Toget har fire avganger i timen til Oslo S og Ski!
Område
Legg til steder som er viktige for deg
På flyttefot? Tenk kjøp og salg samtidig.
Få din egen rådgiver gjennom hele kjøps- og salgsprosessen. Det starter med en verdivurdering.
Unngå doble boligrenter
Vi tilbyr gunstig forsikring.
Vurderer du utleie?
Få et tilbud fra Utleie KrogsveenHva koster lånet?
Sjekk estimert lånekostnadVil du varsles om lignende boliger?
Ved å lagre ditt boligsøk hos oss får du beskjed når vi har en bolig som ligner denne, før den legges ut på markedet!
På flyttefot? Slik gjør vi det enklere for deg
Skreddersydd flyttepakke
Vi fikser håndverkere, vask, pakking, lagring og transport, og legger ut for utgiftene underveis.
Hjelp med både kjøp og salg
Hos oss har du din egen rådgiver gjennom hele kjøps- og salgsprosessen.
Hjelp til finansiering
Vårt samarbeid med BN Bank sikrer deg rask og løsningsorientert hjelp, til konkurransedyktige betingelser.




