Bjørkøya 400 og 400 B
6 500 000 kr
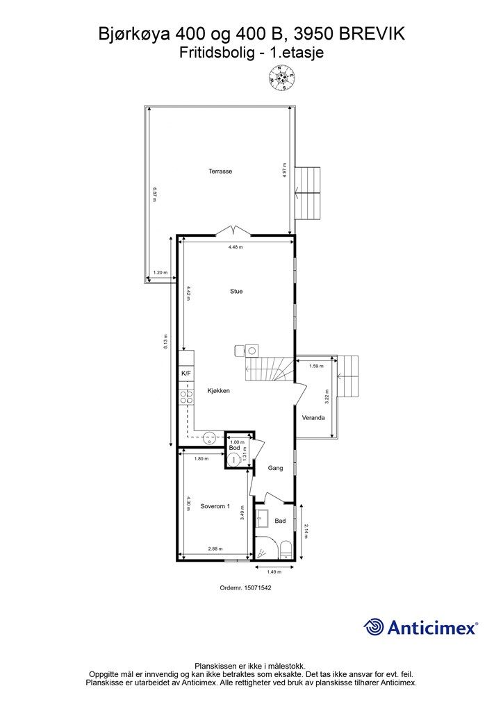
89 m²
1 soverom
Solgt
Bjørkøya
Nostalgisk sommerstemning ved fjorden
Prisantydning
6 500 000 krOmkostninger
183 490 krTotalpris
6 683 490 kr
Pris
Bruksareal
105 m²BRA-I (internt bruksareal)
89 m²BRA-E (eksternt bruksareal)
16 m²TBA (terrasse-balkongareal)
57 m²
Areal
Byggeår
1920Soverom
1 soveromBad
1 badTomteareal
2 915 m² (eiet)Type
Fritidseiendom ved sjøenEierform
EietEnergimerke
Oransje E
Nøkkelinfo
Vurderer du utleie?
Få et tilbud fra Utleie KrogsveenHva koster lånet?
Sjekk estimert lånekostnadBeskrivelse
Kort om eiendommen
Eiendommen ligger idyllisk til på Bjørkøyas østside. Den består av hovedhytte med 8 soveplasser, en falleferdig hytte, sjøbod og to uthus. De gamle husene har vært i familiens eie siden tidlig 1900-tallet. Huset som tidligere var bolig for arbeiderne som produserte is til eksport nedover på kontinentet er i senere tid vært benyttet som fritidsbolig av samme familie. Hytta ble renovert på 90-tallet og fikk i 2014 tilkoblet vann og avløp. Eiendommen er fantastisk usjenert og har en egen ro. Her er det plass til å leke på egen plen, ta morgenbad fra egen brygge og ta tempoet ned. På Bjørkøya kan du oppleve øysommer, hvor dagene glir stille av sted med bading, joggeturer, fiske, seiling og matlaging, og om du skulle la vær å lage mat en dag, så har øya sommeråpen restaurant.
Område
Legg til steder som er viktige for deg
På flyttefot? Tenk kjøp og salg samtidig.
Få din egen rådgiver gjennom hele kjøps- og salgsprosessen. Det starter med en verdivurdering.
Vurderer du utleie?
Få et tilbud fra Utleie KrogsveenHva koster lånet?
Sjekk estimert lånekostnadVil du varsles om lignende boliger?
Ved å lagre ditt boligsøk hos oss får du beskjed når vi har en bolig som ligner denne, før den legges ut på markedet!




