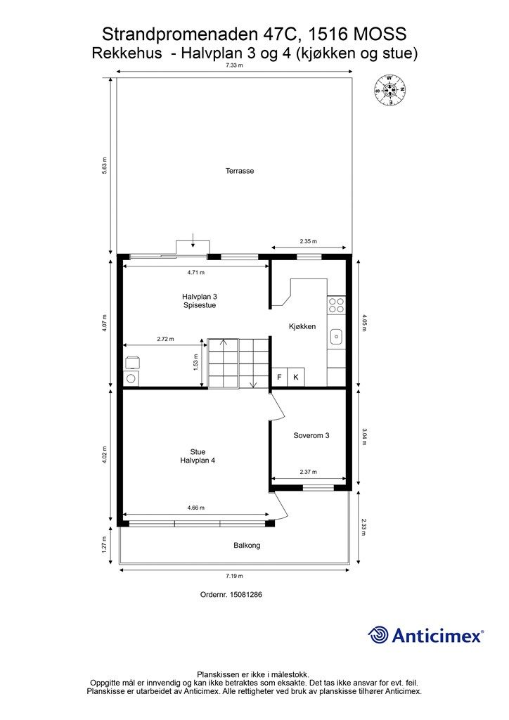
Strandpromenaden 47C
6 750 000 kr
112 m²
3 soverom
Komplett salgsoppgave

Framnes
Kjedet enebolig i første rekke med vid og vakker sjøutsikt. Stort, delikat bad - nytt i 2025. Fine, solfylte utearealer.
Prisantydning
6 750 000 krOmkostninger
189 740 krTotalpris
6 939 740 kr
Pris
Bruksareal
121 m²BRA-I (internt bruksareal)
112 m²BRA-E (eksternt bruksareal)
9 m²TBA (terrasse-balkongareal)
78 m²
Areal
Etasje
2Byggeår
1962Soverom
3 soveromBad
1 badTomteareal
239 m² (festet)Type
RekkehusEierform
EietFasiliteter
Balkong/Terrasse
Nøkkelinfo
Unngå doble boligrenter
Vi tilbyr gunstig forsikring.
Vurderer du utleie?
Få et tilbud fra Utleie KrogsveenHva koster lånet?
Sjekk estimert lånekostnadBeskrivelse
Kort om eiendommen
- Herlig utsikt over Værlebukta - inne som ute
- Inviterende utearealer med sol allerede fra soloppgang til sen kveld sommerstid
- Betydelig oppgradert og påkostet gjennom 2010-tallet frem til helt nylig
- Luftig planløsning med tre delplan samt kjeller
- Familievennlig med tre soverom av gode størrelser
- Begge stuer pusset opp i 2025 med bl.a. klassisk moderne fiskebeinsparkett
- Stort, lekkert og moderne bad - etablert i 2025
- Rom i kjeller innredet uten godkjenning
- Alle vinduer utenom ett i kjeller byttet ut på 2010-tallet
- Taktekking lagt om i 2018
- Barfot-avstand til Sølystranda, gangavstand til byen og toget
Innhold og byggemåte
Innhold og byggemåte
Eiendommen
Strandpromenaden 47C, 1516 MOSS
Kommunenummer 3103, gårdsnummer 1, bruksnummer 2296, ideell andel 1/1
Kommunenummer 3103, gårdsnummer 1, bruksnummer 1347, ideell andel 1/18
Kommunenummer 3103, gårdsnummer 1, bruksnummer 2285, ideell andel 1/18
Innhold
BRA (totalt bruksareal): 121 kvm.
BRA-i (internt bruksareal)
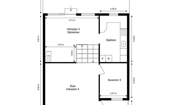
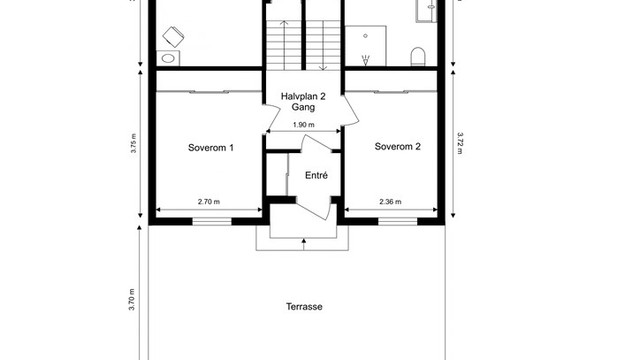
Halvplan 1 og 2:
55 kvm: Entré, to soverom, gang, bad og innredet kjellerstue.
Halvplan 3 og 4:
57 kvm: Kjøkken, stue, spisestue og soverom.
BRA-e (eksternt bruksareal)
Frittstående utebod - 1. etasje:
5 kvm: Utebod ved inngangsparti.
Utebod - 1. etasje:
4 kvm: Utebod ved carportanlegg.
TBA (terrasse- og balkongareal)
Halvplan 1 og 2:
25 kvm: Østvendt terrasse.
Halvplan 3 og 4:
53 kvm: Vestvendt terrasse 41 kvm og østvendt balkong 12 kvm.
Utebod ved carportanlegg har et totalt gulvareal (GUA) på 9 kvm, men grunnet skråtak/lav takhøyde er kun 4 kvm av arealet måleverdig som bruksareal. De delene av arealene som har lav himlingshøyde (ALH) utgjør 5 kvm.
Rom som avviker fra godkjente byggetegninger ifbm. rom for varig opphold: Innredet kjellerstue. Se mer informasjon under punktet ferdigattest.
De oppgitte arealer er hentet fra rapport med befaringsdato 20.04.2026 utført av Lars Erik Bergersen. Arealene er beregnet og rom er definert etter dagens faktiske bruk, uavhengig av hva som er godkjent av bygningsmyndighetene.
Byggemåte
Selger har innhentet en tilstandsrapport av boligen/eiendommen. Av rapporten fremgår det at flere bygningsdeler har fått tilstandsgrad ikke undersøkt/ikke tilgjengelig for undersøkelse (TGIU), 2 (TG2) og/eller 3 (TG3). Rapporten beskriver også avvik på undersøkte bygningsdeler uten tilstandsgrad. Kjøper overtar ansvaret for de opplysninger som fremkommer av salgsdokumentasjonen, og kan ikke gjøre gjeldende som mangel noe som burde vært kjent eller som ikke kan anses å ha betydning for avtalen.
Bygningen er iht. tilstandsrapport, oppført i 1962. Boligbygg over 4 halvplan inkludert kjeller. Gulv mot grunn av betong. Grunnmur av betong. Bærende konstruksjoner av betong- og murkonstruksjoner samt trekonstruksjoner. Fasader utført i liggende trekledning samt malt teglstein. Takkonstruksjon utført i saltaksform utvendig tekket med asfaltpapp fra 2018. Boligen har profilert entrédør med glassfelt fra 2017, utstyrt med elektronisk kodelås. Vindu med karmer av tre og to-lags glass fra byggeår, 2011, 2014 og 2022. Vinduer med karmer av tre og tre-lags glass fra 2017. Elektrisk solskjerming på østvendte vinduer i stue. Balkongdør med karmer av tre og tre-lags glass fra 2022. Balkongskyvedør med karmer av tre og to-lags glass fra 2022. Les forøvrig mer om byggemåte og den tekniske tilstanden i rapporten.
Frittstående redskapsbod. Bygning i trekonstruksjoner. Fasaden er kledd med liggende trekledning. Pulttak i trekonstruksjoner (besiktiget fra bakkenivå). Yttertak er utvendig tekket med asfaltpapp. Konstruksjonen er uisolert.
I rapporten fremkommer det som takstmannen mener kjøper må være særskilt oppmerksom på, dette gjelder blant annet (se utfyllende tekst i rapporten):
Følgende kontrollpunkter/forhold har blitt tildelt TG3:
Det er ingen punkter som har blitt tildelt TG3.
Følgende kontrollpunkter/forhold har blitt tildelt TG2:
Kjøkken
- Vannrør: Det er ikke montert automatisk lekkasjestopper, noe som vurderes å være et krav i dette tilfellet.
Tekniske anlegg
- Innvendig stakeluke: Innvendig stakeluke er ikke påvist, og det er derfor ukjent om dette er etablert.
- Avløpsrør (utover det som nevnes under andre sjekkpunkter): Boligens avløpsrør (og tilhørende komponenter) har en alder som tilsier at fremtidig funksjon er usikker. Bygningsdelen er skjult, så den faktiske tilstanden er ukjent. Deler av rørsystemet er skiftet i nyere tid, og opplysningen over gjelder derfor kun de delene som er av eldre dato.
Andre rom
- Annet: Deler av etasjen har skråtak som er en lukket konstruksjon. Slike konstruksjoner betraktes erfaringsmessig som fuktrisikokonstruksjoner.
Rom under terreng
- Overflate vegg: Det observeres stedvis tegn til riss i veggflater med malt murpuss.
Loft (uinnredet/kaldt loft)
- Inspeksjonsmulighet: Deler av kaldtloftet lot seg ikke undersøke grunnet redusert tilkomst/lagrede gjenstander på befaringstidspunktet.
Krypkjeller (innvendig inspeksjon)
- Helhetsvurdering: Det er valgt å vurdere krypkjelleren (og tilhørende/omliggende bygningsdeler) med en samlet helhetsvurdering. Følgende hovedmomenter er lagt til grunn for vurderingen: Det finnes ingen tilkomstmulighet til krypkjeller. Det gjøres oppmerksom på at krypkjellere er bygningsdeler som erfaringsmessig har høy skaderisiko, noe som gjør at konstruksjonstypen krever jevnlig ettersyn fra innsiden for å avdekke om det foreligger forhold som krever tiltak.
Yttervegger inkl. fasader
- Lufting av ytterkledning: Det er vurdert å være begrenset spalte for lufting og drenering bak ytterkledningen.
Vinduer og ytterdører
- Vinduer og omramming: Enkelte vinduer har en alder der fremtidig funksjon vurderes som usikker. Ovennevnte forhold gjelder vinduer som vurderes å være fra boligens opprinnelige byggeår.
Terrasse/platting (ved spisestue og entré)
- Tilstand på rekkverk og overflatematerialer: Overflatematerialer på terrassen viser tegn til slitasje.
Grunnmur og fundament
- Grunnmur og fundament: Det registreres enkelte moderate tegn til riss i overflaten til grunnmuren.
Drenering
- Helhetsvurdering: Det er valgt å vurdere dreneringen med en samlet helhetsvurdering. Følgende hovedmomenter er lagt til grunn for vurderingen: Drenering har en alder som tilsier at fremtidig funksjon er usikker. Stedvis lite terrengfall vekk fra grunnmuren. Det kan ikke verifiseres at grunnmuren har utvendig fuktsperre.
Forstøtningsmur
- Tilstand: Sprekkdannelser observeres stedvis i overflaten på lysgrav.
Stikkledninger og tanker
- Utvendig vann- og avløpsledninger: Utvendige vann- og avløpsledninger har en alder som tilsier at fremtidig funksjon er usikker. Bygningsdelen er skjult, så den faktiske tilstanden er ukjent.
Følgende kontrollpunkter/forhold har blitt tildelt TGIU (tilstandsgrad ikke undersøkt):
Våtrom - Bad
- Kontroll i tilliggende konstruksjon ikke utført: Med bakgrunn i at våtrommets vegger er av mur/betong er det ikke praktisk mulig å gjennomføre fuktmåling/hulltaking i et område der det erfaringsmessig forekommer skader. Hulltaking og fuktmåling i lukkede konstruksjoner er derfor ikke utført. Tilstanden inne i konstruksjonen er ikke kjent. Det ble derimot gjennomført et overflatesøk med fuktindikator, uten at det ble påvist indikasjoner som tyder på fuktskader.
Yttervegger inkl. fasader
- Gnagersikring: Det har ikke vært mulig å kontrollere om ytterkledningen er sikret mot inntrekk av gnagere. Det kan derfor ikke bekreftes om gnagersikringen er utført på korrekt måte.
Yttertak
- Takkonstruksjon: På bakgrunn av at ventilasjonen av takkonstruksjonen ikke kan kartlegges og undersøkes fra innsiden, foreligger det en usikkerhet om hvordan/om denne funksjonen er ivaretatt. Forholdet kan ikke kartlegges fra utsiden alene. Foreslått tiltak er videre undersøkelser og kartlegging av dagens utførelse og tilstand.
Terrasse/platting (ved spisestue og entré)
- Konstruksjoner og fundamenter: Fundamentene var ikke tilgjengelige for undersøkelser grunnet begrenset tilkomstmuligheten, noe som gjorde at utførelsen/tilstanden ikke lot seg kontrollere.
Andre byggverk (frittstående redskapsbod)
- Yttertak og takkonstruksjon: Taket er inspisert fra bakkeplan, med de begrensningene dette innebærer. Konsekvens er at deler av taket kan være utsatt for slitasje, skader eller feil utførelse som ikke lar seg registrere på grunn av begrenset tilkomst. Fullverdig kontroll bør gjennomføres når forholdene ligger til rette.
- Innvendige forhold: Store deler av overflater inne i bygget var ikke tilgjengelige for inspeksjon på grunn av inventar som var oppbevart i rommet på befaringsdagen. Konsekvens er at det kan være skader, feil eller mangler som ikke lot seg registrere grunnet denne begrensningen i inspeksjonsmuligheten. Foreslått tiltak er videre undersøkelser for å kartlegge dagens tilstand og avdekke om det er behov for utbedringer eller andre nødvendige tiltak når bygget er tømt.
Det anbefales ytterligere undersøkelser av disse punktene.
Helse, miljø og sikkerhet
Innvendige trapper
- Rekkverk og håndløper: Trappen har ikke håndløper på begge sider. Åpninger i rekkverket på mer enn 0,10 meter (gjelder både rekkverk til trapp samt øvrig rekkverk i boligen). Rekkverkshøyden er under 1,0 meter (gjelder øvrig rekkverk i boligen). Basert på ovennevnte forhold oppfyller ikke trappene/rekkverket dagens krav til sikkerhet.
Balkonger
- Rekkverkshøyde og lysåpninger: Rekkverkshøyden er under 1,0 meter. Basert på ovennevnte forhold oppfyller ikke balkongen dagens krav til sikkerhet.
I tillegg opplyses det om følgende i rapporten:
- Forenklet vurdering av elektrisk anlegg: Eier opplyser at det er utført arbeider på det elektriske anlegget av ufaglærte eller personer uten nødvendige godkjenninger for å kunne gjøre arbeider på faste elektriske installasjoner. Det mangler samsvarserklæring for deler av det elektriske anlegget, for eksempel arbeider utført av tidligere eier.
- Branntekniske forhold: Komfyrvakt er ikke montert. Det anses som sannsynlig at det foreligger krav om komfyrvakt i boligen.
- Geologiske forhold: Eiendommen ligger i et aktsomhetsområde for kvikkleire.
Se vedlagt tilstandsrapport for supplerende informasjon vedrørende boligens tilstand.
Tilstandsrapporten er inntatt i salgsoppgaven. Rapporten inneholder informasjon om avvikene og konsekvensen av disse. For avvik som er gitt TG3 har den bygningssakkyndige i tillegg gitt et anslag på hva det vil koste å utbedre disse avvikene. Ettersom kjøper regnes å være kjent med forhold som tydelig fremgår av tilstandsrapporten, oppfordres du til å sette deg grundig inn i rapporten i sin helhet.
Standard
Boligen er gjennom 2000-tallet oppgradert i flere omganger, blant annet i regi av nåværende eier som overtok i 2025. Sistnevnte har bekostet blant annet oppussing av begge stuer, i tillegg til ombygging og renovering av badet.
Romløsningen med tre delplan i tillegg til kjeller gir boligens indre et dynamisk og egenartet uttrykk. Spesielt verdt å fremheve er de to øvre delplanene der stuen og spisestuen er åpent forbundet. Over spisestuen er himlingen på det meste hele 3,6 meter høy og fremmer en meget luftig romfølelse.
Begge stuer er nymalt og oppgradert med lekre gulv av fiskebeinsparkett. I stuens himling er i tillegg spotter felt inn. Stuens balkongdør og vinduer ble skiftet ut i 2022, utvendig screen ble montert over vinduene i 2023. I spisestuen ble vindu skiftet ut og skyvedør til terrassen installert i 2022.
Kjøkkenet er adskilt i eget rom på samme plan som spisestuen og utstyrt med innredning fra JKE Design, installert i 2012. Flere oppgraderinger er utført gjennom påfølgende år, blant annet montering av nytt høyskap i 2019. Hvitevarene på kjøkkenet er fra ulike årstall, alle medfølger.
På nedre plan ble oppussing utført i 2017, entreen ble i tillegg noe utvidet ved å hente areal fra hovedsoverommet. Sistnevntes dør ble samtidig flyttet og dør til soverom II skiftet ut. Både entreen, gangen og soverommene ble oppgradert nye overflater på så vel gulv som vegger og himlinger. Praktiske skyvedørsgarderober ble installert i både entreen og begge soverom.
Boligens opprinnelige bad, vaskerom og gang ble i 2025 slått sammen til ett stort og lekkert bad. Her er både hele gulvflaten og alle vegger utført med storformat fliser som skaper helhet, himlingen med innfelte spotter. Sanitærutstyret inkluderer både dusjhjørne og et frittstående badekar som til sammen gir valgfrihet. Baderomsmøblene er fra Vikingbad og inkluderer dobbel servant som gjør det enkelt for to personer å benytte badet samtidig.
Innenfor badet finnes et innredet rom benyttet som kjellerstue. Her ble ny vedovn installert i 2018, samme år ble også flisfelt lagt foran ovnen og heldekkende teppe på resten av gulvet.
Overflater og innredninger:
Gulv: Parkett, laminat, teppe og fliser.
Innervegger: Tapeter, panel, MDF-plater og fliser.
Himlinger: Panel og glatte flater.
Kjøkken: Skapinnredning med glatte lyse fronter. Laminerte grå benkeplater. Nedfelt dobbel stålvask med ett-greps blandebatteri. Integrert platetopp, stekeovn, kombiovn og oppvaskmaskin. Frittstående kombiskap med dispenser. ventilator i overskap. Veggmontert glassplate.
Bad: Servantskap med rettprofilerte fronter og dobbel keramisk servant med sorte ett-greps blandebatterier. Veggspeil med integrert belysning. Frittstående badekar med hånddusj. Dusjhjørne med sidehengslede glassdører og to-greps blandebatteri med hånddusj. Toalett montert på innbygget sisterne. Rør-opplegg til vaskemaskin.
Løsøre og tilbehør
Integrerte hvitevarer på kjøkkenet medfølger i handelen, dette gjelder platetopp, stekeovn, oppvaskmaskin og kombinert steke-/mikrobølgeovn.
Videre vises det til liste fra Norges Eiendomsmeglerforbund angående løsøre og tilbehør. Produkter og installasjoner som medfølger overdras uten noen form for garantier, utover eventuell gjenværende leverandørgaranti.
Oppvarming
Peisovn i spisestue og i innredet kjellerstue. Luft-til-luft varmepumpe fra 2026 i spisestue. Gulvvarme på bad og i entré. Videre er boligen basert på elektrisk oppvarming ved evt. panelovner.
Mosseregionen interkommunale brann og redning har registrert følgende:
- Siste feiing ble utført: 28.06.2012.
- Siste tilsyn ble utført: 20.04.2023.
Det ble registrert følgende avvik ved fyringsanlegget: Manglende adkomst hindrer feiing og kontroll av skorstein. Monter feieluke eller takstige for tilgang til skorsteinen. Kjøper overtar alt ansvar og risiko for dette videre.
Opplysningene er mottatt den 14.04.2026.
Dersom det ikke er vegg- eller fastmonterte varmekilder i rom ved visning, følger dette heller ikke med.
Ferdigattest/brukstillatelse
Moss kommune opplyser om at det ikke foreligger ferdigattest eller midlertidig brukstillatelse for oppføring av boligen i deres arkiv. Dog anfører kommunen i brev til megler datert 16.04.2026 at boligen er godkjent tatt i bruk. I henhold til matrikkelen ble eiendommen etablert i 1962.
Det er utstedt godkjente byggetegninger for oppføring av boligen fra 1961.
Det gjøres oppmerksom at det ikke lenger utstedes ferdigattest på tiltak det er søkt om før 1998 jf. plan- og bygningsloven §21-10. Kommunen vil ikke kreve ferdigattest for disse tiltakene og vil avvise eventuelle søknader. Bestemmelsen innebærer ikke at tiltak med manglende søknad blir lovlige, men at man ikke trenger å avslutte gamle byggesaker. Normalt sett kreves ferdigattest for alle søknadspliktige tiltak som gjøres etter plan - og bygningsloven.
Kjellerstue er opprinnelig byggemeldt som brensel. Del av bad er opprinnelig byggemeldt som tørkerom og matbod. Innredning av rommet/arealet til bruk for varig opphold/hoveddel er ikke bruksendret/omsøkt og er heller ikke godkjent av kommunen. Konsekvensen ved søknad kan være at rommet/arealet ikke godkjennes som varig opphold/hoveddel og at rommet/arealet da må brukes/tilbakeføres til opprinnelig godkjent formål. Kjøper overtar alt ansvar og risiko for dette videre.
Balkongen avviker fra godkjente byggetegninger fra 1961, denne har blitt utvidet (tilsvarende gjelder øvrige naboeiendommer). Det er også oppført en frittstående redskapsbod. Megler anfører at det ikke foreligger dokumentasjon på søknad/melding til kommunen vedrørende de utførte tiltakene. Kjøper overtar risiko og ansvaret for eventuelle pålegg fra kommunen samt kostnader forbundet med dette.
Kjøper overtar eiendommen slik den framstår på visning.
Tinglyste heftelser og rettigheter
Eiendommen overdras fri for pengeheftelser, med unntak av.
Grunneier har lovbestemt panterett i festeretten og bebyggelsen, som tilsvarer 3 års forfalt festeavgift iht. tomtefesteloven §14.
Dagboknummer: 1814
Tinglysningsdato: 04.05.1963
Servitutten omhandler: Festekontrakt med vilkår. Det kan kun oppføres permanente bolighus med garasjer på tomten. Grunneier skal godkjenne all bebyggelse på tomten. Ikke tillatt å drive forretningsvirksomhet, verksted eller annen generende virksomhet på eiendommen. Oppsetting av gjerde mellom naboeiendommer skal deles med en halvpart på hver nabo. Rett til å føre diverse ledninger over eiendommen.
Dagboknummer: 9203
Tinglysningsdato: 02.12.1991
Servitutten omhandler: Solidarisk ansvar for anlegg, drift og vedlikehold av felles privat ledningsanlegg (Strandpromenaden 47A-D). Bunnledninger innenfor de enkelte husstander er eieren selv ansvarlig for anlegg, drift og vedlikehold.
Eiendommen har andel i et realsameie
Dagboknummer: 906750
Andel i: Gnr. 1 og bnr. 1347
Ideell andel: 1/18
Tomten til realsameiet består av felles grøntareal (mellom Strandpromenaden 14 og 47).
Andelen vil følge eiendommen.
Eiendommen har andel i et realsameie
Dagboknummer: 906753
Andel i: Gnr. 1 og bnr. 2285
Ideell andel: 1/18
Tomten til realsameiet består av felles carportanlegg.
Andelen vil følge eiendommen.
Servituttene vil følge eiendommen. Kjøpers bank vil få pant etter ovennevnte heftelser og servitutter som ikke skal slettes ved overdragelse.
Eventuell adgang til utleie
Eiendommen har ikke separat utleieenhet. Det vil normalt være anledning til utleie av hele eiendommen eller enkeltrom, såfremt utleiearealet er bygningsmessig godkjent for varig opphold og har forsvarlige radonnivåer.
Energimerking
Komplett energiattest inkludert oppvarmingskarakter fås ved henvendelse til megler eller lastes ned fra www.krogsveen.no.
Beliggenhet og tomteforhold
Beliggenhet og tomteforhold
Beliggenhet
Boligen har en svært attraktiv beliggenhet i fremste rekke på Framnes, bare få meter unna sjøen. Nærheten til nettopp sjøen er noe av det mest attraktive ved å bo på Framnes; her er det fullt mulig å tusle barbeint til og fra stranden, som er den nærmeste av en rekke fine badesteder på øya. Stranden er også et ypperlig utgangspunkt for padleturer på fjorden.
Framnes har for øvrig også et aktivt miljø for kiting og fantastiske forhold året gjennom. Til den store båthavnen på Søly er det få minutters gange, havnen er et godt utgangspunkt for utflukter på fjorden og har blant annet et veletablert seilermiljø.
Jeløy i sin helhet har et mangfold av turmuligheter i vakker natur, blant annet i et unikt landskapsvernområde med svært gode tur- og treningsmuligheter. Kyststien passerer like over stranden og leder deg videre rundt til det frodige landskapet omkring Alby. Her finner du også en bit av øyas anerkjente kunst- og kulturmiljø på gårdene Alby og Røed.
Skoler på alle grunntrinn er lett tilgjengelig i nærområdet, deriblant Reier og Hoppern ungdomsskole. Kort vei er det også til Søly barnehage med økologisk fokus.
Med sykkel tar du deg på få strakser frem til sentrum og Kanalen, byens bryggepromenade med forretninger og spisesteder. Her finner du både dagligvareforretninger og forretninger med mer spesialiserte utvalg når du vil unne deg noe godt. Foretrekker du heller å spise ute, finner du restauranter langs kaikanten som har store uteområder med folkeliv i sommermånedene.
Skal du med toget, holder du til høyre rett etter Kanalen. Fra stasjonen kan du velge mellom hyppige avganger til Oslo og kun 30 minutter reisetid. Buss til sentrum og stasjonen stopper i Strandpromenaden, få meter unna.
Adkomst
Det vil bli skiltet med Krogsveen visningsskilt ved fellesvisninger. Se kart i nettannonse eller Google Maps for nærmere veibeskrivelse. Velkommen til visning!
Barnehager, skoler og fritid
Barnehager: Søly barnehage (0,5 km), Bråtenstua barnehage (0,8 km), Reier barnehage (0,9 km).
Skoler: Reier barneskole (0,9 km) og Hoppern ungdomsskole (1,5 km).
Videre er det Kirkeparken videregående skole (2,6 km) og Malakoff videregående skole (3,3 km km) i Moss kommune.
Dersom skole- og barnehagetilbud er av betydning for kjøpet, ber vi om at det rettes en særskilt henvendelse til kommunen for oppdatert informasjon.
Beskrivelse av tomt
Festetomt på 239 kvm. Tilnærmet flat tomt i to nivåer. Tomten er opparbeidet med blant annet hellebelagt adkomstvei, dekorsteiner samt diverse beplantninger. Diverse forstøtningsmurer av betongelementer. Utvendige trapper av betong med varmekabler (ikke tilkoblet pt.).
Deler av opparbeidet skråning inkl. område med avfallsdunker og el-billader eies av gnr. 2/bnr. 2540 (Moss kommune), se kartutsnitt for tomtegrenser. Kjøper påtar seg risikoen for fortsatt bruk og fremtidig bruk samt eventuelle pålegg fra kommunen.
Tomten er ikke oppmålt i nyere tid og har usikre grenser (foruten mot veien, Strandpromenaden). Kommunens grunnkart viser eiendommens grenser med et beregnet normalavvik på 30-200 cm, se kartutsnitt for tomtegrenser. Ved nøyaktig oppmåling kan avvik forekomme, og kjøper aksepterer dette.
Regulering av feste
Festeavgiften er kr 1.524,- pr. år.
Festeavgiften reguleres hvert 10. år iht. konsumprisindeksen.
Siste regulering av festeavgift: 01.01.2023
Festetid: 99 år fra 01.01.1962.
Festeavtalen utløper: 01.01.2061.
Samtykke til overdragelse fra grunneier kreves ikke.
Kopi av festekontrakten kan fås ved henvendelse til megler.
Parkering
Det praktiseres parkering langs veien (Strandpromenaden) ved boligen. Montert lader for el-bil i 2026.
Det gjøres oppmerksom på at dagens parkeringsløsning langs vei er etablert på kommunal grunn, og at parkeringsplassen således ikke eies av hjemmelshaver til denne eiendommen. Dette medfører at kommunen beslutter bruken, og at hjemmelshaver ikke har eierrett og rettsvern på parkeringsområdet. Kjøper påtar seg risikoen for fortsatt bruk og fremtidig bruk samt eventuelle pålegg fra kommunen.
Eiendommen har en medfølgende parkeringsplass i felles carportanlegg (tinglyst eierandel i et realsameie). Anlegget er imidlertid i dårlig forfatning per dags dato, men tilknyttet bod er i god stand.
Vei, vann og avløp
Eiendommen har adkomst via kommunal vei.
Eiendommen er tilknyttet kommunalt ledningsnett via private stikkledninger. Eier er selv ansvarlig for private stikkledninger til boligen.
Regulerings-og arealplaner
Eiendommen er regulert til konsentrert småhusbebyggelse, i henhold til reguleringsplan "Framnes - Del av Framnes gnr. 3/7" vedtatt 10.03.1966. Videre er eiendommen avsatt til boligbebyggelse ved kommuneplanens arealdel 2021-2032 vedtatt 24.03.2021. Utsnitt av planer med tilhørende bestemmelser kan fås ved henvendelse til megler.
I henhold til kommuneplanen er eiendommen innenfor et område med ras- og skredfare. Dette kan legge begrensninger for evt. utbygging, påbygg/tilbygg og andre terrenginngrep som på et generelt grunnlag er tillatt ifølge kommuneplanen. Konferer med megler dersom dette er aktuelt.
Det gjøres oppmerksom på at deler av eiendommen ligger innenfor 100-metersbeltet langs sjø (forbudsgrense sjø). I henhold til pbl. §1-8 er det et generelt byggeforbud langs sjøen, dette gir restriksjoner i forbindelse med evt. videre utbygging/riving/endring o.l. tilknyttet boligen/tomten. Søknadspliktige tiltak kan også kreves særskilt søkt, i tillegg må søknadene påregnes behandlet hos statsforvalter. Konferer med megler for mer informasjon.
Selger opplyser om varslet bygging av tilbygg til et av rekkehusene i Horsens gate.
Økonomi
Økonomi
Kommunale utgifter
Kommunale avgifter faktureres over 12 terminer og er på kr 16.458,-, fakturert på eiendommen i 2025. I dette inngår gebyr for vann, avløp, renovasjon og feiing. Avgiftene for vann og avløp vil variere etter forbruket i boligen, gebyr for vann/avløp inkluderer årsgebyr og stipulert á-konto beløp/mengde (48 kubikk).
Det må påregnes kostnader til strøm og nettleie, dette vil variere avhengig av strøm-/nettselskap. Nåværende eier har et strømforbruk på ca. 20.000 kWh pr. år.
For denne boligen er det inngått avtale om Norgespris i stedet for strømstøtte, avtalen på kr 50 øre inkl. mva følger eiendommen og har en bindingstid frem til 31.12.2026. Nettleie, avgifter og påslag fra kraftleverandøren kommer i tillegg. Les mer om Norgespris her: https://www.regjeringen.no/no/aktuelt/legg-fram-lov-om-norgespris-pa-straum-og-fjernvarme/id3102642/
Boligen har en årlig forsikringspremie via Tryg Forsikring på kr 21.800,- pr. år.
Boligen er tilknyttet Global Connect som leverandør av fiber og har kostet ca. kr 625,- pr. mnd avhengig av hastighet på nettet.
Det må påregnes kostnader til innboforsikring.
Ovenstående er basert på nåværende eier/husstands senere års forbruk/utgifter. Dette vil variere avhengig av antall beboere, ønsket innetemperatur, egne fordelsavtaler, kanalvalg, hastighet på bredbånd m.m.
Formuesverdi
Formuesverdi for 2024 var kr 865 368,- ifølge Skatteetaten. Beløpet forutsetter at eier bor fast i boligen (primærbolig).
Ved eventuell øvrig bruk av eiendommen (f.eks. fritidsbolig, pendlerbolig, utleieobjekt) var formuesverdien for 2024 kr 3 461 472,-.
Fra 2026 har Stortinget vedtatt en oppdatert modell for beregning av formuesverdi for primærbolig, så avvik kan forekomme.
For mer informasjon se skatteetaten.no.
Eiendomsskatt
Eiendomsskatten utgjør kr 3.808,- pr år, fakturert på eiendommen i 2025.
Omkostninger
6 750 000,00 Prisantydning
Omkostninger
168 750,00 Dokumentavgift til staten (2,5% av kjøpesum)
19 900,00 Gjensidige Boligkjøperpakke* (valgfritt)
545,00 Tinglysing panterettsdokument
545,00 Tinglysing skjøte
--------------------------------------------------------
169 840,00 (Omkostninger totalt (uten Gjensidige Boligkjøperpakke))
189 740,00 Omkostninger totalt (med Gjensidige Boligkjøperpakke))
--------------------------------------------------------
6 919 840,00 Totalpris inkl. omkostninger
6 939 740,00 Totalpris inkl. omkostninger (med Gjensidige Boligkjøperpakke)
--------------------------------------------------------
Totalpris inkl. omkostninger forutsetter kjøp til prisantydning.
Det tas forbehold om endringer i avgifter og gebyrer.
Tilbud om lånefinansiering
Megler formidler gjerne kontakt med rådgiver hos vår samarbeidspartner BN Bank. De har konkurransedyktige betingelser samt rask og løsningsorientert behandling av din lånesøknad. Krogsveen mottar et honorar dersom lån opprettes.
Betalingsbetingelser
Kjøpesum inkludert omkostninger, samt pantedokument tilknyttet eventuelt lån, skal være disponibelt hos megler 2 virkedager før overtagelsen.
Annen viktig informasjon
Annen viktig informasjon
Eier
Julie Fen Janbu Sandene
Konsesjon
Realsameiets eiendom (gnr. 1/bnr. 1347) er en ubebygd tomt. For at eiendommen skal kunne overskjøtes, må kjøper signere på egenerklæring om konsesjonsfrihet.
Erklæringen må godkjennes av kommunen før eiendommen kan overskjøtes til kjøper.
Overtakelse
Etter nærmere avtale.
Boligselgerforsikring
Selger har i forbindelse med salget tegnet boligselgerforsikring levert av Gjensidige.
Boligselgerforsikringen dekker selgers ansvar etter avhendingsloven begrenset oppad til kr 14 millioner. Dersom kjøper oppdager forhold ved eiendommen som hen mener utgjør en mangel ved eiendommen, vil Gjensidige behandle reklamasjonen på vegne av selger. Forsikringsvilkår kan fås ved henvendelse til megler.
Vedlagt salgsoppgaven følger selgers egenerklæringsskjema og tilstandsrapport. Interessenter må sette seg inn i dokumentene før bud inngis.
Boligkjøperforsikring
Innen kontraktsmøtet må kjøper ta stilling til om det ønskes å bestille Boligkjøperpakken gjennom Gjensidige. I denne gunstige pakken er boligen ferdig forsikret og inkluderer rettshjelpsforsikring, også kalt Boligkjøperforsikring. Rettshjelpsforsikring gir trygghet og tilgang på profesjonell juridisk hjelp dersom det oppdages uventede feil eller mangler det første året etter overtagelse. Forsikringsselskapet behandler i så fall ethvert mangelskrav kjøper måtte ha overfor selger.
Boligkjøperpakken inkluderer bygningsforsikring for hus og hytte, innboforsikring, flytteforsikring og dobbel rentedekning - i situasjoner hvor kjøper ikke får solgt nåværende primærbolig.
Kjøper mottar ingen særskilt faktura for Boligkjøperpakken da kostnaden det første året legges til kjøpesummen for boligen. Det gjøres oppmerksom på Krogsveen mottar et honorar for denne formidlingen.
Produktark for Boligkjøperpakken ligger vedlagt i salgsoppgaven.
Dersom ikke boligkjøperpakke ønskes kan kun rettshjelpsforsikring, også kalt boligkjøperforsikring, tegnes særskilt via megler. Rettshjelpsforsikringen varer i 5 år fra overtagelse og leveres gjennom Gjensidige. Ta kontakt med megler for ytterligere informasjon.
Selskap og privatpersoner som driver med kjøp/salg/utvikling som ledd i egen næringsvirksomhet kan ikke tegne boligkjøperpakke eller rettshjelpsforsikring.
Budgivning
Forbrukerinformasjon om budgivning er vedlagt denne salgsoppgaven og er også på vår hjemmeside Krogsveen.no. Alle bud og budforhøyelser må inngis skriftlig. I tillegg må legitimasjon være fremlagt sammen med signatur fra budgiver.
Vi oppfordrer til å gi bud elektronisk via GI BUD-knappen på eiendommens hjemmeside på Krogsveen.no. Da vil samtlige vilkår bli oppfylt.
Eventuelle forhøyelser eller endringer av budet kan bekreftes pr SMS eller på e-post. Vi oppfordrer alltid til å kontakte megler pr. telefon i tillegg da forsinkelser i SMS og e-post kan forekomme.
For at budene skal kunne bli behandlet og videreformidlet skriftlig til alle involverte parter, må alle bud ha en tilstrekkelig lang akseptfrist, jf. eiendomsmeglingsforskriften § 6-3.
Selger må også skriftlig akseptere budet før aksept kan formidles til budgiver. Akseptfrist bør derfor være på minimum 30 minutter, og budforhøyelser må derfor skje i god tid før fristens utløp.
Bud i forbrukerforhold kan uansett ikke settes med kortere frist enn kl. 12.00 første virkedag etter siste annonserte visning. I tillegg kan ikke budet ha forbehold om at det skal holdes hemmelig ovenfor øvrige interessenter. Megler har iht lov om eiendomsmegling ikke anledning til å videreformidle disse budene, og de vil dermed heller ikke bli journalført.
Etter at eiendommen er solgt vil kjøper og selger få tilsendt budjournal. Øvrige budgivere kan få utlevert kopi av budjournalen i anonymisert form.
Hvitvaskingsreglene
I henhold til lov om hvitvasking og terrorfinansiering har megler plikt til å gjennomføre kontrolltiltak overfor kunder, herunder fullmektiger. Dette innebærer bl.a. å bekrefte kunders og reelle rettighetshaveres identitet på bakgrunn av fremvist gyldig legitimasjon eller på annen godkjent måte, samt å innhente opplysninger om kundeforholdets formål og tilsiktede art.
Dersom slike kundetiltak ikke kan gjennomføres, kan megler ikke etablere kundeforholdet eller utføre transaksjonen.
Hvis kjøper ikke bidrar til gjennomføring av kundekontrollen og dette fører til at transaksjonen blir forsinket eller ikke kan gjennomføres, vil dette ansees som mislighold av avtalen og gi selger rettigheter etter avhendingslova kapittel 5. I tilfeller der selger ikke bidrar til gjennomføring av løpende kundekontroll underveis i oppdraget, er det selger som misligholder sine forpliktelser etter avtalen og gi kjøper rettigheter etter avhendingslovens kapittel 4. Partene er selv ansvarlige for eventuelle kostnader og ansvar dette kan medføre. Eiendomsmegleren eller eiendomsmeglingsforetaket kan ikke holdes ansvarlig for de konsekvenser dette vil kunne få for partene eller andre som har interesser i eiendomshandelen.
Kjøper oppfordres til å innbetale kjøpesummen som ikke kommer fra låneinstitusjon i én samlet innbetaling fra egen konto i norsk bank. Megler har plikt til å melde fra til Økokrim om eiendomshandler som fremstår som mistenkelige. Melding sendes Økokrim uten at partene varsles.
Personopplysningsloven
I henhold til personopplysningsloven gjør vi oppmerksom på at interessenter kan bli registrert for videre oppfølging.
Lovanvendelse
Generelle bestemmelser
Salgsoppgaven er basert på de opplysningene selger har gitt til megler, den bygningssakyndiges tilstandsrapport, samt opplysninger innhentet fra kommunen, Kartverket og andre tilgjengelige kilder. Det er viktig at kjøper setter seg grundig inn i alle salgsdokumentene, herunder salgsoppgave, tilstandsrapport og selgers egenerklæring. Kjøper anses kjent med forhold som er tydelig beskrevet i salgsdokumentene, og slike forhold kan ikke påberopes som mangler. Dette gjelder uavhengig av om kjøper har lest dokumentene. Alle interessenter oppfordres til å undersøke eiendommen nøye, gjerne sammen med fagkyndig før bud inngis. Kjøper som velger å kjøpe usett kan ikke gjøre gjeldende som mangel noe han burde blitt kjent med ved undersøkelsen.
Dersom det er behov for avklaringer, anbefaler vi at interessenter rådfører seg med eiendomsmegler eller egne rådgivere før det legges inn bud.
En bolig som har blitt brukt i en viss tid, har vanligvis blitt utsatt for slitasje og skader kan ha oppstått. Slik bruksslitasje må kjøper regne med, og det kan avdekkes enkelte forhold etter overtakelse som nødvendiggjør utbedringer. Normal slitasje og skader som nødvendiggjør utbedring, er innenfor hva kjøper må forvente og vil ikke utgjøre en mangel.
Kjøper og selgers rettigheter og plikter reguleres av avtalen mellom partene, samt informasjonen som har vært tilgjengelig for kjøperen i forbindelse med handelen. Avtalen utfylles av avhendingsloven, og det gjelder ulike avtalevilkår avhengig av om kjøper er forbrukerkjøper eller ikke. Dette er nærmere beskrevet nedenfor.
På grunn av ulike avtalevilkår kan selger vurdere bud fra en som ikke er forbruker, ulikt fra en forbrukers bud. Dersom kjøper ikke er forbruker, er selger sitt mulige mangelsansvar begrenset fordi eiendommen selges "som den er". Selger kan ikke ta «som den er»- forbehold overfor en forbrukerkjøper. Selv et lavere bud fra en som ikke er forbruker kan foretrekkes fordi begrensningen i mulig mangelsansvar kan ha egenverdi for selger. Selger står fritt til å forkaste eller akseptere ethvert bud, og er for eksempel ikke forpliktet til å akseptere høyeste bud.
Budgiver skal i budskjema avgi egenerklæring om budgiver er forbruker eller næringsdrivende/ person som hovedsakelig handler som ledd i næringsvirksomhet. Budgivere får informasjon dersom andre bud er inngitt av en som ikke er forbruker.
Forbrukerkjøp - definisjon
Med forbrukerkjøp menes kjøp av eiendom når kjøperen er en fysisk person som ikke hovedsakelig handler som ledd i næringsvirksomhet.
Forbruker – avtalevilkår
Eiendommen har en mangel dersom den ikke er i samsvar med kravene som følger av avtalen, eller det foreligger brudd på bestemmelsene i avhendingsloven §§ 3-2 til 3-8. Hvis eiendommen ikke er i samsvar med det kjøperen må kunne forvente ut ifra alder, type og synlig tilstand, kan det være grunnlag for mangelskrav. Det samme gjelder hvis det er holdt tilbake eller gitt uriktige opplysninger om eiendommen. Dette gjelder likevel bare dersom man kan gå ut ifra at det virket inn på avtalen at opplysningen ikke ble gitt eller at mangelskravet ikke blir rettet i tide på en tydelig måte.
Boligen kan ha en mangel etter avhendingsloven § 3-3 andre ledd, dersom det er avvik mellom opplyst og faktisk innvendig areal, forutsatt at avviket er på 2% eller mer og minimum 1 kvm.
Ved beregning av et eventuelt prisavslag eller erstatning må kjøper selv dekke tap/kostnader opptil et beløp på kr 10 000 (egenandel).
Ikke-forbruker (næringsdrivende) – definisjon
Hvis kjøper er en juridisk person, eller en fysisk person som hovedsakelig handler som ledd i næringsvirksomhet, vil kjøpet ikke anses som et forbrukerkjøp.
Ikke-forbruker – avtalevilkår
Eiendommen har en mangel dersom den ikke er i samsvar med kravene som følger av avtalen.
Eiendommen selges «som den er», og selgers ansvar utover det konkret avtalte er da begrenset etter avhendingsloven § 3-9, første ledd andre setning.
Avhendingsloven § 3-3 andre ledd fravikes, og hvorvidt boligens arealsvikt utgjør en mangel vurderes etter avhendingsloven § 3-8.
Informasjon om kjøpers undersøkelsesplikt, herunder oppfordringen om å undersøke eiendommen nøye, gjelder også for kjøpere som ikke anses som forbrukere.
Det forutsettes at hjemmel overføres til kjøper. Hvis kjøper ikke ønsker hjemmelsoverføring av eiendommen, må det tas forbehold om dette i budet.
Meglers vederlag
Meglers vederlag betales av selger og er avtalt til:
Vederlag: 1,60 % av salgssummen
Minimumsprovisjon er kr 60 000,00
Vederlag:
Foto kr 7 500,00
Kunderabatt SELGER; Rabatt, foto kr -3 000,00
Kunderabatt SELGER; Rabatt, markedspakke kr -9 900,00
Kunderabatt SELGER; Rabatt, tilrettelegging kr -7 900,00
Kunderabatt SELGER; Rabatt, visninger kr -4 500,00
Markedsføringspakke inkl. Smartannonsering & Hjem.no kr 29 900,00
Oppgjør kr 8 900,00
Tilrettelegging inkl. alle visninger m/påmeldte kr 19 900,00
Visninger pr stk / Overtagelse kr 4 500,00
Utlegg:
Innhenting av offentlige opplysninger kr 3 500,00
Tinglysing sikring kr 545,00
Andre utgifter:
AX tilstandsrapport rekkehus/tomannsbolig kr 17 500,00
Boligselgerforsikring Gjensidige Eiet kr 38 542,50
Vi er opptatt av verdiskapning, og har knyttet til oss samarbeidspartnere som skal sikre våre kunder de beste produkter og tjenester;
• I forbindelse med forberedelse av salget, innhenter vi informasjon om eiendommen hovedsakelig fra vår samarbeidspartner Ambita.
• Gjensidige leverer boligselgerforsikring og tilbyr bygningsforsikring
• Boligkjøperforsikring leveres av Hiscox og med Sedgwick som skadebehandler, og er formidlet gjennom Gjensidige.
• BN bank tilbyr finansieringsløsninger
• Vår avdeling Krogsveen Pluss tilbyr flyttetjenester som utvask, visningsvask, lager, tømming og transport av flyttelass, i tillegg til å formidle kontakt med Flip for overflateoppussing.
• I forbindelse med overtagelse av eiendommen tilbyr Overo avtale om strøm, alarm og bredbånd.
• Krogsveen er, sammen med øvrige bransjeaktører, medeier i den digitale annonseringsplattformen Hjem som eies av Bomega AS.
Opplysninger om oppdraget
Oppdragsnummer 30-0069/26
Eiendomsmegler Krogsveen AS, avd. Moss
Kongens gate 23, 1530, MOSS
950 007 613
Oppdragets KR-kode KR30.2669
Dato
Sist oppdatert: 25. april 2026 kl. 12:44
Dokumenter
Dokumenter
PDF – 926 KB
PDF – 167 KB
PDF – 7 MB
PDF – 312 KB
PDF – 29 KB
PDF – 127 KB
PDF – 392 KB
Område
Legg til steder som er viktige for deg
Visning
Unngå doble boligrenter
Vi tilbyr gunstig forsikring.
Vurderer du utleie?
Få et tilbud fra Utleie KrogsveenHva koster lånet?
Sjekk estimert lånekostnadVil du varsles om lignende boliger?
Ved å lagre ditt boligsøk hos oss får du beskjed når vi har en bolig som ligner denne, før den legges ut på markedet!












































