Svelvikveien 26
3 800 000 kr
169 m²
3 soverom
Solgt

Presenteres av
Arild KnudsenTangen
Pen enebolig med 2 etasjer. Solrikt med fjordutsikt. Romslig hage. Integrert garasje. Ca. 10 min kjøring til sentrum.
Prisantydning
3 800 000 krOmkostninger
115 990 krTotalpris
3 915 990 kr
Pris
Bruksareal
192 m²BRA-I (internt bruksareal)
169 m²BRA-E (eksternt bruksareal)
23 m²TBA (terrasse-balkongareal)
44 m²
Areal
Etasje
2Byggeår
1966Soverom
3 soveromBad
2 badTomteareal
687 m² (eiet)Type
Enebolig - FrittliggendeEierform
EietFasiliteter
Garasje/P-plass og Balkong/TerrasseEnergimerke
Rød G
Nøkkelinfo
Unngå doble boligrenter
Vi tilbyr gunstig forsikring.
Vurderer du utleie?
Få et tilbud fra Utleie KrogsveenHva koster lånet?
Sjekk estimert lånekostnadBeskrivelse
Kort om eiendommen
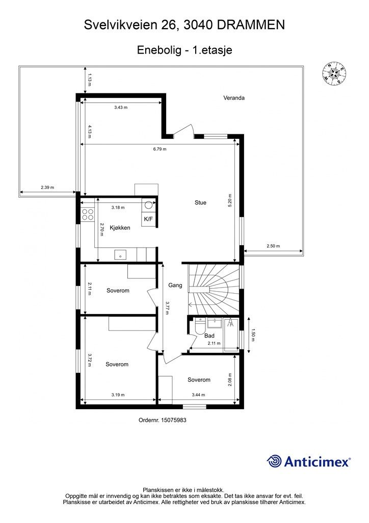
Pen enebolig med 2 etasjer og stort lagringsloft.
Hyggelig stue med innmurt peisinnsats
Plassbygget kjøkken med god skap-/skuffplass
Bad i 1. etg med badekar og gulvvarme
Praktisk ekstra wc-rom og vaskekjeller i u. etg
Varmtvannsbereder fra 2021
Vest-, nord- og østvendt veranda på ca. 44 kvm (ikke byggemeldt)
Romslig hageområde med fjordutsikt og gode solforhold
Parkering i integrert garasje på ca. 23 kvm
Kort gangavstand til hyggelig fjordpark med badestrand
Kort gangavstand til bussholdeplass med forbindelser mot sentrum/Svelvik
Ca. 10 min kjøring til sentrum med "alt" av servicetilbud, tog/bussknutepunkt og sentrumsfasiliteter
Velkommen til visning!
Område
Legg til steder som er viktige for deg
På flyttefot? Tenk kjøp og salg samtidig.
Få din egen rådgiver gjennom hele kjøps- og salgsprosessen. Det starter med en verdivurdering.
Unngå doble boligrenter
Vi tilbyr gunstig forsikring.
Vurderer du utleie?
Få et tilbud fra Utleie KrogsveenHva koster lånet?
Sjekk estimert lånekostnadVil du varsles om lignende boliger?
Ved å lagre ditt boligsøk hos oss får du beskjed når vi har en bolig som ligner denne, før den legges ut på markedet!
På flyttefot? Slik gjør vi det enklere for deg
Skreddersydd flyttepakke
Vi fikser håndverkere, vask, pakking, lagring og transport, og legger ut for utgiftene underveis.
Hjelp med både kjøp og salg
Hos oss har du din egen rådgiver gjennom hele kjøps- og salgsprosessen.
Hjelp til finansiering
Vårt samarbeid med BN Bank sikrer deg rask og løsningsorientert hjelp, til konkurransedyktige betingelser.

