Hagastubben 43
5 350 000 kr
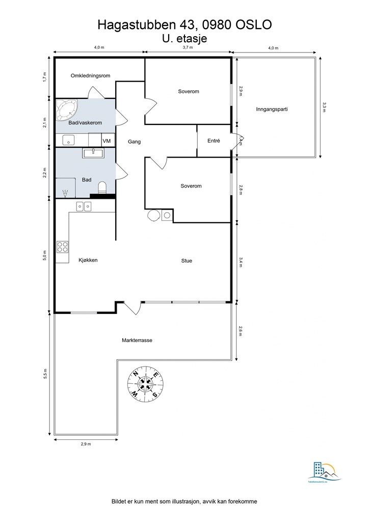
89 m²
2 soverom
Solgt
Høybråten
Sjelden perle på Høybråten | Meget attraktiv 3-roms med nabolagets beste beliggenhet | Garasjeplass | Bad 2021 | Hage
Prisantydning
5 350 000 krAndel fellesgjeld
47 957,41 krOmkostninger
146 810 krTotalpris
5 544 767,41 kr
Pris
Bruksareal
94 m²BRA-I (internt bruksareal)
89 m²BRA-E (eksternt bruksareal)
5 m²TBA (terrasse-balkongareal)
32 m²
Areal
Etasje
1Byggeår
1994Soverom
2 soveromBad
2 badType
EierleilighetEierform
EierseksjonFasiliteter
Garasje/P-plass og Balkong/TerrasseFellesutgifter
4 283 krEnergimerke
Rød F
Nøkkelinfo
Unngå doble boligrenter
Vi tilbyr gunstig forsikring.
Vurderer du utleie?
Få et tilbud fra Utleie KrogsveenHva koster lånet?
Sjekk estimert lånekostnadBeskrivelse
Kort om eiendommen
Krogsveen v/Nhut Nam Huynh har gleden av å presentere denne flotte og innholdsrike boligen med attraktiv beliggenhet på Høybråten. Her får du skikkelig «rekkehusfølelse»! Boligen ligger i et populært, sentralt og meget barnevennlig boligområde med nærhet til skoler, barnehager, offentlig kommunikasjon og det meste av daglige servicetilbud du skulle ha behov for. Denne vil du ikke gå glipp av!
Endeleilighet med fantastisk beliggenhet og meget gode lysforhold
2 bad/vaskerom. Det ene badet er fra 2021
Romslige soverom
God intern beliggenhet helt i enden med ekstra uteplass
Romslig walk-in closet
Vegger malt i perioden 2021-2023
Grønn, frodig og sjarmerende hage
Garasjeplass
Peis
Stille og barnevennlig
Nærhet til flotte tur- og friluftsområde
Område
Legg til steder som er viktige for deg
På flyttefot? Tenk kjøp og salg samtidig.
Få din egen rådgiver gjennom hele kjøps- og salgsprosessen. Det starter med en verdivurdering.
Unngå doble boligrenter
Vi tilbyr gunstig forsikring.
Vurderer du utleie?
Få et tilbud fra Utleie KrogsveenHva koster lånet?
Sjekk estimert lånekostnadVil du varsles om lignende boliger?
Ved å lagre ditt boligsøk hos oss får du beskjed når vi har en bolig som ligner denne, før den legges ut på markedet!
På flyttefot? Slik gjør vi det enklere for deg
Skreddersydd flyttepakke
Vi fikser håndverkere, vask, pakking, lagring og transport, og legger ut for utgiftene underveis.
Hjelp med både kjøp og salg
Hos oss har du din egen rådgiver gjennom hele kjøps- og salgsprosessen.
Hjelp til finansiering
Vårt samarbeid med BN Bank sikrer deg rask og løsningsorientert hjelp, til konkurransedyktige betingelser.




